居家养老作为养老模式的一种,正在逐渐被大众所接受。而传统居家养老型产品大多定性为三代居,户型的基本格局是中年夫妇作为家庭第一主人,户型设计以中年夫妇的生活为核心展开的。其中家庭主人享用独立的主卧室以及相关的配套空间,而老人房作为附属,独立于主体活动空间以外。(传统户型)
然而随着5G技术的运用,远程技术、互联网技术、多样化护理以及大数据等的普及应用,对于户型结构的变化正在发生。
▲ 远程可视通话

更加注重老年人的日常生活质量、独立性、开放性,是老年人来年生活的基本需求。以上技术的成熟和观念的改变,将独立养老成为未来居家养老的一种重要方式。科技进步使老年生活的独立性日趋成为现实。
独立式居家养老以老人活动为主体,一切空间设计将以老人的活动模式为核心。老人卧室成为了户型中的第一居室,而子女房间则转变为附属用房(主要用于周期性临时陪护,或突发状况的陪护)。

▲ 功能空间泡泡图

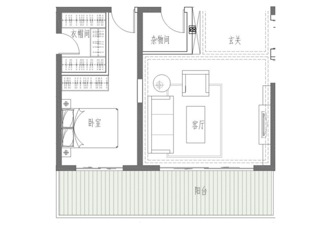
▲ 老年户型图
老年人每天的生活方式规律性比较强,通过时间轴进行分解可以概括为以下几个阶段:


老人夜间活动习惯,容易相互影响,应当采用分离式休息模式,但还需保证一定的相互监护作用,隔而不断。


作为重要的门户空间,承担了室内外分离的重要功能「玄关+家政」将提供简易洗消空间,以及双流线进入房间的模式,保证了全房间内双向救助的可能以及消防检疫的功能。
主要设备:红外人体检测、智能门锁、智能照明系统等。
在老人不便进行户外活动的条件下,满足老年人健身、放松、日照等功能的需求,承担户内健身娱乐活动的主要空间,同时为了调整老人独居的心情,一定范围的绿植是改善老人生活质量重要手段之一,满足种植功能是阳台新的价值属性。另外,为了解决各房间的双流线需求,双开间阳台,三开间阳台,成为了户型设计的必要条件,既能解决流线交通问题,也能改善户内房间品质。阳台延伸至卧室,放大主卧空间,便于老人活动不便时,能够就近完成日照,简单活动的需求。
来源:铁建地产营造社
知识点:独立式居家养老设计逻辑探讨
0人已收藏
0人已打赏
免费1人已点赞
分享
居住建筑设计
返回版块28.74 万条内容 · 423 人订阅
阅读下一篇
浅析住宅建筑日照设计住宅建筑日照设计的规范要求 在建筑设计中,住宅日照标准作为衡量日照效果的设计依据,得到设计师的广泛关注。它不仅是影响居住环境舒适性的重要因素之一,也是我国工程建设标准强制性条文中的重要组成部分。
回帖成功
经验值 +10
全部回复(0 )
只看楼主 我来说两句抢沙发