我们先来梳理一下与地下大堂相关的功能空间的要素组织关系。
地下大堂的可达性设计
可达性是指从一个点到另一个点的容易程度。作为连接住宅地上地下各个功能区块的枢纽,地下大堂的可达性设计应放在首位。
首先,我们来关注地下车库与地下大堂之间的可达性设计。住宅地下大堂与地下车库之间的联系主要有以下几种情况:
主楼位于地库中部,且在南北侧均设置地下大堂。
主楼只在地库一侧设置地下大堂。
在这种情况下,因为仅在单侧设置大堂,减少了地下大堂的面积,工程造价相应减少。但是当南北侧均为地下车库时,不利于业主从地下车库另一侧进入主楼,尤其当需要搬运重物时,却不得不绕行百米从南侧进入地下大堂,想必内心是崩溃的。这时,我们即使只在该侧增加一个入户走道,也会赢得业主的好评。
主楼位于地库外,地库通过地下通道连接地下大堂。

地下大堂与非机动车库
非机动车库常常位于小区不起眼的区域,近日因电动车引发的新闻事件引起了我们对与电动车关联度较高的非机动车库的重视。
非机动车库集中设置在住宅小区的几栋楼,服务半径过大。部分利用电动车送孩子上学的业主往往是分秒必争,往来于住宅与非机动车库之间过长的距离显然无法接受。
非机动车库仅设置了自行车坡道出入,独立于业主日常归家流线之外,往返出入距离过长,出行不便。
基于以上原因,才让业主将电动车推入电梯厅,停放在住宅疏散走道内,从而导致了悲剧的发生。
我们建议加强住宅地下大堂与非机动车库之间的可达性设计,将非机动车库分散设置在相邻楼座内,且在地下大堂附近或地下车库内设置出入口。同时在非机动车库与地下大堂之间设置安全走道或防火分隔,保障居住环境的安全性。通过地下大堂可以方便到达非机动车库,为非机动车出行的业主营造便利的出行条件,而相对独立的使用流线则降低了电动车引发人员伤亡的可能。

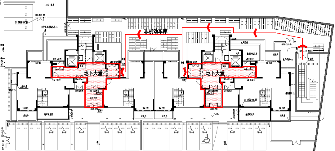
▲ 中铁建某项目非机动车库与地下大堂位置关系示意

▲ 非机动车库与地下大堂之间设通道
上图是中铁建集团某项目的成功案例,满足《高层民用建筑消防安全管理规定》相关要求,保障住户使用非机动车的安全:我们将配建的非机动车库(图中褐色填充区域)规模分解,确保地块内的五栋住宅均可以通过地下大堂或通道(图中红色填充区域)到达邻近的非机动车库。每栋楼均有邻近的非机动车库,大大缩短了从地下大堂到达非机动车库的距离,让业主更乐于通过非机动车出行。当然,分散设置非机动车库,工程造价会相应增加。
非机动车库设置的位置应避免出现从地下车库进入地下大堂需穿行非机动车库的情况,入户体验不佳,存在业主投诉隐患。建议在地下大堂另一侧增设通道,联系两侧非机动车库,同时减少对地下大堂的干扰。
▲ 非机动车库流线与进入地下大堂流线避免交叉
地下大堂的空间区域设计
地下大堂入口区
入口区安全方面,从地下车库进入地下大堂的门应设置门禁及对讲分机,保证归家安全。入口区应设置至少1.2米宽的入户通道,入口区布置车位的不得占用入户通道宽度。同时,地下大堂应避免紧邻地库行车道布置。如实在无法避免,建议设置一道宽2米左右的缓冲区域,便于人员出入时停留,观察是否有机动车经过,避免发生人车碰撞。

等候休息区
在高品质项目中,我们建议将地下大堂做得稍微大一些,面积可以从15平方米提高到30平方米左右(但不应超过地上大堂的规模)。这样就可以设置一个等候休息区,有足够空间能够设置一些休息座椅,供业主临时会客、聊天等。正如威廉怀特在《小城市空间的社会生活》中提到的那样:好的新公共空间推动人们产生新的生活习惯。我们在地下大堂内给人们提供一个可以驻足的地方,这里就有可能成为一个积极的有趣的空间。

大厅内装方面可以选择一些吸声较好的材料,比如:吸声吊顶板、纤维墙板、喷涂吸声材料等,有助于改善室内的声环境。
室内的光环境也是影响建筑与人的亲和程度的重要因素,恰当的光环境有助于人的情绪舒缓,心情愉悦。可以考虑在地下大堂上方设置采光天井引入自然光,改善地下空间的采光通风条件。采光天井适用于南方,特别是采用底层架空层设计的项目。通过在架空层区域内局部设置采光井,有效避免雨水侵袭,同时节约能源,符合绿色建筑可持续发展的设计原则。

生活服务区

▲ 地库储藏系统
目前大多数住区将垃圾投放区设置在地上,但在南京的一些小区,已试点将投放区域转入地下,减轻地面环境压力,把生活垃圾对环境的影响降到最低;每天清晨5时、夜间9时收垃圾时产生的巨大噪声转入地库;也避免了由于天气炎热,垃圾产生臭味,噪音和空气污染影响居民正常生活。避免日晒雨淋的同时,将垃圾投放和清运流线放到地下,这也是住区设计的趋势之一。投放区应独立设置,临近电梯厅,宜在地下大堂外,与地上住宅联系紧密,便于到达。当然即使在地下,难免有气味影响空气品质。建议借鉴国外的经验,业主定时段投放,物业及时清运,加快垃圾循环过程。
▲ 南京部分小区试行地下垃圾投放
0人已收藏
0人已打赏
免费2人已点赞
分享
居住建筑设计
返回版块28.74 万条内容 · 422 人订阅
阅读下一篇
室外铺装的材料与应用室外铺装多指用于人行道路或活动的地面,是连接建筑室内外的主要空间。现代设计中,室外铺装归类于景观设计范畴,是景观设计中最大的板块之一。与绿化不同的是,室外铺装作为活动的最主要载体,参与性极高,承担着几乎所有的通行和活动功能;除此之外,作为连接城市道路与建筑的纽带,铺装还起到协调、美化建筑与室外空间的作用,所以,优秀的铺装设计不但要安全、舒适、便捷,也要整洁美观,为环境增光添彩。
回帖成功
经验值 +10
全部回复(0 )
只看楼主 我来说两句抢沙发