多元的起源
( 六七千年前-公元前771)
一
新石器时期
六七千年前-公元前21世纪)
考古学文化:
考古学发现中,所观察到的共同体,指在同一时代,分布于共同地区,并且具有共同特征的一群考古遗存,以最早发现的地区命名。
仰韶文化:黄河中游地区
河姆渡文化:长江流域下游地区
龙山文化:黄河中、下游地区
一)河姆渡文化(公元前5000-公元前3300年):
1、建筑:
长江流域多水地区由巢居发展而来的干阑式建筑;
2、技术:
最早采用榫卯技术构筑木结构房屋--浙江余姚河姆渡村发现的建筑遗址距今约六七千年。
二)仰韶文化(母系氏族社会,公元前5000-公元前3000年):
1、选址:
黄河流两岸台地为基址,有初步区划布局;
2、建筑:
黄河流域由穴居发展而来的木骨泥墙房屋。
由半穴居发展成地面建筑、平面长方形、圆形;
3、技术:
采用石器、木架建筑技术水平新高度。
三)龙山文化(父系氏族社会,公元前2000左右):
1、城市:
城市初步孕育萌芽;藤花落古城遗址这是我国迄今发现的首例内外双重城墙结构的史前城址。
2、建筑:
套间式半穴居,平面成“吕”字形;
3、技术:
白灰抹面 / 发现土坯砖。
补充:穴居(横穴或地坑院、竖穴、半穴居)
横穴:利用黄土坡地向里开挖,形成横穴,称为窑洞,陕北窑洞即为原始横穴发展而来。
竖穴:即为向下开挖,穴上方覆盖草顶
半穴居:相比与穴居,其有向地面抬升的趋势,直壁部分减降低。竖穴向地面上发展也意味着土木的结合的必然性,直至完全成为地面建筑也就全是木的了。
四)红山文化(公元前4500-前3000年):
1、祭祀建筑类型——辽宁朝阳市建平县牛河梁女神庙(我国最古老的神庙遗址)
2、建筑群的概念——沿轴线展开的多重空间
牛河梁女神庙由一个多室的主体建筑和一个单间的辅助
建筑构成
二
青铜时代
(夏、商、西周-公元前21世纪—前771年)
一)夏(前2070-前1600)
1、都城:
河南偃师二里头遗址是夏末都城——斟鄩;
河南偃师二里头1号宫殿遗址
2、建筑:
茅茨土阶:用夯土作台基,茅草作屋顶
我国最早的规模较大的木架夯土建筑和庭院的实例--河南偃师二里头一号宫殿遗址(开启中国宫殿建筑先河);
单体可能出现“前堂后室”的空间划分,中国传统的院落式建筑群组合已经开始走向定型。
二里头1号宫殿遗址复原图
3、技术:
发现永定柱遗迹,木构架技术有较大提高。
二)商(前1600-前1046):
出现文字记载—甲骨文;手工业发展,生产工具进步以及奴隶的集中,建筑技术有较大提高。
1、都城:
西毫,形成三城相套格局,宫城(南北轴线上)、内城、外城(推测);
2、建筑:
a)轴线对称布局
b)出现最早的“前朝后寝”布局——盘龙城宫殿遗址
盘龙城宫殿1号、2号遗址
盘龙城宫殿1号遗址复原图
3、技术:
青铜工艺成熟、建筑技术水平有明显提高。
三)西周(前1046-前771):宗法制分封制度
1、城市:
严格的等级制度(城市规模、城墙高度、道路宽度等);
2、建筑:
a)代表性建筑遗址有陕西岐山凤雏村的早周遗址和湖北蕲春的干阑式木架建筑。
b)陕西岐山凤雏村遗址这组建筑规模并不大,却是我国已知最早,最严整的四合院式建筑;
c)前堂后室——两进院落
3、技术:
a)瓦的发明---使西周脱离“茅茨土阶”阶段(并未普遍使用)。
b)铺地方砖、三合土抹面。
陕西岐山凤雏村遗址
四)春秋(前770-前476):井田制崩解
分封制度:
周王把土地和人口分给同姓贵族功臣和先代贵族,建立诸侯国。各诸侯国必须承认周王的权威,服从周王室的政令,并承担各种义务。
宗法制:
为巩固分封制形成的统治秩序,解决贵族之间在权力、财产和土地继承上的矛盾。把血缘纽带同政治关系相结合,以嫡长子继承制为核心,稳定了统治阶级内部的统治秩序。
井田制:
井田制是一种土地划分制度,将土地划分为井格状,分为公田和私田,出现于商朝,西周时发展成熟,春秋时期,由于铁制农具的和牛耕的普及等诸多原因逐渐瓦解,代之封建地主土地关系形成。
1、建筑:
高台建筑(台榭建筑)产生;
装饰“山节藻棁”(斗上画山,梁上短柱画藻文)
2、技术:
瓦开始普遍使用
砖开始使用,出现空心砖。
三
封建社会前期
(战国至南北朝 前475-公元589)
一)战国(前475-前221):
1、城市:
a)出现城市建设的高潮;
b)《考工记》我国最早的城市规划学说;
c)“匠人营国,方九里,旁三门。国中九经九纬,经途九轨。左 祖右社, 前朝后市,市朝一夫”
2、建筑:
盛行高台宫室(台榭建筑);
3、技术:
a)榫卯技术发展;
b)陶排水系统。
战国榫卯
《考工记》王城图
宋人聂崇义所绘
二)秦(前221-前206):统一全国
公元前221年,秦灭六国,建立中国历史上第一个统一的国家。
1、城市:
秦都城咸阳摒弃传统城郭制度,布局独特。
2、建筑:
a)宫殿阿房宫
b)防御秦长城
c)陵墓秦始皇陵(封土为陵,开创陵园制度)
城郭制度:
a)“筑城以卫君,造郭以守民”,中国古代都城历代基本或多或少都存在着城郭之制,只是或明显或不明显。
b)由原始社会聚落的集体防御发展而来,最早期的城市是具有聚落防御的特点的,也就是濠沟防御,慢慢的出现了城墙环绕的防御。
c)首次完成三城(郭城、内城、宫城)相套格局的是在北魏洛阳城


三)汉(前206-公元220):大一统时期,建筑发展高潮
1、城市:
汉长安城(八街九陌) :依靠旧城建设新城,秦兴乐宫旧址建设
a)平面不规则,北靠渭水
b)城内零零散散布置几座宫殿,桂宫、北宫的北侧分布着东西二市
c}每座宫殿都有城墙环绕,长乐宫与未央宫之间有一巨大的武库
d)南郊有礼制建筑——明堂辟雍
e)东南西北四面都各开有三座城门,符合《考工记》中“旁三门”的记载。
f)“八街九陌”:通向城门的八条主干道就是八街。“八街九陌”说明了西汉长安城纵横的街道划分形式,但各条纵横街道也是不规整的
g)七座陵邑(东南、北面郊区)
h)汉代属于里坊制的确立时期,里坊的划分还未成熟,布局还不规整。
2、建筑:
1. 形成中国古代建筑的基本类型,包括:
a)皇家建筑:宫殿、陵墓、苑囿等
b)礼制建筑:明堂、辟雍、宗庙等
c)居住建筑:坞壁、第宅等
d)东汉末期出现佛教建筑:洛阳白马寺,中国史载最早的寺庙,以佛塔为中心的方形庭院平面(东汉末年,汉明帝时建);
2.木架建筑逐渐成熟,砖石建筑和拱券结构有很大发展;
3.抬梁式、穿斗式木构架形成,多层木架建筑已较普遍,多层重楼;
4.建筑组群已经达到庞大规模,未央宫。
“明堂辟雍”是中国古代最高等级的皇家礼制建筑之一,明堂是古代帝王颁布政令,接受朝觐和祭祀天地诸神以及祖先的场所。辟雍即明堂外面的环水,环水为雍(意为圆满无缺),圆形像辟(辟即璧,皇帝专用的玉制礼器),象征王道教化圆满不绝。
5.斗拱普遍使用(一斗二升、一斗三升等)柱头铺作和补间铺作;
6. 悬山顶和庑殿顶普遍应用,歇山顶也已出现。
3、技术:
a)木构架结构与施工技术巨大进步,但还没有解决大空间建筑技术问题;
b)制砖技术和拱券结构巨大进步(主要用于陵墓);
c)金属工具进步,石建筑得到发展(东汉突飞猛进),地下石墓,地上墓阙等。
d)陵墓:“黄肠题凑”(高颐墓石阙西阙平面和立面)
四)三国、魏晋、南北朝(206-589):
战争不断、长期分裂状态,建筑方面主要继承和运用汉代成就,属于建筑发展的融合期。
1、城市:
曹魏邺城(开创了里坊制城市格局)
北魏洛阳(首先完成了三城相套格局)
2、佛教建筑盛行:建塔、立寺、开窟、造像
佛寺:
a)源于印度“中心塔型”和基于“舍宅为寺”的“宅院型”两种;
b)北魏最大的佛寺——洛阳永宁寺;
佛塔:埋藏舍利
a)楼阁式、密檐式、金刚宝座式、单层塔等形式;
b) 我国现存最早的佛塔——河南登封嵩岳寺塔(密檐塔);
c)北魏最宏伟的木塔——永宁寺塔
3、石窟:
起初沿着丝绸之路建设,最早克孜尔石窟,其后敦煌莫高窟,之后转向中原地区,石窟从根据建筑功能布局分为:
a)塔院型,源于印度支提窟,以塔为窟的中心(大同云冈石窟较多);
b)佛殿型,以佛像为主要内容;
c)僧院型,印度毗诃罗,供僧人打坐修行之用;
四大石窟:
甘肃敦煌莫高窟:五胡十六国时期始建;
甘肃天水麦积山石窟:十六国后秦时期;
山西大同云冈石窟:北魏时期始建;
河南洛阳龙门石窟:北魏孝文帝时期;
3、园林发展:
形成皇家园林与私家园林并立格局;
a)皇家园林:贵族豪门追求奢华生活,以园林为游宴享乐之所;
b)私家园林:士大夫玄谈玩世,逃避世事,寄情山水,脱离尘世;
c)自然山水式园林重大发展(自然山水式园林秦汉兴起)。
4、石刻:
河北正定北齐石柱(梭柱)
5、家具:
“胡坐”传入,席地坐开始向垂足坐转变。
四
封建社会中期
(隋至宋 581-1279)
一)隋(581-618):
封建社会的鼎盛时期,结束长期的混乱和分裂局面,统一中国。
1、城市:
大兴城(宇文恺,我国古代宏伟、严整的方格网道路系统城市规划的范例,最大的城市)
东都洛阳(宇文恺,东都洛阳城作为隋唐长安城的陪都,属于新建城市)
2、建筑:
a)河北赵县安济桥。它是世界上最早出现的敞肩拱桥(或空腹拱桥),大栱由28道石拱并列而成,跨度达37m。
b)神通寺四门塔(画图),最早单层石塔。
二)唐(618-907):
1、城市:
a)规模宏大,规划严整,唐长安,继续以大兴城为都城,又加以扩充;
b)里坊制布置108坊,道路宽直。
2、建筑:
a)建筑群处理愈趋成熟。纵深轴线布局,突出主体;
b)木建筑解决了大面积,大体量的技术问题,并已定型化;
c)砖石建筑进一步发展,砖塔,阁楼式砖塔大雁塔,密檐塔小雁塔、登封法王寺塔,单层塔登封惠善寺净藏禅师塔;
3、技术:
设计与施工水平提高,“都料”工官;
4、装饰:
a)建筑艺术加工的真实与成熟;
b)气魄宏伟、严整又开朗;
c)艺术加工与结构的统一,在建筑物上没有纯粹为了装饰而加上去的构件,也没有歪曲建筑材 料性能使之屈从于装饰要求的现象。
三)五代(960-1279):
藩镇割据,分裂时期
喻皓《木经》是一部关于房屋建筑方法的著作,也是我国历史上第一部木结构建筑手册。
四)宋(618-907):
两宋手工业与商业的发达,使建筑水平也达到了新的高度
1、城市:
a)城市结构和布局起了根本变化。废除里坊制,取消了宵禁,实行厢坊制/街坊制/街巷制,形成开放式的城市布局;
b)标志着中国古代沿用1500年的城市布局里坊制的结束。
2、建筑:
a)建筑组合方面,在平面上加强了进深方向的空间层次,以便衬托出主题建筑,案例隆兴寺;
b)建筑装修与色彩有很大发展。琉璃瓦,彩画(五彩遍装、碾玉装、青绿叠晕棱间装、解绿装、丹粉刷饰)废除席地而坐,采用桌椅;
c)砖石建筑的水平达到新的高度。主要是佛塔,宋代木塔很少采用,砖石塔较多;
五彩遍装
碾玉装
青绿叠晕棱间装
河北正定隆兴寺
3、技术:
木架建筑采用了古典的模数制,《营造法式》“以材为祖”。
4、园林:
园林兴盛,北宋皇家苑囿“艮岳”。
补充:
河南开封佑国寺塔————最早的琉璃塔。
河北定县开元寺料敌塔——现存最高古塔84m
福建泉州开元寺双石塔——规模最大石塔
五)辽代(907-1125)、金(1115-1234)
a)辽代山西应县佛宫寺释迦塔,是我国唯一的木塔,是古代木构高层建筑的实例,高度是67.31m。
b)辽金采用“减柱造”、“移柱造”
二
封建社会后期
(元明清1279-1911)
一)元(1279-1368):
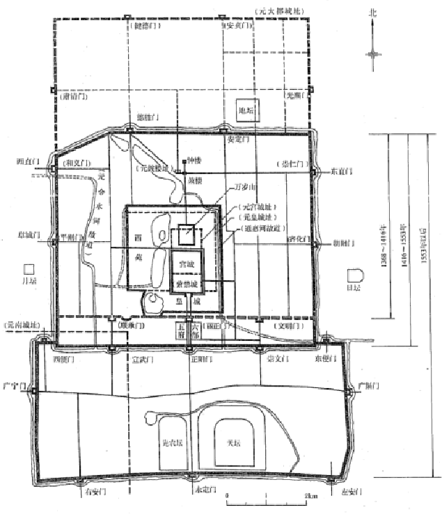
1、城市:
·元大都——规模宏大
2、宗教建筑兴盛:
a)藏传佛教发展迅速:北京妙应寺白塔——喇嘛塔
b)道教得到快速发展:山西芮城永乐宫
3、建筑:
a)木架建筑继承宋、金传统,规模稍逊,构件简化;
b)减柱造,广胜下寺大殿;
二)明(1368-1644):
1、砖已普遍用于民居砌墙。大量使用空斗墙,出现全砖无梁殿。
明清时期又出现了新的砖石建筑类型——无梁殿,建筑用砖石垒砌或砌筑拱券等方式,没有传统木构建筑那样的层层叠叠的梁架,也无柱,整个建筑的承重由砖石承担,因此叫"无梁殿",也叫"无量殿"。
最早"无梁殿":南京灵谷寺无梁殿;
2、琉璃面砖琉璃瓦质量提高,应用面更加广泛;
3、木结构方面,形成新的定型的木构架:
a)斗拱结构作用减小,梁祝构架整体性加强,构件卷杀简化;
b)柱头斗拱不起结构作用,昂成装饰构件;
c)建筑严谨,没有升起和侧脚;
4、建筑群的布置更为成熟。
a)明孝陵和十三陵,善于利用地形和环境形成陵墓肃穆气氛;
b)北京天坛,利用环境以及纵深空间布局烘托祭祀建筑神圣氛围;
c)紫禁城,在1.6km的轴线上,用连续的、封闭的、对称的空间形成逐步开始的建筑序列;
5、官僚地主私园发达。江南园林;
苏州拙政园
6、官式建筑装修、彩画、装饰日趋定式化。
a)以旋子彩画为主;
b)明代家具闻名于世,
c)风水术极盛。
三)清(1636-1911):大体沿袭明代传统
1、园林达到极盛期
a)皇家园林:北京三山五园(三山:万寿山、香山、玉泉山,五园:颐和园、静宜园、静明园、畅春园和圆明园)以及承德避暑山庄等;
b)私家园林:江南园林,造园高潮;
2、藏传佛教建筑兴盛。
a)布达拉宫;
b)承德避暑山庄的“外八庙”;
布达拉宫
3、住宅建筑百花齐放,丰富多彩。民俗性,地域性;
4、简化单体设计,提高群体与装修设计水平。
a)雍正十二年颁布《工部做法则例》,诸作做法,用料用工;
b)“样式雷”家族;
5、建筑技术有所创新。
a)水湿压弯法;
b)对接和包镶法;
c)引用玻璃;
知识点:中国古代建筑发展概况
0人已收藏
0人已打赏
免费0人已点赞
分享
中国建筑史
返回版块5.15 万条内容 · 173 人订阅
回帖成功
经验值 +10
全部回复(0 )
只看楼主 我来说两句抢沙发