知识点:连接汇流条
一、电缆沟尺寸
外电源电缆沟深度为900mm,沟底部宽度为400mm,上部宽度为600mm。

二、电缆沟施工
1.根据电缆沟的宽度,确保足够的工作空间,划出边线;
2.在电缆沟开挖前,探明地下管线走向标高,并开挖样洞,做上标记,施工中随时监测,并加以保护; 
请点击此处输入图片描述
3.在道路口和电缆沟周围设置全封闭安全护栏,设置警示带; 4.电缆沟土不得堆放在电缆沟附近妨碍施工,也不得阻碍交通。 5.沟槽开挖时,应符合以下要求: (1)不得影响各种管线和其他设施的安全;

请点击此处输入图片描述
(2)不得掩埋消火栓、管道闸阀、雨水口、测量标志以及各种地下管道的井盖,且不妨碍其正常使用;
6.电缆沟底埋有块石、树根、废桩等物体,应该予以清除或铲除。 7.底部需要修整平整后才能敷设电缆保护管,然后用细土回填夯实;
8.电缆保护管预埋为φ160的涂塑钢管;壁厚为4.5mm,电缆保护管内径不得小于电缆外径的1.5倍; 
请点击此处输入图片描述
9.金属电缆保护管应先去管口的毛刺,采用管套连接,并用螺丝紧固,连接密封良好;
10.电缆穿管埋深不满足900mm时,电缆穿管应采用C15混凝土包封处理,但埋深不得小于600mm。
请点击此处输入图片描述
三、电缆标示桩
开挖电缆沟应设标示桩,标示桩应埋在电缆的起点、止点,转角直线段每个20-30米设置一个标示桩;

请点击此处输入图片描述
2.标示桩在道路上时,桩顶与路面齐平;在绿化带桩顶高出地面150mm; 3.电缆标示桩采用150#钢筋混凝土预制,埋设于电缆壕沟中心; 4.电缆标示桩根据现场情况选用合适形式。 5.标示桩符号如下图:

请点击此处输入图片描述
四、电缆井开挖及其浇筑
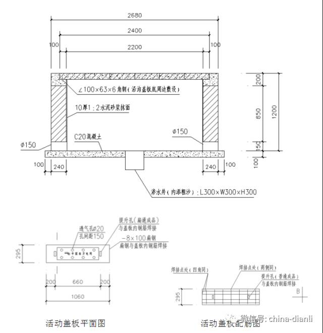
1.一根电缆的中间头井尺寸为2580*1280*1200(mm).基坑开挖好以后,在底层浇筑10cm厚C20混凝土底层,在底部留渗水井规格为300*300*300(mm),内添粗沙。
同时采用规格240*115*53(mm)的砖经行砖砌同时在基础底层上预埋φ150的凃塑钢管,砖砌高度为1m,然后用C20混凝土浇筑,厚度为200,同时预留盖板位置。盖板采用钢筋混凝土浇筑,具体规格如图所示:
请点击此处输入图片描述

请点击此处输入图片描述
2.砖砌采用M10砂浆砌筑,内壁用10mm后1:2水泥砂浆抹面; 3.盖板钢筋保护层厚度为20mm; 4.中间头井只允许做一个中间电缆头;
5.图中电缆穿管位置为示意,实际工程中视埋管深度确定。 
请点击此处输入图片描述
五、人行道等市政基础设施的恢复。
1.地基处理
(1)回填以后,人工清理平整基坑,清理坑内杂物,并对基坑进行夯实; (2)夯实地基后铺设石粉层,石粉层夯实后沟槽最终深度为15cm。 
请点击此处输入图片描述
2.混凝土垫层及面砖层铺设
(1)铺设混凝土垫层;混凝土垫层采用强度C15混凝土,浇筑厚度控制在8-9cm; (2)面砖层铺设前应带线,面砖高度应与周边原有面砖一致,面砖铺设应横平竖直; (3)砖铺设时,砖要轻放,用橡胶锤轻击砖的中心,如砖不平,应拿起砖平垫砂浆重新铺筑,不准向砖底塞灰或支垫硬料,必须使砖平铺在满实的砂浆上。
3.浇水养护
请点击此处输入图片描述
(1)面砖铺设完成后,禁止行人在上面行走,并适时洒水养护,当水泥砂浆达到设计强度后,方可开放交通;
(2)前期浇水应采用小桶倾洒,不得冲掉面砖勾缝砂浆。一次不宜过多,控制在面层,不积水为宜。
相关推荐链接:
0人已收藏
0人已打赏
免费0人已点赞
分享
成套电气设备
返回版块15.97 万条内容 · 620 人订阅
回帖成功
经验值 +10
全部回复(1 )
只看楼主 我来说两句 抢板凳需要技术交底,对电缆路径及辐射位置,封堵情况、防火情况进行交底
回复 举报