虎峰山·寺下山隐民宿
以下图片来源: 悦集建筑,版权归其所有,仅供学习交流使用




▼总平面图,site plan

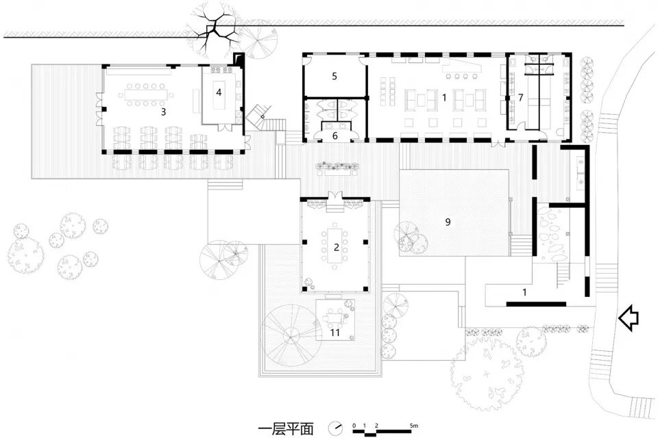
▼一层平面图,first floor plan

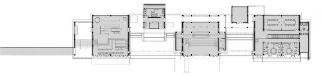
▼二层平面图,second floor plan

▼三层平面图,third floor plan

▼立面图,elevations


▼剖面图,sections


案例二
Hangzhou Haishu School of Future Sci-Tech City
以下图片来源: 零壹城市建筑事务所 ,版权归其所有,仅供学习交流使用







案例三
庭瑞小镇 – 斗山驿文化会客厅
以下图片来源:UAO 瑞拓设计 ,版权归其所有,仅供学习交流使用



▼平面图,plan ?UAO

▼咖啡厅剖透视,cafe section

▼婚礼堂剖透视图,wedding hall section

▼接待区剖透视图,reception hall section

知识点:组合坡屋顶设计案例
0人已收藏
0人已打赏
免费1人已点赞
分享
居住建筑设计
返回版块28.74 万条内容 · 423 人订阅
回帖成功
经验值 +10
全部回复(0 )
只看楼主 我来说两句抢沙发