联排住宅
1、概述
定义
一般由3-6个住宅单元拼联组成,每个单元为一户,每套地上2-3层,两套之间共用分户墙。每套独门独院,设有1-2个车位,一般设有地下室。
特征
1.联排式住宅多建在城市郊区,居住环境更加贴近自然,小区绿地率较高,景观比较优美。
2.联排式住宅一般宜采用大进深、小面宽的套型平面组合形式。
3.联排式住宅一般除比普通住宅享有更为完善的居住功能外,常可拥有独立车库、私家庭院、露台、休闲阳台等辅助空间。
4.平面组合比较灵活,拼接方式可釆用平接式、错接式及U形连接形式。
设计要点
1.建筑规模控制在每户300m2以下,建筑层数控制在地上2-3层之间。
2.在套型设计方面,起居、会客、餐厅、卧室等功能空间都有相对独立的区域,主辅流线清晰,互不干扰。具有独栋住宅的功能特征,并可满足经济型要求。
3室内空间设计力求丰富,可利用阳光中庭增加采光与通风面,并通过客厅或餐厅、下沉庭院、错层处理等手法,提升套型品质。
4.室外空间设计注重美观与功能相结合。设置入户花园和独立庭院,结合起居厅及卧室的屋面设置露台。
5.每套设置独立车位或车库,人车分流。
平面组合
联排式住宅不宜少于4个一组,也不宜过长。可釆用平接、错接、U形接等组合方式,形成丰富的空间形态。

表格与内容来源:《建筑设计资料集》 (第三版),中国建筑工业出版社,2017年06月,第2分册,分册主编单位:清华大学建筑设计研究院有限公司,分册联合主编单位:重庆大学建筑城规学院,P113.



图片来源:《建筑设计资料集》 (第三版),中国建筑工业出版社,2017年06月,第2分册,分册主编单位:清华大学建筑设计研究院有限公司,分册联合主编单位:重庆大学建筑城规学院,P113.







图片来源:《建筑设计资料集》 (第三版),中国建筑工业出版社,2017年06月,第2分册,分册主编单位:清华大学建筑设计研究院有限公司,分册联合主编单位:重庆大学建筑城规学院,P114.


![]()

图片来源:《建筑设计资料集》 (第三版),中国建筑工业出版社,2017年06月,第2分册,分册主编单位:清华大学建筑设计研究院有限公司,分册联合主编单位:重庆大学建筑城规学院,P114.



图片来源:《建筑设计资料集》 (第三版),中国建筑工业出版社,2017年06月,第2分册,分册主编单位:清华大学建筑设计研究院有限公司,分册联合主编单位:重庆大学建筑城规学院,P114.
2、案例
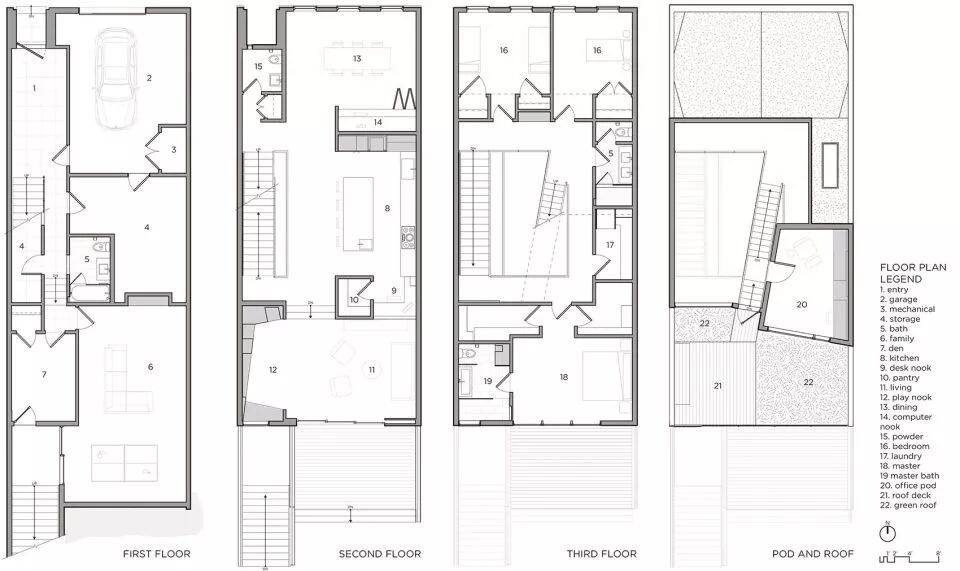
(1)案例一:Fifty Wun住宅,旧金山 / Feldman Architecture
以下图片来源:Feldman Architecture ,版权归其所有,仅供学习交流使用




四、双拼住宅
1、概述
定义
双拼住宅比联排住宅用地面积大由两个单元并联组成,每个单元为一套,两套之间共用分户墙,一般釆取两套成对称布局。
特征
1.相较联排住宅,双拼住宅一般拥有三个采光面,套型品质与景观条件优越,室内空间面积利用充分。
2.双拼住宅建筑密度相对较低,每套拥有较宽阔的室外空间。
3.住宅单体布局兼顾邻里交流和独立私密性。
设计要点
1.双拼住宅建筑规模一般每套为200~400㎡,建筑层数一般为2层或3层
2.在套型设计方面,应以联排住宅的设计要点为基础,并充分利用三个采光面的优势条件,合理组织套型的釆光通风,靠外侧的居室可布置两个方向的外窗。
内容来源:《建筑设计资料集》 (第三版),中国建筑工业出版社,2017年06月,第2分册,分册主编单位:清华大学建筑设计研究院有限公司,分册联合主编单位:重庆大学建筑城规学院,P115.
2、案例



图片来源:《建筑设计资料集》 (第三版),中国建筑工业出版社,2017年06月,第2分册,分册主编单位:清华大学建筑设计研究院有限公司,分册联合主编单位:重庆大学建筑城规学院,P115.


图片来源:《建筑设计资料集》 (第三版),中国建筑工业出版社,2017年06月,第2分册,分册主编单位:清华大学建筑设计研究院有限公司,分册联合主编单位:重庆大学建筑城规学院,P115.


![]()

图片来源:《建筑设计资料集》 (第三版),中国建筑工业出版社,2017年06月,第2分册,分册主编单位:清华大学建筑设计研究院有限公司,分册联合主编单位:重庆大学建筑城规学院,P115.





图片来源:《建筑设计资料集》 (第三版),中国建筑工业出版社,2017年06月,第2分册,分册主编单位:清华大学建筑设计研究院有限公司,分册联合主编单位:重庆大学建筑城规学院,P115.
五、合院式住宅
1、概述
定义
一般由4-6户低层住宅共同围合成院落空间的组成形式,称为合院式住宅。
优点
1.可共享层次丰富、富于变化的院落空间
2.有利提高居住密度,节约用地。
3.可兼顾密切邻里关系和各户生活的私密性。
4.同一院落中不同住户间容易交往,关系较为紧密。
设计要点
1.应注意避免套型之间的视线和噪声干扰。
2.应注意各户日照、采光和通风的均好性处理。
3.应加强建筑及院落空间的排水设计和消防疏散设计。
4.应加强共用公共入口及公共院落的景观设计
5.宜设计地下车库,实现人车分流,从车库直接入户。
平面组合
合院式住宅可采用四套式合院、六套式合院等组合方式。
图片与内容来源:《建筑设计资料集》 (第三版),中国建筑工业出版社,2017年06月,第2分册,分册主编单位:清华大学建筑设计研究院有限公司,分册联合主编单位:重庆大学建筑城规学院,P116.
2、案例
(1)案例一:江苏深深·深宅 / 来建筑设计工作室
以下图片来源:来建筑设计工作室 ,版权归其所有,仅供学习交流使用




▼总平面图,site plan




知识点:联排住宅设计案例
0人已收藏
0人已打赏
免费1人已点赞
分享
居住建筑设计
返回版块28.74 万条内容 · 423 人订阅
回帖成功
经验值 +10
全部回复(0 )
只看楼主 我来说两句抢沙发