1、概述
独立式住宅是指独门、独户、独院, 不与其他建筑相连建造,并有独立院子 的低层住宅。又称为独栋住宅。
特征
1.住宅周围一般有面积不等的花 园或院落,社区有较大的中心绿地,环 境较好。建筑品质相对其他类型住宅较 高,建筑的房间一般都能拥有良好的日 照、采光和自然通风。
2. 独立式住宅的小区由于建筑布局 较分散,住户之间距离较大,每户到公共 服务配套设施的距离也较大,出行方式 主要依靠汽车。
3. 独立式住宅面积一般较大,要求 私密性较强。
4. 与普通住宅相比,独立式住宅除 了具有一般住宅的基本功能外,细化了 空间分工,一般设有门厅、车库、阁楼、 露台及私家花园等,各辅助服务空间的 配置标准和舒适度也明显提高。
5. 设计时,应注意主要居室朝向与 室外景观的视线联系。
内容来源:《建筑设计资料集》 (第三版),中国建筑工业出版社,2017年06月,第2分册,分册主编单位:清华大学建筑设计研究院有限公司,分册联合主编单位:重庆大学建筑城规学院,P111.
2、案例
(1)案例一:安吉桃花源未来山,湖州 / 蓝城设计
以下图片来源:蓝城设计 ,版权归其所有,仅供学习交流使用




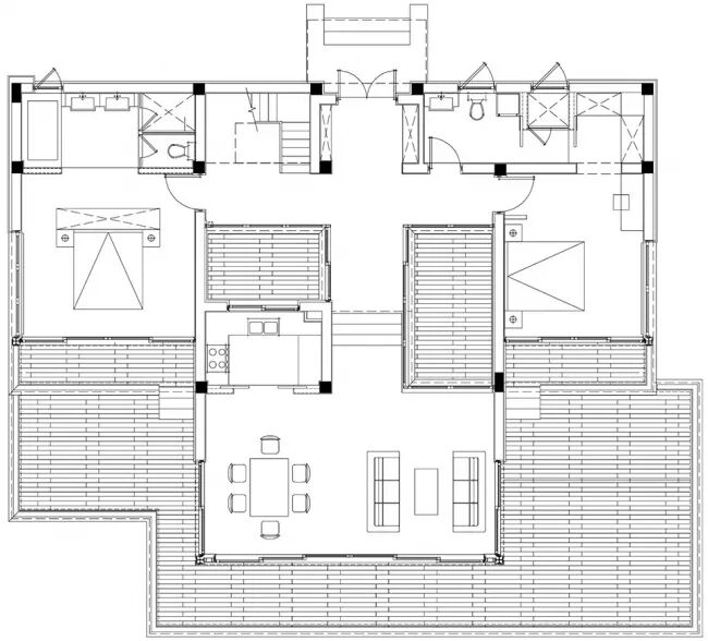
▼L1户型一层平面图,1st floor plan

▼L1户型二层平面图,2nd floor plan

▼立面图,elevation

▼剖面图,section

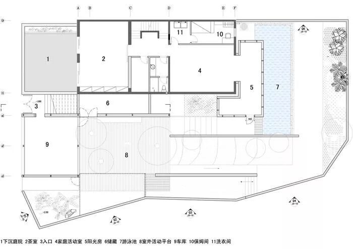
(2)案例二:孟宅,中国 / 陶磊建筑事务所
以下图片来源:TAOA 陶磊建筑事务所 ,版权归其所有,仅供学习交流使用






知识点:独立式住宅设计案例
0人已收藏
0人已打赏
免费1人已点赞
分享
居住建筑设计
返回版块28.74 万条内容 · 423 人订阅
阅读下一篇
住宅设计基本内容基本功能空间的划分 1. 根据现行规范要求,每套住宅必须设置卧室、起居室(厅)、厨房和卫生间等基本功能空间。 2. 住宅的分户界限应明确,必须独门独户,应将基本功能空间设计于户门之内,不得与其他套型共用或合用。 3. 基本功能空间不等于房间,不一定要独立封间,不同的功能空间有可能部分重合或相互“借用”。比如在极小套型中,起居功能空间就可与卧室功能空间合用。 图片来源:《建筑设计资料集》(第三版),中国建筑工业出版社,2017年06月,第二分册,分册主编单位:清华大学建筑设计研究院有限公司,分册联合主编单位:重庆大学建筑城规学院,P98.
回帖成功
经验值 +10
全部回复(0 )
只看楼主 我来说两句抢沙发