土木在线论坛 \ 建筑设计 \ 建筑资料库 \ 50个天窗节点构造详图——建筑详图

50个天窗节点构造详图——建筑详图

发布于:2022-10-12 15:33:12 来自:建筑设计/建筑资料库 [复制转发]
来源:网络

如有版权问题,请联系删除


图片

图片

屋面采光天窗构造大样图

图片

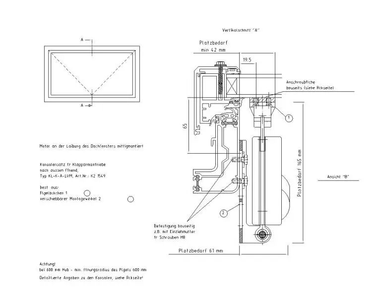
电动开窗详细节点-顶悬外翻窗,窗台固定

图片

电动开窗详细节点-内倒窗-折臂式EA-KL

图片

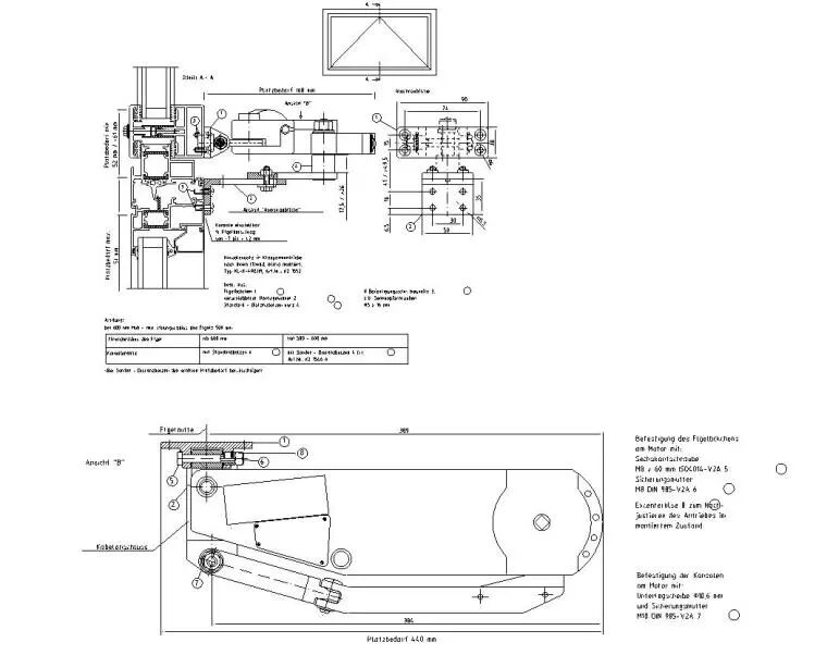
电动开窗详细节点-天窗-折臂式

图片

电动开窗详细节点-斜屋顶天窗

图片

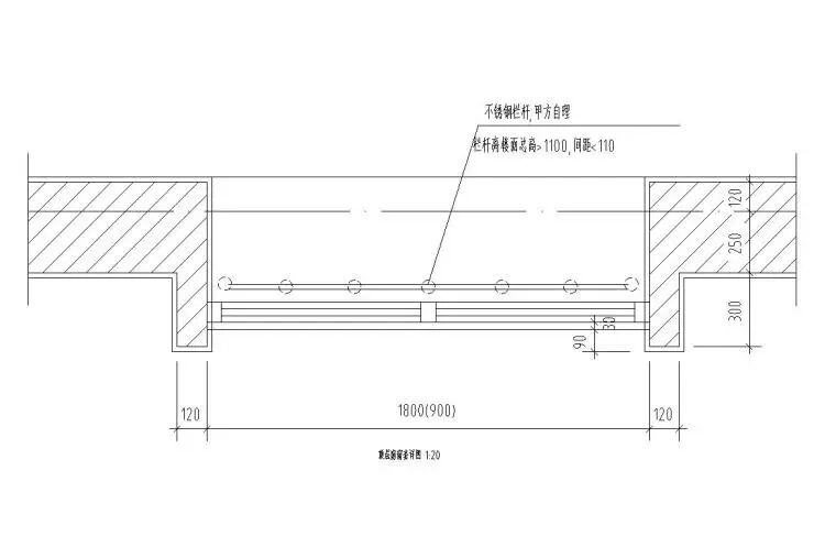
顶层窗窗套详图

知识点:天窗节点构造详图

全部回复(0 )

只看楼主 我来说两句抢沙发
这个家伙什么也没有留下。。。

建筑资料库

返回版块

13.61 万条内容 · 213 人订阅

猜你喜欢

阅读下一篇

楼梯踏步及护栏装饰装修构造节点

石材踏步节点 说明: 1.楼梯净宽指墙面至扶手中心线或两侧扶手中心线之间的水平距离。 2.楼梯栏杆扶手的安装位置需保证楼梯净宽符合相关规范要求。 弹性地材踏步节点 木质踏步节点 说明: 1.木龙骨和基层板均需做防火、防腐处理。 2.木地板亦可采用木地板专用胶直接粘贴。 地砖与地毯踏步节点 石材踏步节点(钢楼梯) 说明: 楼梯踏步的侧踢板安装也可采用点粘方式,将面材直接粘在钢板上。

回帖成功

经验值 +10