土木在线论坛 \ 建筑设计 \ 中国建筑史 \ 石库门建筑修缮技艺

石库门建筑修缮技艺

发布于:2022-09-29 15:47:29 来自:建筑设计/中国建筑史 [复制转发]

石库门是一种融汇了西方文化和中国传统民居特点的新型建筑,是具中国特色的居民住宅。

图片

本图片来源:网络


哲匠之家前期介绍了石库门建筑的营造技艺(戳上图可了解),本篇介绍石库门建筑的修缮技艺。



一、屋面


石库门建筑的屋面是从江南民居硬山屋顶演变而来,由木构架、桁条、椽子、望板和瓦片构成,后期石库门建筑为了避免屋面雨水顺檐口滴下影响人流,在檐口设置了封檐板,并加做白铁皮横水落,形成有组织的排水功能。


屋架

图片


一般取洋松成材方木或圆筒形木,以 6m跨度为例,木屋架各构件截面尺寸(参考):

1)天平大料125mm~150mm*250~300mm

2)人字木125mm~150mm*200mm~250mm

3)中桐125mm~150mm*250~300mm

4)斜撑125mm~150mm*200mm


图片


图片



连接固定木屋架的铁器附设件

图片


图片


图片


图片


图片


图片


图片


图片

端、节点下弦用串杆夹板加固示意图


图片

端、节点下弦用串杆夹板加固示意图


图片


图片

平瓦屋面构造


图片


图片


图片


图片


图片


图片


图片


图片


图片


图片


图片


图片


图片


图片


图片


图片


各类白铁防水构件的施工工艺


人字天沟

其形成于两屋面檐口,在处于同一水平状平行相交或重叠交接在平行线上所形成朝上的一条搭接沟,其截面就像一个倒写的人字,故称为人字天沟,包括一斜势前高后落水的老虎窗屋面与大屋面相交形成的一条天沟也叫人字天沟,天沟展开角度一般大于90°,也应该由相交屋面坡度来定。白铁天沟横截面尺寸大小视屋面在此天沟的聚流水量决定。一般分为两种 18″(450mm)、24″(600mm)。在预制天沟构件时,其人字的两边缘应制作成 Z形翻边口,人字底角应平直翻边口与底角都应该或为一条硬直线,不能有折痕。

图片


图片


单向落水,只要垫高一头,双向落水,则中间垫高就行了。一般垫衬泛水坡在 1/100~1/150 之间和顺地向水流方向落低。


天沟构件之间的搭接长度必须>40mm 以上,搭接焊缝采用烙铁焊,将熔锡流入接头缝内两端,焊锡焊牢。

图片


图片


斜沟

由两个屋面的流水坡面垂直相交聚合成阴角的一条斜向流水槽,称为斜沟;用白铁皮制作的引流水构件,称为白铁斜沟,构件横截面其形状如同倒写的人字(与人字天沟截面相同,制作过程也相同)。根据屋面大小及排水量的不同,构件截面分为 18″(450mm)、24″(600mm)两种。


图片


簸箕天沟

屋面檐口与垂直墙体相交或与出屋面烟囱相交,所形成夹角<90°,用白铁皮做成的一条防水沟,其横截面又如同簸箕侧立面,所以称为簸箕天沟。

图片


图片


图片


图片


靠墙凡水

是檐口朝外单向落水的半只屋面,其后屋面最高处平行、紧贴于临近墙面上所产生的缝隙,用白铁皮制作成坡小板状,对其缝隙作防水构件叫靠墙凡水。构件横截面成 L 型,靠墙竖立部高 4″~6″(100mm~150mm);遮盖瓦片斜平面宽6″~8″(150mm~200mm)。在半张瓦片情况下,宽度以勾住瓦头为准,构件竖向上口有 10mm 宽向外的小反边;底平面外口有向下 20mm、>90°的反口折边。

图片

砖挑岸塘汎水


图片

靠墙汎水


靠墙落底凡水

当坡屋面的平屋脊线与山墙的夹角<90 (水平投影面)时,屋面与山墙相交于一条自屋脊至檐口的内向斜直线,致使每排紧靠山墙瓦片上宽下窄瓦的斜边造成瓦片逆向接水不能顺畅排出屋面。为防雨水渗漏进屋面内,故在山墙面与瓦片之间留出一条宽 6″~8″(150~200mm)排水沟。从屋脊到檐口的带状引流水位置,用白铁皮制作成类同簸箕天沟状,但其夹角为 90°的防水构件,称靠墙落底凡水。

图片


图片


靠墙踏步凡水(用白铁皮制成的单个防水构件)

安装时,顺着墙体与瓦片交接缝,自第一排瓦片开始逐一向上到屋脊为止,形成一个上下叠接,串联成阶梯踏步式防水体系,称为靠墙踏步凡水。


图片


图片


图片


图片


烟囱凡水

在砖砌烟囱四周做的汎水,有踏步汎水、靠墙岸塘汎水、和簸箕汎水。

图片


平瓦屋面的有关尺寸应符合下列要求:

1.脊瓦在两坡面瓦上的搭盖宽度,每边不小于40mm

2.瓦伸入天沟、檐沟的长度为50~70mm

3.天沟、檐沟的防水层伸入瓦内宽度不小于150mm

4.瓦头挑出封檐板的长度为50~70mm

5.突出屋面的墙或烟囱的侧面瓦伸入泛水宽度不小于50mm


出屋面各类设备管防水构件

在预制防水构件前,先对坑管在屋面上的位置、坑管直径大小做一了解并丈量尺寸大小。防水构件采用上下搭接顺排水,分两个半块制作,在中心线位置按管径大小形成半圆形凹口,并上翻10~15mm,放出叠接余量。

图片


图片


屋面聚流水白铁构件系列施工工艺

图片
图片


图片



图片
图片


图片


图片


图片


中瓦屋面

图片


图片


图片


图片


图片
图片
图片
图片
图片
图片
图片


工艺流程

瓦片卸落地→清扫基层→基层修复→出楞做脊→铺设底瓦及盖瓦→调瓦楞→粉瓦箍头


(A)老头瓦伸入脊内长度不得小于瓦长的1/2,脊瓦应座中,两坡老头瓦必须碰头

(B)滴水瓦挑出瓦口板的长度不得大于瓦长的2/5,且不得小于20mm

(C)斜沟底瓦搭盖不得小于150mm(或底瓦搭接不得少于一搭三)

(D)斜沟两侧的百斜头伸入沟内不得小于50mm

(E)底瓦搭盖外露不得大于1/3瓦长(一搭三)

(F)盖瓦搭盖外露不得大于1/4瓦长(一搭四),厅堂、亭阁、大殿的盖瓦搭盖不得大于1/5瓦长(一搭五)

(G)盖瓦搭盖底瓦,每侧不得小于1/3盖瓦宽

(H)突出屋面墙的侧面底瓦深入泛水宽度不得小于50mm

(I)天沟伸入瓦片下的长度不得小于100mm

(J)所有小青瓦的铺设底瓦大头应向上,盖瓦大头应向下


二、墙面


1.早期石库门建筑的外墙均采用赤脚纸巾灰粉面


2.中后期有采用青、红砖清水墙墙面


3.后期也有采用水泥砂浆抹灰,高级的石库门也有采用水刷石等高级抹灰粉刷墙面


就上海市区内,赤脚纸巾灰墙面已经不多见,但在郊区还有部分建筑采用这样的方法。目前较多的就是清水墙和抹灰墙面。


图片

中国共产党一大会址旧址


清水墙砖的规格:

普通砖以粘土为原料焙烧而成。因生产方法的不同有红砖和青砖之分。砖的规格尺寸,长、宽、厚的比例关系为 4:2:1。标准砖的尺寸为40*115*53。还有九五砖,八五砖等。

图片
图片


标准砖:240*115*53

九五砖:222*108*44

苏联制标准砖:257*123*55

上海标准砖:234*114*54

图片


历史建筑上采用的砌筑砂浆:

1.柴泥砂浆

2.柴泥石灰砂浆

3.石灰水泥砂浆

4.石灰江米汁砂浆

图片


图片


清水墙砖缝


传统做法:所有砖缝均需要两次勾缝,所谓的修边对缝,再做表面的装饰缝,缝的形式可以分为:平缝、斜缝、凹缝、凸缝(元宝缝、鱼骨缝)。


修缝材料:第一次勾缝通常采用椿光灰加细砂加颜料。


勾缝材料:石灰加细沙。


当代的修复砖缝材料:可以采用成品砖粉修缝、在用石灰基材料修复砖缝。不得采用纯水泥或产品填缝基修复。


目前通常清水墙修缮要求

1.将清水外墙上有风化、腐蚀、酥松的砖面层全部清理干净,清除损坏灰缝层,包括不匹配修补过的灰缝层,清除浮出残留物


2.砖表面层风化深度<2mm(规范为<5mm) 内的不作修复,保留历史沧桑感,只作保护,可在表面涂刷透气憎水保护剂


3.当整块砖风化深度>2mm、深度≤20mm 时,宜采用修复砖粉类材料修复。修复砖粉需满足下列要求:含至少 10%(重量比不同)以上旧砖磨成的粉


4.砖表面层风化程度>20mm,将采取抽换砖块的镶砌法,将表面破损砖取出,用原建筑内拆旧的砖块切割成 15mm~20mm厚砖片,经表面磨光,用低碱砂浆粘贴


需要注意的是仅能用砖的表皮,转角砖片应切割成“L”型。


清水墙修缮

图片

修缮用的工具


2018年有上海市历史建筑保护受理中心组织上海修缮施工单位对原为清水墙改为混水墙的石库门建筑,恢复清水墙的技术比武。


采用两种不同材料进行修复:

1.采用成品砖粉修缮

2.采用传统椿光灰加颜料和水泥自拌材料修复


病理病害情况:

1.表面涂刷涂料或被其他沾污

2.清水墙已经改为混水墙

3.墙面风化、泛碱

4.砖面认为损坏、砖缝缺损

5.避潮层失效

6.其他

图片


砖墙修复的顺序一般为:勘察需修复的墙面→清理粉化的砖面→清理损坏的砖缝→刷增强剂→修复砖面→套底缝→勾缝→拼色→刷憎水剂

图片


图片


图片


图片


质量要求:

1)修补后的墙面色泽匀称,新旧砖面颜色过度交接和顺,与原风格协调,无变色、无泛碱、无污痕

2)修补后的墙面表面应平整,头角方正,无空鼓、无歪斜、无缺棱掉角、无裂缝

3)修补后的灰缝应连续、平直,填嵌密实,无松动、断裂、漏嵌等现象

4)修缮部位砖缝与原有的接头缝处理要平整、交接自然和顺

5)憎水剂检验一般采用浇水防水检查,每个墙面不少于3处,用喷雾器浇洒在墙面上,墙面应该干燥,表面成水珠


水刷石修缮

图片

修缮工具


水刷石墙面破损原因

1.一般表现为裂缝、起壳、脱落。产生原因是面层一般都比较厚、刚性大、而且中、底层抹灰都不分格,尤其是有的还采用不掺砂粒软灰浆作中层,在大气干湿、冻融等反复作用下因与基层材料膨胀率不一致,相互间产生内应力,而出现裂缝、起壳、甚至破损、成片脱落。


2.另外因水刷石长期暴露于室外,受大气、雨水、尘土等影响,使水刷石表面风化或色泽变化。


修缮工序

凿除损坏的水刷石→嵌镶分格条→水泥砂浆打底→粉面层→压实、赶光→冲洗面层→过草酸→清水冲洗


水刷石墙面修缮后,工程实物的观感检查应符合下列要求:

(1)修补后的墙面色泽均匀与原始风格须协调.无变色无泛碱无污痕。

(2)水刷石表面石粒清晰,分布均匀,紧密严整,色泽一致,应无掉粒和接搓痕迹。

(3)分格条 (缝)的设置应符合设计要求,宽度和深度应均匀,表面应平整光滑,棱角应整齐。

(4)各抹灰层之间及抹灰层与基体之间必须粘接牢固,抹灰层应无脱层、空鼓和裂缝。

历史建筑上,水刷石都是采用软底脚刮糙的

图片


板条墙

板条墙的应用以室内隔断墙为主,也用于二层室内外共处的墙面,(如石库门二层前楼东西厢房通排窗槛下梁墙位置,屋面老虎窗等的外立面墙),但不适宜作底层外墙面。板条墙有双面板条墙、单面板条墙及板条墙面层加钉钢丝网的多种款式。板条墙粉刷层有用砂浆粉刷基层,室内墙面表层用舂光纸筋石灰膏粉面衬光。


撑筋主龙骨一般选用洋松的二四料(50㎜*100㎜方木)或二三料(50㎜*75㎜方木),钉面层板条以杉木锯成(6㎜*32㎜或8*40)板条为主及用于外墙面层或卫生间内面层的 900㎜*1800㎜钢板网。粉刷基层的三合细混合砂浆及面表层的纸筋石灰膏、面砖等。

图片


图片


晒台

在石库门建筑中,亭子间上部就是晒台,这部分采用钢筋混凝土板,比较坚固,并作为平日晾晒衣服的最佳位置。


1.在石库门建筑中晒台位于大屋面的后面,亭子间上面,靠弄堂一边的最北面,晒台是钢筋混凝土结构,也是亭子间的顶板。


2.晒台的构造组合

1)上晒台的钢筋混凝土扶梯或钢质楼梯;

2)钢筋混凝土地坪;

3)外墙面钢钢筋混凝土天沟;

4)晒台女儿墙或钢筋混凝土栏杆钢筋混凝土扶手;

5)晒台防水层;

6)附设晾晒衣服的构架。


修缮钢筋混凝土晒台地坪(包括钢筋混凝土天沟)的常见病:

1)修缮晒台钢筋混凝土地坪裂缝

2)砼板底铁涨

3)混凝土板渗水

4)晒台栏杆损坏

5)其他

图片


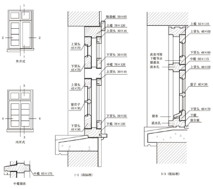
三、木门窗


由两个屋面的流水坡面垂直相交聚合成阴角的一条斜向流水槽,称为斜沟;用白铁皮制作的引流水构件,称为白铁斜沟,构件横截面其形状如同倒写的人字(与人字天沟截面相同,制作过程也相同)。根据屋面大小及排水量的不同,构件截面分为 18″(450mm)、24″(600mm)两种

图片



木窗腐烂修补

1)门窗梃端部腐烂,可局部修接(小榫头接法)

2)门窗梃上端或下端腐烂,同时上或下冒头也腐烂,则需接梃换冒同时进行

3)如果两边梃均腐烂,就要接两根梃,换一冒头,这种修法俗称“套裤子”

图片


图片


百叶窗

1)简介木百叶窗木百叶窗是窗扇的一种样式,根据制作及用途的不同可分为两款

2)活络百叶板式样的软百叶窗

3)固定百叶板款式的硬百叶窗,木百叶窗用料讲究,一般用柳桉木、柚木等高档木材。在其久经日晒雨淋的环境下不易变形

图片


图片


软百叶窗(活络百叶板款式)的制作、安装、修缮

软百叶窗(包括阳台外的软百叶门)选用木料有柳桉木、柚木等。选用的材料规格窗梃窗上中冒用二三料(50㎜*75㎜)下冒用二四料(50㎜*100㎜),百叶板用三分厚三吋宽(9㎜*75㎜)板材料,猢狲棒用六分*一吋(20㎜*25㎜)小截面木条。


图片


图片


石库门木门

石库门构造构件及附件

石库门:由石条门框、樘、实木门扇、艺术外门套等三大部件组成,统称为石库门。

图片


图片


图片


石库门及其附件的修缮


损坏情况:

1.石库门底脚糟朽

①对木摇梗木门栓用同质同截面木料采用榫卯组合修接

②对门扇上部 100㎜部位采用两头45°夹角的拍冒头修接

③对下部300㎜部位采用套裤子的修接法(即预先做好二根绑接的梃并作出宽300㎜的阔冒头,经榫卯联结成一体后覆盖在腐烂部位。画出截去部位,锯掉腐烂部位,用榫卯结合方法镶嵌在实木门下端部,并钉牢,将修接部位加工,与原部位连为一体。)


2.石库门下沉变形

通常是由于摇梗磨损,使得石库门下沉,一般可以在木摇梗下面垫铁片即可。


另外有一种是采用铁扁担,一般也是由于磨损引起,也可以在铁扁担的端部加铁件,垫平即可。


3.摇梗损坏

通常可以将木摇梗改为铁扁担。


4.铁件损坏

按照原样更换。


四、木楼梯


图片


图片


图片


图片


图片


图片


图片


图片


图片


图片


图片


图片


图片


组合楼梯各构件的名称及用料规格

1.整座楼梯分上下两个梯段

2.梯段中间设休息小平台一个(起到梯段起步转折点)

3.休息小平台木格栅(用二四料 50㎜*100㎜)

4.休息小平台楼板面(用6分*3″~4″企口板,20㎜*75㎜~100㎜企口板)

5.扶梯基(用三六料 75㎜*150㎜)

6.三角木(用三六料 75㎜*150㎜斜面向开料)

7.踏步板(1.2吋*8吋~11吋,30㎜*200㎜~280㎜)

8.踏步踢脚板(用4分*7吋~8吋,12㎜*175㎜~200㎜)

9.靠墙踢脚板(用6分~1吋*8吋~10吋, 20㎜~25㎜*200㎜~250㎜)

10.外侧面封头板(用3 分薄板*8 吋~10 吋, 10㎜*200㎜~250㎜)

11.凸角条(用 1.2吋方木条斜对开30㎜*30㎜斜立面对锯)

12.挂落木线条(用5分*1.2吋料15㎜*30㎜)

13.扶梯木柱头(用5吋方料125㎜*125㎜)

14.扶梯扶手(用三四料75㎜*100㎜)

15.扶梯栏杆(用吋半二吋料35㎜*50㎜)

16.扶梯斜平顶(平顶筋用二三料做50㎜*75㎜+木板条子)

17.扶梯基座基础(砖砌或浇筑素钢筋混凝土)

18.普通石库门建的楼梯以洋松木料为主,早期用户杉木为主,稍高档点用柳桉木、柚木做楼梯


五、其他


夹砂地坪

所谓夹砂楼板,就是用木搁栅支承水泥煤屑混凝土楼板。这是由于一则当时钢筋混凝土还不普遍,二则取其轻,再就是简化结构,便于施工。但木搁栅容易腐朽,安全耐久性很差。夹砂楼板做法:将木搁栅上口削成尖形,中间两侧钉3厘米*8厘米小木条,上钉2.5厘米厚短木板,板上铺油毛毡,捣做 1 厘米厚水泥煤屑混凝土,干后粉刷2厘米厚水泥砂浆,铺马赛克或红缸砖,木格栅下面做泥幔板条平顶,外粉柴泥和纸巾灰面层。(注一般夹砂楼板上是没有地漏)夹砂楼板是一种不合理的结构体系。


通常修缮方式:

1.改为混凝土楼板(条件是需要有两对边是砖墙)

2.没有条件的可以更换木格栅、木板

3.对腐烂的木搁栅进行加固


图片


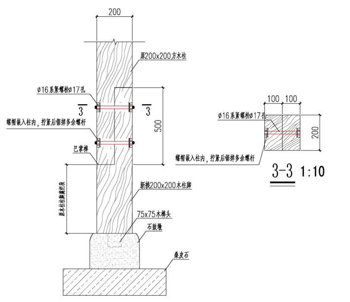
承重结构修缮

石库门立帖结构中最容易损坏的就是立帖的柱脚糟朽,立帖的木构件一般用圆筒长梢杉木来做,圆筒小头直径不小于英制6吋(150mm),后期的立帖结构采用6吋(150mm)洋松方柱。通常采用墩接方式来处理,如上图。计划经济时候也有采用砖砌或混凝土预制断柱(一般长度小于800可以不用螺栓夹接,反之则需要螺栓夹接)。


对穿梁处的榫头损坏的一般采用更换川梁,或加“木台型”等方式。

图片


图片


图片


图片


木梁及桁条损坏加固

中期以后的石库门建筑中,楼层面的格栅楼板都有较大改进,采用3*6~3*8英吋(75㎜*150㎜~75㎜*200㎜)进口洋松方木(区别于早期石库门圆筒的杉木),长度根同房间宽度。格栅的搁支点则在承重墙的砖面上或搁支在承重墙上的格栅大料面上(区别于立贴式杉木大料上)。格栅之间中心间距为16~18吋(400~450㎜),摆放的格栅应在底部衬垫好洋松对拨榫以调整格栅高度、水平度及平整度。


楼板早期的大多数采用杉木6吋宽,格栅之间中心间距为16~18吋(400~450㎜)木格栅采用5吋圆(小头)。

图片

木楼面构造示意图


图片

木梁端部糟朽加固节点


图片

木梁端部开裂加固节点


木屋架加固

中后期石库门部分采用木屋架,屋架一般采用洋松方木制成。

图片

豪式屋架受力示意图


图片


图片

端、节点下弦用串杆夹板加固示意图


图片

端、节点下弦用串杆夹板加固示意图



来源:哲匠之家,图文版权归作者所有。

作者:陈中伟

知识点:石库门建筑修缮技艺

全部回复(0 )

只看楼主 我来说两句抢沙发
这个家伙什么也没有留下。。。

中国建筑史

返回版块

5.15 万条内容 · 173 人订阅

猜你喜欢

阅读下一篇

明清岭南士人园林 理景艺术特征解析

【摘要】通过分析岭南士人的群体性格探索明清岭南士人园林的理景艺术特征。从设计营造层面对岭南传统士人宅园的布局、掇山、置石、理水、借景、装饰等进行综合分析,总结出岭南士人园林“空间融透、庭庭印和”、“掇山置石、余情丘壑”、“规则水形、内隐自然”、“园景因借、情景合一”和“纳福世俗,中西合璧”的理景艺术特征。 【关键词】士人园林;理景艺术;岭南园林

回帖成功

经验值 +10