容易混淆的结构类别:框架结构、框支剪力墙结构、框架剪力墙。
1、框架结构(受力主体为:框架柱和框架梁)框架结构的主要承重构件框架柱和框架梁。
框架结构如下图:


2、框架剪力墙结构(主要受力主体为框架柱、剪力墙和框架梁),可以理解为在剪力墙结构中加入了框架柱(主要是水平布局中增加了框架柱)。
框架剪力墙如下图:




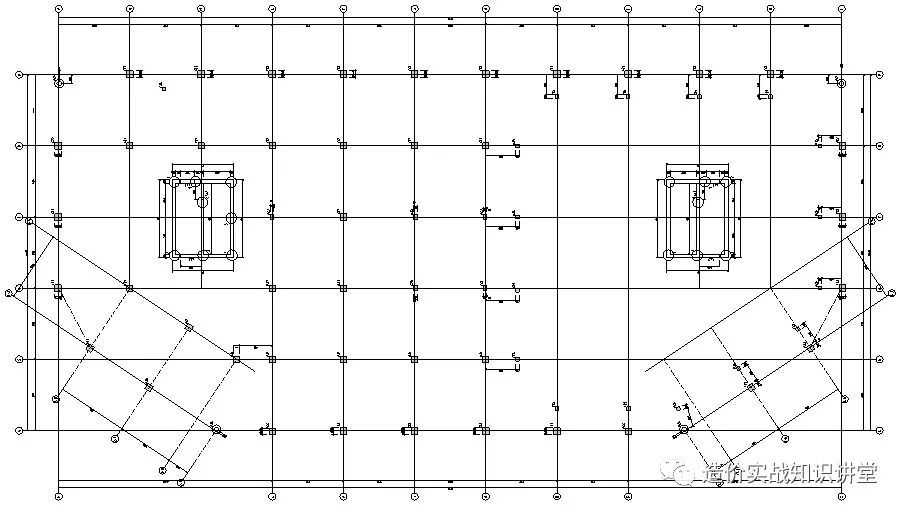
3、框支剪力墙结构(主要受力主体为框支柱(16G中称为转换柱)框支柱、剪力墙、框架梁)。转换层以下为框支梁柱主要承重,转换层以上为剪力墙结构主要承重。


内容源于网络,如有侵权,请联系删除
相关资料推荐:
知识点:框支剪力墙
0人已收藏
0人已打赏
免费4人已点赞
分享
混凝土结构
返回版块140.17 万条内容 · 2216 人订阅
阅读下一篇
水平筋在有门洞情况下的排布规则水平筋在有门洞情况下的排布可能有三种情况发生, 一是门洞口上水平筋距离门洞口的距离≥50 mm 的情况, 二是门洞口上水平筋距离门洞口的距离< 50mm 的情况, 三是窗洞口上水平筋正好排在洞口上的情况, 下面分别讲解。 1. 门洞口上水平筋距离门洞口上的距离≥50mm 当门洞口上水平筋距离门洞口上的距离≥50mm 时, 水平筋仍按原间距整体排布, 如图2. 8. 6 所示。
回帖成功
经验值 +10
全部回复(0 )
只看楼主 我来说两句抢沙发