知识点:电缆桥架安装施工图
一、电缆桥架安装施工要求
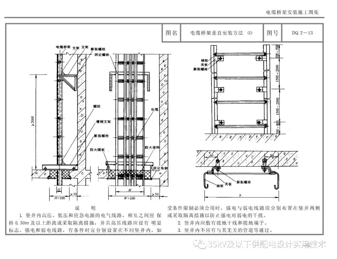
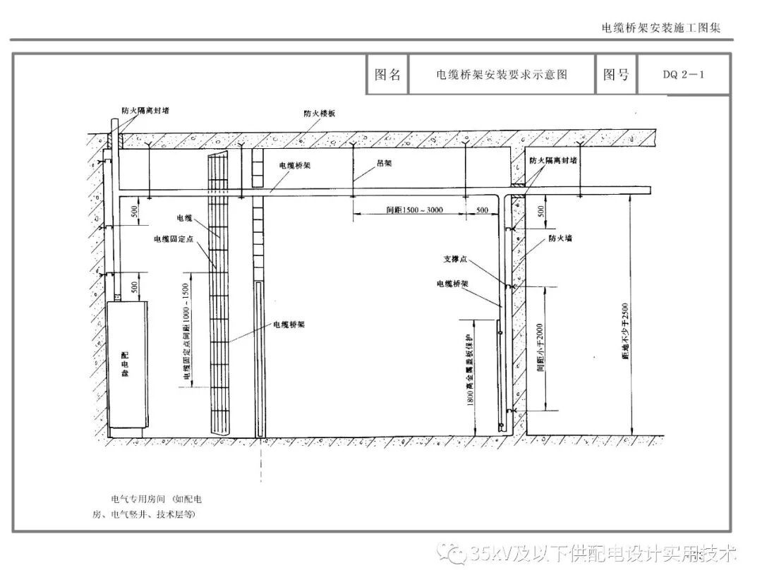
1、确定电缆桥架路由:根据建筑平面布置图,结合其他管线(如消防、弱电)和电气管线等设置情况、方便维修,以及电缆路由的疏密来确定电缆桥架的最佳路由。在室内,尽可能沿建筑物的墙、柱、梁及楼板架设,如需利用综合管廊架设时,则应在管道一侧或上方平行架设,并考虑引下线和分支线尽量避免交叉,如无其它管线架借用,则需自设立(支)柱。
2、荷载计算:计算电缆桥架主干线纵断面上单位长度的电缆重量。
3、确定桥架的宽度:根据布放电缆根数、电缆直径及电缆的间距来确定电缆桥架的型号、规格, 托臂的长度,支柱的长度、间距,桥架的宽度和层数。
4、确定安装方式:根据场所的设置条件确定桥架的固定方式,选择悬吊式、直立式、侧壁式或是混合式,连接件和紧固件一般是厂家配套供应的,此外,根据桥架结构选择相应的盖板。


3)直接支撑电缆的普通支架(臂式支架)、吊架的允许跨距宜符合表6.1.2的规定。


5、绘出电缆桥架平、剖面图,局部部位还应绘出空间图,开列材料表。
二、电缆桥架安装施工图集



























相关推荐链接:
0人已收藏
0人已打赏
免费0人已点赞
分享
电气工程原创版块
返回版块2.2 万条内容 · 598 人订阅
阅读下一篇
电缆桥架安装规范及验收要求知识点:电缆桥架安装规范及验收要求 槽式电缆桥架的介绍 电缆桥架品种繁多,在此特就槽式电缆桥架做一介绍。 槽式电缆桥架是用整张钢板弯制而成的槽式部件,其概念上与盘架的区别是高、宽比不同,盘架浅而宽,槽式电缆桥架具有一定的深度和封闭性。 槽式电缆桥架可以用于全封闭型电缆敷设。它最适合用于敷设计算机电缆、通信电缆、热电偶电缆及其它高灵敏系统的控制电缆。它对控制电缆的屏蔽干扰和重腐蚀环境中电缆的防护都有较好效果。
回帖成功
经验值 +10
全部回复(0 )
只看楼主 我来说两句抢沙发