围墙,在建筑学上是指一种重直向的空间隔断结构,用来围合或保护某一区域。几乎所有重要的建筑材料都可以成为建造墙的材料,如:木材、石材、砖、混凝土、金属材料、高分子材料甚至玻璃。墙身兼两重作用:一方面作为建筑物的外维护结构需要提供足够优良的防水、防风、保温、隔热性能;另一方面墙划分空间、隔断人流的重要手段,在实用功能上起到防卫、分割的安全作用。
一 围墙的材料
围墙的材料一般有竹木、砖、混凝土、金属材料几种,我们这节主要讲解金属材料中的铁艺,其他材料作为一个拓展来讲解。
竹木围墙:竹篱笆是过去最常见的围墙,现已难得用。有人设想过种一排竹子而加以编织,成为"活"的围墙(篱),则是最符合生态学要求的墙垣了。
砖墙:墙柱间距3-4米,中开各式漏花窗,是节约又易施工、管养的办法。
混凝土围墙:一是以预制花格砖砌墙,花型富有变化但易爬越;二是混凝土预制成片状,可透绿也易管养。
金属围墙:
1)以型钢为材,断面有 几种,表面光洁,性韧易弯不易折断;
2)以铸铁为材,可做各种花型,不易锈蚀而且价不高;
3)锻铁、铸铝材料,质优而价高;
4)各种金属网材,如镀锌、镀塑铅丝网、铝板网、不锈钢网等
现在往往把几种材料结合起来,取其长而补其短。混凝土往往用作墙柱、勒脚墙。取型钢为透空部分框架,用铸铁为花饰构件。局部、细微处用锻铁、铸铝。
二 铁艺的属性
铁艺常用的金属材料有有色金属材料和黑色金属材料两种,常用的有色金属材料有铜和铝,黑色金属材料包括铁和钢。
下面我们来讲讲铁艺中常见的材料方通,方通是指横截面为方形的空心的管材,它包括了方管与矩形管。常用规格如下图:



这里我们要区分方通与方钢,方钢是指横截面为均匀正方形的实心长条钢材,如下图:

三 铁艺与构造柱连接的方法
1.物理连接(膨胀螺栓)

2.化学连接(预埋件)
当结构柱的基础是钢筋混凝土,直接将钢板预埋在混凝土边缘处

当结构柱的基础是砖砌体,在砖砌体中需要砌一个混凝土墩,再将钢板预埋在混凝土边缘处(混凝土墩的大小是在满足砖模的情况下,依据钢板的大小与实际情况来确定的)

当结构柱的基础是钢筋混凝土与砖砌体结合,在砖砌体中需要砌一个混凝土墩,再将钢板预埋在混凝土边缘处

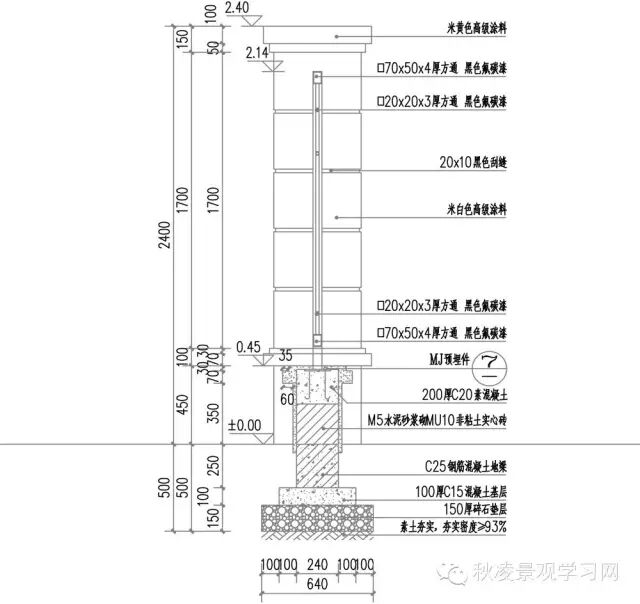
四 平立剖的绘制
平面图:
两个柱子之间的距离定位是通过柱子的中轴线的距离确定的
TW:代表墙顶标高

立面图:
栏杆间距不大于110mm
方通的表达方式如下图

剖面图:


大样图:
表示出铁艺与构造柱之间的链接方式
表示出钢板与钢筋的大小



学员作品:




总结:
围墙相对景墙而言,多了连接件的构造做法,画图要有主次,要突出谁就用粗线。
我们一般的连接构造方法可以分为物理连接和化学连接。物理连接就是通过膨胀螺钉等进行连接,化学连接就是通过焊接进行连接。但是对于各种地方的用处我们要灵活运用,还有连接的表达。
来源:秋凌景观学习网
知识点:围墙施工图
0人已收藏
0人已打赏
免费0人已点赞
分享
建筑方案设计
返回版块21.18 万条内容 · 300 人订阅
阅读下一篇
中学建筑设计方案说明校园总体构思草图 STREAM学习中心构思草图 一直以来对建筑作品的评价会分三个等级: 一、高超的技法; 二、类型学的贡献; 三、神性的精神。 当然,这三个等级并非一定是逐级上升的,比如: 有时候“一力降十会”,技法高超到一定程度,也会让人产生“神乎其技”的感叹。 但是总体来说,这三级还是一级比一级更难做到。 实现类型学的贡献,需要平时对某种问题进行长期的研究和深入的思考,在建筑学意义的内涵方面自然要高于灵光一现的手法,更值得我们追求。
回帖成功
经验值 +10
全部回复(0 )
只看楼主 我来说两句抢沙发