石库门是一种融汇了西方文化和中国传统民居特点的新型建筑,是具中国特色的居民住宅。里弄建筑的建造从19世纪70年代开始,到1949年建国以前建造的相距近一个世纪。上海最早的石库门里弄在黄浦区的原英租界后在法租界建造,逐步向原卢湾、徐汇、静安、虹口发展。

照片来源:网络
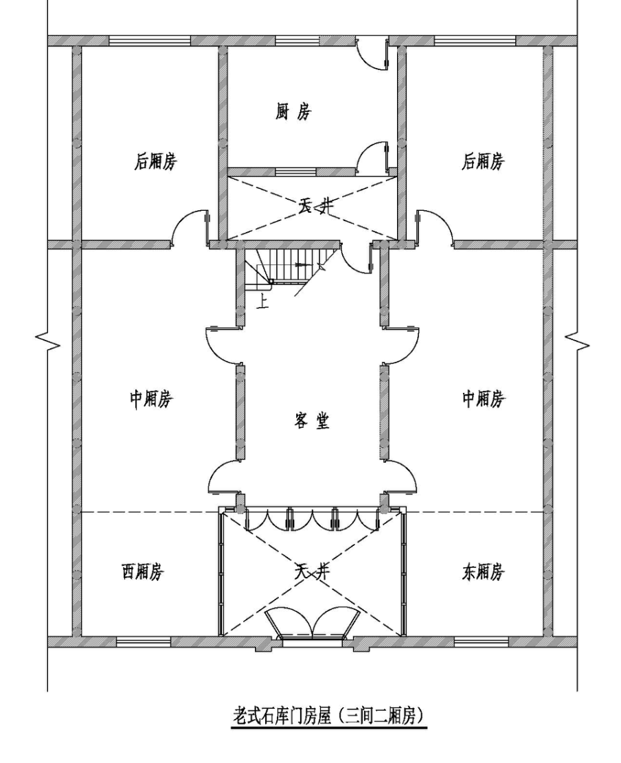
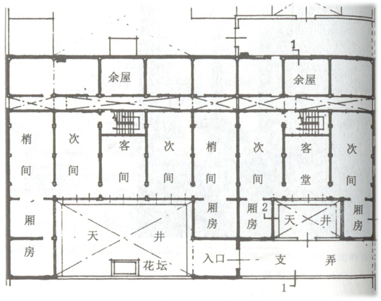
石库门里弄建筑的平面布局

“石库门”初指建筑大门,汉语中把围束的圈叫“箍”,如“金箍棒”,“箍桶”“袖箍”(即袖标)。这种用石条围束门的建筑被叫做“石箍门”,宁波人发“箍”字音发的是“库”,以后上海的“石箍门”就讹作“石库门”了。关于石库门的历史沿革本篇暂不介绍,介绍石库门的营造技艺。
石库门里弄建筑的平面布局
嵌入式
丁字型
完整型
街坊转角型
嵌入式
散状型
木梳型
石库门营造技艺
1.上海早期老式石库门里弄:(1860年~1910年)
1876年至1910年开始在英租界建造,后来扩展到南市、虹口、闸北和法租界。石库门弄堂狭窄,一般在3米左右。房屋结构为立帖式木构架,粉墙围护。山墙用马头山墙、观音兜山墙或荷叶山墙。大门用石发券,上砌三角形、半圆形或弧形门楣,内饰西洋山花。早期的石库门常仿江南民居建筑中的仪门,挑檐下的砖雕十分精致。在门楣与门框之间还有四个字吉祥横批。石库门框采用苏南或宁波一带运来的石料。屋盖在木构架上铺桁条,上铺砖望板和蝴蝶瓦。
中西合璧的石库门门头照片
五开间与三开间底层平面图(兆福里)
2.上海后期石库门里弄:(1910年~1930年)
⑴ 总平面布置比较整齐,一般量争取好的朝。规模较大的里设总弄和支弄,总弄宽度增加,考到交通和消防需要。
⑵ 随着三代同堂大家庭的分化,推出了二开间和单开间平面。单开间平面不设厢房,二开间平面设单厢房,厢房分隔成前后两间。后天井原来是横向的改为纵向,改善了采光和通风。后天井后部原来单层的杂屋和厨房,改为与前部房屋错层的灶间,上面是亭子间。再上面是晒台。后天井平面改变后,扶梯作为错层的过渡连通。
⑶ 石库门门头模仿西方建筑装饰的成分增大,除了半圆形、三角形门楣外,还增加长方形门楣。长条门框改为水泥。(水磨石、水刷石)或砖砌,还镶嵌西式柱头花饰和线脚。
⑷ 马头山墙、观音兜山墙和荷叶山墙已不使用了,屋面多用小青瓦或机平瓦。有的里弄山墙采用西式巴洛克风格并配嵌西式装饰图案。
⑸ 砖墙承重结构替代了立帖式木构架结构,过街楼、店铺和亭子间、晒台等部位使用钢筋混凝土梁和楼板。石灰粉墙取消了,外墙普遍采用石灰勾缝的清水青砖墙或清水红砖墙。
⑹ 楼阁栅由杉木改为洋松,楼板铺洋松企口板,避免早期石库门住宅当人在楼板上走时发出“吱吱”声的缺点。屋面檐口做封檐板及白铁落水管。栏杆开始用铸铁或熟铁做花饰,有的住宅还装上百叶窗。
早期石库门建筑
建筑年代:1860年到1910年
特点:
1、结构为木立帖承重,材质为圆杉木。主要结构采用圆木立帖构架承重,材料规格为5英寸或6英寸杉木,木桁条规格为6英寸或8英寸(150mm200mm),木搁栅规格为6英寸或8英寸。
2、屋面屋面为小青瓦,望板砖及椽子。
3、墙体一般为空斗墙,外粉刷未赤脚纸巾灰。内部分隔墙体底层采用黄道砖。
4、油漆采用中国传统的大漆。
5、石库门门框采用金山石。门头做法复杂。
中期石库门建筑
建筑年代:1910年到1920年
特点:
1、山墙为砖墙,每个三到五开间有一道风火墙,砌体墙体木立帖结构。
2、屋面屋面为小青瓦,望板砖及椽子。也有采用粘土平瓦(有的采用木构架)。
3、清水墙大量被采用,内部分隔墙体底层采用黄道砖。
4、油漆开始采用化学油漆。
5、石库门门框开始采用较为简单的水刷石、水磨石、斩假石等。
后期石库门建筑
建筑年代:1920年到1948年
特点:
1、建筑外墙有水泥砂浆和清水墙同时出现。
2、屋面瓦片为粘土平瓦。
3、砖墙承重,部分三层楼建筑底层为240墙,二层为120墙,三层为泥幔墙,上为木屋架。
4、木门窗采用铰链。
5、石库门式样被简化。
石库门建筑的构造
1.立帖式
早期老式石库门住宅用立帖式木构架结构。立帖式是木构架建筑的一种类型,又称为穿斗式。这是由柱距较密的落地柱与短柱直接承檩,柱间不施梁而用穿枋联系的结构,在江南民居中普遍使用。
早期石库门正屋一般用立帖式五柱落地,后期石库门也有用四柱落地,进深较大的房屋用七柱落地。立帖木柱一般为直径15厘米的杉木。后期石库门住宅改用洋松。
榫卯结构
立帖式结构示意

五柱落地 四柱落地
联珠里五柱落地立帖式木构架
2.砖混式
1920年以前,老式石库门住宅结构大多为立帖式,直到1920年前后由于钢筋混凝土结构的建筑不断出现,后期老式石库门住宅在结构上开始改进。新式石库门住宅结构则采用砖混式。这种结构形式以砖墙承重为主, 一般使用人字木屋架,部分采用钢筋混凝土结构,如阳台、亭子间、晒台、过街楼等。这部分施工必须作木壳模板,现场浇制,故施工时间较长,一般约需四五个月。这个时候的石库门也有建造三层楼。
木屋架砖墙承重部分混凝土结构的住宅
3.基础
老式石库门立帖式木构架结构用灰浆三合土做基础,早期老式石库门用杉木木桩打入土,后期由于洋松引入,强度比杉木大,故改用洋松木桩。木桩之上铺清水三合土和灰浆三合土,然后砌筑大方脚砖基础,再砌铺桑皮石,置圆形石鼓墩。经过这样工序处理的基础防潮湿、稳定性好,木柱置在上面不易腐烂。
新式石库门以砖墙承重,地基处理将土夯实后做碎石或碎砖灰浆三合土,砌筑大方脚条形基础。烧制的窑砖,质地好,砌筑这样的砖基础能承受很大负载,后期三层楼石库门也适应。
基础上面的地坪做法很多。早期老式石库门常采用传统做法,将基础上面的覆土掺入石灰或黄砂后耕平拍实。有的用煤屑和泥土拌合后拍实。早期石库门客堂铺方砖,厢房铺木榈栅地板;后期石库门堂铺花磁砖,有的客堂、厢房全部铺木地板。
老式石库门基础图
4.楼板
早期石库门楼层搁栅均用直径12~15厘米的杉木,间距在60厘米左右,上面铺约2.5厘米的杉木板。这种楼板搁栅间距过大,木板又无企口,故人行其上会发出吱吱格格声音。
西方洋松倾销上海后,石库门楼层搁栅改用洋松,用减为7.5厘米*15厘米,7.5厘米*20厘米或5厘米*20厘米三档,间距缩小为40-50厘米左右。木板采用2厘米*15厘米洋松企口板。当时洋松企口板价格便宜,使用方便,刨好企口长短随配,而且表面光洁平整。但是,如遇白蚂蚁作祟,极易蛀烂。支承櫊栅的进深大料,—般用料为10厘米*20厘米,12厘米*25厘米,较大开间的用料为12厘米*30厘米,15厘米*30厘米。采用粉刷平顶,大约开始于20世纪初。这种平顶一般用板条平钉,外敷柴泥,再粉白石灰。英租界工部局曾因平顶容易老鼠做窝,为防止鼠疫,禁止使用,所以后来很多石库门都不做平顶。
夹沙楼板示意
木楼板剖面示意(单位:厘米)
临街大料外伸示意
5.楼梯
早期的石库门多用横向单跑的直梯,由于装置在后间黑暗之处,并不显眼,故式样简单。最简单的扶手仅用一根横木和直木,坡度超过45°,每个踏步在15~20厘米。后期老式石库门扶梯平面有横向单跑直上、曲尺转弯、双跑平行等多种形式,宽度在70~80厘米左右,坡度在45°左右。踏步厚度2.5—3厘米,宽度20厘米,还封0.8厘米厚的踢脚板,扶梯背后做石灰板条粉刷平顶。
上晒台的木扶梯
早期石库门直跑扶
走进扶梯间离面漆黑一片
上阁楼的扶梯
楼梯木扶手栏杆
楼梯立柱详图
扶梯用料详图
6.屋面
石库门屋盖是江南民居硬山屋顶演变过来的,早期石库门屋盖与当时的民居屋盖十分相似。石库门屋盖在立帖式木构架或木屋架之上, 由桁条、椽子、砖望板和泥瓦构成。桁条用料在12~15厘米左右,间距在120厘米左右。椽子一般用5厘米*7.5厘米方料,间距在22厘米,也有荷包椽,砖望板或板条铺在上面,然后盖以蝴蝶式泥瓦。挑出之檐口均用方椽或半圆椽。檐口一般挑出45~60厘米,不做封檐与檐沟。后期石库门为了避免屋面水顺着檐口流下影响人流,将檐口钉封檐板,并加做白铁落水檐沟。
檐口示意图
石库门建筑的特征
1.石库门门头
石库门门头是石库门住宅最有特色的部位,是中西合璧建筑文化的集中反映,也是近代上海数量最大、普及面最广的居住建筑的显著符号。石库门门头由木门、门框、门套和门楣及门环等组成。
早期石库门门框用苏南及宁波一带运来的石料,后期石库门门框改用水泥或汰石子。门套有水泥砌筑的、西式圆壁柱和砖砌壁柱。有的石库门不做门套,仅在门框上方两侧和上方中央做些砖饰,石库门显得简炼。
门楣是石库门门头装饰的重点,由于受到西方建筑影匈,采用半圆形或三角形山花图案装饰,后来逐渐改为长方形的门楣。
石库门门头示意图
老成都路砖砌门框
三角形门楣
半圆形门楣
中共“一大”会址门楣山花图案
东余杭路对称的盾牌花饰
2.客堂
推开石库门漆黑大门,穿过天井迎面即是客堂。客堂是江南民居的厅堂演变过来的,在今日上海周边的古镇还可以看到厅堂的原貌。客堂一般建筑面积在15~20平方米左右,侧门连着厢房,后门连着扶梯间,是整幢房屋交通的“枢纽”。
3.厢房
客堂和前楼的左右是厢房,厢房即是卧室,除了放床和衣橱外,兼梳妆和书房,早期石库门房一般都做飞罩及挂落,由于年久失修,现在很少保留。后期石库门趋于简洁,不再做飞罩及挂落。
飞罩及挂落立面
厢房平面图
4.前楼
前楼位于客堂上面,最初的老式石库门前楼称为客堂楼,相等于起居室功能,后来由于房屋紧缺,房地产商将客堂楼改为卧室,所以前楼即是二楼正房的卧室。前楼朝正南方,推开窗户是天井的上方,天井的进深加上弄堂的宽度,前楼是房屋间距最大的地方,因此,阳光充足光线好。
灶披间室外的水龙头
5.亭子间
亭子间始于老式石库门后期阶段,单层灶披间(厨房)改为二层楼房,底层灶披间,楼上为亭子间,面积不大,一般在9~10平方米。
6.灶披间
灶披间即是厨房间,最早老式石库门厨房是单层披,后来叫成灶披间。单层披屋的厨房取消后,改成底层为厨房,二层为亭子间的砖混结构,楼板采用现浇混凝土板,板厚约80MM。
灶披间外的过道及水龙头
狭窄的后弄堂
7.外墙
石库门建筑外墙常用的建筑材料随着石库门的演变也不同。立帖式木构架结构的石库门,外墙仅起围护作用,为非承重墙,一般用空斗墙。砖混结构的石库门,采用砖墙承重为主,个别部位用钢筋混凝土构件。砖墙的施工和外粉刷,配合建筑的要求,形成多种类型。
(1)空斗墙
土坯黄道砖,砌筑成盒状形成空斗,或中空或碎石泥土填充。墙厚一砖或一砖半,砌法有“一斗一皮”、“二斗一皮”等。
(2)清水墙
机制青砖或红砖砌筑,墙厚一砖半,楼层用一砖。砖块单面外墙砌平,然后加嵌灰缝。清水墙为石库门最常见的外墙。有的清水墙在机制红砖外面砌平后,用铁饱再饱平一遍,这样可以省去外粉刷,然后再嵌灰缝。铁饱清水墙做法,使外墙整洁美观,缺点是机制砖表面受到损伤,容易受阳光、雨水侵蚀,降低了物理性能。
混水墙
清水墙
(3)混水墙
砖墙砌筑后,再粉石灰,也有上下两段或全加粉黑灰的,这种做法在老式石库门很普遍。
(4)水泥外墙
20世纪初,英国在上海倾销波兰水泥,石库门建筑出现了用水泥代替石灰做外墙粉刷的做法,砖墙受到较好保护,雨水不易侵入。
水泥墙
板条墙
面砖墙
8.山墙
山墙位于建筑的侧面,即侧墙。立面由裙肩、上身和山尖三部分组成。石库门山墙千姿百态,风格各异,它遗留着中国传统筑的要素,又移植了欧洲古典建筑装饰的元素。有的山墙如阶梯,中央最高,逐阶向两边跌落;有的山墙高耸屋面,烟道砌筑在里面;有的山墙水泥压顶仿巴洛克建筑风格,线条柔和。山墙的装饰,使石库门建筑更具有艺术性。
马头墙山墙
西式图案的山墙
巴洛克线条的山墙
装饰图案的山墙
砌筑烟道的山墙
花卉图案的山墙
9.门窗
老式石库门受中国传统建筑影响较深,一般采用摇梗木门窗。
楼上木窗安装在木槛板上,下截外面是栏杆,里面衬木板壁,夏季炎热天为了通风,可以将板壁脱卸。早期石库门栏杆采用木栏杆,后期改为铸铁或熟铁栏杆。
木百叶窗,西方建筑的装修式样,19世纪末很风行,后期老式石库门已经采用。安装在玻璃窗的外层,可以遮阳避热和通风。
石库门拼木门,原来实木大门用料5~8厘米厚,虽然坚固结实,但是显得浪费,后期新式石库门大门用料注意精打细算,实木门框镶嵌木板拼装,这种门启闭轻便又省料。
落地长窗构造示意图
木窗上下臼详图
木栏杆花饰
客堂间落地长窗
折叠式百叶窗
10.阳台
石库门山墙上装置阳台均是在新式石库门阶段,因结构上采用砖墙承重,钢筋混凝土梁板可挑出墙面。阳台筑在混凝土平板上,式样也很多。敞开式阳台,除了阳台栏杆外,其他均省略了。包厢式阳台,似剧场里挑出的小包厢,有柱和顶棚。阳台的用料有铁木结合的,也有水泥的。装置的方法大多是挑出,也有利用底层厢房突出坐在上面。阳台的装置,使石库门立面更丰富,居住功能更实用。
铁木阳台
店铺铁木阳台
座式水泥阳台
双层水泥阳台
建筑只是石库门的外在形态,石库门是有生命的历史建筑,它见证了上海的城市发展变迁,影响着上海的城市性格,也蕴含着上海的城市智慧。
本文作者:陈中伟,上海建筑装饰(集团)设计有限公司总经理,国家注册一级建筑师,上海市文物局专家库专家,上海市优秀历史建筑事务中心专家库专家,上海市建委评标专家库专家。
知识点:石库门建筑的营造技艺
0人已收藏
0人已打赏
免费1人已点赞
分享
中国建筑史
返回版块5.15 万条内容 · 173 人订阅
回帖成功
经验值 +10
全部回复(0 )
只看楼主 我来说两句抢沙发