人防建筑设计的主要规定
尽量减少对平时使用的影响,又能保证战时的安全,设计中可以采用平战转换措施
与防空地下室无关的上部建筑的生活污水管、雨水管、燃气管不得进入防空地下室
扩散室、密闭通道、防毒通道、除尘室、滤毒室、洗消间、简易洗消间
可以按表3.2.1-2算出掩蔽的人员数量

(1)上部建筑层数≤9层(包括上部无建筑),执行表3.2.6

(2)上部建筑层数≥10层,可不划分防护单元和抗爆单元
(3)相邻抗爆单元应设抗爆隔墙,一般用砂袋堆垒,断面为梯形,最小厚度≥500,临战砌筑,详见图3.2.7

(4)相邻防护单元应设防护单元隔墙,甲类厚度按结构计算结果定,乙类常5级≥250mm,常6级≥200mm
防护单元连通口
墙的两侧都设防护密闭门的门框墙厚度≥500,图3.2.10

顶板底面高出室外地坪的要求
(1)上部建筑为钢筋混凝土结构的甲类防空地下室,顶板不得高处室外地坪;
(2)上部建筑为砌体结构的甲类防空地下室,顶板可高处室外地坪,核5级≤500mm;核6级、核6B级≤1000mm且高出部分外墙必须满足战时防常规武器爆炸、密闭、墙体防护厚度等各项防要求
(3)乙类防空地下室的顶板高处室外地面的高度不得大于该地下室净高的1/2,且高出部分外墙要求同第(2)条详见下图

顶板底面高出室外地坪的要求,为强制性条文,必须严格遵守
出入口数量
(1)每个防护单元两个以上出入口(不含竖井式和单元连通口),其中至少一个室外出入口
(2)两个相邻防护单元均为人员掩蔽或一个人员掩蔽一个物资库时可以共用一个室外出入口
(3)两个相邻防护单元均为物资库,两个物资库面积之和≤6000m2时,可以共用一个室外出入口

出入口尺寸
(1)人员出入口,图3.3.5

(2)人防物资库出入口,建筑面积≤2000m2,物资进出口的门洞净宽≥1500mm,建筑面积≥2000m2,物资进出口的门洞净宽≥2000mm
人防门设置数量

战时出入口净宽要求
门洞净宽之和,每100人不小于0.30米,每樘门不超过700人,出入口通道和楼梯净宽不小于门洞净宽,两个防护单元共用出入口时,应按两掩蔽入口通过的总人数的每100人不小于0.30米计算确定
临空墙厚度
(1)乙类各种情况均为≥250mm
(2)独立式甲类室外出入口见表3.3.11

(3)附壁式甲类室外出入口,见表3.3.13

(4)甲类室内出入口,见表3.3.15

备用出入口
可以采用竖井式,宜与通风竖井合并设置,竖井内设爬梯
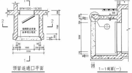
预留与其他人防工程连接的通道的连通口,一般人防主管部门会提出预留的位置要求


防毒通道设置要求
防毒通道设在排风口附近,应满足人员通过和停留,面积不宜过大,图3.3.22,阴影区宽度一般1000mm左右

图3.3.23,淋浴器和洗脸盆个数查《人民防空地下室设计规范》GB50038-2005第3.3.23条

简易洗消间设计
(1)防毒通道内通道适当加宽设简易洗消(一般常用),图3.3.24-1

(2)换气次数满足不了时,单独设简易洗消间,图3.3.24-2

进排风口
(1)进排风口水平距离≥10米,进风口与柴油机排烟口≥15米或高差≥6米
(2)倒塌范围以外的进风口,下缘距室外地坪≥0.5米(3)倒塌范围以内的进风口,下缘距室外地坪≥1.0米(4)有人员使用的工程,战时排风口应设在主要出入口,战时进风口单独设置
滤毒室与进风机室分开设置
滤毒室在染毒区,进风机室在清洁图3.4.9

洗消污水集水坑设置
主要出入口的防护密闭门外的通道内,进风口的竖井或通道内,应设置洗消污水集水坑,坑深≥600mm,容积≥0.5m3,一般常用1.0×1.0X0.6(0.8)
防爆波电缆井设置
应设在防空地下室室外的适当位置,一般埋于土中,位置和电气专业商量
厕所设置
(1)一般不常用水冲厕所,人员掩蔽、专业队队员掩蔽部、人防物资库设干厕,人防汽车库等可不设厕所;
(2)即使平时使用时已经设置水冲厕所,战时不需要水冲厕所的工程,也要确定便桶位置,每个便桶1.0O~1.40m2,基本同普通厕卫尺寸
(3)厕所宜设前室
(4)人数比例:男女人数比例1:1,
(5)便桶数量:男每40~50人设一个,女每30~40人设一个
文章转载自网络,如有侵权,请联系删除!
知识点:人防建筑设计的主要规定
0人已收藏
0人已打赏
免费0人已点赞
分享
公共建筑设计
返回版块51.17 万条内容 · 447 人订阅
回帖成功
经验值 +10
全部回复(0 )
只看楼主 我来说两句抢沙发