1、医院选址应符合当地城镇规划、区域卫生规划和环保评估的要求。
2、基地选择应符合下列要求:
1.交通方便,宜面临2条城市道路;
2.宜便于利用城市基础设施;
3.环境宜安静,应远离污染源;
4.地形宜力求规整,适宜医院功能布局;
5.远离易燃、易爆物品的生产和储存区,并应远离高压线路及其设施;
6.不应临近少年儿童活动密集场所;
7.不应污染、影响城市的其他区域。
1、总平面设计应符合下列要求:
1 合理进行功能分区,洁污、医患、人车等流线组织清晰,并应避免院内感染风险;
2 建筑布局紧凑,交通便捷,并应方便管理、减少能耗;
3 应保证住院、手术、功能检查和教学科研等用房的环境安静;
4 病房宜能获得良好朝向;
5 宜留有可发展或改建、扩建的用地;
6 应有完整的绿化规划;
7 对废弃物的处理作出妥善的安排,并应符合有关环境保护法令、法规的规定。
2、院区出入口不宜少于2处。
3、在门诊、急诊和住院用房等入口附近应设车辆停放场地。
4、太平间、病理解剖室应设于医院隐蔽处。需设焚烧炉时,应避免风向影响,并应与主体建筑隔离。尸体运送路线应避免与出入院路线交叉。
5、环境设计应符合下列要求:
1 充分利用院区地形布置绿化景观,宜有供患者康复活动的专用绿地;
2 对绿化、景观、建筑内外空间、环境和室内外标识导向系统等做综合性设计。
6、病房建筑的前后间距应满足日照和卫生间距要求,且不宜小于12m。
7、在医疗用地内不得建职工住宅。医疗用地与职工住宅用地毗连时,应分隔,并应另设出入口。
医疗建筑看似千头万绪,但实际上其功能格局具有很强的规律性。以综合医院为例,其建筑功能分为门诊、急诊、医技、住院、后勤保障系统、行政管理和院内生活这七部分。
△医院功能模块关系图
(一)、一般规定
1、建筑物出入口的设置应符合下列要求:
1 门诊、急诊、急救和住院应分别设置无障碍出入口;
2 门诊、急诊、急救和住院主要出入口处,应有机动车停靠的平台,并应设雨篷。
2、应设置具有引导、管理等功能的标识系统,并应符合下列要求:
1 标识系统可采用多种方式实现;
2 标识导向分级宜按下表设置。
标识导向分级表

3、电梯的设置应符合下列规定:
1 二层医疗用房宜设电梯;三层及三层以上的医疗用房应设电梯,且不得少于2台。
2 供患者使用的电梯和污物梯,应采用病床梯。
3 医院住院部宜增设供医护人员专用的客梯、送餐和污物专用货梯。
4 电梯井道不应与有安静要求的用房贴邻。
4、楼梯的设置应符合下列要求:
1 楼梯的位置应同时符合防火、疏散和功能分区的要求;
2 主楼梯宽度不得小于1.65m,踏步宽度不应小于0.28m,高度不应大于0.16m。
5、通行推床的通道,净宽不应小于2.40m。有高差者应用坡道相接,坡道坡度应按无障碍坡道设计。
6、50%以上的病房日照应符合现行国家标准《民用建筑设计通则》GB 50352的有关规定。
7、门诊、急诊和病房应充分利用自然通风和天然采光。
8、室内净高应符合下列要求:
1 诊查室不宜低于2.60m;
2 病房不宜低于2.80m;
3 公共走道不宜低于2.30m;
4 医技科室宜根据需要确定。
9、卫生间的设置应符合下列要求:
1 患者使用的卫生间隔间的平面尺寸,不应小于1.10m×1.40m,门应朝外开,门闩应能里外开启。卫生间隔间内应设输液吊钩。
2 患者使用的坐式大便器坐圈宜采用不易被污染、易消毒的类型,进入蹲式大便器隔间不应有高差。大便器旁应装置安全抓杆。
3 卫生间应设前室,并应设非手动开关的洗手设施。
4 采用室外卫生间时,宜用连廊与门诊、病房楼相接。
5 宜设置无性别、无障碍患者专用卫生间。
6 无障碍专用卫生间和公共卫生间的无障碍设施与设计,应符合现行标准《无障碍设计规范》GB 50763的有关规定。
10、医疗废物和生活垃圾应分别处置。
(二)、门诊部用房
1、门诊部应设在靠近医院交通入口处,应与医技用房邻近,并应处理好门诊内各部门的相互关系,流线应合理并避免院内感染。
2、门诊用房设置应符合下列要求:
1 公共部分应设置门厅、挂号、问讯、病历、预检分诊、记账、收费、药房、候诊、采血、检验、输液、注射、门诊办公、卫生间等用房和为患者服务的公共设施;
2 各科应设置诊查室、治疗室、护士站、污洗室等;
3 可设置换药室、处置室、清创室、X线检查室、功能检查室、值班更衣室、杂物贮藏室、卫生间等。
3、候诊用房设置应符合下列要求:
1 门诊宜分科候诊,门诊量小时可合科候诊;
2 利用走道单侧候诊时,走道净宽不应小于2.40m,两侧候诊时,走道净宽不应小于3.00m;
3 可采用医患通道分设、电子叫号、预约挂号、分层挂号收费等方式。
4、诊查用房设置应符合下列要求:
1 双人诊查室的开间净尺寸不应小于3.00m,使用面积不应小于12.00㎡;
2 单人诊查室的开间净尺寸不应小于2.50m,使用面积不应小于8.00㎡。
5、妇科、产科和计划生育用房设置应符合下列要求:
1 应自成一区,可设单独出入口。
2 妇科应增设隔离诊室、妇科检查室及专用卫生间,宜采用不多于2个诊室合用1个妇科检查室的组合方式。
3 产科和计划生育应增设休息室及专用卫生间。
4 妇科可增设手术室、休息室;产科可增设人流手术室、咨询室。
5 各室应有阻隔外界视线的措施。
6、儿科用房设置应符合下列要求:
1 应自成一区,可设单独出入口。
2 应增设预检、候诊、儿科专用卫生间、隔离诊查和隔离卫生间等用房。隔离区宜有单独对外出口。
3 可单独设置挂号、药房、注射、检验和输液等用房。
4 候诊处面积每患儿不应小于1.50㎡。
7、耳鼻喉科用房设置应符合下列要求:
1 应增设内镜检查(包括食道镜等)、治疗的用房;
2 可设置手术、测听、前庭功能、内镜检查(包括气管镜、食道镜等)等用房。
8、眼科用房设置应符合下列要求:
1 应增设初检(视力、眼压、屈光)、诊查、治疗、检查、暗室等用房;
2 初检室和诊查室宜具备明暗转换装置;
3 宜设置专用手术室。
9、口腔科用房设置应符合下列要求:
1 应增设X线检查、镶复、消毒洗涤、矫形等用房;
2 诊查单元每椅中距不应小于1.80m,椅中心距墙不应小于1.20m;
3 镶复室宜考虑有良好的通风;
4 可设资料室。
10、门诊手术用房设置应符合下列要求:
1 门诊手术用房可与手术部合并设置;
2 门诊手术用房应由手术室、准备室、更衣室、术后休息室和污物室组成。手术室平面尺寸不宜小于3.60m×4.80m。
11、门诊卫生间设置应符合下列要求:
1 卫生间宜按日门诊量计算,男女患者比例宜为1:1;
2 男厕每100人次设大便器不应小于1个、小便器不应小于1个;
3 女厕每100人次设大便器不应小于3个;
4 应按《综合医院建筑设计规范》 GB 51039-2014第5.1.13条的要求设置。
12、预防保健用房设置应符合下列要求:
1 应设宣教、档案、儿童保健、妇女保健、免疫接种、更衣、办公等用房;
2 可增设心理咨询用房。
(三)、急诊部用房
1、急诊部设置应符合下列要求:
1 自成一区,应单独设置出入口,便于急救车、担架车、轮椅车的停放;
2 急诊、急救应分区设置;
3 急诊部与门诊部、医技部、手术部应有便捷的联系;
4 设置直升机停机坪时,应与急诊部有快捷的通道。
2、急诊用房设置应符合下列要求:
1 应设接诊分诊、护士站、输液、观察、污洗、杂物贮藏、值班更衣、卫生间等用房;
2 急救部分应设抢救、抢救监护等用房;
3 急诊部分应设诊查、治疗、清创、换药等用房;
4 可独立设挂号、收费、病历、药房、检验、X线检查、功能检查、手术、重症监护等用房;
5 输液室应由治疗间和输液间组成。
3、当门厅兼用于分诊功能时,其面积不应小于24.00㎡。
4、抢救用房设置应符合下列要求:
1 抢救室应直通门厅,有条件时宜直通急救车停车位,面积不应小于每床30.00㎡,门的净宽不应小于1.40m;
2 宜设氧气、吸引等医疗气体的管道系统终端。
5、抢救监护室内平行排列的观察床净距不应小于1.20m,有吊帘分隔时不应小于1.40m,床沿与墙面的净距不应小于1.00m。
6、观察用房设置应符合下列要求:
1 平行排列的观察床净距不应小于1.20m,有吊帘分隔时不应小于1.40m,床沿与墙面的净距不应小于1.00m;
2 可设置隔离观察室或隔离单元,并应设单独出入口,入口处应设缓冲区及就地消毒设施;
3 宜设氧气、吸引等医疗气体的管道系统终端。
(四)、感染疾病门诊用房
1、消化道、呼吸道等感染疾病门诊均应自成一区,并应单独设置出入口。
2、感染门诊应根据具体情况设置分诊、接诊、挂号、收费、药房、检验、诊查、隔离观察、治疗、医护人员更衣、缓冲、专用卫生间等功能用房。
(五)、住院部用房
1、住院部应自成一区,设置单独或共用出入口,并应设在医院环境安静、交通方便处,与医技部、手术部和急诊部应有便捷的联系,同时应靠近医院的能源中心、营养厨房、洗衣房等辅助设施。
2、出入院用房设置应符合下列要求:
1 应设登记、结算、探望患者管理用房;
2 可设为患者服务的公共设施。
3、每个护理单元规模应符合《综合医院建筑设计规范》第3.2.1条的规定,专科病房或因教学科研需要可根据具体情况确定。设传染病房时,应单独设置,并应自成一区。
4、护理单元用房设置应符合下列要求:
1 应设病房、抢救、患者和医护人员卫生间、盥洗、浴室、护士站、医生办公、处置、治疗、更衣、值班、配餐、库房、污洗等用房;
2 可设患者就餐、活动、换药、患者家属谈话、探视、示教等用房。
5、病房设置应符合下列要求:
1 病床的排列应平行于采光窗墙面。单排不宜超过3床,双排不宜超过6床;
2 平行的两床净距不应小于0.80m,靠墙病床床沿与墙面的净距不应小于0.60m;
3 单排病床通道净宽不应小于1.10m,双排病床(床端)通道净宽不应小于1.40m;
4 病房门应直接开向走道;
5 抢救室宜靠近护士站;
6 病房门净宽不应小于1.10m,门扇宜设观察窗;
7 病房走道两侧墙面应设置靠墙扶手及防撞设施。
6、护士站宜以开敞空间与护理单元走道连通,并应与治疗室以门相连,护士站宜通视护理单元走廊,到最远病房门口的距离不宜超过30m。
7、配餐室应靠近餐车入口处,并应有供应开水和加热设施。
8、护理单元的盥洗室、浴室和卫生间,应符合下列要求:
1 当卫生间设于病房内时,宜在护理单元内单独设置探视人员卫生间。
2 当护理单元集中设置卫生间时,男女患者比例宜为1:1,男卫生间每16床应设1个大便器和1个小便器。女卫生间每16床应设3个大便器。
3 医护人员卫生间应单独设置。
4 设置集中盥洗室和浴室的护理单元,盥洗水龙头和淋浴器每12床~15床应各设1个,且每个护理单元应各不少于2个。盥洗室和淋浴室应设前室。
5 附设于病房内的浴室、卫生间面积和卫生洁具的数量,应根据使用要求确定,并应设紧急呼叫设施和输液吊钩。
6 无障碍病房内的卫生间应按《综合医院建筑设计规范》 GB 51039-2014第5.1.13条的要求设置。
9、污洗室应邻近污物出口处,并应设倒便设施和便盆、痰杯的洗涤消毒设施。
10、病房不应设置开敞式垃圾井道。
11、监护用房设置应符合下列要求:
1 重症监护病房(ICU)宜与手术部、急诊部邻近,并应有快捷联系;
2 心血管监护病房(CCU)宜与急诊部、介入治疗科室邻近,并应有快捷联系;
3 应设监护病房、治疗、处置、仪器、护士站、污洗等用房;
4 护士站的位置宜便于直视观察患者;
5 监护病床的床间净距不应小于1.20m;
6 单床间不应小于12.00㎡。
12、儿科病房用房设置应符合下列要求:
1 宜设配奶室、奶具消毒室、隔离病房和专用卫生间等用房;
2 可设监护病房、新生儿病房、儿童活动室;
3 每间隔离病房不应多于2床;
4 浴室、卫生间设施应适合儿童使用;
5 窗和散热器等设施应采取安全防护措施。
13、妇产科病房用房设置应符合下列要求:
1 妇科应设检查和治疗用房。
2 产科应设产前检查、待产、分娩、隔离待产、隔离分娩、产期监护、产休室等用房。隔离待产和隔离分娩用房可兼用。
3 妇科、产科两科合为1个单元时,妇科的病房、治疗室、浴室、卫生间与产科的产休室、产前检查室、浴室、卫生间应分别设置。
4 产科宜设手术室。
5 产房应自成一区,入口处应设卫生通过和浴室、卫生间。
6 待产室应邻近分娩室,宜设专用卫生间。
7 分娩室平面净尺寸宜为4.20m×4.80m,剖腹产手术室宜为5.40m×4.80m。
8 洗手池的位置应使医护人员在洗手时能观察临产产妇的动态。
9 母婴同室或家庭产房应增设家属卫生通过,并应与其他区域分隔。
10 家庭产房的病床宜采用可转换为产床的病床。
14、婴儿室设置应符合下列要求:
1 应邻近分娩室;
2 应设婴儿间、洗婴池、配奶室、奶具消毒室、隔离婴儿室、隔离洗婴池、护士室等用房;
3 婴儿间宜朝南,应设观察窗,并应有防鼠、防蚊蝇等措施;
4 洗婴池应贴邻婴儿间,水龙头离地面高度宜为1.20m,并应有防止蒸气窜入婴儿间的措施;
5 配奶室与奶具消毒室不应与护士室合用。
15、烧伤病房用房设置应符合下列要求:
1 应设在环境良好、空气清洁的位置,可设于外科护理单元的尽端,宜相对独立或单独设置;
2 应设换药、浸浴、单人隔离病房、重点护理病房及专用卫生间、护士室、洗涤消毒、消毒品贮藏等用房;
3 入口处应设包括换鞋、更衣、卫生间和淋浴的医护人员卫生通过通道;
4 可设专用处置室、洁净病房。
16、血液病房用房设置应符合下列要求:
1 血液病房可设于内科护理单元内,亦可自成一区。可根据需要设置洁净病房,洁净病房应自成一区。
2 洁净病区应设准备、患者浴室和卫生间、护士室、洗涤消毒用房、净化设备机房。
3 入口处应设包括换鞋、更衣、卫生间和淋浴的医护人员卫生通道。
4 患者浴室和卫生间可单独设置,并应同时设有淋浴器和浴盆。
5 洁净病房应仅供一位患者使用,洁净标准应符合本规范第7.5.4条规定,并应在入口处设第二次换鞋、更衣处。
6 洁净病房应设观察窗,并应设置家属探视窗及对讲设备。
17、血液透析室用房设置应符合下列要求:
1 可设于门诊部或住院部内,应自成一区;
2 应设患者换鞋与更衣、透析、隔离透析治疗、治疗、复洗、污物处理、配药、水处理设备等用房;
3 入口处应设包括换鞋、更衣的医护人员卫生通过通道;
4 治疗床(椅)之间的净距不宜小于1.20m,通道净距不宜小于1.30m。
一、武汉火神山医院、雷神山医院
这座从方案设计到建成交付仅用10天打造的火神山医院,让“中国速度”再次惊艳世界。
为救治新型冠状病毒感染的肺炎患者,解决现有医疗资源不足的问题,武汉决定兴建火神山医院。
参照北京小汤山医院模式建设的武汉蔡甸火神山医院,总建筑面积达3.4万平米,主要救治确诊患者,编设床位1000张。
△火神山医院总平面图,图片来自中信设计院
项目结合武汉本地当前气候条件,采用更加先进的技术和高于现有传染病医院的防护隔离标准,为患者和医护人员提供更加安全可靠的诊疗环境。
充分考虑当前能够最快采购的建造材料资源,采用模块化设计,主要由接诊区、负压病房楼、ICU、医技楼、网络机房、中心供应库房、垃圾处理暂存间、救护车洗消间等构成。

△建成后的俯瞰效果图 中信设计院提供
临时医院看似简单,实则设计要求非常高!
防护隔离的方式、医患和医疗用品的流线、建筑材料的选用、建筑的防火要求都是设计考虑的重点。

每个护理单元都有医护人员工作休息的清洁区、观察病人和运送药品仪器的半污染区,以及收治病人的污染区,并相应设有正压清洁区到负压污染区的通风系统,分区之间的连通处设置缓冲间,以保证每个分区之间压差。
可以由多个H型模块排列而成,其中,沿中轴线布置办公区域和医护人员通道,每个中心模块负责4个护理单元,护理单元内安置两列病房。
患者从病房外周进出病区,医护人员从中轴核心经层层更衣和卫生通过区进入病房进行检查、治疗和看护。
这样的功能结构能够严格控制空气的洁净梯次,切实保障医护人员卫生安全,同时有效开展医疗救治工作。
每个病房按照2人间设计,约18平方米,均配备了供氧系统、负压抽吸系统等。病房设独立卫生间,卫生间配有坐便器、安全抓杆和淋浴等设施。5万平方米防渗膜全覆盖雨污水全收集消毒。

△雷神山医院隔离病区整体效果图
△雷神山医院隔离病区病房样板模型一
每间板房面积为3米*6米,进入后首先为医护人员缓冲区,两边是病房,各自配有卫生间。病房内,氧气罩、 呼叫铃等设施一应俱全。
△雷神山医院隔离病区病房样板模型二
火神山医院采用的是集装箱房,而雷神山医院为钢架临时建筑。由于采用标准化、模块化设计,所有建筑均可快速拆除,部件经消毒处置后可周转使用。
二、南京市公共卫生中心

南京市公共卫生医疗中心位于南京市江宁区青龙山脚下,是中国Z大的传染病医院单体,共有3幢主体建筑,呈“品”字形结构,总建筑面积达到11万平方米。

整个工程以青龙山绿色生态环境为背景,充分利用山地提供的屏障、高差、山形和水体,结合南京当地的风向、日照等自然条件,通过对多类型传染病救治管理特点的深入研究,成功地设计了既资源共享又安全独立的大型传染病医院。

项目主要内容包括:传染病专科、结核病专科、爆发烈性疾病专科、小综合病种、救援中心、办公和辅助用房、科研和教学用房、员工生活区等。

△总平面图
与其他所有医疗机构设置均不一样的是,所有传染病区的进出口不是面向中心广场方向,而是设置在处于建筑群外围地形高处的相对独立区域,并面向外围打开,这样可让各个病区的病人从外围进入病区,有效避免交叉感染。


利用小山谷隔离设计的突发性传染病应急中心,保障了应对突发传染病时的自主封闭和安全扩张。北侧高处自成体系的员工休息区进一步保障了员工的安全。


波浪形轻盈的外遮阳系统既是节能手段,又为室内提供了柔和的光线和私密的氛围;环抱的山景及利用场地泄洪水系形成的平静的湖面交相辉映,带给患者安全感和对生命的向往,如同创世者关爱的怀抱。

根据传染病医院的特点,从医院整体到每个科室和病房都做到了医患分离,洁污分离。污染区与非污染区分离。并且实现了不同种类传染病间污染区的各自分离和控制。

△清洁区和污染区分布示意

△1层和2层平面图

△1层平面图

△南北立面图

△剖面图
项目名称 : 南京市公共卫生中心
设计单位 : 瑞士瑞盟设计 LEMANARC SA
项目地点:中国南京市江宁区
设计师:Vincent Zhengmao Zhang 张万桑, Daniel Pauli
三、厦门弘爱医院

精致的建筑立面
在模块的布置和重构的基础上,将超过30万平方米的建筑整体以细致的水平折线连接在一起,形成了一个具有韵律感的整体。

光阴被建筑立面的细致肌理分隔开,使观者更加关注建筑的细节以及建筑与自身的关系,这恰好表明这是一个可以提供细致服务的医疗场所。

从流动到流动空间
一般而言,医疗建筑的人流往往是刚性的通道;而厦门弘爱医院的室内设计则将传统医疗建筑呆板的通道转变为充满服务和活力的细致服务空间。

服务空间
通过服务家具和服务空间的模块化设计,医疗建筑逐渐被提升为服务的载体。建筑的内部空间可容纳100多种精心设计的家具。
中央采光厅的环境不仅被设计成各种服务空间,甚至每一个原本简单的过道都被打造成一个美丽的医疗生活节点,让人驻足享受服务的乐趣。

空间认可
简单而活跃的色彩分配营造出一个简洁而通风的疗伤空间。该空间正在向用户表达自身的功能和服务,并且标识系统在室内设计之初就实现了。
所有的色彩和形式都旨在使人认可并获得愉快的体验。这里不需要任何多余的装饰,因为该空间仅希望唤起用户愉悦,轻松的心情。

文化艺术
如果说白色传承了厦门阳光海岸的精神,那么木色则在这里表达了造船和家具的传统。暖木有节奏地呈现在暖色调的灰白色背景上,既表达了关怀与关爱,又体现了医疗文化本身的宁静与温暖。

成本控制
室内设计重新布置了整栋建筑的模块,并逐步将模块化的设计理念应用于建筑内部的所有细节中。
模块的设计思路和标准尺寸是从标准化材料到细节的接合处进行的,从而通过标准化的采购节省了大量的施工成本。

高效的设计和施工
从设计到竣工仅两年,不仅保证了项目从投资到运营,再到回报的高效率,而且还保留了各种空间,为未来运营中的医院的发展和完善做准备。
相信随着医院运作的进一步拓展和服务水平的提高,厦门弘爱医院将充分享受这一以未来为导向的设计所带来的各种保留,并将渗透到点滴养生所需的各种细致服务之中。

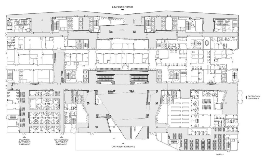
△场地平面图

△一层平面图

△二层平面图

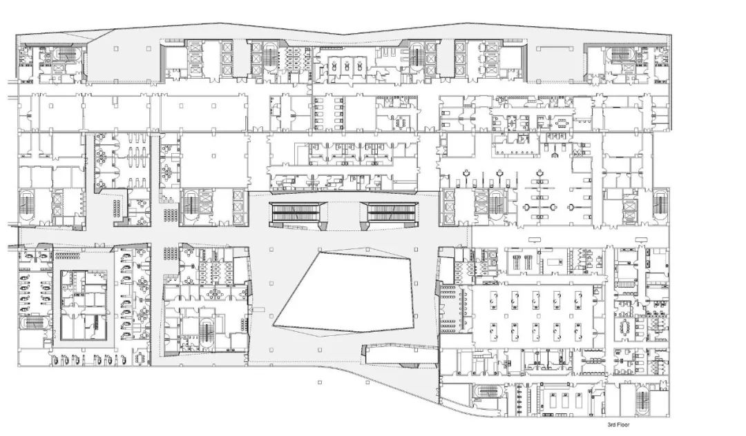
△三层平面图

△四层平面图

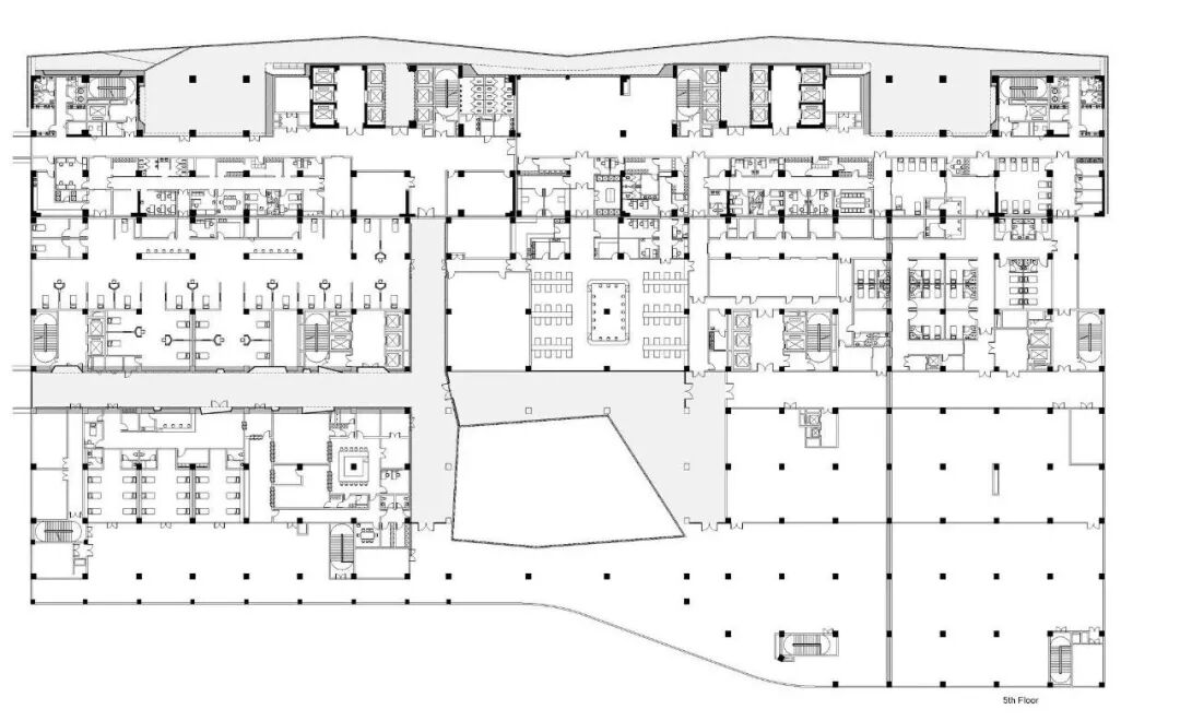
△五层平面图

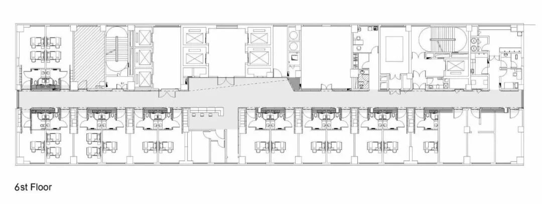
△六层平面图


△立面图
建筑师:瑞士瑞盟设计 (Lemanarc SA)
地点:中国 厦门
主创建筑师:张万桑
面积:330000.0平方米
年份:2018
摄影:夏强
四、深圳福田妇儿医院

△深圳福田妇儿医院 ?DOFFICE
项目位处城市中心安托山片区,用地极其紧张。我们的设计从使用功能及基地条件出发,利用现状地形条件,将极限用地空间的劣势转化为优势,巧用密集式的布局,有效节省用地,更可形成简洁清晰,高效率的流线系统。

医院裙楼划分为北侧门急诊、南侧医技,中间采用医疗街作为医院主要流线集散枢纽;住院部位于医技部上方,分为妇科楼及儿科楼,两个独立护理单元之间由空中花园连廊连接;教研综合楼横跨南北两区,与住院楼形成半围合形式。设计采用模块化建筑布局,功能分区简单明确、灵活且便于拓展。流线高效顺畅,明确区分公共通道、医务、病人、教研及办公人员的流线,互不干扰。

在极限的用地里建设密度高达62%的医院,
再建一个公园,
可能吗?

为城市建设一座医院,
并还给城市一个公园!
设计在裙楼上营造一个以山丘为特色的空中生态公园,公园面积达4500平方米,弥补项目场地有限和绿化不足的缺点,同时也将医院有机的融合于自然的景观环境中。

在超高密度的城市中心,海绵城市见效甚微,因为公共区域的“海绵”百分比可能比建筑和道路占地率低,缺少了“海绵建筑”的“贡献”,海绵城市难以独善其身发挥作用。本设计利用深覆土的空中公园,将基地形成一个可以自然积存、自然渗透、自然净化的“海绵建筑”系统。此外,也利用3D立体绿化来减少噪音和减少热辐射的吸收,有助于缓解城市热岛效应。

本设计的特点在于从人文关怀的角度出发,在医院内外设计了丰富多元的特色公共空间,为病患及医护提供极具人性化和亲和力的就医体验。

[ 入口大堂 ]
基地西北角设置3500平方米的室外广场,便于人群集散及分流。室外广场及室内空间贯通连接。入口大堂及医疗街面积可达3000平方米,在宽敞明亮的大堂,配有自助终端机,病患不再需要拖着病躯挤在狭小的空间排队等候挂号,看病轻松自如,挂号排队从此消失了!

[ 医疗街 ]
在明亮的医疗街,可清晰看到门诊和医技各科室、自动扶梯和电梯的位置,患者可轻易找到目标诊室及路线,避免大型医院迷宫般的布局。门诊的医疗功能水平展开,各科室候诊区域面向医疗街,使就诊流线一目了然。医技部各科室橱窗展示各式尖端设备及空间,形成开放、透明、人性化的现代医疗空间形象。

[ 门诊花园 ]
门诊中庭花园确保所有诊室的通风采光,病患可于中庭花园中候诊休憩,治愈系的花园延伸至空中公园,形成多层次立体绿化景观。


[ 空中公园 ]
架空层及空中公园形成贯通开放的生态景观空间,4500平方米延绵起伏的生态公园将医院有机地融合于自然绿化环境中,为医护人员及患者提供宜人的活动与康复景观环境,在工作中享受自然,在自然中治疗康复。空中公园与远处的安托山景遥相呼应,形成良好的城市景观。


[ 特色共享空间 ]
项目在住院区护理单元内,设计了多个特色共享空间,提供会客、休息、及游乐的区域,例如儿童天地游戏室、家庭客厅、阅读室、温室花园等。

人性化的共享空间采用灵活的模块化布局,全面渗透至病房区,丰富患者住院期间的生活,为患者营造独具特色的温馨住院环境。

[ 护理单元 ]
住院综合楼标准层包含两个护理单元,妇女住院楼与儿童住院楼分开布置,每个护理单元均为45床,护理单元之间采用空中花园连接。

护理单元采用灵活的模块化布局,病房均为日照采光Z佳的方向,且配备入户花园。住院区的多个空中花园及绿化阳台,为患者及医护人员提供一个生态共享的环境空间。

项目名称:深圳福田妇儿医院
项目地址:中国-深圳市-福田区-安托山
用地面积:17,346平方米
建筑面积:140,108平方米
建设规模:800床
设计时间:2017年8月(竞标方案)
建设机构:深圳市福田区建筑工务局
设计机构:DOFFICE创始点咨询(深圳)有限公司
设计团队:Chris Lai, Jasmine M.Y. Tsoi, Kwan Yee Wong, Cindy Yan, David Wen, Demi Han, Zachary Bao, Jack Ou, Zoe Zhang
合作机构:深圳市都市建筑设计有限公司
专业顾问:符永侠,海鸽,汪文胜,高德华等
五、圣地亚哥Jacobs医疗中心

为了为癌症治疗、干细胞治疗和外科治疗提供更为尖端的医疗环境,该项目的委托方联合众多医生、护士、科学家及工程师,通力打造出了这座世界级的、一切以患者为重的医疗看护中心。

Jacobs医疗中心位于Thornton Pavilion住院中心旁边,并且与一座新建的研究中心相连,509,500平方英尺的总面积中包含245个床位,整座Jacobs医疗中心将医学研究、教育和的卓越的临床医疗集于一体。

整栋建筑共10个楼层,容纳了三个主要的医学专业中心,分别为高危产妇及新生儿、癌症患者和外科手术提供了医疗和看护服务。

建筑的曲线形体量一方面取决于病房的布局,一方面则基于先进的建模技术,能够为室内带来Z佳的视野和采光,同时尽可能地减少太阳辐射和眩光。

建筑的几何形状为外观赋予了精细而流畅的质感,并随着行人的移动产生动态的视觉效果。室外的一系列空中花园和露台更为楼上的病房带来自然的氛围。


室内环境同样延续了室外的有机特质,形成一种精心策划的自然流动。病房陈设比较现代化,定制的墙面将所有必要的元素和设备集中在同一个体量内。

所有的病房都配备了可以在床边操作的iPad,使病人能够定制他们的环境,并安全地查看他们的治疗时间表和病历。基于建筑设计和专注于未来的科学技术,该医疗中心将凭借Z优质的看护服务和高端设施引领了专业住院治疗领域的新纪元。


△场地平面图

△首层平面图

△四层平面图

△十层平面图

△草图

△模型
医院平面、SU、效果图参考










医院建筑的使用功能是十分复杂的,没有一种固定不变的医疗模式,我们设计时应考虑医院的动态发展规律,运行模式的可变性,采取切实可行的建筑形式,保证医院的顺利运行,实现可持续发展。
文章转载自网络,如有侵权,请联系删除!
知识点:医院建筑设计的要点及案例
0人已收藏
0人已打赏
免费1人已点赞
分享
公共建筑设计
返回版块51.17 万条内容 · 447 人订阅
阅读下一篇
人防工程地下室设计总结人防工程简介 (一)人民防空 人民防空是动员和组织城市居民采取防护措施保护人民生命安全,避免或减少国民经济损失,保存战争潜力的防空。 (二)防空地下室 防空地下室是具有预定战时防空功能的地下室。在房屋中室内地平面低于室外地平面的高度超过该房间净高1/2的为地下室。 (三)防空地下室设计方针 必须贯彻“长期准备、重点建设、平战结合”的方针。 (四)防空地下室作用 空袭时—为人员、物资提供安全的空间。
回帖成功
经验值 +10
全部回复(0 )
只看楼主 我来说两句抢沙发