土木在线论坛 \ 建筑设计 \ 居住建筑设计 \ 轻钢龙骨吊顶

轻钢龙骨吊顶

发布于:2022-09-22 10:57:22 来自:建筑设计/居住建筑设计 [复制转发]

目前一些中小项目和住宅项目还在采用传统的吊顶施工作业法,如使用木龙骨、阻燃板、密度板、木工板等基层。


但随着新工艺、新材质的出现,大家对装修要求也越来越高,因此装修公司所要掌握技术核心也要不断更新。


本文就一家一吊顶工艺轻钢龙骨吊顶的相关知识进行详细讲解。




轻钢龙骨吊顶施工工艺




图片

工艺流程:定标高、弹出天花完成面线→安装吊杆、主龙骨、副(次)龙骨、横撑龙骨→隐蔽工程验收→封板→螺钉防锈处理、补板缝、贴防裂带


1、定标高、弹出天花完成面线


安装龙骨前,需要按照设计要求对房间净高、洞口标高和吊顶内管道、设备及其支架的标高交接检验,并根据吊顶的设计标高在四周弹出天花完成面线,要求位置准确清晰。

图片

△轻钢龙骨吊顶平面图


2、吊杆、龙骨安装


各种金属预埋件、吊杆在安装前应先做防锈处理,当然如果使用的木质吊杆、龙骨、饰面必须进行防潮、防腐、防火处理。

图片
图片

△轻钢龙骨吊顶示意图


在安装主龙骨时,间距应小于1.2m,主龙骨与墙体间距不得大于300mm。


副(次)龙骨间距一般不大于400mm ,在潮湿地区和场所,间距宜为300~400mm,相邻的次龙骨应错开连接。

图片

△轻钢龙骨吊顶剖面图

图片

△轻钢龙骨吊顶剖面


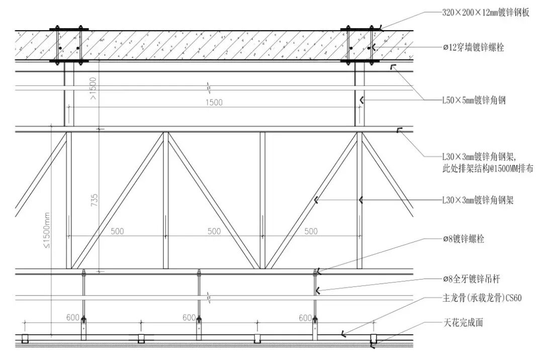
3、吊顶反支撑设置


图片

△反支撑示意图

(1)当吊杆长度超过1.5m且小于3m时,由于吊筋的稳定性不足会有安全隐患,为保证稳固性需设置反支撑,做法是在主龙骨横撑底边每隔两主龙骨间距打孔;全牙吊杆穿过,位置确定后上下用螺母固定。

图片

△吊顶反支撑节点详图

(2)当吊顶内部空间大于3m时,则需要设置型钢结构转换层来进行吊顶的反支撑。

图片

△吊顶反支撑节点详图


4、封板处理

封板处理是对基层板和饰面板进行安装,需要注意的是安装前必须进行隐蔽工程验收,并完成吊顶内管道和设备的调试和验收后才能开始施工。

图片

板材应在自由状态下进行安装,固定时应从板的中间向板的四周固定。纸面石膏板螺钉与板边距离:纸包边宜为10~15mm,切割边宜为15~20mm,水泥加压板螺钉与板边距离宜为8~15mm。


板周边钉距宜为150~170mm,板中钉距不得大于200mm,螺钉应进行防锈处理。

图片

安装双层面板时,上下层板的接通应错开,不得再同一根龙骨上接缝,相邻两块板之间应错缝拼接安装。

图片

饰面板缝需进行防裂处理,而且板缝要顺直、宽窄一致、两板间缝隙为4~7mm,不同材质交接处或板材间交接处需要进行防开裂措施。


知识点:轻钢龙骨吊顶

轻钢龙骨石膏板吊顶详图




全部回复(0 )

只看楼主 我来说两句抢沙发
这个家伙什么也没有留下。。。

居住建筑设计

返回版块

28.74 万条内容 · 423 人订阅

猜你喜欢

阅读下一篇

天花吊顶反支撑、转换层总结

知识点:天花吊顶反支撑 反支撑是指:当天花吊顶吊杆超过1500mm时,为了防止吊杆过长,室内空气产生负压,导致吊顶不稳定、出现摆动的现象,采用套管、角钢、方钢等,将吊顶龙骨“按”在原位置,增强吊顶结构稳定性的一种局部性构件形式。 转换层是指:吊杆上部为网架、钢屋架或吊杆长度大于2500mm时,常规的反支撑无法起到垂直对抗气压冲力的效果,需要将内部吊顶空间的高度采用钢结构整体降低到1500mm以内,以保证天花吊顶受力稳定性的整体性构件形式

回帖成功

经验值 +10