土木在线论坛 \ 建筑设计 \ 建筑方案设计 \ 地面三维节点做法

地面三维节点做法

发布于:2022-09-22 10:44:22 来自:建筑设计/建筑方案设计 [复制转发]
吊顶


风口与金属板相接


图片


图片

风口与金属板相接三维图示意图△


  • 根据图纸确认风口的大小和位置


  • 根据开好的风口与吊顶的高度确认大小长短


  • 安装空调系统风管


  • 龙骨的安装;


  • 风口的安装。


图片

风口与金属板相接做法节点图△


玻璃隔断与铝板相接


图片


图片

玻璃隔断与铝板相接三维图示意图△


  • 在顶棚和地面弹出玻璃隔断的位置线


  • 安装固定下部的锚固件


  • 再完成隔断上部的安装;


  • 中间填满橡皮垫或填充剂;


  • 最后用密封胶密封


图片

玻璃隔断与铝板相接节点图△


窗帘盒与玻璃幕墙相接


图片


图片

窗帘盒与玻璃幕墙收口节点三维示意图△


  • 龙骨吊件与钢架转换层焊接固定,连接处满焊,刷防锈漆三遍;


  • 50主龙间距900mm,50副龙间距300mm,副龙横称间距600mm


  • 18mm细木工板刷防火涂料三度,与吸顶吊件采用35mm自攻螺丝固定;


  • 9.5mm厚纸面石膏板用自攻螺丝与龙骨固定;


  • 满批耐水腻子三度;


  • 乳胶漆涂料饰面


图片

窗帘盒与玻璃幕墙收口节点图△


暗藏灯带窗帘盒


图片


图片

暗藏灯带窗帘盒安装三维示意图△


  • 龙骨吊件与钢架转换层焊接固定,连接处满焊,刷防锈漆三遍;


  • 50主龙间距900mm,50副龙间距300mm,副龙横称间距600mm


  • 18mm细木工板刷防火涂料三度,与吸顶吊件采用35mm自攻螺丝固定;


  • 9.5mm厚纸面石膏板用自攻螺丝与龙骨固定;


  • 满批耐水腻子三度;


  • 乳胶漆涂料饰面


图片

暗藏灯带窗帘盒安装节点图△


木饰面与钢结构圆柱相接


图片

木饰面与钢结构圆柱相接三维示意图△


  • 龙骨吸顶吊件用膨胀螺栓与钢筋混凝土板固定;


  • 50主龙间距900mm,50副龙间距300mm,副龙横称间距600mm


  • 9mm厚多层板刷防火涂料三度,用自攻螺丝与龙骨固定;


  • 木饰面采用挂条固定


  • 加工定制内径300mm,外径350mm成品木饰面线条,与木饰面固定。


图片

木饰面与钢结构圆柱相接节点图△


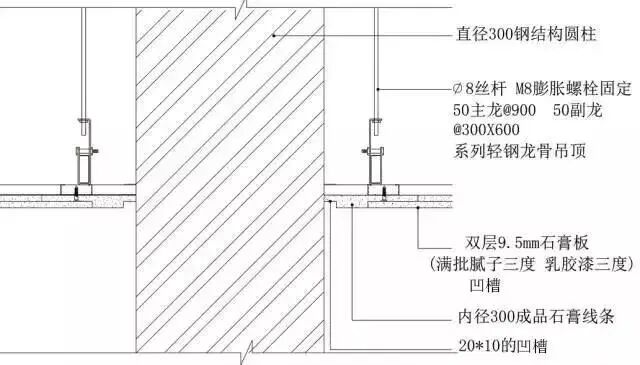
纸面石膏板与钢结构圆柱相接


图片

纸面石膏板与钢结构圆柱相接三维示意图△


  • 龙骨吸顶吊件用膨胀螺栓与钢筋混凝土板固定;


  • 50主龙间距900mm,50副龙间距300mm,副龙横称间距600mm


  • 加工定制成品石膏线条,内径300mm,外径450mm,预留20*10的凹槽


  • 9.5mm厚纸面石膏板与成品石膏线条用自攻螺丝与龙骨固定;


  • 满批耐水腻子三度;


  • 乳胶漆涂料饰面


注意:留20*10的凹槽!


图片

纸面石膏板与钢结构圆柱相接节点图△

知识点:地面三维节点做法

2019最新整理_29个地面常用做法节点详图


全部回复(2 )

只看楼主 我来说两句抢地板
  • 暴富仔
    暴富仔 沙发

    图片很清晰,赞

    2022-09-23 15:26:23

    回复 举报
    赞同0
  • daghy
    daghy 板凳

    看一下。。了解下这方面的内容

    2022-09-22 12:33:22

    回复 举报
    赞同0
这个家伙什么也没有留下。。。

建筑方案设计

返回版块

21.18 万条内容 · 300 人订阅

猜你喜欢

阅读下一篇

全轻钢龙骨结构吊顶叠级造型工艺节点,三维图解

在高端精装项目中,全轻钢龙施工标准做法已经很成熟,和传统工艺现场施工大量采用木龙骨基层、阻燃板基层、密度板基层、木工板基层等做法相比,准化、精细化、装配化、轻钢全龙骨施工标准和设计将更有利于项目成本管控、设计品质管控、施工周期管控,做出性价比高的文明工地。 但由于受长期传统观念影响,大多数的装修工人习惯采用木基层做法,一时无法转变观念,习惯性以为采用“全轻钢龙骨”施工会慢,成本会增加,其实不然。

回帖成功

经验值 +10