土木在线论坛 \ 建筑设计 \ 建筑方案设计 \ 全轻钢龙骨结构吊顶叠级造型工艺节点,三维图解

全轻钢龙骨结构吊顶叠级造型工艺节点,三维图解

发布于:2022-09-22 10:39:22 来自:建筑设计/建筑方案设计 [复制转发]

在高端精装项目中,全轻钢龙施工标准做法已经很成熟,和传统工艺现场施工大量采用木龙骨基层、阻燃板基层、密度板基层、木工板基层等做法相比,准化、精细化、装配化、轻钢全龙骨施工标准和设计将更有利于项目成本管控、设计品质管控、施工周期管控,做出性价比高的文明工地。


但由于受长期传统观念影响,大多数的装修工人习惯采用木基层做法,一时无法转变观念,习惯性以为采用“全轻钢龙骨”施工会慢,成本会增加,其实不然。

图片


可工厂定制装配化运送到现场施工的“全轻钢龙骨”结构,能实现快速安装,大幅缩短安装时间,也就降低了人工成本,和材料成本综合来看,全轻钢龙骨标准并没有增加太多成本,反而提升了项目质量水平。

图片


下面我们就来介绍项目上防火轻钢龙骨结构吊顶叠级造型通用节点。


01/装配式装饰装修重难点问题

  • 人的层面:项目管理人员缺乏工业化思维,不敢大胆创新尝试,仍旧保留传统施工方法,在新技术的风险上没有进行仔细推敲与比对;工人在新技术与新标准施工时,没有过往经验容易大意,对施工尺寸及品质没有明确概念;


  • 建筑与装修层面:目前国内的建筑模数与装饰装修的模数不协调统一,存在差异;同时各专业协同配合度不是很高,需加强组织管理;


  • 技术与材料:目前局面是千人千面,每个公司都在推陈出新,但每家的材料规格技术标准又各不相同,虽大致方向及技术效果一致,但施工具体方式显著不同,这个推广市场和市场检验带来难度;


  • 项目考核:目前国内项目装配式建筑项目较多,装修室内项目相对少很多,所以在一定程度上缺乏给业主方考察和认可的条件。

图片


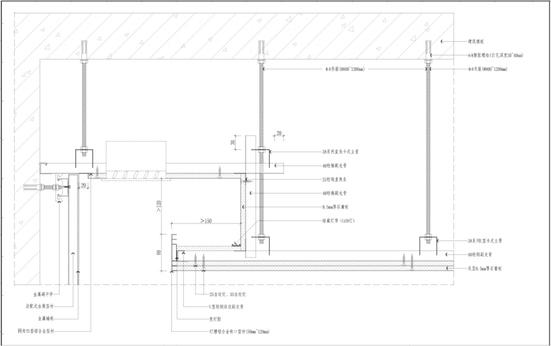
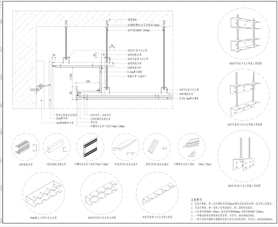
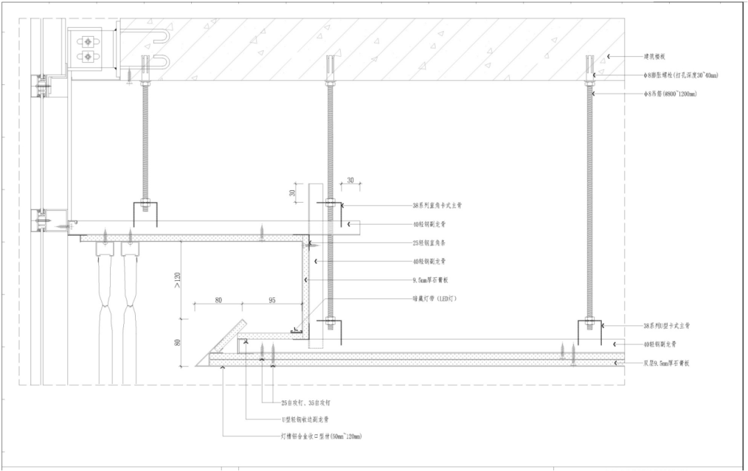
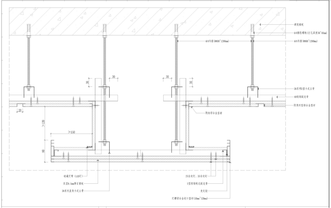
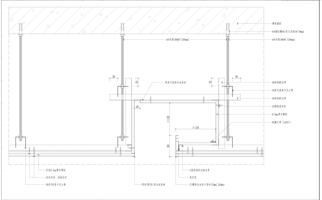
02/图纸解析

图片
图片

无木天花装配式主要配件△


图片
图片


图片
图片


图片
图片


图片
图片


图片
图片


图片
图片


图片
图片


图片
图片


图片
图片


图片


03/成本分析案例说明

本案例标准酒店客房面积为37平方米,装饰吊顶完成面高2600mm,天花窗帘盒和天花暗藏灯带叠级可省8.3平方米难燃胶合板,按E0级12厘难燃胶合板市场价格,每平方米难燃胶合板可节约50元,共节省约415元材料费用;本案例酒店客房基层木工传统做法7~8个人工,采用无木天花系统可节约1~2个人工。

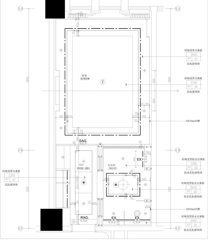
 标准客房天花平面图 

图片


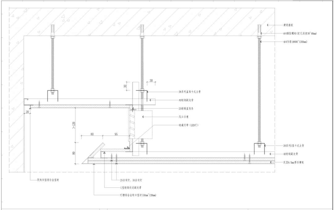
 窗帘盒节点 / 免木窗帘盒节点 

图片
图片


 灯槽叠级节点 / 免木灯槽叠级节点 

图片
图片


天花窗帘盒造型取消原设计图纸难燃胶合板基层,采用免木轻钢龙骨吊顶可节约木夹板面积为:500*3550=1.8m? 约0.6张夹板。


天花灯槽叠级造型取消原设计图纸难燃胶合板基层,采用免木轻钢龙骨结构叠级造型吊顶可节约木夹板面积为(300*14202.7)+(150*14202.7)=4.3+2.2=6.5m? 约2.16张夹板。


知识点:吊顶节点


  • daghy
    daghy 沙发

    看一下。。了解下这方面的内容

    2022-09-22 12:35:22

    回复 举报
    赞同0
这个家伙什么也没有留下。。。

建筑方案设计

返回版块

21.18 万条内容 · 300 人订阅

猜你喜欢

阅读下一篇

吴文化博物馆

    全文刊登于《当代建筑》   2022年第9期    p92-99 吴文化博物馆坐落在美丽的苏州市澹台湖南岸,北临核心景区,视野开阔,景色优美,与著名的宝带桥隔湖相望。长桥卧波,水天一色,实乃一处难觅的江南佳境。

回帖成功

经验值 +10