
2、水深1.0米时,计算所得配筋同0.5米时一致。

3、只有当水深大于2.5米时,配筋大小才会进行调整。

根据以上分析,常规水池配置双层双向8@150,即可满足要求。
三、水池结构图画法
以下图为例:
下图为常规跌水水景剖面做法,且不论其配筋大小是否合适,但是在混凝土结构整体设计上存在现场施工困难的情况。

通过优化上面示例结构图后,泵坑内侧增加砖砌模,跌水处混凝土一体浇筑,直角衔接的时候,采用放坡处理,满足常规混凝土设计要求,同时使施工更方便。
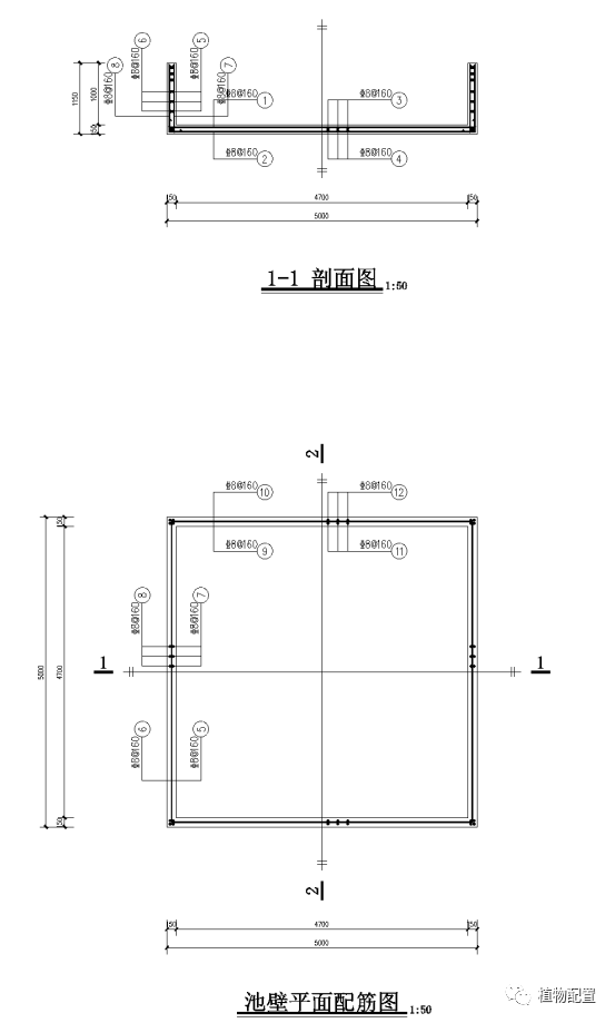
结构配筋绘制上,采用详图式绘制,力求图纸表达更清晰明白,现场施工钢筋下料更为准确,保证整体混凝土浇筑质量。

很多项目的水景后期养护不到位,变成了臭水沟,有的甚至长满绿毛,而且大部分水景泛碱情况很严重。
建议居住区的水景根据各家项目定位及物业实力适当控制面积。
毕竟都是死水,想维护的好成本太高。
问渠那得清如许,为有源头活水来。
(内容来源于网络,如有侵权请联系删除)
相关推荐:景观水景结构施工图
知识点:水景结构设计
0人已收藏
0人已打赏
免费1人已点赞
分享
景观规划设计
返回版块25.18 万条内容 · 282 人订阅
阅读下一篇
园林工程中挡土墙设计的基本设计形式随着对园林工程审美要求的提高,挡土墙的景观营造设计对丰富园林工程景观空间的视觉效果具有重要的作用。在进行挡土墙景观营造形式的设计时,应该遵循其基本原则,协调环境、因地制宜地塑造空间,运用线条性、立体空间型、图案型等多种形式来构造景观,创新挡土墙的形式,使其空间营造更丰富多样,更具艺术性。挡土墙的设计形式指挡土墙的形状和高矮。据环境状况通常采用“五化”设计手法,即化高为低、化整为零、化大为小、化陡为缓、化直为曲。这五种设计改变了挡土墙立陡的单一设计,与植物等相结合,减小了挡土墙的不利视面,增加了绿化量,既有利于创造小气候,又有利于提高空间环境的视觉品质。挡土墙的设计形式一般那分为以下五种:
回帖成功
经验值 +10
全部回复(0 )
只看楼主 我来说两句抢沙发