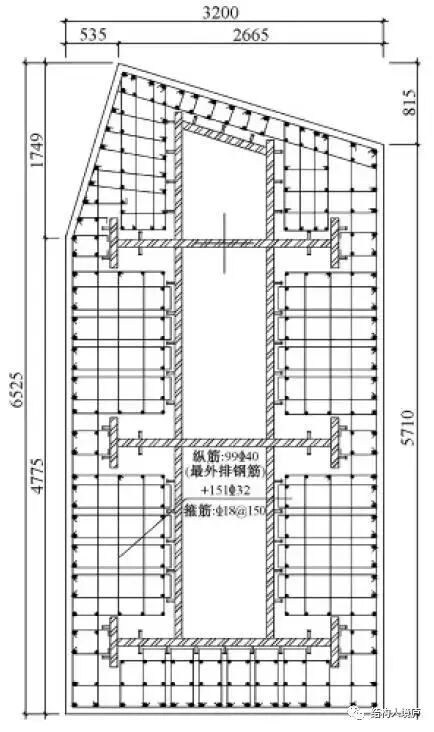
引子“平安塔有巨柱,柱之大,你家客厅放不下”,借用了电影《大鱼海棠》开场白的一个梗,形象描述了深圳平安金融中心大厦的八根巨柱做法。


图a—巨柱配筋详图
类似于平安塔的大型项目需要天时地利人和,需要非常巨大的人力物力资金的投入,大部分结构人的职业生涯都很难遇到此种机会,所以我们把注意力拉回到现实,着眼分析我们常见钢筋混凝土结构上,框架柱按截面类型分为方柱、圆柱、异形柱(L形、T形、十字形),可框架柱要如何合理地设计,有什么可遵循的设计规则和配筋方法呢?下面简单做个总结:
1、方柱——程序计算结果,对X向Y向均有配筋面积要求,应在满足计算配筋量的要求前提下,先加大角筋直径(建议比其余纵筋大两个级配),再来配X向Y向其余纵筋;根据柱子截面,先按构造确定最小的箍筋直径及肢数(柱箍筋肢距,一级为200mm、二级三级为250mm、四级为300mm),若箍筋计算值较大则优先增加外箍直径,再来按设计配置纵筋根数。
日常设计审查工作中总会发现,年轻工程师不讲武德,设计图纸毫无规则,相关做法只能达到不违反规范要求的初级水平,与高层次设计距离甚远,如某项目抗震等级为三级,柱箍筋肢距按规范要求≤250mm即可,可图纸上的KZ-4柱箍筋为7肢箍,肢距90mm,虽然没有违反规范条文,但造成很大的浪费,其余柱纵筋及箍筋设计也是有较大的调整空间,建议按构造及计算固定箍筋类型,柱纵筋在复合箍之间隔一拉一。

图b—某项目柱配筋详图(初级水平)
ê

2、圆柱——通用计算程序,纵筋为全截面的总配筋面积,,应注意配筋根数应≥6,设计中经常忽略的就是箍筋配置是否合理,笔者也是历经多年,受到一位资深的前辈提点,才有了深刻的思考,圆柱内套箍规格归并统一,设计混凝土浇筑导管空间,如某项目KZ3/KZ4柱内套箍统一,仅为方向不同旋转,施工备料简单合理,混凝土浇筑也能保证,比普通复合箍筋的配置提高一个层级。

图c—圆柱计算输出结果示意

图d—某项目圆柱配筋详图(经过深刻思考的设计)
3、异形柱(L形、T形、十字形)—计算程序输出固定位置配筋,其余为构造钢筋,柱内全部纵筋及肢端钢筋应符合《混凝土异形柱结构技术规程》相关要求,普通设计人员没有理解规范规定,胡子眉毛一把抓,造成配筋的浪费,可进行配筋的细化;还有一项应特别注意,各肢的外箍2*Asv1/(b*s)应满足计算要求,构造筋之间的拉筋不能作为斜截面抗剪箍筋。

图e—异形柱固定位置配筋示意

ê

图f—异形柱配筋细化
以上三个方面的框架柱配筋合理设计原则的思考总结,是现在快速发展的时代里年轻工程师容易忽略的地方,所谓的年轻人要讲武德,多总结多学习,耗子尾汁!!!
内容源于网络,如有侵权,请联系删除
相关资料推荐:
知识点:框架柱配筋
0人已收藏
0人已打赏
免费5人已点赞
分享
混凝土结构
返回版块140.17 万条内容 · 2216 人订阅
阅读下一篇
滑动支座楼梯的优缺点与实际应用楼梯想必每个人都见过,由梯段、平台、栏杆扶手组成的垂直交通空间,同时作为逃生通道在地震来临时也担任着重要的作用。因此在设计中楼梯对建筑的安全性、使用的便捷性、造型的美观性都有着至关重要的意义。 借此契机来聊一聊这次的容西项目中使用的滑动支座楼梯 就以下四个方面来聊一聊滑动支座: ①滑动支座的优缺点
回帖成功
经验值 +10
全部回复(1 )
只看楼主 我来说两句 抢板凳好东西,值得学习学习哈,
回复 举报