
本文仅供学习交流使用。感谢中国建筑标准设计研究院。私自印刷、复制、传播是违法行为。请支持购买正版图集!
22G101-3《混凝土结构施工图平面整体表示方法制图规则和构造详图(独立基础、条形基础、筏形基础、桩基础)》是对16G101-3《混凝土结构施工图平面整体表示方法制图规则和构造详图(独立基础、条形基础、筏形基础及桩基承台)》的修编。
本次修编按《工程结构通用规范》GB 55001-2021、《建筑与市政工程抗震通用规范》GB 55002-2021、《建筑与市政地基基础通用规范》GB 55003-2021、《混凝土结构通用规范》GB 55008-2021等强制性工程建设规范,结合近年来工程实践对图集提出的反馈意见,对图集内容进行了系统的梳理、修订。
图集适用于各类结构类型下现浇混凝土独立基础、条形基础、筏形基础(分为梁板式和平板式)及桩基础施工图设计。
图集中包括常用的现浇混凝土独立基础、条形基础、筏形基础(分为梁板式和平板式)及桩基础的平面整体表示方法制图规则和构造详图两大部分内容。
图集编制单位为:中国建筑标准设计研究院。22G101-3共132页(含封面封底等),官方定价为87.00元,由中国标准出版社出版发行,实行日期为二0二二年五月一日;16G101-3共119页,官方定价为75元,由中国计划出版社出版发行。印刷、复制、传播是违法行为。请支持购买正版!
22G101-3第1页,增加第9点说明:图集钢筋采用90°弯折锚固时,图集图示“平直段长度”及“弯折段长度”均指包括弯弧在内的投影长度
22G101-3第2页增加钢筋图例说明
22G101-3第2-2、2-3、2-5、2-6页,取消了(抗震设计时)受拉钢筋(基本)锚固及搭接长度要求中,关于C20混凝土及HRB335、HRBF335级钢筋的相关内容;明确受拉钢筋抗震锚固长度中,HPB300钢筋末端应做180°弯钩,混凝土强度等级取锚固区的混凝土强度等级
22G101-3第2-4页,取消了“纵向钢筋弯钩与机械锚固形式”中,贴焊锚筋的做法。同时增加了对500MPa级带肋钢筋的锚固要求
22G101-3第1-3页,将16G101-3第7页中的“当独立基础截面形状为坡形时”修改为:“当独立基础截面形状为锥形时”;独立基础编号相应由DJp和BJp修改为DJz和BJz,后续涉及此项的名称均进行了修改


22G101-3,第1-3页
22G101-3第1-3页,将16G101-3第8页中的“其中杯口深度a0为柱插入杯口的尺寸加50”修改为:“其中a0为杯口深度”

22G101-3,第1-3页
22G101-3中,独立基础的原位标注,均由轴线开始,而16G101-3是由柱边开始。其中,第1-9、1-10页,阶形及锥形杯口独立基础原位标注,增加一道杯口上口边到轴线的尺寸
16G101-3(左图)、22G101-3(右图)

22G101-3,第1-9页
22G101-3第1-17页,增加了“竖向加腋截面注写示意”图。当为竖向加腋梁时,用b× h Yc1×c2表示,其中c1为腋长,c2为腋高

22G101-3,第1-17页
22G101-3第1-18页,增加了“基础梁外伸部位变截面高度注写示意”图。当基础梁外伸部位采用变截面高度时,在该部位原位注写b×h1/h2,h1为根部截面高度,h2为尽端截面高度

22G101-3,第1-18页
22G101-3第1-16页,将原16G101第21页的“截面注写”表达方式明确为“列表注写”表达方式,同时删除原16G101第28页的“截面标注”表达方式

22G101-3,第1-16页
16G101-3,第21页
16G101-3第28页删除内容
22G101-3第1-38页,平面注写方式中,相比16G101-3,增加注写“单桩竖向承载力特征值”

22G101-3,第1-38页
22G101-3第1-39页,细化灌注桩列表注写的格式

22G101-3,第1-38页

16G101-3,第45页
22G101-3第1-40页,将16G101-3第46页中的“坡形”独立承台截面形状修改为“锥形”;编号相应由CTp修改为CTz,后续涉及此项的名称均进行了修改
22G101-3在1-41页的独立承台的平面注写方式中,取消了三桩承台关于分布钢筋注写的相关文字描述及要求。第2-39页,在“等边三桩承台配筋构造”中,取消了分布钢筋示意。第2-40页“等腰三桩承台配筋构造”亦有类似修改。
22G101-3(左图)、16G101-3(右图)

22G101-3(左图)、16G101-3(右图)
22G101-3中,各类型承台的平面原位标注,尺寸线定位均由轴线开始,而16G101-3是由柱边开始

16G101-3(左图)、22G101-3(右图)
22G101-3第1-45增加了“桩基础平法施工图平面注写方式示例”图;第1-46页增加了“独立承台平法施工图平面注写方式示例图”(本文未给出),其中三桩承台未注写分布钢筋

22G101-3,第1-45页
22G101-3第1-47页,将16G101-3中的构造类型“下柱墩”XZD“修改为“局部增加板厚”,代号“JBH”。第1-49页,倒棱台形增加板厚时,也要设置水平箍筋,而16G101-3第54页说明“倒棱台下柱墩,其侧面由两向纵筋覆盖,不必配置水平箍筋”
22G101-3,第1-47页

16G101-3,第52页

22G101-3,第1-49页

16G101-3,第54页
22G101-3第2-7页,封闭箍筋及拉筋构造,相对16G101-3第63页,增加135°标注

22G101-3,第2-7页
22G101-3第2-8页,墙身竖向分布钢筋在基础中构造,相对16G101-3第64页,注写中增加可不另设锚固区横向钢筋的条件
22G101-3,第2-8页
22G101-3第2-15页,细化杯口独立基础顶部焊接钢筋网尺寸要求。第2-16、2-17、2-2、2-210页,亦有类似修改

22G101-3,第2-15页

16G101-3,第71页
22G101-3第2-18页,在“单柱带短柱独立基础配筋构造”中给出柱纵筋锚固示意。第2-19页双柱带短柱独立基础配筋构造亦有类似修改

22G101-3(左图)、16G101-3(右图)
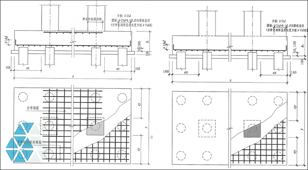
22G101-3第2-28页,在“基础梁JL与柱结合部侧腋构造”中增加注写4

22G101-3,第2-28页
22G101-3第2-43页,在“双柱联合承台底部与顶部钢筋配筋构造”中,增加了顶部钢筋示意。

22G101-3(左图)、16G101-3(右图)
22G101-3第2-53页,增加“柱下筏板局部增加板厚角部放射筋”构造图
22G101-3,第2-53页

22G101-3增加了附录,第2-56~60为三维索引,第2-61页为设计需写明的构造做法选用:

22G101-3,第2-56页

22G101-3,第2-61页
内容源于网络,如有侵权,请联系删除
相关资料推荐:
知识点:22G101-3
0人已收藏
0人已打赏
免费6人已点赞
分享
结构资料库
返回版块41.29 万条内容 · 424 人订阅
阅读下一篇
悬挑板阳角放射筋到底放在哪一层?筏板呢?悬挑板阳角放射筋到底放在哪一层?今天抛砖引玉,欢迎讨论! 首先分两种情况,楼/屋面板的悬挑板阳角放射筋和筏板基础外挑阳角放射筋!首先从大的位置上,楼/屋面板放射筋自然是在顶部,筏板放射筋在底部!那具体是在哪一层,和受力钢筋的关系如何?
回帖成功
经验值 +10
全部回复(0 )
只看楼主 我来说两句抢沙发