土木在线论坛 \ 道路桥梁 \ 桥梁工程 \ 详细全面的桥梁工程识图,纯干货!

详细全面的桥梁工程识图,纯干货!

发布于:2022-09-06 15:15:06 来自:道路桥梁/桥梁工程 [复制转发]

识读桥梁工程图

图片
图11-1   桥梁各组成部分示意图
桥梁通常由上部结构(主梁或主拱圈和桥面系)、下部结构(桥墩、桥台和基础)及附属结构(栏杆、灯柱、护岸、导流结构等)三部分组成。如图11-2所示。
图片
图11-2  桥梁的基本组成
图片
图11-3  桥梁上部结构概貌
图片
图11-4 桥梁下部结构的桥墩与桥台 (a)桥墩;(b)桥台
图片
图11-5 桥梁的截面形式     (a)装配式T形梁;   (b)箱梁桥横截面
1
桥位平面图
桥位平面图是通过地形测量绘出桥位处的道路、河流、水准点、钻孔及附近的地形和地物,以便作为桥梁设计、施工定位的依据。其作用是表示桥梁与路线所连接的平面位置,以及桥位处的地形、地物等情况,其图示方法与路线平面图相同,只是所用的比例较大。如图11-6所示,为某桥的桥位平面图。
图片
图11-6   桥位平面图
2
桥位地质断面图
桥位地质断面图是根据水文调查和地质钻探所得的资料,绘制的河床地质断面图,用以表示桥梁所在位置的地质水文情况,包括河床断面线、地质分界线,特殊水位线(最高水位、常水位和最低水位)。如图11-7所示。
图片
图11-7  所示为某桥的总体布置图
图片
图11-8  桥位地质断面图
3
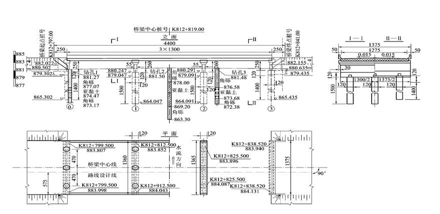
桥梁的总体布置图
桥梁总体布置图是指导桥梁施工的主要图样,它主要表明桥梁的型式、跨径、孔数、总体尺寸、桥面宽度、桥梁各部分的标高、各主要构件的相互位置关系及总的技术说明等,作为施工时确定墩台位置、安装构件和控制标高的依据。它一般由立面图(或纵断面图)、平面图和剖面图组成。
4
构件结构图
在总体布置图中,桥梁构件的尺寸无法详细完整地表达,因此需要根据总体布置图采用较大的比例把构件的形状、大小完整表达出来,以作为施工的依据,这种图称为构件结构图,简称构件图或构造图。
1、桥台结构图  桥台属于桥梁的下部结构,主要是支承上部的板梁,并承受路堤填土的水平推力。如图11-9所示。
图片
图11-9    桥台结构图及立体示意图
2、桥墩构造图  桥墩和桥台一样同属桥梁的下部结构,其作用是将相邻两孔的桥跨连接起来,如图11-10所示为该桥所用的轻型钢筋混凝土薄壁桥墩,该桥墩由墩帽及挡块、支座垫石、墩身、承台、桩基等组成。
图片
图11-10  桥墩结构图及桥墩与桥台立体示意图
图片
图11-11  预应力钢筋混凝土空心板结构图

相关资料推荐:

桥梁工程技术施工方案

https://ziliao.co188.com/p62859328.html

某地特色桥梁工程全套建筑设计cad施工图纸

https://ziliao.co188.com/d62643284.html




知识点:桥梁工程识图


全部回复(0 )

只看楼主 我来说两句抢沙发
这个家伙什么也没有留下。。。

桥梁工程

返回版块

19.44 万条内容 · 655 人订阅

猜你喜欢

阅读下一篇

国外桥梁设计理念和典型示例,值得深思!

一、概 述 桥梁作为公共建筑物,是人类根据生活和生产发展的需要,利用所掌握的物质技术手段,在科学规律和美学法则支配下,通过精心设计而创造出的人工构造物,是人文科学与工程技术相结合的产物。桥梁以其实用性、巨大性、固定性、永久性和艺术性极大的影响并改变了人类的生活环境。桥梁的美如何进行创造也是人们关心的问题。和其他构造物有所不同,作为一种结构艺术,实际上桥梁的美是可以通过技术的方式来达到的。 目前我国在桥梁建设管理的一些惯例和办法在一定程度上加剧了桥梁工程的病害问题。其中只注重建设初期的成本,而忽视桥梁从规划、建设到运营、破坏整个寿命周期的总体成本。各国桥梁使用实践证明,如果片面追求较低的建造费用而忽视了对结构耐久性的改善,不仅影响运输交通的安全、减少结构使用寿命,同时投入的养护维修费用十分可观,甚至远远超过建造中节省的费用。

回帖成功

经验值 +10