知识点:热水采暖
来源:网络,如有侵权,请联系删除
室内系统
1.垂直单管顺流式系统
已有建筑的室内供暖系统多为垂直单管顺流式系统,其中有垂直单管串联式、垂直单管带跨越式系统和垂直单双管混合式系统。
由于每组散热器上没有设置温控调节工具,加上散热器的富裕量一般偏大,运行时循环流量又不足,产生上热下冷的垂直失调是显而易见的。尤其是垂直单管串联式系统的失调更明显,其次是垂直单管带跨越式系统,垂直单双管混合式系统的情况要好一些,举例而言,一般建筑七层楼顶层的温度能达到20-22℃,而在一、二层室内温度仅13-16℃,温差6-7℃,这是由于水平失调,而且远端流量减少,所以远端的垂直失调要比近端严重,因而上下层的温差自然就大。
为克服这种垂直失调现象,建议采取以下措施:
(1)按不等温降法复核原水力计算结果,拆除富裕部分的散热器。
(2)依据流量与散热器散热量之间的关系,适当调整循环流量指标,确定最佳循环流量值。
(3)对下三层进行改造,单独设置循环回路。
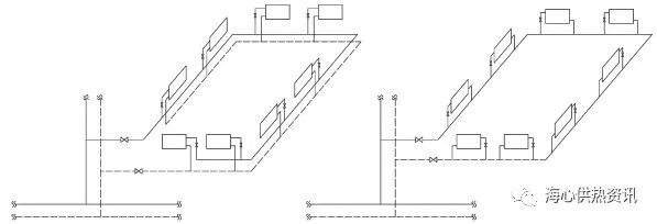
2.共用立管系统
共用立管系统是采暖系统的未来发展方向,其主要有水平串联单管跨越式户内系统和下分双管式户内系统。
(1)水平串联单管跨越式户内系统是定流量系统,由于该系统设计安装简便,失调率低,既适合现有单管系统的改造,又适合新建的住宅系统,并且,采用水平串联单管跨越式户内系统,既能给未来的计量收费留下安装热表的位置和空间,又能实现新老系统的兼容供暖,且节省投资。
(2)下分双管式户内系统是变流量系统,本系统不仅管系简洁,还由于可利用水头和立管阻力相抵消,易于克服垂直失调。但是,在目前的供暖系统中,变流量系统为数不多,具备单独热源且形成规模的这种系统更少,所以真正能组织实施独立运行尚需时间。

1.调节工具的选择和确定
(1)安装定流量系统。根据供热单位确定最佳循环流量,计算热入口管径的阻力后,选择自力式流量控制阀的型号规格,并安装在热入口的回水管道上。确定的型号规格一般应小于或等于热入口的管径,不得大于热入口的管径,规格型号宜选小不选大,以满足最佳循环流量后略有富余即可。
(2)安装变流量系统。根据计算的资用压头,考虑到运行工况的变化,选择型号规格相匹配的自力式差压控制阀。
2.系统运行调节
系统运行调节须按计算结果来认真进行,如发现规格选择偏大不能调节或调节不能到位,必须更换;如果发现热网管径与原设计不符时,且支线阻力大于300Pa/m可考虑暂不设控制阀;如果遇到实际供暖负荷与设计不符时,则需重新进行水力计算确定方案,在运行调节中特别要注意干管末端的循环管阀门是否已关断,有无异常现象,如局部的回水温度比供水温度高,压力变化异常等,均需查明原因一并处理。

推荐资料:
GB25034-2010燃气采暖热水炉
https://ziliao.co188.com/s58413798.html
热水采暖系统入口装置大样图
https://ziliao.co188.com/d142656.html
0人已收藏
0人已打赏
免费1人已点赞
分享
采暖供热
返回版块20.38 万条内容 · 611 人订阅
阅读下一篇
章鱼式暖气系统和地暖系统结构原理知识点:章鱼式暖气系统 来源:网络,如有侵权,请联系删除 在水暖系统中,章鱼式暖气系统咱们见得不多,不过对地暖系统不陌生,可以说地暖系统就属于章鱼式暖气系统。也叫八爪式暖气系统,如果是暖气片,即所有暖气片进出口单独敷设管线接至分集水器上。如果是地暖,就是室内所有功能区独立回路接分集水器。暖气片也好,地暖管也好,酷似以分集水器为躯干的章鱼,因此叫作章鱼式暖气系统。 该种暖气系统,所有暖气片、所有功能区地暖管都是独立回路,并联在分集水器上,因为其并联接口相距比较近,理论上说,进、回水的流量基本是一致的。然而实际家居情况,在暖气系统安装过程中,每条回路很难做到长度一致,如此较长回路的循环水量肯定没有较短回路的快。如此也会存在供热不均衡的问题,实际运行过程中需要调整。
回帖成功
经验值 +10
全部回复(1 )
只看楼主 我来说两句 抢板凳资料很不错,感谢分享,功德无量,建议补充上传分享相关附件
回复 举报