住宅楼就是城镇居民的家,是普通家庭最贵重的资产,所以住宅楼的关注度高,质量和安全问题的敏感度高。
家是少年儿童成长之所,是老年人颐养天年之地。据卫健委介绍,我国90%的老年人居家养老,只有3%入住养老机构。即使对于青壮年,一天24小时当中,在家的时间也是最长的。我们不能奢望住宅楼像幼儿园、中小学、养老院和医院那样,普遍提高抗震设防类别,但从概念方面增加结构的冗余度和整体稳固性还是应该的,也是能做到的。但现实可能恰恰相反。在追求经济效益最大化的利益驱动下,过渡控制材料用量,甚至掩耳盗铃,玩文字游戏……以至于剪力墙住宅被反复“优化”以后,引起了业内的广泛忧虑。
近日在网上看到一栋高层建筑的照片。中部楼层严重破坏,但上部楼层和整体结构巍然屹立,表现出非常好的整体稳固性和抗连续倒坍能力。尽管无法获得相关资料,但从照片和常规经验判断,应该是一栋钢筋混凝土剪力墙住宅。由此不禁回想起30多年来亲历的高层住宅结构型式的演进历程。颇有感慨,不吐不快。
照片展示的是偶然作用下的抗连续倒塌能力,与地震作用下的大震不倒是两码事,但二者在宏观概念方面是可以相互借鉴的。所以,下面的叙述可能将二者“混为一谈”。先说一些基本概念,再对照检查当前一些比较普遍的做法。

一、剪力墙的基本概念
剪力墙的特点:
1.剪力墙是片状结构。承受轴力和自身平面内的剪力、弯矩,平面外不受力。按墙上开洞情况,传统分类方法剪力墙分为四类:
整体墙、小开口墙、联肢墙、壁式框架。
开洞最多最大的壁式框架,依然强于框架,介于剪力墙和框架之间。在墙肢与连梁交接部位具有明确的刚域,是壁式框架的主要特征。也就是说,尽管洞口多且大,但连梁对墙肢依然有较强的约束,可将同一个面内的各墙肢连为整体,而不是松松散散的多个独立墙肢。
大家可能看出来了:上述分类中为什么没有短肢剪力墙?我的理解是,上述四类墙整体性较好,合称普通剪力墙。短肢剪力墙整体性差,梁对墙肢的约束很弱,接近一个个独立的异形截面。短肢剪力墙只有墙肢长厚比的要求,没有整体刚度的要求,所以短肢墙属于竖向构件,已不具有传统意义上剪力墙的特征,不属于结构形式。
2.剪力墙洞口顶部的墙有个专有名词叫连梁。传统意义的连梁除了起到梁的作用外,还有一个重要作用是把各墙肢连为整体,形成联肢墙或壁式框架,而不是一个个独立的墙肢。连梁按跨高比分为:
强连梁:跨高比≤2.5;(引自北京院技术措施)
弱连梁:2.5<跨高比<5;
框架梁:跨高比≥5。
《抗规》和《高规》中,对连梁剪压比的限值要求也是以跨高比2.5为分界线的。
3.普通剪力墙的墙肢以整体弯曲为主,连梁以受剪切为主,剪压比超限问题比较突出。短肢剪力墙类似于框架柱,或比框架柱更弱,以局部弯曲和剪切变形为主
二、结构布置的基本要求
1.剪力墙洞口尽量上下对齐,行成明确的墙肢和连梁。
2.竖向荷载传递要简单直接;各构件受力均衡。
3.竖向构件尽量轴心受力,减小偏心和扭转。
三、不同时期剪力墙回顾
1.剪力墙拉通対直
高层剪力墙住宅的大规模建设始于90年代。当时电算尚不普及,功能也不发达。但在概念方面有一些很好的原则性要求,比如:
a. 墙的平面布置尽量拉通対直,形成一片一片的剪力墙;
b. 墙上洞口上下对齐,形成明确的墙肢和连梁。剪力墙整齐、规则;
c. 连梁短且高,对墙肢约束较强。当时轻质砌块品种比较少,墙面按建筑需要开设门窗洞、施工洞外,其他部位基本都是实体墙。从下层门窗洞的上口到上层门窗洞的下口就是连梁高度。所以,除了阳台门顶连梁外 ,其他连梁基本都是强连梁。
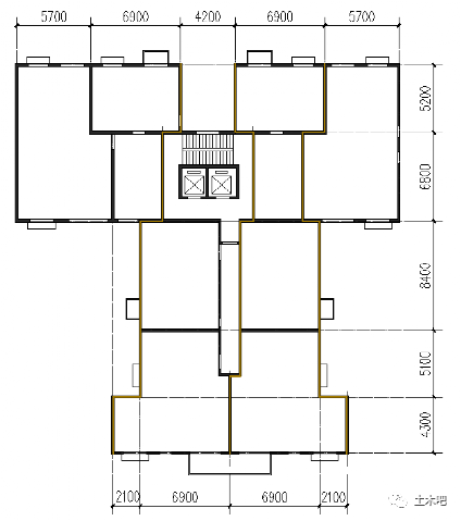
板式楼较易做到拉通对直,塔式楼较难做到,但每个方向至少要有两道剪力墙拉通対直。下图比较好地做到了拉通対直,形成近似井字形的平面骨架,再加上每层的整体式楼板,形成一个大箱体,即使局部墙肢遭到破坏而失效,拉通対直的剪力墙相当于伸臂桁架,整体抗连续倒塌能力是很强的。

下图Y方向的剪力墙没有严格拉通对直,但三道绿线所示的剪力墙尽管有转折,但整体性依然很强大。

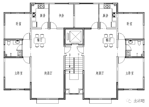
2.不强求拉通対直,但剪力墙要四面闭合,互为翼墙
剪力墙拉通对直,严重影响户型布置,很难适应市场需要。随着电算功能的提高和工程经验的积累,设计中不再强求剪力墙拉通对直,但平面布置要四面闭合,尽量避免秃头墙(无翼墙)和一字墙。实际上相当于一束一束的小筒连为整体。通过层层楼板,连为箱体,整体性依然很强大。

对于设置转角窗的情况,则要对墙肢和楼板采取加强措施,就是为了加强闭合(下图摘自北京院技术措施)。

3.大量使用短墙肢(这里用“短墙肢”,是为了与“短肢墙”区别开)
随着房地产业的发展,对结构建造成本的控制越来越严,将大面积的剪力墙改为填充墙已成为普遍做法,出现了大量下图所示的墙肢。这种做法的依据是《高规》条文解释7.1.8条:“对于L形、T形、十字形剪力墙,其各肢的肢长与截面厚度之比的最大值大于4且不大于8时,才划分为短肢剪力墙”,大量使用短墙肢,却规避了短肢剪力墙,。

由于墙肢较短,楼面梁布置变得很复杂,如下图(为泛指,不指具体工程):

剪力墙量倒是少了,但楼面梁层层叠叠,非常繁复。按竖向荷载传递途径,出现了5级梁。经5次传递,最终传给楼梯间侧面的那根梁,这个户型的楼面荷载寄托在这一根梁上,可谓千钧一发。为了回避“楼面梁不宜支承在剪力墙连梁上”的规定,所有梁的跨高比均大于5,使得截面不是加大加强,反而故意减小,抗剪能力被人为削弱。
其实这是一个比较规整的户型,结构布置并不难。如下图稍加修改,就会安全合理得多。粗步估算,每平米增加混凝土用量0.018m3。但在当前的市场环境下,就这么一点点用料,很可能成为设计成败的关键。


4.剪力墙有其名,无其实
下图是一栋27层的板式住宅,层高2.9米。除紫色椭圆内的连梁为强连梁外,其它梁跨高比均大于5,对墙肢约束很弱。为了更为直观,下图第一张未画出楼面梁。因为是6度区,计算结果均能满足规范要求。


以X方向为例,除了紫色椭圆内是一道双肢墙外,其他多数墙肢长度仅为600,按等惯性矩可换算为450x450的柱子。梁高均为370(2900-2400-130=370)。梁柱截面这么小,还能有刚域吗?很多梁端为铰接,且紫线所示均为单跨。最南侧这道剪力墙的结构立面如下图,可以感受一下:这样的结构名曰剪力墙,实则能比得上普通框架吗?

5.安危寄予一线
下图中墙肢均为L形,楼面梁搭了3级。三个角部的L形墙肢,加上梁又那么弱小,无冗余度可言,无整体性可言。任何一个墙肢都不容有闪失,可谓安危寄予一线。联想到目前千家万户自作主张的装修,随意开墙破洞、改水改电……不禁不寒而栗。

紫色椭圆里的L形墙承担了这个户型的绝大部分重力。但其形心、剪心、轴力作用点均不重合。弯剪扭+开口截面,即使对于理想弹性材料的钢材,验算也是非常复杂的。尤其边角部位,受力更为复杂。即使对于双轴对称矩形截面柱,计算方法也是在长期大量试验基础上归纳总结出来的。如此大量使用异形截面短肢墙,是否也经过大量实验深入研究?还是仅凭纯理论计算?所以,我们能不能过分依赖计算结果,把传统结构概念中的每一点利好都用干用尽,值得思考。
四、对当前剪力墙结构的一些疑问和期望
1. 地震区大量使用异形截面竖向构件,我们对计算结果是不是足够自信?我们一方面强调概念设计的重要性,一方面却全交由电脑去算,算成啥样是啥样,甚至抠到小数点后几位。我们对地震烈度的确定、对计算模型的假定有那么精准和自信吗?据了解,目前对开口截面钢构件尚无受扭计算方法,我们对异形截面墙肢的验算足够充分吗?另外,钢结构有板件宽厚比限值,钢筋混凝土异形截面在压弯剪扭作用下,如何保证稳定?
2. 框架结构要控制梁柱偏心距,要验算梁柱节点核心区。短墙肢与框架梁核心区是否也做了验算?不验算的话是否有隐患?
3. 是不是计算不超限、规范不突破,就真的万事大吉了?有没有削足适履之嫌?
4. 相对于商家的利润来说,千家万户的生命和财产安全才是头等大事。从结构布置的概念和构造方面增加冗余度、加强整体性,布置备用传力途径,才是提高整体稳固性的根本,靠计算无能为力。计算只是一种模拟,尽量接近真实而已,不能精确反应真实情况。
5. 三十多年来,高层住宅在功能品质和居住体验方面可谓脱胎换骨。但在整体安全性方面,值得反思和研究。
6. 出现上述现象与行业内卷有很大关系。好在现在有了“严格落实建设单位工程质量首要责任”的英明政策。下一步,希望消费者像关心得房率一样关注含钢率、实墙率;希望专家学者深入研究,提出新的技术指标和要求;希望广大技术人员坚持原则,守住底线。同心合力,共同堵住这股“没有最省,只有更省”的狂卷风。

来源:土木吧
知识点:剪力墙图片
0人已收藏
0人已打赏
免费0人已点赞
分享
居住建筑设计
返回版块28.74 万条内容 · 423 人订阅
回帖成功
经验值 +10
全部回复(0 )
只看楼主 我来说两句抢沙发