一、地下车库停车数的要求、平面形式、层数确定
(一)、地下车库停车数的要求
●规范依据
项目的地下停车位数量应根据各地方停车位配建标准进行配建。按拟开发项目的住宅、商业、配套等建筑面积分别进行停车位数计算,然后求其总和得到项目停车位数量。以下例举几个地区停车位配建标准供参考。
表:重庆市停车位配建标准表

a)住宅建筑应当在室内配建停车位,室外停车位不计入住宅建筑的配建指标。商业、办公、医院、旅馆、文化艺术馆建筑室外停车位数量应当为其配建停车位数量的 10%—30%。
b)(机械式停车位)特大城市中心区、大城市中心区的建设项目设置机械式停车位的,其停车位数量均计入配建指标。特大城市中心区、大城市中心区范围外的建设项目设置机械式停车位的,其停车位数量按照普通车道式停车位计算。
表:上海市停车位配建标准表

表:长沙市停车位配建标准表

北京市停车位配建标准如下:
① 北京市大中型公共建筑停车场标准
表:北京市大中型公共建筑停车场标准
a)露天停车场的占地面积,小型汽车按每车位25平方米计算,自行车按每车位1.2平方米计算。停车库的建筑面积,小型汽车按每车位 40 平方米计算,自行车按每车位 1.8 平方米计算。
b)旅馆中的一类指《旅游旅馆设计暂行标准》规定的一级旅游旅馆,二类指该标准规定的二、三级旅游旅馆,三类指该标准规定的四级旅游旅馆。
c)餐饮中的一类指特级饭庄,二类指一级饭庄。
d)商场中的一类指建筑面积 10000 平方米以上的商场,二类指建筑面积不足 10000 平方米的的商场。
e)体育场馆中的一类指 15000 座位以上的体育场或 3000 座位以上的体育馆,二类指不足15000 座位的体育场或不足 3000座位的体育馆。
f)多功能的综合性大中型公共建筑,停车场车位按各单位标准总和 80%计算。
② 居住区配套停车位要求
表:北京市居住区配套停车位要求

●常见问题:
1) 设计停车位数量较规范要求偏多,造成项目成本增加;
2) 可计入指标的地上停车位数量未做够导致地下停车位数增多,造成项目成本增加;
3) 机械式停车位和微型车位的指标计算不准确,造成车位数量指标计算错误。
●设计指引:
1) 进行地下车库设计时严格控制地下车库规模及面积,只要满足报批和功能要求即可。车位配比根据项目所处的地域、成本控制以及楼盘定位和目标客户群制定。建议经济发达地区和省会城市做到 1.0 辆/户以上,相对欠发达地区做到 0.7 辆/户以上。同时需在周边商业用房部位合理设置必要的商业用停车位。
2) 地上停车位指标在满足绿地率等要求的条件下尽量用足以较少地下车位数量。
3) 某些品质较高的项目可根据项目具体情况适当提高停车位配比以满足实际使用的需求。
4) 各地停车位计算一般以小型车为标准,计算车位时应注意各地方相应规定。
5) 停车位数确定后方可确认车库的设计等级和防火分类,以便进行下一步的车库设计。
车库设计等级和防火分类详见下表:
表:汽车库建筑分类

表:车库的防火分类

(二)、地下车库平面位置、外形轮廓
●常见问题:
1) 车库在项目中位置设置不合理,造成后期使用不便;
2) 车库平面异型不方正,平面锐角多,不利于停车的空间较多,造成停车效率偏低;
3) 车库外挡墙曲折,挡墙偏长,成本提高;
●设计指引:
1) 规划总体设计时应将地上住宅楼的布局与地下车库的设置作为一个整体来考虑。原则上在中庭大的地块布置地下车库时,优先选择独立地下室;在地形狭长或地上住宅楼均布的规划项目中布置地下车库时宜选择整体地下室。
2) 住宅地库设计可优先考虑开敞地库的设置,其次设置为半地库,再次为全地库设置。尽量避免设计为多层地库,尽量减少因满足抗浮、地下室排水、通风等要求而增加的地下室结构造价以及增加土方与边坡费用。应尽可能形成集中的,规整的地下停车空间,以提高相同面积下的停车数量。
图:外形方正车库实例

3) 外形轮廓设计:
轮廓线应简洁,避免出现多段折线,造成外墙增多;
轮廓线应紧凑,避免出现多余空间,造成无效面积;
轮廓线应方正,避免出现锐角弧线,造成布车障碍。
4) 地下车库位置应根据地形充分考虑埋深,顶板覆土厚度应结合园林景观规划,设备
管网布置等综合因素确定;总平面设计时尽量减少消防车道和扑救面的面积,有利于减
少地下车库顶板荷载,节约结构成本。若消防车道如必须在地下车库顶板通过时,应考
虑设置在两个柱子的中间(只占用一跨)。
(三)、地下车库层数
●常见问题:
未能结合地形标高和现场情况设计车库层数,造成现场土石方量大。或者在有条件设置单层车库的情况下做多层车库,造成成本的增加。
●设计指引:
确定车位总数和车库平面范围后,原则上尽量单层车库解决停车问题。若由于条件限制必须设置多层地下车库时,需要考虑项目现场标高关系和基础地质条件,选择最优的平面和建筑层数的组合关系,降低车库的成本。
二、车库出入口设置
●规范依据
1) 车库出入口数量:(根据《汽车库建筑设计规范》JGJ 100-98、《汽车库、修车库、停车场设计防火规范》GB50067-97)。车库出入口数量的设置参见下表:
表:出入口数量的设置

2) 车库出入口设置其他要求:
特大、大、中型汽车库的库址出入口应设于城市次干道,不应直接与主干道连接。
库址车辆出入口与城市人行过街天桥、地道、桥梁或隧道等引道口的距离应大于 50m;距离道路交叉口应大于 80m。搜建筑编辑
汽车库库址的车辆出入口,距离城市道路的规划红线不应小于 7.5m,并在距出入口边
线内 2m 处作视点的 120°范围内至边线外 7.5m 以上不应有遮挡视线障碍物。
图:车库出入口视线遮挡示意图

●常见问题:
1) 车库出入口开向城市主干道,或不能满足与城市人行过街天桥、地道、桥梁或隧道等引
道口的距离,距离道路交叉口不足 80m。
2) 出入口有视线遮挡,存在安全隐患。
3) 车库出入口设置在小区内部非隐蔽位置,并对住户产生较大干扰。
?
●设计指引:
1) 为满足人车分流的安全需求及利于景观营造,地下车库宜尽量靠近小区出入口设置,减
少行车道路面积;
2) 如有必要进入小区内部,地下车库宜与山墙面平行,以减少对居民的干扰,保证景观空
间的完整性。
3) 车库出入口部应开敞,宜采用低矮的景观绿化设计,防止视线遮挡;
4) 为弱化一般地库入口生硬的感觉,地下车库入口可考虑适当扩大附设人行通道,并用立
体绿化进行处理,使这一区域的景观更为丰富。
5) 地下车库入口坡道应结合景观统一设计,确保小区整体景观效果。

三、车行道组织
●规范依据
汽车库内停车方式应排列紧凑、通道短捷、出入迅速、保证安全和与柱网相协调,并应满足一次进出停车位要求。
●常见问题:
车库内车行道组织迂回,通达各车位不便,停车效率降低。车行道同结构柱网冲突,未能满足停车位和 行车道的宽度要求。
●设计指引:
1) 根据出入口位置确定主车行道。主行车道应清晰明了,行车道主要考虑通达各车位的便捷性。
2) 根据柱网布置确定每组停车数量、次要车行道,并与主车行道按最短路径自然、平顺相接。
3) 车库中尽量避免尽端式停车位,提高车位的合理性。
4) 停车位尽量在行车道双向布置,提高车库的停车效率;

四、车位布置方式
●设计指引:
1) 根据车库层数、上下层之间坡道需占比例确定竖向交通连接方式:坡道式或机械式。
2) 根据车库单层面积、出入口与市政道路的高差、距离确定布置方式。
3) 在用地紧张及一层地下车库不能满足停车要求的情况下,尽量采用机械式停车以避免设计双层地下车库。但需要注意各地方对机械停车库车位指标的计算原则的规定。搜建筑编辑
4) 机械式停车应根据停车设备确定平面柱网尺寸及净高。设计图纸中应明确汽车库内的机械停车位分布,其平面、净高尺寸及停放方式等应由设备厂家核准确定。
五、车库坡道设计
●规范依据
1) 汽车库内坡道可采用直线型、曲线型。可以采用单车道或双车道,其最小净宽应符合下表的规定。严禁将宽的单车道兼作双车道。
表:坡道最小宽度

2) 汽车库内当通车道纵向坡度大于 10%时,坡道上、下端均应设缓坡。其直线缓坡
段的水平长度不应小于 3.6m,缓坡坡度应为坡道坡度的 1/2。曲线缓坡段的水平长度不
应小于 2.4m,曲线的半径不应小于 20m,缓坡段的中点为坡道原起点或止点。
坡道坡度:
直线坡道: 最大坡度为 15%
曲线坡道: 最大坡度为 12%
横向坡道: 坡道横向坡度 5%

●常见问题
1) 坡度大于 10%未设置缓坡段。
2) 缓坡段坡度小于或大于坡道坡度的 1/2。
3) 坡道上方净空高度不足。
●设计指引
1) 为减少坡道长度,按汽车库设计规范设计出入口主坡道的最大坡度、最短距离、缓冲段
坡度、距离(分直线与曲线)。
直线坡道: 最大坡度为 15%
曲线坡道: 最大坡度为 12%
横向坡道: 坡道横向坡度:5%


2) 坡道式汽车库,除螺旋坡道式外,均应使其坡道系统在每层楼面上周转通车道畅通,形成上、下行连续不断的通路,并应防止上、下行车交叉。搜建筑编辑
3) 坡道截水沟的设置原则:一般在起坡点,车道顶板封板位置以及坡道进车库位置设置截水沟,防止室外雨水进入车库。
4) 车库坡道上方的净空高度应做到 2 .2m 以上,考虑实际使用效果,建议做到 2.4m。
六、防火分区与防烟分区
●规范依据
1) 汽车库应设防火墙划分防火分区。每个防火分区的最大允许建筑面积应符合下表的规定。
a)汽车库内设有自动灭火系统时,其防火分区的最大允许建筑面积可按本规范表中的规定增加一倍。
b)敞开式、错层式、斜楼板式的汽车库的上下连通层面积应叠加计算,其防火分区最大允许建筑面积可按本表规定值增加一倍。
c)室内地坪低于室外地坪面高度超过该层汽车库净高 1/3 且不超过净高 1/2 的汽车库,或设在建筑物首层的汽车库的防火分区最大允许建筑面积不应超过 2500 m?。
d)复式汽车库的防火分区最大允许建筑面积应按本表规定值减少 35%。
2) 设有机械排烟系统的汽车库,其每个防烟分区的建筑面积不宜超过 2000m?,且防烟分区不应跨越防火分区。防烟分区可采用挡烟垂壁、隔墙或从顶棚下突出不小于0.5m的梁划分。
3) 机械式立体汽车库的停车数超过 50 辆时,应设防火墙或防火隔墙进行分隔。
●常见问题
防火分区划分不合理,主要存在以下几个问题:
1) 防火分区面积偏小,导致防火分区面积增多,成本增高;
2) 防火分区划分曲折,导致防火墙和防火卷帘多,成本增高;
3) 多层地下车库上下层防火分区划分差别大,位置不对应,导致风井和烟道数量增加;
4) 防火分区跨越结构缝,未作特殊防火分隔处理;
●设计指引
1) 每个防火分区面积应尽量靠近防火分区上限,减少防火分区数量,防火分区设置时减少防火墙和防火卷帘长度,节约成本;
2) 结合各地方相关规定,在计算防火分区面积时扣除规定中可不计入防火分区面积的设备用房等房间;
3) 多层车库中每层防火分区划分尽可能上下一致,可合用风井和烟道;搜建筑编辑
4) 面积超过 2000m2的地下汽车库应设置机械排烟系统。机械排烟系统可与人防、卫生等排气、通风系统合用。结合暖通设计合理布置机房和井道,在满足车库管线下净空尺寸、暖通风量和风速计算的条件下,将可能把机房和井道合用;注意进排风口出地面的水平和竖向距离,避免互相干扰;
5) 设有机械排烟系统的汽车库,每个防烟分区应设置排烟口,排烟口宜设在顶棚或靠近顶棚的墙面上;排烟口距该防烟分区内最远点的水平距离不应超过 30m。
七、与住宅建筑主体连接方式
●规范依据
1) 汽车库、修车库的人员安全出口和汽车疏散出口应分开设置。
2) 汽车库、修车库的室内疏散楼梯应设置封闭楼梯间。建筑高度超过 32m 的高层汽车库的室内疏散楼梯应设置防烟楼梯间,楼梯间和前室的门应向疏散方向开启。地下汽车库和高层汽车库以及设在高层建筑裙房内的汽车库,其楼梯间、前室的门应采用乙级防火门。
3) 汽车库室内最远工作地点至楼梯间的距离不应超过 45m,当设有自动灭火系统时,其距离不应超过60m。单层或设在建筑物首层的汽车库,室内最远工作地点至室外出口的距离不应超过60m。
●常见问题
1) 车库同住宅连接走道太长,通道宽度太窄;
2) 疏散距离计算时只计算到走道门口位置,未计算至楼梯间或前室门的位置;
3) 出地面不能直接采光通风的车库疏散楼梯间未做防烟楼梯间;
●设计指引
1) 按经济适用原则,以最短通道连接车库与住宅;
2) 车库同住宅采用走道连接,尽可能利用住宅下方设置设备间,可节约造价,并容易解决设备间的疏散问题;
3) 按消防规范,设计车库与住宅的疏散方式:楼梯位置、梯段宽度。搜建筑编辑
4) 根据各地方消防执行情况不同,若允许防火分区之间借用疏散口的考虑借用,在满足使用功能的条件下减少疏散口数量,提高停车效率,减少成本;
5) 尽量利用住宅楼梯作为人员疏散梯通向车库,并在首层与地上住宅疏散口分隔;
6) 车库楼梯尽量通过首层出地面采光通风,避免设置防烟楼梯,以节约造价;
八、汽车的最小转弯半径
表:最小转弯半径

●规范依据
●常见问题
误把汽车的最小转弯半径(r1)理解为汽车环道内半径(r2),导致汽车环道内半径过大,从而增加车库面积
●设计指引
1) 针对城市高层住宅地下车库,按小型车考虑汽车的最小转弯半径;
2) 汽车最小转弯半径(r1)为汽车回转时汽车的前轮外侧循圆曲线行走轨迹的半径;
3) 针对城市高层住宅地下车库,汽车环道内半径(r2)的取值在原则上为 3.9~4.2m;
九:柱网布置
●规范依据
1) 汽车设计车型外廓尺寸

注:针对城市高层住宅地下车库,应根据当地要求按什么车型设计才计算成有效的停车位为原则,来选择车型及尺寸。若当地无特殊要求,原则上按小型车进行设计。
2) 停车方式:汽车库内停车方式可采用平行式、斜列式(有倾角 300、450、600)和垂直式,或混合采用此三种停车方式。

从驾驶和停车的安全、方便、习惯上讲,原则上应优先选择或只采用垂直式停车方式
3) 汽车与汽车、墙、柱、护栏之间最小间距

纵向指汽车长度方向、横向指汽车宽度方向,净距是指最近距离,当墙、柱外有突出物时,应从其凸出部分外缘算起
4) 各车型建筑设计最小停车带、停车位、通车道宽度

a)通常情况下,垂直式后退停车的小型车的停车位最小尺寸宜为 5.3m(长)X2.4m(宽),通车道最小宽度宜为 5.5m;
b)汽车库内的通车道宽度应按上表选用,但至少应大于或等于 3.0m;
c)通过对上表的数据分别计算(下表数据只包含停车和紧邻车位的通车的面积,不是每停车位的建筑面积),小型车采用垂直式后退停车方式时,其占用的面积最小;

●常见问题
1) 柱网偏大造成停车位尺寸偏大、通道偏大,从而增加车库面积;
2) 柱网偏小造成停车位尺寸、通道宽度不满足规范,从而影响停车使用;
3) 较多处出现停放一辆车、二辆车的不经济的柱网开间;
4) 确定柱网时,没考虑建筑抹灰厚度、消火栓对停车位尺寸和通道宽度的影响;
5) 不熟悉规范;
6) 确定柱网时没考虑场地地质条件和地下水位;
●设计指引

1) 柱网的确定方法


2) 柱网的考虑因素及确定

a)中低档产品,除北京外,中柱停车位尺寸取值为 5050X2400,边柱停车位尺寸取值为5300X2400;通车道宽度取值为 5500;
b)高档产品,除北京外,中柱停车位尺寸取值为 5250X2500,边柱停车位尺寸取值为5500X2500,通车道宽度取值为 5700;
c)北京中柱、边柱停车位尺寸为 6000X2500,通车道宽度取值为 6000;
d)柱子截面宽度按 600 设计,加上抹灰厚度后为650,正好与消火栓同宽,不占用停车位宽度;
e)柱子外边应内退停车位端线至少 250,以避免消火栓安装后占用通车道宽度;
f)表中数据已考虑防撞板厚度 50;
g)表中数据没考虑停车位纵向之间有墙体,若有,相应位置的柱网应调整加大,以满足汽车纵向与墙体间的间距;
十、层高
●规范依据

净高指楼地面表面至顶棚或其他构件底面的距离,未计入设备及管道所需空间;
●常见问题
1) 车库层高与项目定位不匹配;
2) 车库层高过高,增加不必要的建设成本;
3) 车库层高不足,不满足规范且影响停车使用;
●设计指引
1) 车库层高的计算公式:
车库层高=结构高度+喷淋管高度或电缆桥架高度(两者取大值)+风管高度+楼地面装修面高度+车库最小净高.
2) 车库层高的考虑因素及确定

a)上表数据没考虑人防。若有人防,应根据人防等级,应经计算后确定结构高度及层高;
b)负1层结构高度已考虑消防车荷载(20kN/㎡)。若无,应经计算后确定结构高度及层高;
c)若采用的结构形式与上表不一致时,应经计算后确定结构高度及层高;
d)结构高度取值是按 8.1mX8.1m 柱网考虑的经验值;
十一、覆土厚度
●规范依据
各地要求不同,应按项目所在地的绿地管理技术规定执行


●常见问题
1) 覆土厚度不满足当地绿地管理技术规定;
2) 覆土厚度过厚,增加不必要的建设成本;
3) 覆土厚度不足,不满足景观及总平面管网要求;
●设计指引
1) 应根据当地绿地管理技术规定确定覆土方案和计算覆土厚度;
2) 根据小区场地竖向布置,按照减少土石方开挖原则来考虑覆土厚度;
3) 根据多利用场地原始土壤少采用车库屋顶覆土来分配绿化面积,确定覆土厚度;
4) 应满足景观要求,确定覆土厚度;
5) 应满足总平面管网要求,确定覆土厚度;
十二、人防面积及布置
●规范依据
各地要求不同,应按项目所在地的人防管理技术规定执行

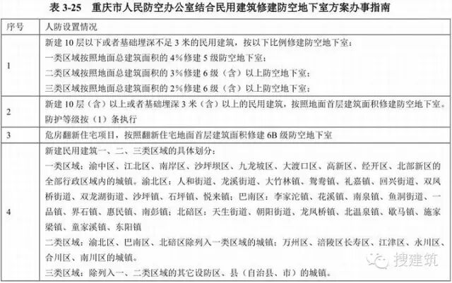
a)所有建筑均按建筑形式分类,指标计算与使用功能无关。计算方法:(1)十层以上(含十层)的建筑,应修建“满堂红”防空地下室,可按其第十层标准面积指标计算;(2)十层(不含十层)以下,基础埋深超过 3 米(含 3 米)的建筑,应按其面积(含地下)的 3%修建;(3)十层(不含十层)以下,基础埋深不超过 3 米的建筑,应按其面积(含地下)的 2%修建;(4)单建工程(地上建筑投影范围之外的地下建筑)应按其面积的 30%修建。如一栋建筑既有高层又有多层,应按上述要求对建筑进行竖向分割后,分类计算应建设人防面积指标。
b)为小区配套建设的中小学、幼儿园、市政站点等可不结合修建防空地下室。如上述项目与其它建筑合并设置,应将其面积指标扣除。




●设计指引
1) 平战结合;
2) 为减少人防对车库的干扰,将人防布置在次要交通流线区域;
3) 为节约建造成本,多建物资储备所、少建人员掩蔽所;
4) 避免出现人防门在平时开启后对车位影响;
5) 人防的防护单位尽可能做大,并结合防火分区进行分隔,以节约建设成本;
6) 车库通向人防单元通道的门采用活门槛;
十三、车库防水及排水
●规范依据
1) 《地下工程防水技术规范》GB50108-2008;
2) 《种植屋面工程技术规程》JGJ155-2007;
●设计指引
1) 防水措施及办法
?确定正确及合理的防水等级
?确定正确及合理的主体结构、施工缝、后浇带、变形缝的防水措施;
?尽量采用不设或少设变形缝的结构方案;
?处理好车库底板、顶板、侧墙的防水构造;
?根据当地气候条件及施工进度,在成本许可的情况下,选择合理的防水材料;
2) 排水措施及办法
?在最下边一层的车库底板处,沿挡墙四周设置排水沟(沟宽 300,起点深 150,坡度 0.5%),以防挡墙渗水;
3) 在车库坡道处设置截水沟:
?连接室内外的车库坡道:应在坡道顶和底均设置截水沟(沟宽 300,起点深 300,坡度 1%);若坡道上空全无或部分无遮盖物,原则上应在坡道上再增加一截水沟,以防雨水过大、出现雨水顺坡流淌而影响车库使用。
?非连接室内外的车库坡道:应在下的坡道口设置截水沟(沟宽 300,起点深 150,坡度 0.5%),以防止车库清洗时,污水顺坡道串楼层流淌。
4) 地下室顶板排水:
?确定找坡方式(结构找坡还是建筑找坡): 优先选择结构找坡;具体情况,要视车库屋面大小、屋面形状的规则性、屋面给排水系统的排水方案、建筑室外内高差处理等情况来定;
?北方地区视具体情况确定是否需要找坡;
?确定合理的排水方案(排水组织方向、间距),结合场地情况,尽量分区、分段、分方向的进行排水;
?排水坡度≥1%;
十四、重要经济指标
●设计指引

十五、车库细部做法
●设计指引
1) 地下汽车库在出入地面的坡道端应设置与坡道同宽的截流水沟和耐轮压的金属沟盖及闭合的挡水槛。
2) 汽车库的停车位的楼地面上应设车轮挡,车轮挡宜设于距停车位线为汽车前悬或后悬的尺寸减 200mm 处,其高度宜为 150~200mm,车轮挡不得阻碍楼地面排水。
3) 汽车库的楼地面应采用强度高、具有耐磨防滑性能的非燃烧体材料。
4) 汽车库内坡道面层应采取防滑措施,并宜在柱子、墙阳角及凸出构件等部位设防撞措施。
5) 汽车库内应在每层出入口的显著部位设置标明楼层和行驶方向的标志,宜在楼地面上用
彩色线条标明行驶方向和用10~15cm 宽线条标明停车位及车位号。在各层柱间及通车道尽端应设置安全指示灯。
6) 室内装修做法
1)楼地面:环氧自流平楼地面或其他耐磨地面
2)墙面:涂料(临土壤的内墙面为防霉涂料)
3)天棚:涂料
第二部分:结构
一、结构专业管控要点
本次优化设计的目的是通过采用适宜的结构形式,一方面达到可以降低地下车库的层高,
减少基础埋深、墙高、外墙防水面积、土方及护坡、降水及抗浮费用;另一方面达到直接降
低楼层(屋面)梁、板及基础土建造价。
为达到上述目的,需要从基础选型、柱网布局、楼盖(屋盖)结构选型、荷载取值等方
面综合考虑。
二、基础选型
由于车库柱轴力不大,在考虑车库基础时一般根据当地地质条件选型,持力层较深采用桩基,较浅采用独基,有地下水时还需考虑抗水板。
如在重庆地区,岩石埋深浅,一般都以中风化岩石作为基础持力层;同时由于通常情况下无地下水,也不需要考虑抗水板。所以在重庆车库基础常见的是嵌岩桩基础和独立基础:岩层距车库地坪标高超过 2.0~2.5m 左右时会采用嵌岩桩基础;小于 2.0~2.5m 左右时采用独立基础。而这两种基础中独立基础的费用较低。具体如图 4-2 所示。搜建筑稿件
但是在成都或北京地区持力层一般为土层,同时由于地下水影响,车库一般会考虑独立基础+抗水板设计或筏板设计。由于有地下水存在,基础埋深越深水压越大,基础成本也就越高,所以应尽量控制层高来减小基础埋深,达到控制成本的目的。
在车库地下室周边一般采用与车库结构连为一体的钢筋砼挡土墙。对于其它区域因环境设计产生的挡土墙,采用重力式挡土墙、锚杆挡土墙、桩板式挡土墙等形式。一般而言,对挡土高度小于 8.0m,边坡变形要求低的区域,采用重力式挡土墙;对挡土高度大于 8.0m,边坡变形要求高的区域,采用锚杆挡土墙;对场地大小受限、边坡需要小开挖的区域,采用桩板式挡土墙。
在无地下水的地区,不需考虑水对挡墙的侧压力,挡墙的高度对造价影响不大,如重庆;但在地下水位较高的地区,挡墙过高会增加较多造价。特别是在大城市中,已建的房屋可能会离地下室很近,还需考虑基坑支护及抽水费用,应该尽量控制层高以控制成本,如成都及北京。
综上所述,在重庆等地质条件较好,无地下水的城市地下室层高对基础部分土建成本的影响远远不如成都或北京等地区。
我们以北京富盛二期地下车库顶板分别采用方案一(无梁楼盖)和方案二(梁板式楼盖)为例,列举了五种类型的基础形式进行比较,分别为
1) 独立柱基加防水板;
2) 满堂平筏板正柱帽;
3) 满堂平筏板倒柱帽;
4) 满堂十字型次梁沿柱主梁筏板;
5) 满堂沿柱一个方向为主梁、另一个方向为间距三分之一柱距的单向次梁筏板;
基础形式参见图 4-1。按一个中柱基础进行综合经济比较发现,如表 4-1 所示,如果地下室层 1、2 采用无梁楼盖或梁板式楼盖,当考虑地下室分隔墙、楼梯、车道等项目时,其综合经济造价基础形式 3 与形式 1 接近,而形式 2、4、5 均比形式 1 的高得很多。
(1)独立柱基抗水板:

(2)满堂平筏板正柱帽:

(3)满堂平筏板反柱帽:

(4)满堂十字形次梁沿柱主梁筏板:
(5)满堂沿柱一个方向为主梁、另一方向为间距三分之一柱距的单向次梁筏板


a)每个中柱基础的钢筋、混凝土用量及造价为 8.2mX8.2m 所属面积的值,其他造价包括:土方、护坡、外墙混凝土、外墙防水按整栋工程总面积比例摊算到一个中柱所属面积;回填砂石、垫层混凝土、底板防水按中柱所属面积计算,带括号数值为当前考虑与高层主楼基础处理不均匀沉降筏板下垫 50mm厚聚苯板软垫层的值,地下室顶板上防水及地下室地面做法不计在内。
b)对比比率以基础形式 1 为 100%,方案 1 为无梁楼盖平托板柱帽,方案2 为粱板式式楼盖。
以下为重庆地区常用的基础形式,列举了桩基或独立基础,如下图所示
桩基平面如下:
独基平面图如下:

三、柱网布局
车库的柱网设置,首先应根据建筑对该项目的产品定位及建筑对车库的不同需求来进行初步布置;结构应在满足建筑要求的情况下对柱网进行调整。
在柱网设置中,8.0x7.8 或以上的柱网称为大柱网;8.0x(5.0+6.2)或以下的柱网称为小柱网。
大柱网的柱子和基础的数量少,建筑布局灵活,采用这种柱网布局可以减小柱子及基础成本;但相应在荷载较大时梁板造价高于小柱网。所以当基础为桩基且为多层车库时,建议考虑大柱网;当基础为独立基础且为单层车库时,建议考虑小柱网设置。
大柱网及小柱网如下图所示:
大柱网:

小柱网:

四、楼(屋)盖结构选型

a)以上选型未考虑人防结构。
●各种楼盖附图如下:
1) 无梁楼盖:

2) 十字梁板楼盖:

3) 井字梁板楼盖:

我们对部分城市的项目及典型案例进行了统计,如表下图所示:

a)LG1: 井字梁楼盖 LG2: 无梁空心楼盖 LG3: 无梁实心楼盖 LG5: 十字梁楼盖 LG6: 无梁楼盖平托板柱帽 LG7: 无梁蜂巢芯楼盖 LG8: 单向主次梁楼盖 LG9 无次梁梁板楼盖;
b)+表示含土石方造价;搜建筑编辑
c)表格中空格部分为缺失数据;
d)其他造价包括外墙和底板的卷材防水;土方和护坡等;
e)涂阴影部分为独立柱基础加防水板(基础),无梁楼盖平托板柱帽(楼盖)。
通过上表中各实际工程统计数据的对比和分析,可以看出,无梁楼盖加平托板柱帽的楼盖形式是目前项目中比较经济的方案。
上述地区采用无梁楼盖可以减小层高,降低造价;而在重庆地区采用梁板式楼盖更为节约造价。
下图所示为北京富盛二期的部分结构平面图及剖面,具体详图 4-7 所示,仅供参考(方案一:无梁楼盖;方案二:梁板式楼盖)



五、荷载取值
1、车库荷载
按《建筑结构荷载规范》取值。
2 覆土及景观荷载
根据建筑种植屋面、设备管道埋深、景观造型的要求综合考虑,按需要的最大覆土厚土取值。
3 消防车荷载
按《建筑结构荷载规范》要求,并根据覆土厚度进行折减取值。
4 人防荷载
根据人防设计等级,按《人民防空地下室设计规范》取值。
六、各地区地下车库楼(屋)盖及基础选型的建议
车库一般属于地下结构,地区不一样,场地情况就不一样,那么车库结构控制的目标就不一样,如果场地情况复杂,譬如地下水位高,水浮力大,基坑支护及基础造价高,就应以控制层高为主要目的,减少水浮力,降低基础造价,如成都、北京,由于柱距较大,如采用梁板式楼盖时,梁截面高度大,机电管道需在梁下通行,导致层高多数在 3.8~4.5 米之间,而采用无梁楼盖时,层高可降低到 3.3~3.4 米。根据以上分析,建议楼盖形式采用无梁楼盖平托板柱帽,基础形式采用独立柱基加防水板;如果场地情况简单,譬如无地下水,基坑开挖只需放坡就能解决,基础仅是独立基础或桩基础,不需要做抗水浮力底板,就应以控制楼(屋)面造价为主要目的,如重庆。
另外根据现行《高层钢筋混凝土结构技术规程》规定,地下一层顶板如作为上部结构的嵌固部位,应采用梁板结构。
综上所述,我们应该在不同的地区,根据不同的地质条件来选择不同的车库作法,在保证安全及满足规范的前提下达到节约造价的目的。
来源:搜建筑
知识点:地下车库最优设计总结
0人已收藏
0人已打赏
免费0人已点赞
分享
居住建筑设计
返回版块28.74 万条内容 · 422 人订阅
回帖成功
经验值 +10
全部回复(0 )
只看楼主 我来说两句抢沙发