土木在线论坛 \ 建筑设计 \ 居住建筑设计 \ 建筑师Kerry Hill的案例平面解析分享

建筑师Kerry Hill的案例平面解析分享

发布于:2022-08-31 14:25:31 来自:建筑设计/居住建筑设计 [复制转发]

文章转载来源于普遍怀疑者

01

图片

看到这个平面的第一眼,相信很多人都是完全蒙圈的状态,因为在我们的通常认知里宅院一体的平面都不是这样的。


想想北京的四合院,江南的古典园林,我们会发现这个平面中建筑和院子的比例都大大的超出我们的常识,因此大家可以理解为在一个空旷的地面上有一些建筑群之间围合出了几个院子,下面我们看建筑和院子的位置:

图片

PS:红色位置是建筑,蓝色是院,长方形的条形填充块是泳池。

图片

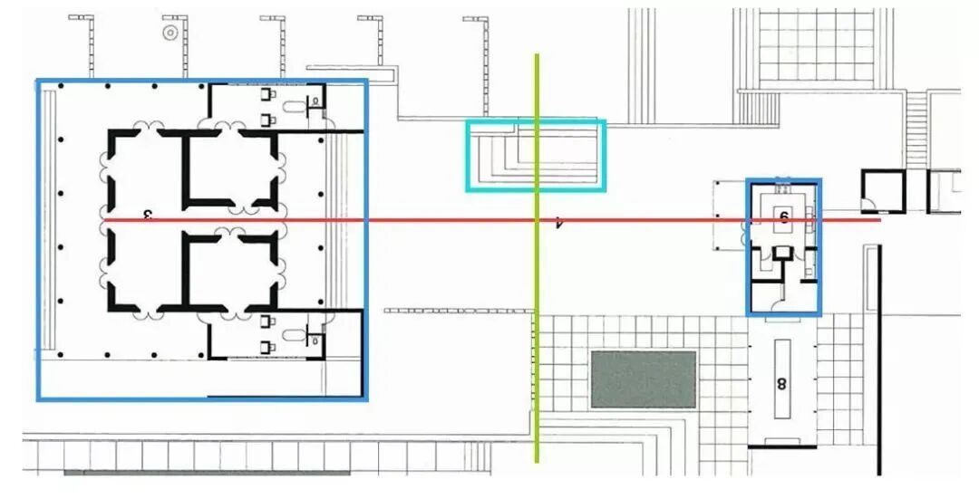
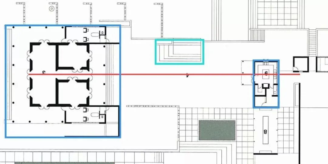
对于这么空旷的一个用地,Kerry hill 是怎么控制的呢?


小编的答案就是由视觉关系产生的轴线和边线控制并统领这个基地,这个基地总计有几条大的轴线关系,下面也画出来给大家看一下如下:

图片

这几条轴线关系可能大部分人都能找出来,但当我把建筑位置同时表示出来的时候,你就能看到这个平面设计的微妙之处。

图片

看完你会发现,左侧和上部建筑是对应的轴线关系,而右侧和下边的建筑却不是中心点主轴线对应的,而是中心轴线对应另一个建筑的一侧轴线。


这才是这个平面的关键点,整个大的布局产生了流动的丰富的空间漫游感,既对应,又错动,想想如果都是四面正对会有多无聊。


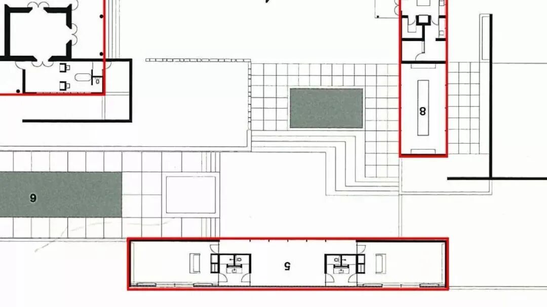
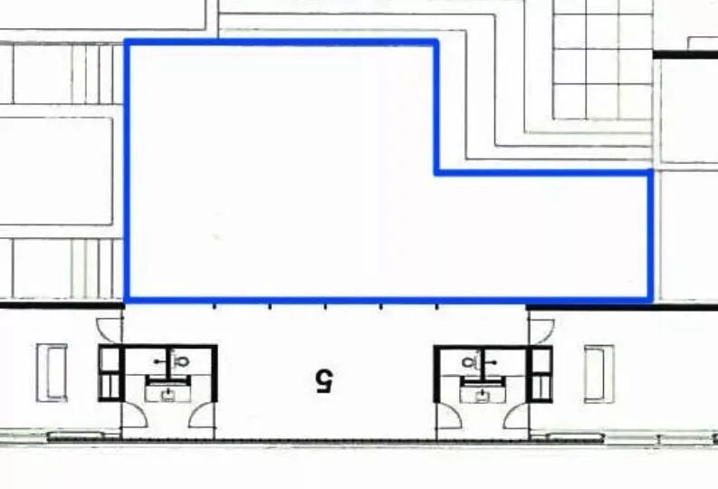
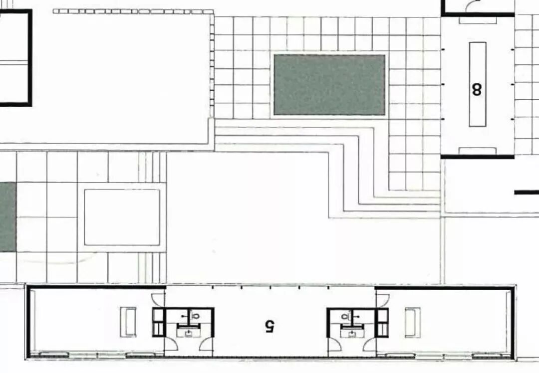
好了,我们看完大格局,然后从一些小的局部开始分析,我们先看这个位置:

图片

上方平面图中最下边的长条形的这个建筑,我先带大家看看它的实际效果以及从室内看出去的样子:

图片
图片
图片

这个院子其实做的很有意思,我们一般的做法是和建筑的开口位置找关系。

图片

△一般院子的设计

图片

△Kerry hill 做的院子设计


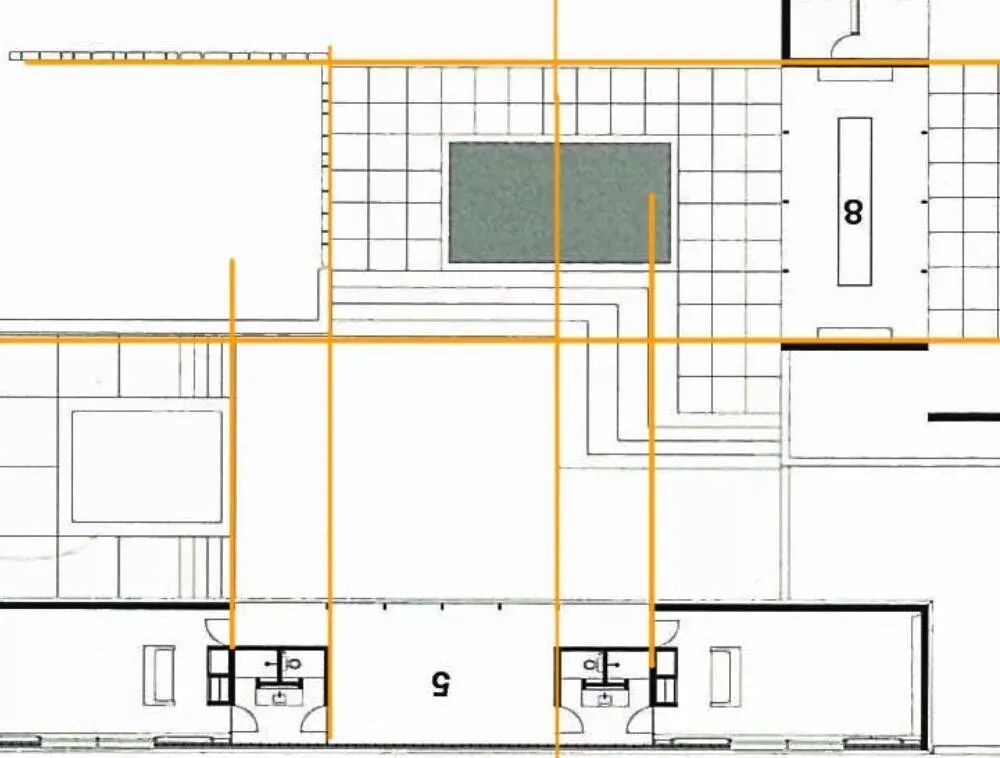
从上方可以看出,Kerry hill 是专注于一个流动性的院子,而不是打造一个均质的、静态的院子。

图片

台阶踏步的边线正好和左侧的花池中点对齐,也就是要搞L型院子,那个转折的位置也要有关系才行。

图片

△其他各个边线的对应控制线

图片

这条线是室内的墙体和室外的花池中线对应,这都是一种控制,这才叫室内和室外的对应关系,并不是简单的能看到外面就可以了,如果是那样的话我们开个窗就可以,实在是没什么技术含量。


我们继续看这个位置:

图片

红色原点位置的视觉控制其实是很有意思的。

图片
图片

在这是用大的轴线关系链接了两个建筑,然后用台阶塑造不规则的院子,让内部的轴线关系变得隐含。

02

我们再看一下这个角落的平面:

图片

我们稍微把他的角度调一下:

图片

其实这个图也是有着有精确的模数控制,轴线通过不断细分拆解,达到精确化的控制,其实深层是一种网格手法:

图片

最后我要再跟大家说一个新的知识点,我们先看下方的这两个绿色线:

图片

再来看看现场照片:

图片
图片

这两个墙体就是粉色箭头的位置,一横一竖的两条线

然后假如你站在红色圈的位置,想象一下,另一条很重要的线会是那个?

图片

就是你的身体面向的轴线。说个大白话,我们的身体是有正反面向的,我们身体的轴线是个很重要的参照线


我们站在入口的位置,看尽头的端景,然后结合两道绿植墙。我们会发现我们的视觉是被限制的,我们看的欲望是推向右侧的草坡的,这里我们得记住你的动势是向右侧的。然后你继续往前走,左侧的院子逐渐看到开阔,这时候你的动势是慢慢转向左侧的。


大家能注意这种微妙关系吗?这个东西叫做知觉。


这个知识点在设计得到与普遍怀疑同者创始人贾小亮共同出品的《室内设计师必听的空间感知与行为设计》课程第5讲中也有讲到:

图片

△扫码查看该课详细介绍(课程已加入设计得到年费会员,会员可免费学习)


然后我们走到院子里,看到的景象是这样的。

图片

这时候我们能看到又出来了两个绿植墙,总计变成了三个。

图片
图片

我们从蓝色箭头的动势,转化成了紫色箭头的方向,然后进入室内。然后我们跳出来看下,我们是如何被墙体限定、导引控制着。

图片
图片
图片

它们的高度是不同的。

图片

紫色更多的是限定区域,同时两个墙留出一个泄口,就是入口的灰色区域,引人深入。


黄色更多的是导引墙,同时由于这个墙的高度,让这个院子不是很压迫,因为它后面的紫色墙才是终点墙。


好了,这个小的平面区域就说到这里,这就是板片的魔力,大家不要被建筑的外观给骗了,它骨子里还是现代的很,我把这里的手法总结出了八个字:“横竖限定,错位导引”。


然后我再从几个更大格局方面举几个例子,阐明一下具体用法。

图片
图片

这个两条一横一竖的控制限定线,结合L型的围合线 ,我们站在红色轴线上就能感受到微妙之处。

图片

这里也是同样的手法,红色方块是人站立的位置,蓝色线负责导引和限定。

图片

这个也是↓

图片
图片
图片
图片

上方都是一前一后的错位L型导引,我们最后也通过一个人的动线再次感受下漫游空间的魅力:

图片
图片

从紫色圆圈位置,不断错动,建筑也随动势不断内凹,然后忽而掉头,望向最远方的建筑。

图片

同时一定要留出泄口,因为这是下一步继续流动的前提

知识点:住宅平面案例分析

街区设计平面图,街区设计案例分享


全部回复(0 )

只看楼主 我来说两句抢沙发
这个家伙什么也没有留下。。。

居住建筑设计

返回版块

28.74 万条内容 · 422 人订阅

猜你喜欢

阅读下一篇

双钢板组合剪力墙住宅建筑体系

近日,由中建科工北方大区担任设计咨询单位的宁波北仑区小浃江片区青墩9#地块5#楼项目主体结构封顶。该项目应用了中建科工与天津大学联合研发的“异形柱-双钢板组合剪力墙住宅建筑体系”,目前该体系已被收入《宁波市装配式钢结构住宅体系指引》及国内知名房地产企业资源库中,后续将在更多的装配式住宅项目中推广应用。 ▲项目效果图 ▲5#楼结构设计·计算模型 该项目位于宁波市镇海区,其中5#楼为钢结构住宅楼栋,建筑面积约6000平方米,层数为11层,底层层高4.5米,标准层层高2.9米,总高32.3米(檐口),标准层平面长度为43.8米,宽度11.9米,三梯六户布局。

回帖成功

经验值 +10