浙石化4000万吨/年炼化一体化项目

拟建项目地理位置
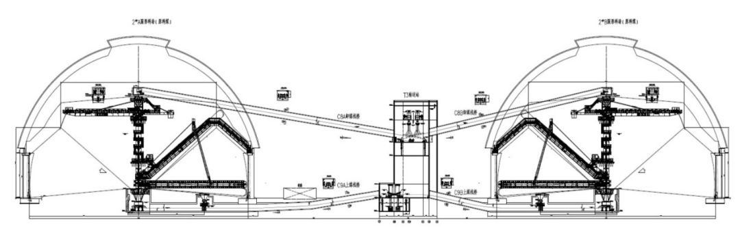
1#A/B 燃料煤场基础直径121.6m,高度75m,钢筋混凝土剪力环墙+球状网架屋顶结构。
02
工程地质条件

03
水文地质条件
(1)孔隙潜水地下水稳定水位埋深0.00~3.70m,松散岩类孔隙潜水主要赋存于表部填土和淤泥质土层中,除在填土中透水性较好外,其富水性和透水性差。场地内孔隙潜水主要受大气降水的竖向入渗补给及海水侧向补给,水位受潮汐及季节条件影响。
(2)基岩裂隙水主要赋存于岩体的节理裂隙、构造裂隙和风化裂隙中,含水介质为侏罗系的熔结凝灰岩中。主要接受海水的竖向入渗补给,含水层连续性差,富水性不均,一般水量贫乏。水质以为高矿化度咸水为主。
04
项目难点



基岩起伏较大区域地质剖面图

常规桩基施工工艺施工难点


05
DJP复合管桩方案
06
施工设备



DJP钻机配备的智能化设备
浙石化DJP复合管桩施工视频合辑

现场施工及DJP复合管桩静载荷试验
07
载荷试验

单桩静载荷试验报告


单桩承载力静载荷试验曲线
单桩竖向抗压承载力特征值均为2700KN,满足设计要求

DJP复合管桩成桩效果
推荐资料(点击文字跳转):
知识点:DJP复合管桩的施工流程
0人已收藏
0人已打赏
免费0人已点赞
分享
建筑施工
返回版块66.02 万条内容 · 1639 人订阅
阅读下一篇
边坡防护之常见坡面防护设计!01 坡面防护原则 边坡坡面防护的种类和方法多种多样,但不论采用哪种方法,防护工程都应遵循以下原则:因地制宜,结合边坡的地形地貌、水文地质条件,根据实际情况确定适宜的防护措施;就地取材,在选用防护材料时,尽量利用当地材料,就地采集;
回帖成功
经验值 +10
全部回复(0 )
只看楼主 我来说两句抢沙发