电力隧道为容纳电缆数量较多、有供安装和巡视的通道、全封闭型的地下构筑物。电缆隧道的主体结构,使用年限应为100年。电力隧道施工的主要方法包括明挖法、暗挖法、顶管法、盾构法等,其中主要在明挖隧道、顶管工作井、盾构工作井的开挖过程中涉及到基坑开挖时需要进行基坑支护。
常用的基坑开挖支护类型包括:大放坡开挖、土钉墙支护、钢板桩支护、型钢支护、灌注桩支护、SMW工法桩支护、地连墙支护。
在进行基坑支护的形式选择时,应结合基坑安全等级、环境保护等级、周边环境、地层条件、地下水位、基坑深度、经济因素综合确定。
周边环境场地开阔,不存在较大范围拆迁及不存在重要的建(构)筑物时,可采用大放坡的形式。
一般适用于基坑深度小于10~15m,当基坑较深时可分台阶放坡。当基坑深度较大时,需进行大放坡开挖基坑稳定性的论证。不宜适用于基坑变形控制要求高的工程。
可将大放坡与土钉墙结合使用以增加坡体的稳定性以及满足文明施工的要求。
当地下水位位于基坑底以下时使用,当地下水位较高时,应进行基坑降水。
土钉墙可单独使用也可与灌注桩结合使用,起到减小桩长,减少投资的作用,不宜适用于基坑变形控制要求高的工程。
适用开挖深度一般不大于12m。
当地下水位位于基坑底以下时使用,当地下水位较高时,应进行基坑降水。
(3)钢板桩支护
(4)型钢支护
(5)灌注桩
可适用于深基坑。
可适用于多种地层。
单桩支护时不能够止水,当地下水位位于坑底以上时,需在桩周边采取降水、止水措施。
可结合钢围檩+混凝土撑(钢支撑)使用,以减小基坑及围护位移。
(6)SMW工法桩
主要适用于软土地层。
一般适用于基坑深度不大于15m。
由于SMW工法桩连续性好,具有较好的止水效果,可用于水位较高的地层。
(7)地下连续墙
由于本人以前从事铁路隧道设计行业,现从事电力隧道设计行业,现将铁路明挖隧道与电力隧道的特点进行对比,以在后续对电力隧道基坑开挖时支护形式的选择时加以借鉴和优化。现以雄安新区高速铁路隧道与雄安新区电力隧道为例进行对比。
典型的双线单洞高速铁路的明挖隧道断面一般采用带仰拱的拱形明洞形式,由于高速铁路机车行驶速度大,为了满足其空气动力学要求,规范对隧道净空面积有严格要求,双线单洞高速铁路明挖隧道净空面积不小于100m2。隧道主体结构断面高约为12.5m,宽约为14.7m。典型双线单洞高速铁路明挖隧道断面形式如下。
高速铁路隧道受规划限制、线路走向、周边环境、隧道最小覆土厚度要求的原因,覆土厚度一般在3~16m,明挖隧道基坑深度一般在10~26m之间,其中仅在隧道进出口的位置基坑深度为10~15m,占比较少,其余大部分为15m以上深基坑。
在基坑开挖过程中,其支护形式根据基坑开挖深度、地层情况、地下水情况、经济因素等综合确定。由于该地区地层多为土层及砂层,地下水位较高,采用的支护方式包括大放坡开挖+土钉墙支护、钻孔灌注桩+混凝土撑(钢管撑)支护、地连墙+混凝土撑(钢管撑)支护,并采取坑内或坑外的降水措施。
当基坑开挖深度小于15m时,一般采用大放坡开挖的形式,开挖断面见下图。当基坑开挖深度大于15米时,根据开挖深度的不同,选择不同参数的钻孔灌注桩支护或地连墙支护。
当采用大放坡开挖时,采用分台阶放坡+留台阶的开挖方式,坡面用土钉墙进行坡面硬化,典型开挖断面见下图。
随着基坑开挖深度的加大,选择不同长度、直径(厚度)的钻孔灌注桩(地连墙)+混凝土支撑+钢管撑或放坡+钻孔灌注桩(地连墙)+混凝土支撑+钢管撑的支护形式。典型开挖断面见下图。
地连墙+混凝土支撑+钢管撑
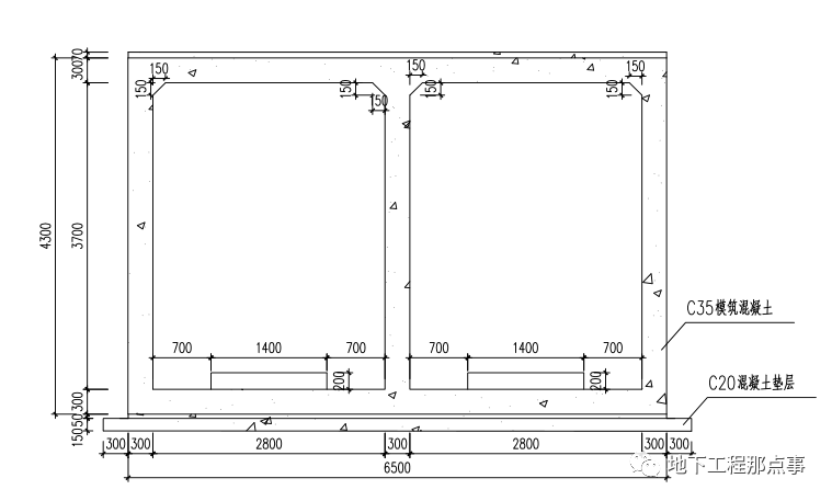
电力隧道的断面大小取决于电力管线的敷设要求,及检修时人员的通行要求,220KV高压电力隧道断面高4.3米,宽6.5m。
电力隧道的埋深主要取决于规划限制、周边环境、地下管线以及最小覆土厚度的限制,隧道覆土深度多为2m~4m。当隧道下穿管线或道路,采用顶管施工时,顶管工作井基坑及与其相接部分覆土厚度较大,所以基坑深度主要在6 m~10m之间,有的部位可达20米以上。基坑开挖支护采用钻孔灌注桩或地连墙的形式。

通过以上论述与对比可以得到:电力隧道基坑于铁路隧道基坑都为线形工程,因此铁路隧道基坑开挖支护形式具有借鉴意义,但存在不同的地方,电力隧道的基坑开挖深度及宽度整体相对较浅、较窄。
当外界条件允许时,电力隧道基坑深度小于等于15m时,可以选择类似于铁路工程大放坡+土钉墙的支护方式;由于电力隧道基坑的深度主要集中在6~10米,当外界条件不允许大放坡+土钉墙的支护形式时,当基坑深度小于等于8米且地层条件允许时,可选择钢板桩或型钢桩的支护形式;当基坑深度较深时可采用放坡+灌注桩(地连墙)+混凝土撑+钢支撑的支护形式。
内容源于网络,如有侵权,请联系删除
相关资料推荐:
https://ziliao.co188.com/p62408772.html
某大学大学站进线电力沟隧道注浆加固工程施工方案
https://ziliao.co188.com/p62330480.html
知识点:电力隧道
0人已收藏
0人已打赏
免费3人已点赞
分享
隧道工程
返回版块2.96 万条内容 · 279 人订阅
阅读下一篇
浅埋小净距隧道围岩压力计算与监测分析摘要 以《公路隧道设计规范》(JTG D70–2004)为基础,结合小净距隧道的特点,对浅埋小净距隧道的围岩压力进行理论分析和探讨,提出考虑隧道双洞先后施工过程的围岩压力分析模型和计算方法。通过算例分析围岩压力分布规律及其影响因素,指出浅埋小净距隧道围岩压力分布的偏压特征,即隧道内侧垂直压力大于外侧,内侧侧压力小于外侧。最后通过工程监测实例对理论计算结果进行对比分析和验证,表明理论计算公式和分析模型的合理性,并提出以相对最不利的先行洞偏压状态围岩压力值进行支护参数设计的建议。研究工作可为今后围岩压力分析计算和隧道结构设计提供有益的借鉴和参考。
回帖成功
经验值 +10
全部回复(0 )
只看楼主 我来说两句抢沙发