现代高层建筑是随着社会生产力的发展和人类活动的需要而发展起来的,是商业化,工业化和城市化的结果。框架—核心筒结构就是一种常用的结构形式。
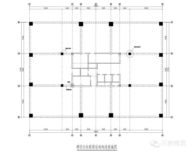
《高规》中规定“核心筒的外墙与外框柱间的中距,非抗震设计大于15m,抗震设计大于12m时,宜采取增设内柱等措施”。虽然增设内柱可以减小楼板的厚度,降低梁的高度,减轻结构的自重并且具有较好的经济效益,然而增设内柱却带来以下不利的影响:
(1)由于环筒内柱到核心筒外墙的中心距离很近(核心筒的宽度需满足规范规定的1/12H,所以内柱到核心筒外墙的中心距离一般小于3m),此段梁的跨度小,导致该段梁的线刚度很大,相应将产生很大的弯矩和剪力,故此段梁往往计算时超筋严重,钢筋无法配置。


(2)由于环筒框架的存在,较大程度上分担了核心筒所承受的竖向荷载,将会使核心筒仅承担很小的竖向荷载,从而可能导致在水平地震作用下核心筒墙肢出现拉应力,这对结构很不利,若出现贯穿性裂缝,更是无法容忍。
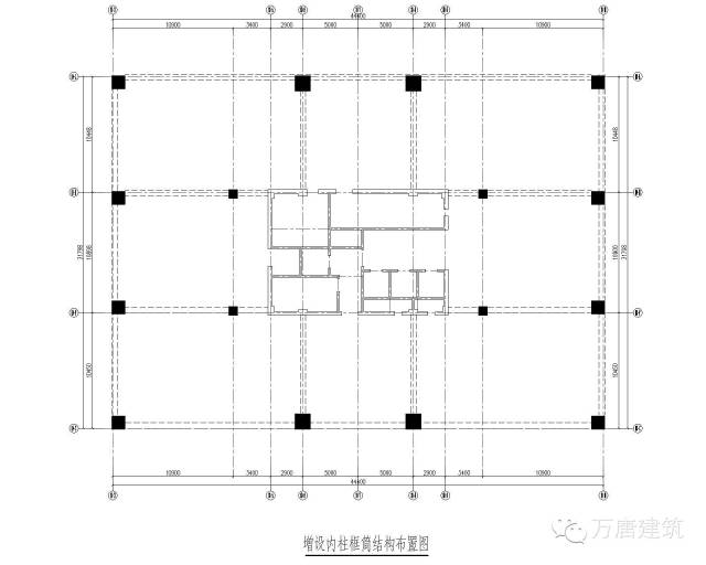
若必须增设内柱时,应采用以下措施:
(1)环筒内柱可仅按轴心受压柱进行设计,不考虑参与结构整体抗侧。
(2)内框梁的截面尺寸应同外框梁截面保持一致,梁的上下纵筋宜拉通,并且可靠的锚入核心筒的外墙中,内框梁箍筋全长加密。
(3)内框梁与核心筒的外墙处设置暗柱,暗柱的内力按无内柱的结构形式计算,必要时暗柱中可设置型钢。
(4)楼板的厚度适当加强,并且提高最小配筋率,钢筋双层双向配置。

相关资料推荐:
0人已收藏
0人已打赏
免费3人已点赞
分享
混凝土结构
返回版块140.17 万条内容 · 2216 人订阅
阅读下一篇
框架—核心筒结构的概念与布置要点01概念 框架—核心筒结构是指由外围梁柱组成的框架体系与中心筒体共同组成的结构体系。 这一结构形式有利于提高结构整体的受力性能,从而提高高层建筑物抗震性能。框架—核心筒结构因其良好的受力性能和内部空间的灵活性成为目前国际超高层建筑中采用的主流结构形式,在超高层建筑中有着广泛的应用(其实高层公建办公也很常见)。 核心筒内的功能主要为电梯间、楼梯间、管道井和消防前室,必要时也可将公共卫生间等放在核心筒内。所以结构可以根据功能房间的分割在内部灵活布置剪力墙。
回帖成功
经验值 +10
全部回复(0 )
只看楼主 我来说两句抢沙发