编者按:设计团队希望建筑能提供一种“空”的姿态,引入风景并连通城市的四方。在这里,让城市生活回归为真正的主角。
在重庆绿岛新区的公共服务中心建筑群中,璧山文化艺术中心是最重要的公共文化建筑,南临中央公园人工湖,西接市民广场公共绿地,景观资源优越,是整个区域最早启动的几个项目之一。

区位图 ?TANGHUA ARCHITECT&ASSOCIATES
清乾隆《璧山县志·形势》载:“昔人云四山如璧,又云山出白石,明润如玉,故名璧山。” 文化艺术中心用一种抽象的建筑语言再现关于“璧山”的描述,这种形体关系也是对周围山水环境要素的一种映射。设计团队希望这座公共建筑提供的是一个“地方”,而不仅仅是一栋建筑。

轴测图 ?TANGHUA ARCHITECT&ASSOCIATES
未平整的原始场地中有三个山丘,大小不一,相对而立,中间的谷底向周围场地延伸,这种自然的空间关系成为了这次设计的起点。而这种“空”,正是设计团队认为的回应自然、城市、文化的最佳姿态。建筑体量依从原有谷地的趋势做切割,从一个实体中打开了连接场地周边几个重要公共空间的通路。西侧的自然景观经由二层平台延伸至建筑内部,公共平台连接了三个体块,成为了一个富有活力的城市客厅。

建筑草图 ?TANGHUA ARCHITECT&ASSOCIATES
这种形体生成的逻辑也让建筑界面自然呈现出了内和外的差别。建筑主体的“外”表皮采用了灰色铝单板格栅结合玻璃幕墙,很好地解决了建筑东西日晒的问题。整齐划一的金属板形成横向线条,让“外”表皮简洁、纯粹又现代,凸显了“内”的复杂和多变。在内向的峡谷界面中,不同角度的三角面上玻璃、金属板、铝板网交替出现,又被冰裂纹式的划分统一起来。整个“内”界面呈现一种晶体的质感,这种闪烁剔透的“复杂”将让“空”成为来往人群视觉的焦点。

内界面的划分与设计,幕墙分析图 ?TANGHUA ARCHITECT&ASSOCIATES

内界面的划分与设计,幕墙分析拆解图 ?TANGHUA ARCHITECT&ASSOCIATES


简洁、纯粹的外界面,摄影:何震环

“山谷”,摄影:何震环


复杂、多变的内界面,摄影:何震环


公共空间里复杂多变的光影,摄影:何震环
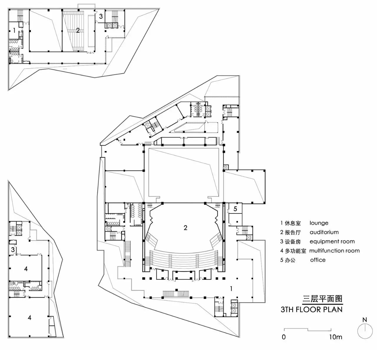
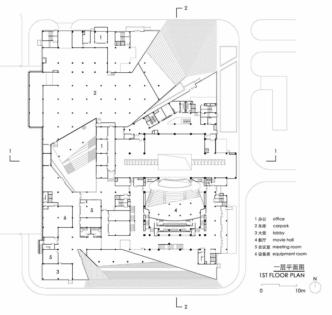
除了形体逻辑的梳理,设计团队将文化艺术中心复合多样的功能空间梳理为三个部分:主要空间,辅助空间以及交通脊。
各功能区间,围绕公共平台组织,按原始山体的分布坐落于基座上。东侧为大剧院,西侧为会议中心、群艺馆和电视台等功能。观众从平台层进入不同场馆,服务辅助功能则在平台下将几个体量连接在一起。
细部图,摄影:何震环
剧场,摄影:何震环

剧场,摄影:何震环

一层平面图 ?TANGHUA ARCHITECT&ASSOCIATES

二层平面图 ?TANGHUA ARCHITECT&ASSOCIATES

三层平面图 ?TANGHUA ARCHITECT&ASSOCIATES

四层平面图 ?TANGHUA ARCHITECT&ASSOCIATES

剖面图 ?TANGHUA ARCHITECT&ASSOCIATES

北立面图(上),南立面图(下) ?TANGHUA ARCHITECT&ASSOCIATES
项目名称:璧山文化艺术中心
项目地点:重庆
委托机构:重庆绿岛新区管理委员会
用地面积:35348.84㎡
建筑面积:37736.51㎡
设计时间:2010.09-2012.03
建成时间:2016.12
设计团队:汤桦、陈国文、邓芳、汪田浩、周昱、段芸芸等
合作单位:重庆市设计院
声学顾问:林泰勇,张三明
建筑摄影:何震环
来源:有方空间 仅为学习分享 侵删
0人已收藏
0人已打赏
免费9人已点赞
分享
公共建筑设计
返回版块51.17 万条内容 · 447 人订阅
阅读下一篇
在竖向荷载作用下框架内力的近似计算——分层计算法将框架结构划分为平面框架后, 按照楼板的支承方式计算由楼盖传到框架上的荷载, 即按照 框架的承荷面积计算竖向荷载。 图 24-4(a)所示为框架上的可能出现的竖向荷载形式, 可能 是均布荷载, 或者是三角形或梯形分布荷载, 如有次梁, 则还有集中荷载。 在柱上作用的集 中力是另一方向的梁传来的荷截, 当这个集中力作用在柱截面重心轴上时, 只产生柱轴力。 多层多跨框架在一般竖向荷载作用下侧移是很小的, 可按照无侧移框架的计算方法进行内力
回帖成功
经验值 +10
全部回复(5 )
只看楼主 我来说两句-
e代森林0901
沙发
2022-07-24 18:47:24
赞同0
-
e代森林0901
板凳
2022-07-24 18:47:24
赞同0
加载更多一看就是扎哈的风格
回复 举报
一看就是扎哈的风格
回复 举报