我们可以通过文字来梳理:通过植筋、预埋、绑扎等连接方式,使用钢筋按照一定的构造要求将后砌体与混凝土构件拉结在一起的钢筋。
拉结筋在广联达软件里面分了砌体加筋和砌体通长筋,两者有何区别?
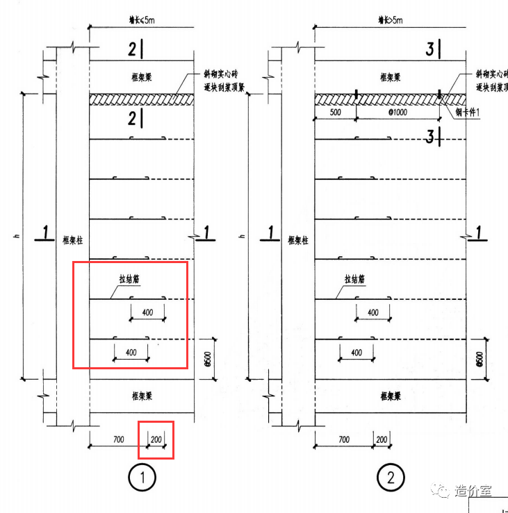
砌体加筋不是通长的,一般支出700mm,砌体通长筋就是整个砌体墙都有钢筋,是通长的。(如图)

砌体拉结筋
对于砌体拉结筋规范和图集都有说明,我们先看规范,在GB50203-2011砌体结构工程施工质量验收规范中如是讲到:

在GB50924-2014砌体结构工程施工规范中如是讲到:


规范里讲到的都是加筋的形式,似乎没碰到什么时候采用通长筋的形式是吧,我们翻开图集看看。
首先翻开国标的12G614-1,在说明的第5.4.1条中说明拉结筋伸入墙内的长度,6、7度可全长贯通,8度必须全长贯通。

然后我们打开西南15G701,在说明第4.3墙体的连接中,我们可以看到6、7度可全长贯通,8度必须全长贯通。

在第6条选用中也说明:6、7度抗震设防时,根据工程情况来选用全长还是非全长的方式。

讲到这里,我们就能明白,拉结筋是根据抗震设防烈度来确定是否通长,那么问题来了,我们都知道砌体拉结筋与主体一般是通过直接预留或者植筋的方式来处理,那么砌体的通长筋是如何做的呢?
我们可以翻阅12G614第11~12页,我们能发现,砌体通长筋的布置方式是先设置砌体加筋伸出400,在用通长的钢筋与他搭接400的长度,并且搭接位置还有3根4的横向短筋。


并且在说明里面也讲到了如果是焊接,单面焊是10d,如果是绑扎,那么搭接长度必须55d且不应小于400mm

然后我们翻到西南15G701第25页,我们也能发现通长筋的处理方式。
一样的先砌体加筋之后,在用通长的钢筋与之搭接400。

并且拉结筋与拉结筋上下之间是错开200后在搭接。锚固长度是200mm。

当然上述两种图集的示意图伸出长度有700的,也有400的,上面规范也要求了拉结筋的最小长度,不过这些都不重要,因为在12G614中也说明了,设计人员可根据具体工程情况适当调整长度。具体还是看你们图纸要求。

现在我们知道了通长筋的处理方式,那么问题由来了,我们都知道,广联达里面处理拉结筋有两种方式,一种是砌体加筋,一种是砌体通长筋,两者你都可以设置,他们都是个算个的,如果我们项目是用砌体通长筋的方式,我们在广联达中,用砌体通长筋的方式处理了拉结筋,我们汇总计算会发现,这个砌体通长筋不会算植筋。如果你的项目要算植筋的费用,那该怎么办呢?
这里我们就只能变通处理,一样的设置砌体通长筋,然后在通长筋设置里面将加筋锚固长度改为0。

然后在布置一道砌体加筋,将砌体加筋的长度改为搭接长度400,即可。

这样不仅算了搭接长度,还算了植筋个数。是个变通的好办法吧。
在文章的最后,我这里科普下12G614和15G701这两本图集。
12G614是中国设计研究院编制的国家标准的砌体图集,一共只有一册,适用范围也写明了的。

而15G701则是西南设计研究院编制的,一共有三册,分为15G701-1、2、3,对应三种砖的材质,加气块、混凝土、空心砖。对应的适用范围则是西南地区的,大家请对号入座哈。

0人已收藏
0人已打赏
免费1人已点赞
分享
建筑施工
返回版块66.02 万条内容 · 1639 人订阅
回帖成功
经验值 +10
全部回复(1 )
只看楼主 我来说两句 抢板凳砌体通长筋的布置方式是先设置砌体加筋伸出400,然后再用通长的钢筋与他搭接400的长度,并且搭接位置还有3根4的横向短筋。
回复 举报