◎图1 重庆第九人民医院两江分院项目鸟瞰图
项目名称丨重庆市第九人民医院两江分院项目
项目地点丨重庆市两江新区水土镇
项目规模丨总建筑面积约105543.53㎡
设计团队丨冉瑞均、牟文亿、王芳、黎雪珂、张燕南
设计时间丨2018年11月-2019年07月
设计单位丨重庆市设计院
项目概况及难点
本项目主要包含一栋门诊医技住院综合楼,一栋后勤楼,一座储气站,以及一座污水处理站。总建筑面积约105543.53㎡,地上建筑面积约59482.29㎡,地下建筑面积约46061.24㎡,建筑地面总高度35.6m,最高层数7层。
相对于其他综合医院给排水专业有两个难点:
一是排水组织困难:
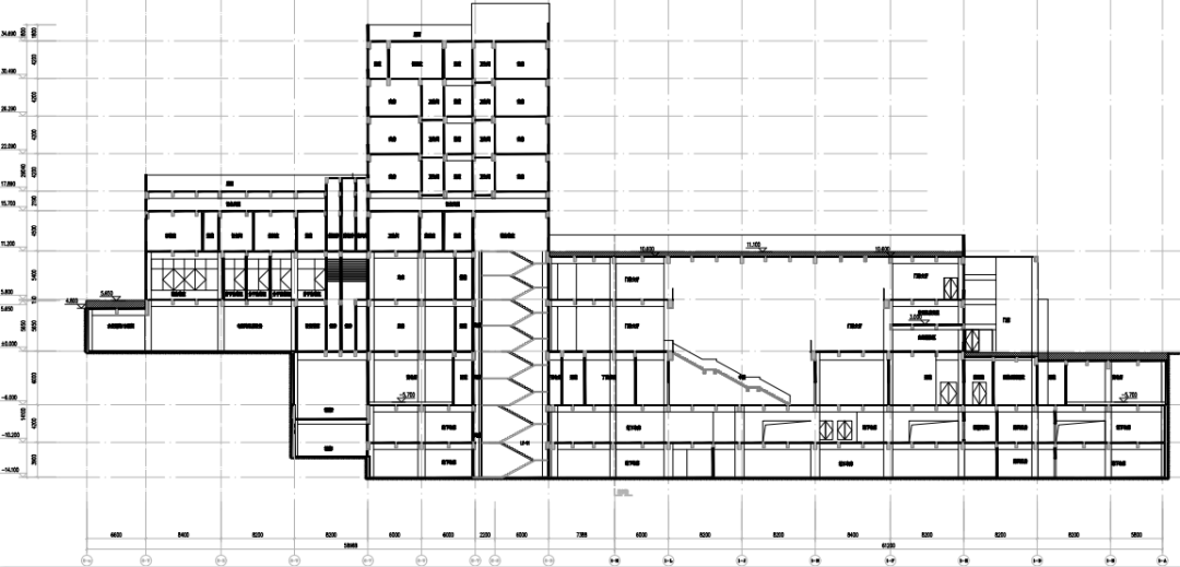
项目建筑方案采用了开放发散式的平面布局,又由于地势北高南低,北侧和南侧形成一层楼的高差,有较大部分功能房间位于地面以下,相对于常规医院设计可通过竖向进行给排水系统组织,本案开间进深均较大,需采用水平结合竖向组织给排水各系统,同时还需进行大量的转换,特别是排水不可避免产生大量的提排。
◎图2 重庆第九人民医院两江分院医技综合楼剖面图
二是本案为设计总承包全案设计:
本案为设计总承包,除常规建筑给排水设计外还有大量的专项设计以及二次深化设计(虹吸雨水、污水处理站、海绵城市、雨水回用系统、抗震支架等),使得项目难度增加。
下文将还原本案部分设计场景,就设计过程中碰到的部分问题以及最终解决方式进行回顾,希望能给后续的医院提供参考。
一、给水系统
1、用水量定额选取
19版新设计标准相比旧版本规范医院住院部和门诊部人员(主要是医务人员)的生活用水定额以及最高日变化系数均分开统计。医疗建筑用水中已含医疗用水,如酸水、超纯水、手术,牙科,检验等用水,但不包括洗衣房用水、空调水、冷却塔补水。实际设计还需考虑洗衣房用水量如洗衣是否外包,餐饮用水供餐范围,供餐是否包含病人等。

◎图3 《建筑给水排水设计标准》GB50015-2019 表3.2.2
本案考虑加床等可能性,对用水定额取值偏上限350L/d,在建方暂未提供准确资料的前提下,考虑了洗衣房用水的预留以及病人及家属就餐用水。
2、储水及加压设备
根据《建筑给水排水设计标准》GB50015-2019:
3.8.3:生活用水低位贮水池的有效容积应按进水量与用水量变化曲线经计算确定;当资料不足时,宜按建筑物最高日用水量的20%~25%确定。
考虑医院建筑停水影响大,而医疗建筑往往存在加床等可能,故生活水箱按25%上限考虑。需要补充说明的是,为了保证供水可靠性及防止水质污染,医疗建筑不应使用叠压式供水设备(如广州市有明文规定)。
3、 给水供水分区&最不利点水压确定
医院门诊、后勤楼一般工作时间为8-10h,住院部一般用水时间为24h,系统合并设计可能会产生供水泵运行在非高效段,有条件的情况可以考虑分区供水。如本案设计前期调研部分已建医院,其门诊楼与住院部采用不同的水箱水泵系统供水。
本案因市政供水水压正好能满足门诊楼供水,故对门诊楼采用市政直供,而住院楼采用变频加压供水,在供水分区上分开,确保节能。
在综合医院给水系统设计中,最不利用水点的水压应充分考虑所选用的医疗用水设备和卫生设备。
◎图4 医院分质供水需求(图片来源:某专业设备供应商)
◎图5 医院分质供水系统(图片来源:某专业设备供应商)
在综合医院中,大都设有各种不同用途的医疗用水设备,包括血液透析制水设备,医疗器械消毒清洗设备,手术快速无菌热水制备器,超纯水设备等。它们对水源的最低压力都有一定的要求,某些型号和设备要求最低工作压力在0.15MPa以上;而楼层公共卫生间如选用延时自闭式冲洗阀,最低工作压力也一般在0.10MPa~0.15MPa以上。
4、给水管网布置
医院设计一般需至少满足绿色建筑二星要求,绿色建筑二星对分级计量水表的安装要求是100%,由于医院平面功能分区主要按照科室,而各层不同科室又存在功能差异,造成各用水点位分布以及用水量在水平和竖向上分散不均匀;而按目前医院各个科室的精细化管理,给水往往按科室进行计量和考核,则供水需通过立管和水平干管结合的方式供水。
本案各层设总水表,各科室设置分水表(远传水表),通过立管结合水平设置干管减少管道敷设量,并配合装饰对敷设于吊顶内的水表预留检修口。
需要特别注意的是手术区,根据《医院洁净手术部建筑技术规范》GB50333-2013:
10.2.1供给洁净手术部用水的水质应符合现行国家标准《生活饮用水卫生标准》GB5749的要求,应有两路进口,由处于连续正压状态下的管道系统供给。
手术区需保证两路进水,是为了防止手术区断水,清洗消毒不能停运。
5、热水供水范围
门诊、食堂一般由于用水点位分散,是否设置热水。以及热水热源可与建方商议后综合确定,一般宜采用局部加热的方式。本案因建筑功能在水平展开,热水用水点过于分散,故门诊以及食堂未考虑集中热水供应。
6、热水温度及二次消毒方式
热水系统温度:《综合医院建筑设计规范》GB51039-2014 :
6.4.1除医疗用热水,其他用途的热水水温宜按60℃设计;
6.4.5生活热水系统的水加热器出水温度不应低于60℃,系统回水温度不应低于50℃。
根据《建筑给水排水设计标准》GB50015-2019 :
6.2.6系统设灭菌消毒设施时水加热设备出水温度均宜相应降低5℃。
目前主流热水系统的二次消毒方式主要紫外光催化二氧化钛(AOT)消毒装置和银离子消毒器。采用前者的优点是一次投资较小,缺点是耗电量较大,运行维护(灯管寿命约两年,1000-2000H)成本高;采用后者优点是运行维护成本较低(主要为替换银离子棒费用),系统水温可降低,有利于节能安全以及缓蚀阻垢等,缺点是初期投资较AOT方式大。本案采用了较为传统的AOT方式,但综合考虑后期运行以及维护成本,建议后续新建项目有条件优先采用银离子消毒器,还可降低相应加热设备出水温度。
二、排水系统
1、排水水源
医院内用水单位众多,排水来源多、成分复杂:如门诊室、检查室、化验室、中心供应、外科、牙科、x光照相洗印、手术室等带药物、病菌、病毒、寄生虫的医疗排水;检验科、实验室的酸碱、重金属医疗废水;酸碱核医学治疗的放射性医疗排水;医护后勤人员及病人的卫生间、病房、生活排水;消毒池排放的带消毒剂的排水;食堂厨房的含油废水;锅炉房、洗衣房排放的高温排水等。分类收集排放处理,是医院排水设计的基本原则:

◎表1 医院污废水排放分类一览表
2、排水组织
本案因平面开间进深较大,大量的排水无法通过重力排出,故本案按照分散集中、高水高排、低水低排的方式,通过7处污水提升装置就近对不能重力排放的污水进行提升排放。
3、排水管材
医院排水管需要根据不同场所、不同性质的排水分别选用不同管材。根据《综合医院建筑设计规范》 GB 51039-2014 -6.9.2、6.9.4的要求,常规管材主要为机制排水铸铁管或塑料管。考虑医院对静音要求较高,铸铁管排水噪音比塑料管小4dB(A)~6dB(A),本案主要场所排水均采用机制排水铸铁管。对于门诊楼可能排放酸碱腐蚀性液体的房间(如检验检疫、化验室等),可采用耐酸碱腐蚀的塑料管。锅炉排污水、中心(消毒)供应室的锅炉排污水的消毒凝结水应采用耐高温金属排水管,如铸铁管。放射性废水管采用机制含铅铸铁管道(外包铅板保护)水平管并应敷设在垫层或专用防辐射吊顶内,立管应暗装在壁厚不小于150mm的混凝土管井,防止放射性射线穿透管道污染环境。
4、排水管道敷设
1)排水管道的位置、走向以及清扫口和检查口设置的位置,需要充分考虑管道因腐蚀、结垢、堵塞等原因需要维修、清扫、更换时所需要的空间,以及维护时对正常运营的影响,尽量避免布置于公共区域;管道布置应减少或避免管网噪声污染,设计流速不宜太高,可能产生振动噪音较多的管道以及如雨水立管、汇合管等除不穿越还应尽量避让手术室、分娩室、监护病房以及一般病房,如无法避免需紧邻布置可考虑设置消音、减震设备,保证患者和医生有安静的疗养和工作环境。
2)手术室、中央供应室、牙科诊所、检验部、病理科和其他特别重要的科室有条件设独立的排水系统。确保该区域在其他的医疗和排水设施在管道被堵塞、清理或清理后仍可安全使用。其中中心(消毒)供应室、中药加工室、口腔科排水管管径可适当放大。
5、附件
地漏:基于预防水封干涸和防止交叉感染,原则在满足地面排水的要求下尽量少设置。卫生间、浴室、空调机房等应设置地漏。护士室、治疗室、诊室、检验科、医生办公室等房间不宜设地漏。(地漏应尽量少设,一般仅在公共卫生间、洗涤消毒间设置,门诊室不应设置,且不兼作清扫口。)
地漏形式为带过滤网的无水封直通型地漏加存水弯。
地漏宜采用附近洗手盆的排水给水封补水。做法可参见下图:

◎图6 洗手盆给地漏水封补水大样图
三、消火栓系统
1、火灾延续时间
按规范定义,“综合楼”是指由两种及两种以上用途的楼层组成的公共建筑。“综合医院”是指设置包括大内科、大外科等三科以上,门诊和服务24小时的急诊及正规病床的医院。所以,当高层医院设有住院,门诊、体检等多种综合医疗功能时,仍然是符合“综合医院”的定义的,火灾延续时间仍可按2.00h取值。当高层医院设有如商业服务网点,商铺和餐厅等非医疗用途的楼层时,就应被视为第二种用途,符合“综合楼”的定义,火灾延续时间应按3.00h取值。
本案因考虑裙房空间面积较大、平面复杂,疏散较普通医院困难,故火灾延续时间根据专家意见应按3.00h取值。常规综合医院火灾延续时间取2.0h即可。
2、消火栓布置
医院消火栓布置与常规公共建筑无较大差异,除应按人员密集的公共建筑配置消防软管卷盘外,同时尽量设置带灭火器卷盘消火栓箱全暗装以减少对疏散、清洁、美观等各方面影响。
还应注意根据《综合医院建筑设计规范》GB51039-2014-6.7.1要求:手术部的消火栓宜设置在清洁区域的楼梯口附近或走廊;以及《医院洁净手术部建筑设计规范》GB50333-2013-12.0.8要求:洁净手术室不应设置室内消火栓,但设置在手术室外的消火栓应能保证2支水枪的充实水柱同时到达手术室内的任何部位。
因为医院由洁净区、污染区、无菌区及一般工作区组成的。对于手术室、洁净区无菌区来说,设置消火栓除可能存在如漏水等安全隐患还存在积灰不便清洁等可能,故手术室区域消火栓设置在区域外,但手术室亦在消火栓保护范围内。
四、自动喷水/气体灭火系统
1、喷头选型
根据《综合医院建筑设计规范》GB51039-2014-6.7.2要求,病房应采用快速反应喷头。其中注意根据《自动喷水灭火系统设计规范》GB50084-2017-6.1.7条规定:治疗区域也应采用快速反应喷头。由于门诊用房区域治疗房间和办公室功能重叠,实际实施上门诊应全部采用快速反应喷头。
根据《综合医院建筑设计规范》GB51039-2014-6.7.3要求:医院的贵重设备用房、病案室和信息中心(网络)机房,应设置气体灭火装置。贵重设备机房如直线加速机房,MRI,PET-CT等贵重设备房间,需要设置气体灭火,防止喷头误喷造成设备器材的损失。而对于普通CT、超声、DR等设备房间是否设置气体灭火可根据设备价值和重要性,可与建方以及管理使用方综合商议后确定。另外其中较容易遗漏是病案室,规范明确要求需要设置气体灭火。
另外据《综合医院建筑设计规范》GB51039-2014-6.7.4条:血液病房、手术室和有创检查的设备机房,不应设置自动灭火系统,以及《医院洁净手术部建筑设计规范》GB50333-2013-12.0.7:洁净手术部应设置自动灭火消防设施。洁净手术室内不宜布置洒水喷头。主要避免细菌滋生,也避免自喷误爆,导致对病人伤口、医疗器具等洁净器具的污染。
2、灭火设施选取
根据《综合医院建筑设计规范》GB51039-2014-6.7.3要求:医院的贵重设备用房、病案室和信息中心(网络)机房,应设置气体灭火装置。贵重设备机房如直线加速机房,MRI,PET-CT等贵重设备房间,需要设置气体灭火,防止喷头误喷造成设备器材的损失。而对于普通CT、超声、DR等设备房间是否设置气体灭火可根据设备价值和重要性,可与建方以及管理使用方综合商议后确定。另外其中较容易遗漏是病案室,规范明确要求需要设置气体灭火。
另外据《综合医院建筑设计规范》GB51039-2014-6.7.4条:血液病房、手术室和有创检查的设备机房,不应设置自动灭火系统,以及《医院洁净手术部建筑设计规范》GB50333-2013-12.0.7:洁净手术部应设置自动灭火消防设施。洁净手术室内不宜布置洒水喷头。主要避免细菌滋生,也避免自喷误爆,导致对病人伤口、医疗器具等洁净器具的污染。
五、海绵城市
医院建筑因其功能以及定位,用地一般地势较为平坦,规划要求有较高的绿化率,对海绵城市设计较为有利;且医院景观设计多以草坪、灌木为主,较少高大乔木,有利于雨水花园的布置。本案海绵设计存在主要的难点在于景观专业集中布置有大量的硬质铺装,且硬质铺装位置位于标高较低侧的人行和车行主入口等区域,其附近较难布置雨水花园。本案的解决方式是通过各服务分区综合加权平衡以及替换部分硬质铺装为透水铺装的方式保证径流控制率达标。控制指标加权平衡时应注意避免容积海绵设施服务范围的年径流总量控制率取值过高或过低。一般单个容积式海绵设施服务范围的控制指标不宜低于项目总规划指标的85%。(《建设工程海绵城市建设效果专项评估技术指南(实行)》-4.3.2:单个容积式LID设施服务范围的年径流总量控制率≥项目年径流总量控制率的85%。)
本案设计中,优先采取下垫面改造的方式,通过植物搭配和景观造型,并结合绿色屋顶,以及生态停车位等,降低综合雨量系数,在满足规划要求同时能实现较好的景观效果和社会效应。

◎图7 雨水花园实景效果图

◎图8 生态停车位实景效果图(图片来源:网络)
六、建筑机电抗震设计
医院建筑因室内管线、设备众多,除一次设计外,还有大量二次设计管线和设备(如医用气体、洁净气体、超纯水制备设备等),建筑机电抗震设计均需充分考虑。
建筑机电抗震设计在内容上除管道抗震支架设计外,还包括室内设备、构筑物、设施的选型、布置与固定等,在时序上则应考虑尽量后置以避免更改和遗漏;同时,相比普通项目还需特别注意不应遗漏室外抗震设计,防止医疗污废水泄露引起土壤等污染。其中火神山医院采取的技术措施为室外给水管网为柔性管道PE热熔结,为防止雨水污染下渗污染土壤,在钢筋混凝土垫层与粗砂砾层之间设置HDPE防渗膜,并在其上下敷设土工布作为保护。
七、污水处理站
本案医院病区、非病区、传染病房、非传染病房污水分别收集。特殊性质污水(指医院检验、分析、治疗过程产生的少量特殊性质污水,主要包括酸性污水、放射性污水等,本项目无含重金属污水、洗印污水以及含氰废水)单独收集,经预处理后与医院污水一并排入污水处理站。污废水的处理需达到《医疗机构水污染物排放标准》GB 18466?2005中预处理标准后,方可排至市政管网。
项目在地块西南侧设置污水处理站,日处理能力350m3/d,并配套设施一个 100m3的事故池,污废水(其中特殊污废水收集预处理后再排入医疗废水处理站)经污水处理站二级处理+二氧化氯消毒工艺处理,排入市政污水管网。主要的特殊污废水处理包括:传染门急诊和病房的污水应设专用化粪池,单独收集预消毒处理;放射性废水设半衰池,单独收集处理;医院专用锅炉排放的污水、中心供应室的消毒凝结水等单独收集设置降温池处理;牙科废水单独收集预消毒处理,分析化验排出的酸碱性、含氯、铬、汞等污废水单独收集经一体化设备预处理。
污水处理站的选址除地势地形外,还综合考虑了尽量设置于医院建筑物当地夏季主导风向的下风向,与病房等建筑物保持一定距离,同时紧邻医院污物通道,交通方便,便于污泥、废渣及医疗废弃物的清运。
医院各种污水处理方式流向与污水处理站设备对应关系详见下表:

◎图9 医院污水处理工艺流程图
参考文献:
[1]《建筑给水排水设计标准》GB50015-2019
[2]《综合医院建筑设计规范》GB51039-2014
[3]叶锡恩,大型、超大型医院给排水设计中出现的几个问题,《科技与企业》2016年第02期:118
来源:给排水视界
0人已收藏
0人已打赏
免费6人已点赞
分享
建筑给排水
返回版块47.29 万条内容 · 1372 人订阅
阅读下一篇
卫生间排水有哪些常见问题?国内住宅大多数卫生间都存在以下问题,最可憎的是:我的马桶位置我不能做主! 一、传统地排水方式的问题在于:1、侵占空间。楼上住户的排水支管侵占了楼下住户的空间,让卫生间变“矮”了。2、噪音干扰。因为大家生活习惯不可能完全同步,所以当你享受安静的时候,却往往遭到楼上住户用水的噪音干扰。3、漏水问题。更为糟糕的是,如果管道漏水,那么到底应该由谁出资维修?造成的装潢损失又应该由谁承担?但无论如何,被迫承受不属于自己的错误,总是不合理的。
回帖成功
经验值 +10
全部回复(5 )
只看楼主 我来说两句-
simuy
沙发
2022-03-19 17:24:19
赞同0
-
好事连连l
板凳
2022-03-15 14:19:15
赞同0
加载更多谢谢楼主分享案例
回复 举报
谢谢分享
回复 举报