无外脚手架PC剪力墙结构施工技术,通过结构设计优化,外墙采用预制外挂板,外立面施工不用专门搭设外脚手架。相较传统脚手架施工工艺,减少脚手架相应成本的投资,通过总承包合理化的管理,能显著降低工程成本,节能环保,经济及社会效益显著,具有良好的工程施工形象。相比一般PC结构,缩短脚手架搭设的施工工期,可达到六、七天一层,大大节约承建单位的管理成本。
无外脚手架PC剪力墙结构施工技术,避免脚手架搭设过程中产生的安全问题,采用预制外挂板与定型化安全围挡的结合,解决了在无脚手架情况下施工作业面的安全问题,解决现场安全施工问题。定型化安全围挡特点:构造简单,用料节省,重量轻,搭拆技术简单,施工速度快。此外,制作、安装、提升等各阶段操作简便,除节省大量的人力、物力外,对加快施工周期,对改善现场的场容管理,也可起积极作用。定型化安全围挡板周转次数多,能显著降低工程安全围挡费用,节能环保,经济及社会效益显著。
适用于采用预制外挂板体系的PC剪力墙结构工程。
通过两项工艺突破传统脚手架施工体系,一为采用预制外挂板解决外墙模板问题,避免了外墙脚手架及外墙模板的搭设;二为预制外挂板与定型化安全围挡的结合,解决了在无脚手架情况下施工作业面的安全问题。

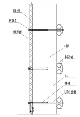
图 1外墙模板支撑纵向剖面图
Fig. 1 Longitudinal profile of formwork support for external wall

图 2安全围挡示意图
Fig. 2 Schematic diagram of safety enclosure
第一阶段:防护围挡拆除及构件吊装。上一层预制外墙板开始吊装时,按吊装顺序依次拆除当前楼层的围挡,吊一拆一,确保吊装过程的安全。
工序1 装配安置A层外墙板前将外防护栏杆随楼层外PCF板吊装顺序跟板拆除。
工序2 将外防护栏杆拆除后,吊装该处PCF外墙板。施工楼层上部设置吊装警示区,在预制构件吊出且防护栏杆未安装时,操作人员均扣好安全带(安全带另一端固定在预埋拉环上),且其它人员不得进入警示区。
工序3 吊装下一块预制外墙板前,该处防护栏杆及槽钢拆除后,方可吊装此处预制板。
工序4 PCF外墙板吊装及安全围挡安装随吊装顺序进行。
第二阶段:构件吊装完成后即进行工具化防护围挡安装;防护围挡安装时,利用活动架,使工人有足够高的操作平台。此阶段楼层内涉及竖向结构的施工,楼层内包括预制剪力墙的吊装,现浇墙柱的钢筋绑扎及模板工程及现浇混凝土浇筑以及上层排架的搭设。
第三阶段:工具化安全围挡安装完成后进行楼层施工作业,现场进行楼板施工作业,叠合板吊装施工及现浇部分的钢筋绑扎及混凝土浇筑养护。
第四阶段:回到第一阶段,开始吊装PCF外墙板,并随吊装拆除安全防护围挡。
安全操作围档操作人员必须充分了解提升阶段的安装顺序、性能和规则,做到心中有数。
提升阶段的固定件、连接管一定要稳固,安装顺序要正确,安装后,必须有专人检查,合格后方可使用,这是安全操作围档安全与否的关键问题。
PC工具化安全防护围挡操作人员在楼层室内进行操作,在操作过程中,非操作人员一律不准参与安装。
一座安全操作围档提升后,另一座安全操作围档端部出现老虎口,此处严禁站人。
提升全过程,操作人员思想要集中,要有统一指挥,专人监护,要按设计要求,佩戴穿心自锁保险带。
安全操作围档要逐次提升,不准交叉作业,每一单元不得随意中断提升,决不允许安全操作围档在不安全状态下过夜。
操作时,如有障碍,应及时查清,并在排除故障后,方可继续进行。
所有设备、材料及劳动力安排,必须符合设计要求,提升前,要有提升令及书面记录。
每座安全操作围档提升后,应立即用连接管将安全操作围档与楼面地锚管扣牢,并且安全操作围档与操作架之间有辅助连接管扣件铐牢,增加安全操作围档整体性,要及时封网、下翻板,安全操作围档之间缝隙,应密而不漏。
遇雨、雪、雾天气、风力≥6级,不得进行工具化安全防护围挡的安装、拆除作业。
安全操作围档安装阶段,在安装区域下方,用红白三角旗设置安全区域,安排专人监护,在安装期间,严禁进入该区域。
主要材料:标准模数安全围挡板、非标模数安全围挡板、槽钢、连接螺栓螺母、垫片、连接件、钢管等。
施工设备 :移动式脚手架、铁锤、撬棍、扳手、扭矩扳手、水准仪等。
PC无脚手施工替代目前脚手架施工,大幅度减少材料的损耗及搭设工作量,提高工作实际施工效率。无脚手施工不仅施工方便更节约了传统施工搭设脚手架产生的钢管租赁费以及人工费。以两个项目工程为例,如搭设脚手架,脚手架预估58111㎡,单价67.49元/㎡,预计节省3921911元。且使用定型化安全围挡构造简单,用料节省,重量轻,搭拆技术简单,施工速度快。此外,制作、安装、提升等各阶段操作简便,除节省大量的人力、物力外,对加快施工周期,对改善现场的场容管理,也可起积极作用。
本技术应用于奉贤区南桥基地大型居住社区12-23A-04A、14-11A-02A地块施工。工程总建筑面积分别为96351.3m2和154277.89m2,12-23A-04A地块主要有7栋18层高层以及地下一层车库组成。14-11A-02A地块由12栋11-21层高层以及地下一层车库组成,其施工质量、工期、实施效果均能达到设计要求。且效果明显,技术先进,有明显的社会经济效益。
提示:也可以点击下方文字了解相关结构课程


0人已收藏
0人已打赏
免费1人已点赞
分享
建筑施工
返回版块66.02 万条内容 · 1639 人订阅
阅读下一篇
卧式二次液压构造泵好用吗-闲置时期做好维护很重要温度较低非常容易导致混凝土骨料开裂,卧式二次液压构造泵的使用也会受到很大影响,所以严寒季节施工的时候一般都是在温度比较高的时候进行,如果特别冷的时候就需要停工了,卧式二次液压构造泵当然也是需要闲置一段时间的。 对于闲置期的卧式二次液压构造泵,一定是注意维护好的,不能直接不管不问扔在室外的,因为日晒雨淋后机器非常容易生锈,而且油管、吸油、回油过滤器以及输送管道特别容易被冻住,输送管也是比较容易爆开的。所以一定要将闲置的
回帖成功
经验值 +10
全部回复(1 )
只看楼主 我来说两句 抢板凳优秀,感谢楼主分享,学习到了。
回复 举报