
本工艺节点管控要点:
1、淋浴顶部花洒底盒要根据花洒形状及设计图纸制作,为保证质量应定制GRG或不锈钢成品;
2、淋浴间、马桶间灯槽高度及与墙面距离应能够保证排风口安装空间及出光效果。

本工艺节点管控要点:
1、淋浴间地面需做防滑处理(如酸洗、水洗、喷砂等),高于水槽完成面10mm;
2、淋浴间挡水门槛下需做防水暗槛,以阻挡“地下河”渗向其他区域;

本工艺节点管控要点:
1、为保证淋浴间泄水顺畅,宜采用不锈钢篦子,且水沟内应设置两个地漏;
2、淋浴间水沟如采用石材盖板,须衬不锈钢篦子,做好防破损加固,并保证泄水效果;
3、淋浴间马桶间隔断下需做防水暗槛,以阻挡“地下河”渗向其他区域。

本工艺节点管控要点:
1、淋浴间皂液凹龛留设尺寸应考虑与墙面石材分缝协调统一
2、当淋浴间皂液凹龛设置层板时,层板与背板间需预留15MM至20MM缝隙,以免层板上存水;
3、淋浴间皂液凹龛底板注意向外放坡,以避免底板上存水。

本工艺节点管控要点:
1、为避免木饰面返潮发霉,卫生间木门套下需制作石材底座;
2、为保证客人进入淋浴间的舒适度,过门石做不小于50MM宽倒边;
3、客房走廊至卫生间过门石下需做防水暗槛,以阻挡“地下河”渗向客房干区。

本工艺节点管控要点:
1、卫生间洗手盆严禁试用云石胶与洗手台进行固定,应安装钢吊架或专用盆卡子,并在洗手盆与洗手台间采用玻璃胶密封。


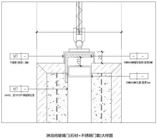
本工艺节点管控要点:
1、淋浴间石材或不锈钢门框内局部衬钢板,以防止门框开裂变形甚至淋浴门掉落。

本工艺节点管控要点:
1、安全抓杆须有效固定在隔墙上,以防止使用过程中脱落。
0人已收藏
0人已打赏
免费0人已点赞
分享
建筑给排水
返回版块47.29 万条内容 · 1372 人订阅
阅读下一篇
水电二次预留预埋如何施工?现场示例!二次预留预埋施工的一般工序为:一次管线清理→墙体开槽作业→线盒的定位安装及固定→线管敷设安装及固定→引线、穿线工作→成品保护工作,对于各工序的施工要点,下面这个施工现场示例分享,以供大家参考交流。
回帖成功
经验值 +10
全部回复(1 )
只看楼主 我来说两句 抢板凳学习一下卫生间的节点做法管控,多谢楼主归纳整理
回复 举报