土木在线论坛 \ 建筑结构 \ 砖混结构 \ 砖混结构加层能否改墙体?(有图)。。。

砖混结构加层能否改墙体?(有图)。。。

发布于:2015-02-10 13:29:10 来自:建筑结构/砖混结构 [复制转发]
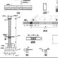
农村房子2层(08年建的)基础是满堂红基础。现在准备加层,再原来的卫生间墙体向南面移动600,让卫生间内空增大,原来1250,改1850。(如图)由于是砖混结构(红砖),墙体都是受力墙,能不能改?可以的话,有什么方案,好的建议?求各位大师帮帮忙!!!

22.png


33.png

全部回复(28 )

只看楼主 我来说两句
  • 高处能胜寒
    上下墙体不对齐,
    1、可以做一根梁,采用轻质隔墙后砌(相当于墙充墙),一定不能和其它抗震墙体同时砌筑,
    2、如果不按上述1做对抗震很不利,属于传力不明确,下面要设一道转换大梁。
    3、农村的房子不审图,不报验,不地震的话,怎么弄都没事。
    2015-02-13 14:27:13

    回复 举报
    赞同0
  • 曾浩宇
    曾浩宇 板凳
    很好,比较有参照意义,希望楼主多上传好资料。
    2015-02-12 18:11:12

    回复 举报
    赞同0
加载更多
这个家伙什么也没有留下。。。

砖混结构

返回版块

10.11 万条内容 · 448 人订阅

猜你喜欢

阅读下一篇

砖混结构加层能否改墙体?(有图)

农村房子2层(08年建的)基础是满堂红基础。现在准备加层,再原来的卫生间墙体向南面移动600,让卫生间内空增大,原来1250,改1850。(如图)由于是砖混结构(红砖),墙体都是受力墙,能不能改?可以的话,有什么方案,好的建议?求各位大师帮帮忙!!!

回帖成功

经验值 +10