土木在线论坛 \ 建筑结构 \ 混凝土结构 \ 某地32层带剪力墙结构综合楼结构施工图

某地32层带剪力墙结构综合楼结构施工图

发布于:2013-09-18 17:39:18 来自:建筑结构/混凝土结构 [复制转发]






图纸简介:

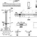
图纸内容:结构设计总说明、钻孔旋挖灌注桩平面布置图、桩帽平面布置图、地下室地梁配筋图、地下室底板配筋图、一至三层墙、柱布置图、板配筋图、楼梯配筋图、节点详图。






  • 曾浩宇
    曾浩宇 沙发
    看起来挺舒服的
    2015-02-21 13:34:21

    回复 举报
    赞同0
这个家伙什么也没有留下。。。

混凝土结构

返回版块

140.17 万条内容 · 2216 人订阅

猜你喜欢

阅读下一篇

某地多层框架结构办公楼结构施工图

图纸简介: 某多层框架结构办公楼施工图。抗震设防7度、钻孔灌注桩基础。有结构设计总说明,地梁配筋平面,柱定位平面,桩定位平面,承台定位平面,桩基设计与施工说明,结构平面,梁平法施工图……等图纸。 投稿网友: gxyzzh1314

回帖成功

经验值 +10