土木在线论坛 \ 建筑结构 \ 混凝土结构 \ 楼板开洞与楼板厚度为0的区别

楼板开洞与楼板厚度为0的区别

发布于:2010-07-17 19:48:17 来自:建筑结构/混凝土结构 [复制转发]
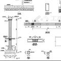
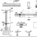
对于板厚不同及板厚为0和板厚开洞的问题,现在有些同行搞的不是很清楚,我的一个总工也没搞明白,为了弄清楚这个问题我专门建了一个模型,验证PKPM中对于板厚设置对其结构刚度的影响。平面图如下,共建了4层:

分别将板厚设置为200厚、100厚,0厚和全房间开洞,其结果如下
板厚200
振型号 周 期 转 角 平动系数 (X+Y) 扭转系数
1 0.2830 92.53 1.00 ( 0.00+1.00 ) 0.00
2 0.2830 2.53 1.00 ( 1.00+0.00 ) 0.00
3 0.2683 90.00 0.00 ( 0.00+0.00 ) 1.00
Floor No. 1 Tower No. 1
RJX = 3.5511E+05(kN/m) RJY = 3.5511E+05(kN/m) RJZ = 0.0000E+00(kN/m)

板厚100
振型号 周 期 转 角 平动系数 (X+Y) 扭转系数
1 0.2830 92.53 1.00 ( 0.00+1.00 ) 0.00
2 0.2830 2.53 1.00 ( 1.00+0.00 ) 0.00
3 0.2683 90.00 0.00 ( 0.00+0.00 ) 1.00

Floor No. 1 Tower No. 1
RJX = 3.5511E+05(kN/m) RJY = 3.5511E+05(kN/m) RJZ = 0.0000E+00(kN/m)

板厚0
振型号 周 期 转 角 平动系数 (X+Y) 扭转系数
1 0.3163 0.43 1.00 ( 1.00+0.00 ) 0.00
2 0.3163 90.43 1.00 ( 0.00+1.00 ) 0.00
3 0.2910 90.00 0.00 ( 0.00+0.00 ) 1.00
Floor No. 1 Tower No. 1

RJX = 3.0205E+05(kN/m) RJY = 3.0205E+05(kN/m) RJZ = 0.0000E+00(kN/m)

全房间开洞

振型号 周 期 转 角 平动系数 (X+Y) 扭转系数
1 0.3163 0.43 1.00 ( 1.00+0.00 ) 0.00
2 0.3163 90.43 1.00 ( 0.00+1.00 ) 0.00
3 0.2910 90.00 0.00 ( 0.00+0.00 ) 1.00
Floor No. 1 Tower No. 1
RJX = 3.0205E+05(kN/m) RJY = 3.0205E+05(kN/m) RJZ = 0.0000E+00(kN/m)

从上面的分析结果可以看出,在强制楼板无限刚的前提下,楼板厚度为100和200,甚至其他任何不为0的数字,其板厚对结构基本周期几乎没有任何影响,主要原因是假定楼板无限刚后,梁及板对结构的刚度贡献相差不大,而楼板板厚为0和全房间开洞后,虽然楼板在其自身平面内无限刚,但是整体刚度由于没有梁板的贡献,而导致整体刚度下降,因而周期变大,而楼板为0和全房间开洞的刚度几乎相同。
从上面分析可以得到以下结论
1、楼板厚度只要不为0,楼板的刚度对整个结构的周期影响不大。
2、即使在假定楼板无限刚的前提下,楼板厚度为0和楼板厚度不为0,其结构的周期并不相同,即整体刚度不相同
3、楼板开洞与板厚设为0的区别主要是楼板开洞厚不能传递竖向荷载,而板厚为0仍可传递竖向荷载,但其对整体结构刚度的贡献基本相同。

申明:内容来自用户上传,著作权归原作者所有,如涉及侵权问题,请点击此处联系,我们将及时处理!

全部回复(46 )

只看楼主 我来说两句
  • 曾浩宇
    曾浩宇 沙发
    楼主辛苦了! 很好的资料!难得学习, 谢谢楼主分享!
    2017-07-24 16:47:24

    回复 举报
    赞同0
  • xy_1026
    xy_1026 板凳


    不错,值得学习
    2017-04-01 11:00:01

    回复 举报
    赞同0
加载更多
这个家伙什么也没有留下。。。

混凝土结构

返回版块

140.17 万条内容 · 2216 人订阅

猜你喜欢

阅读下一篇

关于设计时(混凝土耐久性)的疑问

各位前辈好,小弟是今年的应届毕业生,算上实习,刚参加结构设计工作半年左右。先有疑问如下,请前辈们帮忙解答,谢谢。如题,主要是关于混凝土耐久性要求方面的疑问1、理论上关于混凝土的耐久性要求,《混凝土结构设计规范》(GB50010-2002)《混凝土结构耐久性设计规范》(GB/T50476-2008)这两本规范,应以哪本为准?2、两者在实际设计中,参照使用中的大致差别,特别是如何时该按《混凝土结构耐久性设计规范》(GB/T50476-2008)进行设计?

回帖成功

经验值 +10