本工程为宇宙空间地下室工程,位于地球村以东200m娱乐城内。
拟建地下室长约74.3m,宽约40.7m左右,基坑面积3400㎡,基坑周长在240m左右。

图1 场地现状图
按照本工程地质勘察资料结合场地水文地质条件,在本工程基坑降水期间坑外水位及周边地表进行监测,预期达到以下目的:
1)验证降水方案的可行性,必要时对方案进行调整优化,以保证最佳的降水效果;
2)掌握坑内外地下水联系情况,判断止水帷幕的止水效果,以指导后续的土方开挖;
3)检验降水效果,明确施工期间风险控制要求,为进一步优化下降水方案提供数据支持。
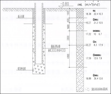
根据勘察报告本工程场地地基土主要由淤泥质粉质粘土、粘性土、粉土、粉细砂组成。按其工程特性从上到下可分为15个工程地质层,其中⑤层和⑦层细分为2个工程地质亚层,各土层分布厚度及结构特征详见下表1:
表1 岩土层分布特征
土层 编号 |
|
|
|
|
|
|
|
|
|
|
|
|
|
|
|
|
|
|
|
|
|
|
|
|
|
|
|
|
|
|
|
|
|
|
|
|
|
|
|
|
|
|
|
|
|
|
|
|
|
|
|
|
|
|
|
|
|
|
|
|
|
|
|
|
|
|
|
|
|
|
|
|
|
|
|
|
|
|
|
|
|
|
|
|
|
|
|
|
|
|
|
|
|
|
|
|
|
|
|
|
|
|
|
|
|
|
|
|
|
|
|
|
|
|
|
|
|
|
|
|
|
|
|
|
|
|
|
|
|
|
|
|
|
|
|
|
|
|
|
|
|
|
1)潜水
潜水主要赋存于浅部填土层中,富水性差;受大气降水及周边河流的侧向补给,以地面蒸发为主要排泄方式;受季节影响水位升降明显。勘察期间测得的初见水位埋深1.00~2.20m,标高0.46~0.75m,稳定埋深水位0.50~1.80m,标高0.96~1.09m。
2)微承压水
场地浅层微承压水,主要赋存于第④层粉土夹粉质粘土、第⑦-1层粉土和第⑦-2层粉砂夹粉土中,富水性及透水性较好,主要补给来源为浅部地下水的垂直入渗及地下水的侧向径流,以民井抽取及地下水侧向径流为主要排泄方式。勘察时测得稳定水位标高0.39~0.48m。
本工程采用疏干降水井,管井平面布置如下:

图2 疏干降水井大样图
降水井成井施工流程如下:
1)测量放线定位
根据降水管井平面布置图测放井位,井位测放完毕后应做好井位标记,方便后面施工。如果布设的井点存在地面障碍物,应当设法清除障碍物,以利于打井的进行。若地面障碍物不易清除或受其他施工条件的影响,无法在原布设井位进行打井时,对井位作适当调整。
2)挖泥浆池
根据场地条件在距降水井3m左右处挖泥浆池,一般每2?3 口井共用一个泥浆池。泥浆池规格为2m*2m*l. 5m。
3)钻孔
钻机按井点位置就位,机台应安装稳固水平,大钩对准孔中心,大钩、转盘与孔中心三点成一线。釆用回转钻机正循环钻进成孔,成孔垂直偏差控 制在1%以内,成孔深度应比设计深度深0.5m以上。钻进釆用原土造浆护壁, 泥浆沉淀净化后再循环利用,泥浆密度控制在1.1~1.2,含砂率不大于 1%;为确保降水效果,减小洗井难度,井身应保持圆正垂直。
4)清孔换浆
钻孔钻进至设计标高后,在提钻前将钻杆提至离孔底0.5m,进行冲孔清 除孔内杂物,同时将孔内的泥浆密度逐步调至1.10,孔底沉淤小于30cm, 返出的泥浆内不含泥块为止。
5)下设井管
本工程釆用φ300玻纹管,下管前必须测量孔深,孔深符合设计要求后, 开始下井管;在预制混凝土管鞋上放置井管同时水位以下包缠1层80目尼龙网,缓缓下放,当管口与井口相差200mm时,接上节井管,接头处用多层 尼龙网裹严,竖向用3~4条30mm宽、长2?3m的竹条用3道铅丝固定井管。为防止上下节错位,在下管前将井管依井方向立直。吊放并管要垂直,并保 持在井孔中心,下到设计深度后,井口固定居中;为防止雨污水、泥砂或异物落入井中,井管要高出地面不小于200mm,并加盖或捆绑防水雨布临时保护。
6)填砾料和粘性土
井管入井内后,及时在井管与孔壁间填充粒径为3~8mm细砾石滤料(滤料为干净的绿豆砂,滤料必须符合级配要求,将设计砂砾规格上、下限以外的颗粒筛除,合格率要大于90%,杂质含量不大于3%,)。砾料应保持连续沿井管外四周均匀填入。填砾料时,应随填随测砾料填入高度,当填入量与理论计算量不一致时,及时查找原因。不得用装载机或手推车直接填料,应用铁锹填料,以防不均匀或冲击井壁,如遇蓬堵可用水冲;填滤料要一次连续 完成。填砾完成后在洗井过程中,如砾料下沉量过大,应补填至井口下1米 处,1米以上部分在洗井完成后衬砌人井时处理或釆用不含砂石的粘土封层。
7)回填并夯压封口。
各井在砾料的围填面以上均围填粘性土,围填时,应将块状的粘土碾碎 后填入,下入深度不宜太快,直至地表。
8)洗井
釆用压力为0. 7Mpa,排气量为10m3/min空压机及潜水泵联合由上而下 分段洗井,重点在上段潜水层的中、下部,直至上下含水层串通(形成混合 水位)且水清砂净,直至抽出清水为止。洗井装备要用同心式或并列式的钢 管洗井,禁止使用软管洗井。洗井在下完井管,填好滤料,封口后8小时内 进行,一气呵成避免时间过长,护壁泥皮逐渐老化,难以破坏,影响渗水效 果。洗井过程中应观测水位及出水量变化情况。

图3 空压机洗井施工图
9)安装水泵、深水泵及管路
安装前须检查电机和泵体,确认完好无误后方可安装,潜水泵及泵管安装吊放,置于距井底以上1.0?1.5m处。施工过程中必须保证各连接部位密封可靠不漏气。安装好后方可接通电源,做到单井单控电路,并检查水位继电制动抽水装置和漏电保护系统。
管路在基坑边缘汇入总管(或排水沟),再汇入沉淀池,特别是抽水第一天,水质可能混浊带泥砂,应待沉淀一段时间后,将水排入基坑周边的市政 下水道(清水)。为提高中上部土体的降水效果,在透水层范围内全程设置滤水管。为方便挖土施工,安装水管可釆用塑胶管,方便拆卸和移位。
水位管选用直径50mm的PVC管,管底加盖密封,防止泥砂进入管中。下部留出0.5~1m的沉淀段(不打孔),用来沉积滤水段带入的少量泥砂。中部管壁周围钻出6~8列直径为6mm左右的滤水孔,纵向孔距50~100mm。相邻两列的孔交错排列,呈梅花状布置。过滤管壁外部包扎过滤层,过滤层可选用土工织物或网纱。上部管口段不打孔,以保证封口质量。
水位孔利用地质钻机成孔,孔深大于基坑开挖深度。成孔至设计标高后,放入裹有滤网的水位管,管壁与孔壁之间用净砂回填过滤头,再用粘土进行封填,以防地表水流入。水位孔埋设后应注意施工期间的保护,必要时加工对硬化地表下,并加盖保护,日常监测后应及时盖好顶盖,防止地表水的进入。
图4 坑外地下水位监测点布设示意图
基坑周围地表每隔20m左右布设一个沉降监测点。
监测点布设时穿透路面结构硬壳层,沉降标杆采用Φ20mm螺纹钢标杆,螺纹钢标杆深入原状土60cm以上,沉降标杆外侧采用金属套管保护。保护套管内的螺纹钢标杆间隙用黄砂回填。金属套管顶部设置管盖,管盖安装稳固,与原地面齐平;为确保测量精度,螺纹钢标杆顶部在管盖下20cm。地表监测点埋设结构如下图所示:

图5 地表沉降监测点布设示意图
地下水位监测可采用钢尺水位计,钢尺水位计的工作原理是在已埋设好的水管中缓慢向下放入水位计测头,当测头接触到水面时,启动讯响器,此时读取测量钢尺在管顶位置的读数,每次读取管顶读数对应的管顶位置应一致,并固定读数人员。在基坑开挖前测得各水位孔孔口标高及各孔水位深度,孔口标高减水位深度即得水位标高,初始水位为连续三次测试的平均值。根据管顶高程、管顶与地面的高差,即可计算地下水位的高程和埋深。
作业前需对起算点(工作基点)进行校核,无误后方可继续。
(1)使用Dini03精密水准仪及配套标尺进行监测。
(2)监测点沉降观测可采用单程观测(基准点复核需采用往返观测)。
(3)水准观测应在标尺分划线成像清晰而稳定时进行。
(4)设置测站
①观测时应在水准路线上标定尺、站位置,以保持每期观测的一致性。
②测站视线长度(仪器至标尺距离),前后视距差,视线高度按下表规定执行。
③2次读数所测高差的差≤0.7mm。
表2 视线高度表单位:m
等级 |
仪器 |
视线长度 |
前后视距差 |
任一测站上前后视距累积差 |
视线高度 |
每次重复读数 |
二级 |
Dini3 |
≤50 |
≤1.5m |
≤3.0 |
≥0.5 |
≥2 |
(5)测站观测方法
观测采用闭合水准路线时可以只观测单程,采用附合水准路线形式必须进行往返观测,取两次观测高差中数进行平差。选用BFFB测量模式。
观测注意事项如下:
①对使用的电子水准仪、条码水准尺应在项目开始前和结束后进行检验,项目进行中也应定期进行检验。当观测成果异常,经分析与仪器有关时,应及时对仪器进行检验与校正;
②观测应做到三固定,即固定人员、固定仪器、固定测站;
③观测前应正确设定记录文件的存贮位置、方式,对电子水准仪的各项控制限差参数进行检查设定,确保附合观测要求;
④应在标尺分划线成像稳定的条件下进行观测;
⑤仪器温度与外界温度一致时才能开始观测;
⑥数字水准仪应避免望远镜直对太阳,避免视线被遮挡,仪器应在生产厂家规定的范围内工作,震动源造成的震动消失后,才能启动测量键,当地面震动较大时,应随时增加重复测量次数;
⑦每测段往测和返测的测站数均应为偶数,否则应加入标尺零点差改正;
⑧由往测转向返测时,两标尺应互换位置,并应重新整置仪器;
⑨完成闭合或附合路线时,应注意电子记录的闭合或附合差情况,确认合格后方可完成测量工作,否则应查找原因直至返工重测合格。
表3 往返测高差不符值、环闭合差控制表单位:mm
等级 |
往返测高差不符值 |
环闭合差 |
L为公里数,n为测站数。 |
二等 |
±4或± |
±4或± |
表4 外业计算取位表
等级 |
往返测距离总和.km |
测段距离 中数.km |
各测站 高差.mm |
往返测高差 总和.mm |
测段高差 中数.mm |
水准点 高程.mm |
二等 |
0.01 |
0.1 |
0.01 |
0.01 |
0.1 |
0.1 |
(6)数据处理
沉降监测数据处理时将监测基点设为标准水准点(高程H已知),监测时通过测得各测点与水准点(基点)的高程差H(i),可得到各监测点的标准高程ht(i),然后与上次测得高程进行比较,差值Δh即为该测点的沉降值。
抽水开始后即对坑内外水位,坑外地表沉降进行观测,基坑降水期间监测频率不低于1次/d,当监测数据超过预警值应立即停止抽水,并采取相应处置措施。
表5 监测控制值
序号 |
监测项目 |
预警值 |
|
速率(mm/d) |
累计值(mm) |
||
1 |
坑外地下水位 |
±500 |
±1000 |
2 |
坑外地表沉降 |
±3 |
±40 |
表6 主要仪器设备
序号 |
仪器、设备名称 |
规格型号 |
数量 |
产地品牌 |
备注 |
1 |
电子水准仪 |
Dini03 |
1 |
美国天宝 |
|
2 |
条码铟钢水准尺 |
2m |
2 |
美国天宝 |
|
3 |
钢尺水位计 |
30m |
1 |
中国 |
坑外地下水位监测孔及地表沉降监测点在2022年3月15日布设完成。坑内降水井在3月23日全部布设完成,本工程从2022年3月24日开始正式抽水,至4月18日各项监测数据如下:
选基坑中部一口降水井作为坑内水位观测孔,观测结果见表7、s~t过程曲线见下图6。
表7 坑内水位观测结果表
井号 |
用途 |
初始水位埋深(m) |
目前水位埋深(m) |
水位降深(m) |
出水量(m3/d) |
G1 |
抽水井 |
1.65 |
9.3 |
7.65 |
233.928 |

图6 坑内水位s~t过程曲线图
目前坑内水位埋深在9.3m(绝对标高),大于最大挖深7.950m,说明坑内水位已降低至开挖面以下1m。
坑外地下水位观测结果见表8、s~t过程曲线见下图7。
表8 坑外水位观测结果表
井号 |
用途 |
初始水位埋深(m) |
目前水位埋深(m) |
水位降深(m) |
备注 |
SW01 |
观测井 |
1.59 |
1.83 |
0.24 |
|
SW02 |
观测井 |
1.62 |
1.88 |
0.26 |
|
SW03 |
观测井 |
1.49 |
1.72 |
0.23 |
|
SW04 |
观测井 |
1.60 |
1.83 |
0.23 |

图7 坑外水位s~t过程曲线图
从以上图表可以看出,坑外地下水位仅在降水有一定的变化,但累计变化量远小于预警值1m,随后便在0.1~0.2m波动,说明基坑降水对坑外地下水位影响很小,基坑的止水效果较好。
坑外地表沉降观测结果见表9、s~t过程曲线见下图8。
表9 坑外地表观测结果表
点号 |
用途 |
初始高程(m) |
目前高程(高m) |
累计沉降量(mm) |
备注 |
D01 |
沉降观测 |
9.63563 |
9.63235 |
3.28 |
|
D02 |
沉降观测 |
9.57929 |
9.57644 |
2.85 |
|
D03 |
沉降观测 |
9.61308 |
9.61010 |
2.98 |
|
D04 |
沉降观测 |
9.53648 |
9.53247 |
4.01 |

图8 坑外地表沉降s~t过程曲线图
从以上图表可以看出,随着坑内不断降水,坑内压力减小,在降水一周后对坑外地表产生一定沉降,后又有一定恢复,便逐渐趋于稳定,累计沉降量远小于预警值40mm,说明基坑降水对坑外地表影响不大。
基坑降水期间的的监测严格按设计方案和有关技术规范要求实施,达到了预期的目的。通过对监测数据的整理与分析,得到如下的结论:
1)从坑内水位观测数据看目前基坑坑内水位已降至开挖面1m以下,基坑满足开挖条件。
2)从坑外地下水位及地表沉降观测数据可以看出基坑降水期间未对周边环境产生实质性影响,说明基坑的止水效果较好,基坑现状安全稳定。
建议适当控制和减小降水量,防止降水超深较大,基坑开挖期间要注意保护好降水井及观测井,现场实行2 4小时值班,保障现场供电不断。降水工作坚持“按需降水”的原则,确保坑内水位始终控制在开挖面1m以下。
0人已收藏
0人已打赏
免费3人已点赞
分享
给排水资料库
返回版块22.45 万条内容 · 564 人订阅
回帖成功
经验值 +10
全部回复(2 )
只看楼主 我来说两句抢地板谢谢楼主分享,多谢!
回复 举报
多多分享
回复 举报