一、钢直梯GB4053.1-2009

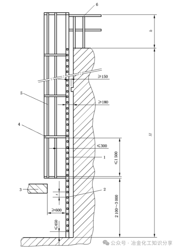
1--梯梁;2--踏棍;3--非连续障碍;4--护笼龙箍;5--护笼立杆;
6--栏杆;H--梯段高;h--栏杆高;s--踏棍间距;
H≤15000;h≥1050;s=225~300。
(一)一般要求
1 材料
1.1 钢直梯采用钢材的力学性能应不低于Q235-B,并具有碳含量合格保证。
1.2 支撑宜采用角钢、钢板或钢板焊接成T型钢制作,埋没或焊接时必须牢固可靠。
2 钢直梯倾角
钢直梯应与其固定的结构表面平行并尽可能垂直水平面设置。当受条件限制不能垂直水平面时两梯梁中心线所在平面与水平面倾角应在75°~90°范围内。
3 制造安装
3.1 安装在固定结构上的钢直梯,应下部固定,其上部的支撑与固定结构牢固连接,在梯梁上开设长圆孔,采用螺栓连接。
3.2 固定在设备上的钢直梯当温差较大时,相邻支撑中应一对支撑完全固定,另一对支撑在梯梁上开设长圆孔,采用螺栓连接。
4 接地
在室外安装的钢直梯和连接部分的雷电保护,连接和接地附件应符合GB50057的要求。
(二)结构要求
1 支撑间距
1.1 无基础的钢直梯,至少焊两对支撑,将梯梁固定在结构、建筑物或设备上。相邻两对支撑的竖向间距,应根据梯梁截面尺寸、梯子内侧净宽度及其在钢结构或混凝土结构的拉拔载荷特性确定。
1.2 当梯梁采用60mmX10mm的扁钢,梯子内侧净宽度为400mm时,相邻两对支撑的竖向间距应不大于 3 000 mm。
2 梯子周围空间
2.1 对未设护笼的梯子,由踏棍中心线到攀登面最近的连续性表面的垂直距离应不小于760mm对于非连续性障碍物,垂直距离应不小于600mm。
2.2由踏棍中心线到梯子后侧建筑物、结构或设备的连续性表面垂直距离应不小于180mm。对非连续性障碍物,垂直距离应不小于150mm。
2.3 对未设护笼的梯子,梯子中心线到侧面最近的永久性物体的距离均应不小于380mm。
2.4 对前向进出式梯子,顶端踏棍上表面应与到达平台或屋面平齐,由踏棍中心线到前面最近的结构、建筑物或设备边缘的距离应为180mm~300mm,必要时应提供引导平台使通过距离减少至180 mm~300 mm。
2.5 侧向进出式梯子中心线至平台或屋面距离应为380mm~500mm。梯梁外侧与平台或屋面之间距离应为180mm~300mm。
3 梯段高度及保护要求
3.1 单段梯高宜不大于 10m,攀登高度大于10m时宜采用多段梯,梯段水平交错布置,并设梯间平台,平台的垂直间距宜为6m。单段梯及多段梯的梯高均应不大于15m。
3.2 梯段高度大于3m时宜设置安全护笼。单梯段高度大于7m时,应设置安全护笼。当攀登高度小于7m,但梯子顶部在地面、地板或屋顶之上高度大于7m时,也应设置安全护笼。
3.3 当护笼用于多段梯时,每个梯段应与相邻的梯段水平交错并有足够的间距,设有适当空间的安全进、出引导平台,以保护使用者的安全。
4 内侧净宽度
4.1 梯梁间踏棍供踩踏表面的内侧净宽度应为400mm~600mm,在同一攀登高度上该宽度应相同。由于工作面所限,登高度在5m以下时,梯子内侧净宽度可小于400mm,但应不小于300mm。

5 踏棍
5.1 梯子的整个攀登高度上所有的踏棍垂直间距应相等,相邻踏棍垂直间距应为225mm~300mm,梯子下端的第一级踏棍距基准面距离应不大于450mm。
5.2 圆形踏棍直径应不小于 20mm,若采用其他截面形状的踏棍,其水平方向深度应不小于20mm。踏棍截面直径或外接圆直径应不大于35mm,以便于抓握。在同一攀登高度上踏棍的截面形状及尺寸应一致。
5.3 在正常环境下使用的梯子,踏棍应采用直径不小于20mm的圆钢,或等效力学性能的正方形长方形或其他形状的实心或空心型材。
5.5.4 在非正常环境(如潮湿或腐蚀)下使用的梯子,踏棍应采用直径不小于25mm的圆钢,或等效力学性能的正方形、长方形或其他形状的实心或空心型材。
5.5 踏棍应相互平行且水平设置。
5.6在因环境条件有可预见的打滑风险时,应对踏棍采取附加的防滑措施。
6 梯梁
6.1 梯梁的表面形状应使其在整个攀登高度上能为使用者提供一致的平滑手握表面,不应采用不便于手握紧的不规则形状截面(如大角钢、工字钢梁等)的梯梁。在同一攀登高度上梯梁应保持相同形状。
6.2 在正常环境下使用的梯子,梯梁应采用不小于60mmX10mm的扁钢,或具有等效强度的其他实心或空心型钢材。
6.3 在非正常环境(如潮湿或腐蚀)下使用的梯子,梯梁应采用不小于60mmX12mm的扁钢,或具有等效强度的其他实心或空心型钢材。
6.4 在整个梯子的同一攀登长度上梯梁截面尺寸应保持一致。容许长细比不宜大于200。
6.5 梯梁所有接头应设计成保证梯梁整个结构的连续性。除非所用材料型号有要求,不应在中间支撑处出现接头。
6.6如果要对梯梁因温度变化引起膨胀产生弯曲或应力增大采取针对性技术措施,则应在接头处采取上述措施。
6.7 前向或侧向进出式梯子的梯梁应延长至梯子顶部进、出平面或平台顶面之上高度不小于GB4053.3中规定的栏杆高度。
6.8 前向进出式梯子的顶部踏棍不应省略。梯梁延长段宜为喇叭型扩大,以使梯梁顶部内侧水平间距不小于600mm,不大于760mm。
6.9 对侧向进出式梯子,梯梁和踏棍在延长段应为连续的
7 护笼
7.1 护笼宜采用圆形结构,应包括一组水平笼箍和至少5根立杆。其他等效结构也可采用。
7.2 水平笼箍采用不小于50mmX6mm的扁钢,立杆采用不小于40mmX5 mm的扁钢。水平笼箍应固定到梯梁上,立杆应在水平笼箍内侧并间距相等,与其牢固连接。
7.3护笼应能支撑梯子预定的活载荷和恒载荷。
7.4 护笼内侧深度由踏棍中心线起应不小于650mm,不大于800mm,圆形护笼的直径应为650mm~800mm,其他形式的护笼内侧宽度应不小于650mm,不大于800mm。护笼内侧应无任何突出物。
7.5 水平笼垂直间距应不大于1500mm。立杆间距应不大于300mm,均匀分布。护笼各构件形成的最大空隙应不大于0.4m。
7.6 护笼底部距梯段下端基准面应不小于2100mm,不大于3000mm。护笼的底部宜呈喇叭形。此时其底部水平笼箍和上一级笼箍间在圆周上的距离不小于100mm。
7.7 护笼顶部在平台或梯子顶部进,出平面之上的高度应不小于GB4053.3中规定的栏杆高度,并有进、出平台的措施或进出口。
7.8 未能固定到梯梁上的平台以上或进,出口以上的护笼部件应固定到护栏上或直接固定到结构建筑物或设备上。

二、钢斜梯GB4053.2-2009

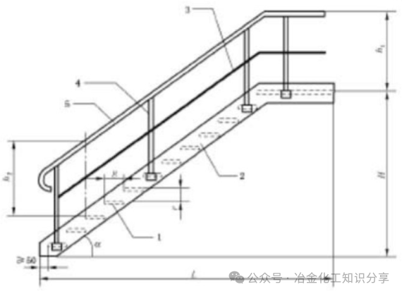
1--踏板;2--梯梁;3--中间栏杆;4--立柱;5--扶手;H--梯高;
L--梯跨;h1--栏杆高;h2--扶手高;a--梯子倾角;r--踏步高;
g--踏步宽。
(一)一般要求
1 材料
钢斜梯采用钢材的力学性能应不低于Q235-B,并具有碳含量合格保证。
2 钢斜梯倾角
2.1 固定式钢斜梯与水平面的倾角应在30°~75°范围内,优选倾角为30°~35°。偶尔性进入的最大倾角宜为42°。经常性双向通行的最大倾角宜为38°。
2.2在同一梯内,踏步高与踏步宽的组合应保持一致。踏步高与踏步宽的组合应符合式(1)的要求:
550≤g+2r≤700 (1)
式中:g--踏步宽,单位为毫米; r--踏步高,单位为毫米。
2.3 常用的钢斜梯倾角与对应的踏步高r、踏步宽#组合(g+2r=600)示例见表1,其他倾角可按线性插值法确定。
2.4 常用钢斜梯倾角和高跨比(H:L)示例见表2。

3 制造安装
3.1 钢斜梯与附在设备上的平台梁相连接时,连接处宜采用开长圆孔的螺栓连接。
4 接地
4.1 在室外安装的钢斜梯和连接部分的防雷电保护,连接和接地附件应符合GB50057的要求。
(二)结构要求
1 梯高
1.1 梯高宜不大于5m,大于5m时宜设梯间平台(休息平台),分段设梯。
1.2单梯段的梯高应不大于6m,梯级数宜不大于16。
2 内侧净宽度
2.1 斜梯内侧净宽度单向通行的净宽度宜为600mm,经常性单向通行及偶尔双向通行净宽度宜为800mm,经常性双向通行净宽度宜为1000mm。
2.2 斜梯内侧净宽度应不小于450mm,宜不大于1100 mm。
3 踏板
3.1 踏板的前后深度应不小于80mm,相邻两踏板的前后方向重叠应不小于10mm,不大于35mm。
3.2 在同一梯段所有踏板间距应相同。踏板间距宜为225mm~255mm。
3.3 顶部踏板的上表面应与平台平面一致,踏板与平台间应无空隙。
3.4 踏板应采用防滑材料或至少有不小于25mm宽的防滑突缘。应采用厚度不小于4mm的花纹钢板,或经防滑处理的普通钢板,或采用由25mmX4mm扁钢和小角钢组焊成的格板或其他等效的结构。
4 梯梁
梯梁应有足够的刚度以使结构横向挠曲变形最小,并由底部踏板的突缘向前突出不小于50mm(见图1)。
5 梯子通行空间
5.1 在斜梯使用者上方,由踏板突缘前端到上方障碍物沿梯梁中心线垂直方向测量距离应不小于1200mm。
5.2 在斜梯使用者上方,由踏板突缘前端到上方障碍物的垂直距离应不小于2000mm。
6 扶手
6.1 梯宽不大于1100mm两侧封闭的斜梯,应至少一侧有扶手,宜设在下梯方向的右侧。
6.2 梯宽不大于1100mm一侧敞开的斜梯,应至少在敞开一侧装有梯子扶手。
6.3 梯宽不大于1100mm两边敞开的斜梯,应在两侧均安装梯子扶手。
6.4 梯宽大于1100mm但不大于2200mm的斜梯,无论是否封闭,均应在两侧安装扶手。
6.5 梯宽大于2200mm的斜梯,除在两侧安装扶手外,在梯子宽度的中线处应设置中间栏杆。
6.6 梯子扶手中心线应与梯子的倾角线平行。梯子封闭边扶手的高度由踏板突缘上表面到扶手的上表面垂直测量应不小于860mm,不大于960 mm。
6.7 斜梯敞开边的扶手高度应不低于GB4053.3中规定的栏杆高度。
6.8 扶手应沿着其整个长度方向上连续可抓握。在扶手外表面与周围其它物体间的距离应不小于60 mm。
6.9 扶手宜为外径30mm~50mm,壁厚不小于2.5mm的圆形管材。对于非圆形截面的扶手,其周长应为100mm~160mm。非圆形截面外接圆直径应不大于57mm,所有边缘应为圆弧形,圆角半径不小于3 mm。
6.10 支撑扶手的立柱宜采用截面不小于40mmX40 mmX4mm角钢或外径为30mm~50mm的管材。从第一级踏板开始设置,间距不宜大于1000mm。中间栏杆采用直径不小于16mm圆钢或30mmX4mm扁钢,固定在立柱中部。
三、工业防护栏杆及钢平台GB4053.3-2009

1--扶手(顶部栏杆);2--中间栏杆;3--立柱;4--踢脚板;
H--栏杆高度。
(一)一般要求
1 防护要求
1.1 距下方相邻地板或地面1.2m及以上的平台、通道或工作面的所有敞开边缘应设置防护栏杆。
1.2 在平台、通道或工作面上可能使用工具、机器部件或物品场合,应在所有敞开边缘设置带踢脚板的防护栏杆。
1.3 在酸洗或电镀、脱脂等危险设备上方或附近的平台、通道或工作面的敞开边缘,均应设置带踢脚板的防护栏杆。
1.4 当平台设有满足踢脚板功能及强度要求的其他结构边沿时,防护栏杆可不设踢脚板。
2 材料
防护栏杆及钢平台采用钢材的力学性能应不低于Q235-B,并具有碳含量合格保证。
(二)防护栏杆结构要求
1 结构形式
1.1 防护栏杆应采用包括扶手(顶部栏杆)、中间栏杆和立柱的结构形式或采用其他等效的结构。
1.2 防护栏杆各构件的布置应确保中间栏杆(横杆)与上下构件间形成的空隙间距不大于500mm。构件设置方式应阻止攀爬。
2 栏杆高度
2.1 当平台、通道及作业场所距基准面高度小于2m时,防护栏杆高度应不低于900mm。
2.2在距基准面高度大于等于2m并小于20m的平台、通道及作业场所的防护栏杆高度应不低于1050mm。
2.3 在距基准面高度不小于20m的平台、通道及作业场所的防护栏杆高度应不低于1200mm。
3 扶手
3.1 扶手的设计应允许手能连续滑动。扶手末端应以曲折端结束,可转向支撑墙,或转向中间栏杆,或转向立柱,或布置成避免扶手末端突出结构。
3.2 扶手宜采用钢管,外径应不小于30mm,不大于50mm。采用非圆形截面的扶手,截面外接圆直径应不大于57mm,圆角半径不小于3mm。
3.3 扶手后应有不小于75 mm的净空间,以便于手握。
4 中间栏杆
4.1 在扶手和踢脚板之间,应至少设置一道中间栏杆。
4.2 中间栏杆宜采用不小于25mmX4mm扁钢或直径16mm的圆钢。中间栏杆与上、下方构件的空隙间距应不大于500mm。
5 立柱
5.1 防护栏杆端部应设置立柱或确保与建筑物或其他固定结构牢固连接,立柱间距应不大于1000mm。
5.2 立柱不应在踢脚板上安装,除非踢脚板为承载的构件。
5.3 立柱宜采用不小于50mmX50mmX4mm角钢或外径30mm~50mm 钢管。
6 踢脚板
6.1 踢脚板顶部在平台地面之上高度应不小于100mm,其底部距地面应不大于10mm。踢脚板宜采用不小于100mmx2mm的钢板制造。
6.2 在室内的平台、通道或地面,如果没有排水或排除有害液体要求,踢脚板下端可不留空隙。
(三)钢平台结构要求
1 平台尺寸
1.1 工作平台的尺寸应根据预定的使用要求及功能确定,但应不小于通行平台和梯间平台(休息平台)的最小尺寸。
1.2 通行平台的无障碍宽度应不小于750mm,单人偶尔通行的平台宽度可适当减小,但应不小于450mm。
1.3 梯间平台(休息平台)的宽度应不小于梯子的宽度,且对直梯应不小于700mm,斜梯应不小于 760mm,两者取较大值。梯间平台(休息平台)在行进方向的长度应不小于梯子的宽度,且对直梯应不小于700mm,斜梯应不小于850mm,两者取较大值。
2 上方空间
2.1 平台地面到上方障碍物的垂直距离应不小于2000mm。
2.2 对于仅限单人偶尔使用的平台,上方障碍物的垂直距离可适当减少,但应不小于1900mm。
3 支撑结构
平台应安装在牢固可靠的支撑结构上,并与其刚性连接;梯间平台(休息平台)不应悬挂在梯段上。
4 平台地板
4.1 平台地板宜采用不小于4mm厚的花纹钢板或经防滑处理的钢板铺装,相邻钢板不应搭接。相邻钢板上表面的高度差应不大于4mm。
4.2 工作平台和梯间平台(休息平台)的地板应水平设置。通行平台地板与水平面的倾角应不大于10°,倾斜的地板应采取防滑措施。
0人已收藏
0人已打赏
免费2人已点赞
分享
茶余饭后
返回版块6248 条内容 · 74 人订阅
阅读下一篇
钢木楼梯 直形梯施工技术在现代家居装修与商业空间设计中,钢木楼梯作为一种兼具美观与实用性的选择,越来越受到人们的青睐。直形梯作为钢木楼梯中最常见的一种形式,其简洁明快的线条不仅能够提升空间的整体感,还能在视觉上创造出流畅与开阔的效果。本文将深入探讨钢木楼梯直形梯的施工技术,从材料准备、设计规划、安装步骤到后期维护,全方位解析其施工要点。### 一、材料准备#### 1.1 钢材选择钢木楼梯的骨架主要由钢材构成,选择优质的钢材是确保楼梯稳固耐用的关键。一般采用
回帖成功
经验值 +10
全部回复(3 )
只看楼主 我来说两句-
yj蓝天
沙发
2024-12-01 07:48:01
赞同0
-
wx_1676427117774
板凳
2024-11-30 18:07:30
赞同0
加载更多资料很实用,点赞收藏啦,谢谢楼主分享
回复 举报
多多分享
回复 举报