土木在线论坛 \ 建筑设计 \ 建筑方案设计 \ 都市邻里慢生活 ——许商综合片区(八期)棚改旧改建设项目

都市邻里慢生活 ——许商综合片区(八期)棚改旧改建设项目

发布于:2024-09-24 11:45:24 来自:建筑设计/建筑方案设计 [复制转发]

“城乡融合”是济南市商河县新形势下立足新发展阶段,进一步明晰老城区、南部新城区、西部新城区、城区产业园、高铁站片区“五位一体”总体布局的重大战略。2020年以来,商河县启动了史上规模最大的棚改旧改项目,从棚户到楼房、从“忧居”到“宜居”,千万棚户区家庭安居乐业的梦想照进现实。



图片

▲项目效果图


项目概况


许商综合片区(八期)棚改旧改建设项目作为济南市 2023年省级棚户区改造计划项目之一,是商河县一项重要的民生工程,项目占地约 117.2 亩,总建筑面积约 17.9万平方米,总安置户数约914户,建成后将充分改善老城区“脏乱差”的现象,村民可就近工作、生活、学习,绿色交通占比不低于90%,切实提升居民幸福指数,真正实现城市让生活更美好。


设计理念


项目从契合当地人文审美出发,紧扣客群生活需求,探求差异设计和适度提升,打造“360°公园式全龄生活体验环”。建设内容主要为高层住宅建筑,规划住宅围合形成多个组团院落,通过层数的变化,形成灵动有序,错落有致的城市空间形态,塑造层次丰富的城市天际线。在组团院落之间,结合“蓝绿引领”设计理念,形成“毛细生态绿廊”,把开放空间、慢行系统融合其中,做到人与自然的和谐统一。


图片

▲实景鸟瞰图


规划布局


一环两轴,打造都市邻里慢生活,最大限度引入景观资源。轴线南北借鉴古典建筑群空间序列,双重院落组织起严谨对称的建筑空间环境;东西采用景观渗透的手法,将东侧的商中河景观引入小区作为渗透城市的生态景观带。内部设置一条人行漫步道作为小区邻里交流的“环”,通过对景与借景等方法,形成步移景异的景观效果。环境小品和绿化景观精细化设计,最大限度提升舒适度,充分考虑残疾人和老年人对道路及设施的使用要求,满足无障碍设计要求。


图片

▲一环(漫步环)

图片

▲两轴(景观轴、空间轴)


图片

▲水景引入


设计特点


● 立面设计

项目色彩以商河县整体色彩规划与研究为前提,主墙面以暖色调为主,局部点缀中性色调,充分展现了济南市及商河县对城市色彩的控制要求。

图片

▲项目立面效果图


建筑立面采用新古典主义设计风格,造型结构运用三段式的严谨构图,建筑姿态端庄、优美,形体虚实结合、高低错落,层次分明,大气稳重而又不失典雅之势。沿街配套建筑与住宅建筑主体风格相呼应,强调建筑的标志性与协调性;局部采用玻璃与钢材为建筑增添现代感,形成古典与现代有机结合的都市感立面。


图片

▲项目立面效果图


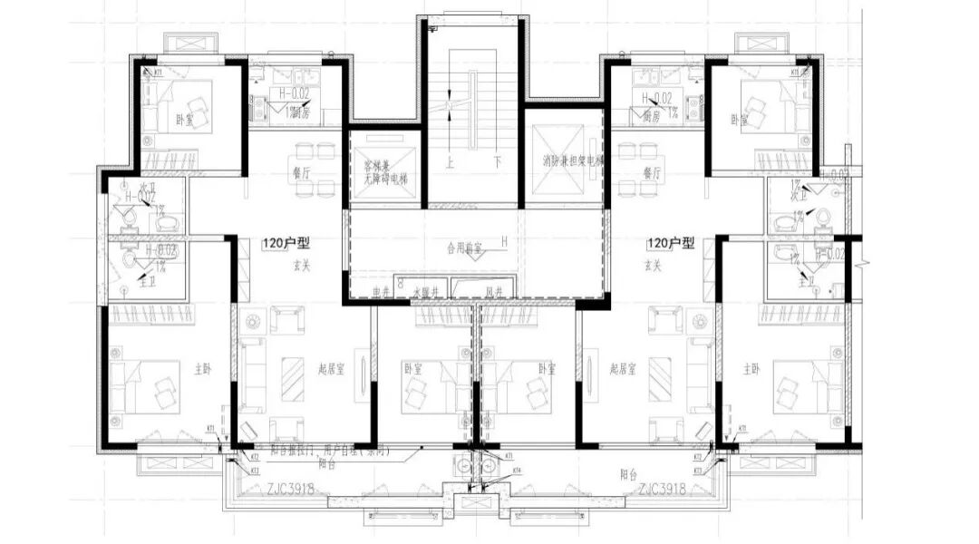
● 产品设计

经济性。单元结构上多道横、纵墙拉齐,并贯通整个户型单元,减少平面的凹凸;有效降低体形系数,提高整体刚度及抗震性能,使得平面布局紧凑,公摊面积减少。

图片

▲单元结构图

实用性。平面设计适应现代生活方式,房型格局方正、大气。强调大厅活动空间,室内布局紧凑,尽量减少开向起居厅门洞的数量,走道短捷,入户处空间充足。动静功能分区合理,入户玄关功能实用,餐厨一体化设计,超大南向客厅阳台及主卧套间组合,结合立面造型,优化户型拼接面,实现室外空调机板一体化,使得建筑外观更具有观赏性。


全部回复(0 )

只看楼主 我来说两句抢沙发

建筑方案设计

返回版块

21.18 万条内容 · 300 人订阅

猜你喜欢

阅读下一篇

重塑街区记忆:历史文脉传承中空间精神的活化

" 街区微更新: 如何平衡新与旧的结合? 在城市的脉动中,新旧更迭如同四季轮转,这是一场关于时间的叙事,每一条街巷都是这故事中不可或缺的章节。 老建筑,它们静默地矗立,见证着城市的兴衰变迁。斑驳的墙面、古朴的雕花,仿佛在低语着往昔的故事,成为连接过去与现在的桥梁。

回帖成功

经验值 +10