
项目概述
深圳市建筑工程质量监督和检测实验业务楼安全整治工程总承包(EPC)项目位于广东省深圳市福田区振兴路1号,甘泉路东侧,上步路西侧,属于华强北商圈,市中心最繁华的商业地带,国内电子产品流通的主要枢纽。
该工程原建筑为深圳市建设工程质量监督总站、市建设工程质量检测中心建筑材料鉴定实验及业务服务用房。

▲改造前
北楼原为深圳市建设工程质量检测中心,分为主楼和附楼。南楼原为建设工程质量监督总站办公楼,建筑面积3114平方米,是7层的框架结构建筑,于1991年竣工投入使用。经过二十多年的使用,原建筑年久失修,损坏严重,难以满足现代办公的要求,故对其进行绿色改造,改造后将作为政府机关办公楼使用,达到被动式低能耗的智能舒适办公建筑的水平。

▲改造后
因其结构具有地基浅、结构不稳等特殊性,其承重结构多已出现不同程度的损伤,在改造过程中不能破坏主体结构。为了有效降低改造过程中可能产生的结构风险,设置一套成型的技术对结构实时的变化进行监测以预防工程事故的发生。本项目主要改造内容包括:主体结构加固、节能改造、智能化提升等工程,采用的具体措施可总结为改造前评估、改造策划、改造技术、绿色施工四个方面。

项目基于气候生物学的被动式分析策略,采用立体绿化,个性化采光遮阳构件,光伏系统,建筑垃圾骨料PC构件,工程渣土免烧砌块,内外分区照明控制等绿色节能、工业化技术改造,使建筑的节能改造、主体结构加固、智能化提升工程与建筑美学融为一体。

基于气候生物学的分析策略,确定本项目可采用的改造技术。形成以被动式设计为主,主动式绿色技术为辅的设计策略。最终贯彻绿色,健康,节能,智能,以及以人为本,用户友好的项目改造理念。

具体体现在高性能围护结构,包括双层外遮阳表皮,热反射涂料,高性能外窗以及立体绿化等设计;高性能空调系统,包括全热回收新风系统,高能效多联机制冷系统以及室外机喷淋降温设备等;采用高能效的LED照明系统结合采光筒并进行分区控制;可再生能源的综合利用,包括高性能屋顶光伏系统以及空气源热泵。

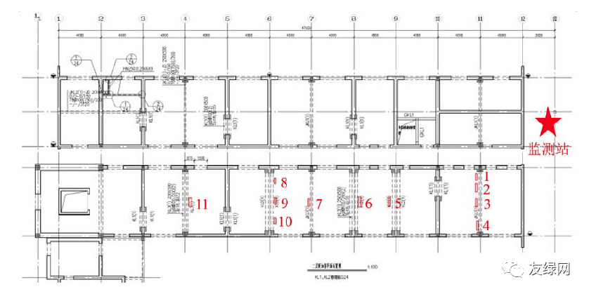
01基于光纤光栅的结构健康监测系统
在结构加固中采用光纤光栅传感技术(FBG)对托换梁、新增加固墙体、新增柱及墙体基础进行应力—应变重点监测,将监测数据同步传至结构受力模型进行实时受力对比分析,并对既有建筑改造过程及后期运营的结构健康性进行实时监测和分析。

该技术把光纤光栅传感器安装在梁结构、墙体内部或表面,利用自主研发的可视化系统,对托换施工过程中框架结构的微小结构变化(应变、挠度)进行实时、远距离监测及安全预警,提高施工安全性。该监测手段精度可达1微应变。本项目北楼1楼由砖混结构改框架结构的施工中,应用该技术完成安全施工,显著节省工期、人力与成本。

02建筑节能与能源利用
在北楼2间小房间彩钢瓦屋面铺贴了降温薄膜。降温薄膜的原理,是利用特定波长的红外辐射可以直接被辐射到外太空的特性,只要先把多余的热量转化为特定波长的红外线,然后就可以把它们永久“扔”进宇宙。

这种薄膜冷却效应相当强劲。研究小组估计,在美国一栋普通房子的屋顶铺设20平方米这种薄膜,就足以在室外温度达37℃时把室内温度保持在20℃。降温薄膜现处于测试阶段,后续会进行数据采集分析降温效果。

透过透明围护结构的太阳辐射是造成室内温度升高的重要原因。在透明围护结构处设置外遮阳设施可以有效降低辐射得热。采用Ecotect软件进行日照分析,得到最佳遮阳角度及遮阳板宽度。利用Equest分析墙体太阳得热系数的对建筑能耗的影响,确定最优太阳的热系数值。

03自然采光技术
对于自然采光条件相对劣势的区域,项目在新增大会议区域设置导光管照明系统,高反射的导光管将阳光从室外引进到室内。导光管照明系统,主要由采光罩、光导管和漫射器三部分组成。其照明原理,是通过采光罩高效采集室外自然光并导入系统内重新分配,经过特殊制作的光导管传输和强化后,由系统底部的漫射器把自然光均匀高效地照射到场馆内部,从而打破照明完全依靠电力的观念。本项目在大会议室屋顶设置了2处光导管用来改善大会议室空间自然采光。按节省2个26W照明灯具估算,一年可省电约108kWh。

04照明系统节能技术
本项目电气照明全部更换LED灯具,采用多款触控开关产品,让灯光变得更聪明,比如采用红外传感器替换原有的声控方式,实现人走灯关。产品可以像普通开关一样使用,也可以通过移动终端实现项目灯光控制。

照明回路进行相关回路优化,靠近外窗的一排灯具采用单独触摸开关控制,阳光充足时用户可以单独关闭,有效降低办公建筑的照明能耗。

05能耗监管平台
本工程改造后搭建建筑环境及能耗集成智能化监控平台,对各分步计量装置和各项耗能系统进行运行监测和实时管控,降低能耗,减少人力成本。主要对项目能源系统的生命周期实际数据的汇总和分析管理,包括数据监测、数据统计、数据评估、绩效排名、公示、诊断、大数据分析、定额管理、运维保障等。

能耗集成部分监控实时电量、冷量、燃气量、水量、光伏发电量、机电设备运行状况等,分析输出能耗报表、评价能效、诊断机电系统可能的问题、异常情况报警。

对室内环境舒适度监测,室内环境部分监控温度、湿度、光照度、人员位置、空气中CO2、甲醛、PM2.5等,分析室内环境健康程度、办公舒适度、控制新风系统和空调系统等。通过BIM模型3D展示,增加互联网和智能化终端(手机APP)远程访问,由远程或自动化方式调节建筑物内各个系统的实时运行状况。

该监测平台的建立,不仅可为节能减排工作提供有力的技术支撑,更可实现能源的按需精细化使用,还可为各类节能用能措施的能耗能效评估及其改进、提高提供第一手的实时数据支持。

目前,该项目已成为华南地区既有建筑绿色改造标杆性工程,也是既有建筑绿色改造的国际级示范项目,已荣获多个国际、国家和省部级奖项:
近零能耗建筑设计标识(证书号JLNH202009004)
国家级“既有建筑绿色改造三星设计标识”(证书号202040APD0063);
国家级“健康建筑二星级设计标识”(证书号NO.HPD2202057SZ)
Active House主动式建筑设计认证标识
2018年度华夏建设科学技术奖三等奖(《基于光纤传感的建筑施工质量安全监测与诊断技术研究与应用》)(证书号2018-3-8501);
国家科技部十三五重点专项“既有公共建筑综合性能提升与改造关键技术”示范工程(编号2016YFC0700709);
国家科技部十三五重点研发专项“建筑室内空气质量控制”示范工程;
国家住建部2017年“既有公共建筑及老旧小区节能宜居综合改造”示范项目(项目编号2017-S10-001);
中国-新加坡绿色建筑委员会立体绿化合作示范项目;
中美清洁能源合作第二批示范项目;
全联房地产商会城市更新和既有建筑改造分会“2019年度中国城市更新和既有建筑改造优秀案例推选”活动“科技创新类优秀案例”奖

深圳市建筑工程质量监督和检测实验业务楼以“绿色、健康、节能、智能”为设计理念,实现“以人为本、用户友好”的目标。该建筑在绿色改造过程中充分发掘原有建筑材料的生命可延续性,将现场拆除下来的水磨石面砖作为PC构件骨料;将废旧的铝合金门窗窗框拆除作为外立面垂直绿化的爬藤骨架;旧材料的回收再利用,让改造后建筑与原建筑在材料上具有传承性,使建筑的生命得以延续,同时降低了改造成本和全生命周期的碳排放水平。







绿色建筑改造标杆工程
Active House设计认证标识项目/国际级示范项目
深圳市建筑工程质量监督和检测实验业务楼安全整治工程总承包(EPC)项目
该项目是中国首个依据《主动式建筑评价标准》T/ASC 14-2020评审,获得Active House设计认证标识的项目。
它探索了夏热冬暖地区既有公共建筑绿色改造的技术体系与建筑装饰设计相结合的方式,综合运用了多种绿色改造施工方法、绿色建筑技术、智能化技术,成为建筑绿色改造标杆工程,对国内外既有公共建筑绿色改造及装饰设计具有借鉴意义。
0人已收藏
2人已打赏
免费2人已点赞
分享
建筑方案设计
返回版块21.18 万条内容 · 300 人订阅
阅读下一篇
公共建筑设计:伦敦 Marshgate UCL 东楼项目位于伦敦伊丽莎白女王奥林匹克公园的UCL 东校园前沿,占地3251.6㎡的最先进的学术建筑已经竣工。设计旨在打造一个协作和跨学科的教育环境,专注于解决当今最大的社会、环境和技术挑战,利用将汇聚在东伦敦新校区的众多院系的共享知识和专业知识。 这一标志性项目是UCL最大的单一建筑,提供了八层开放且可调整的教学、研究和合作空间,涵盖了从创意产业到工程、机器人技术、绿色技术和全球健康等领域,促进了新型且相互关联的工作模式,并产生了全新的研究方向和学科。
回帖成功
经验值 +10
全部回复(0 )
只看楼主 我来说两句抢沙发