建筑外立面采用玻璃幕墙时,建筑施工图中有关外窗的防火、节能、绿建、防烟排烟性能要求,均应通过玻璃幕墙的二次设计实现。同时玻璃采光顶、临空处玻璃栏板的安全防护要求也需要通过玻璃幕墙公司的二次设计实现。
一、玻璃幕墙的防火设计要求
玻璃幕墙的二次设计需要落实建筑施工图有关玻璃幕墙竖向及水平方向的防火要求,消防救援窗的设置要求。
1.玻璃幕墙竖向防火要求
(1)玻璃幕墙竖向防火封堵
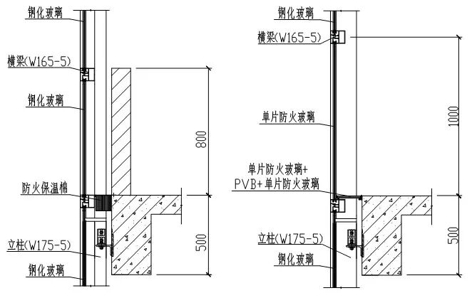
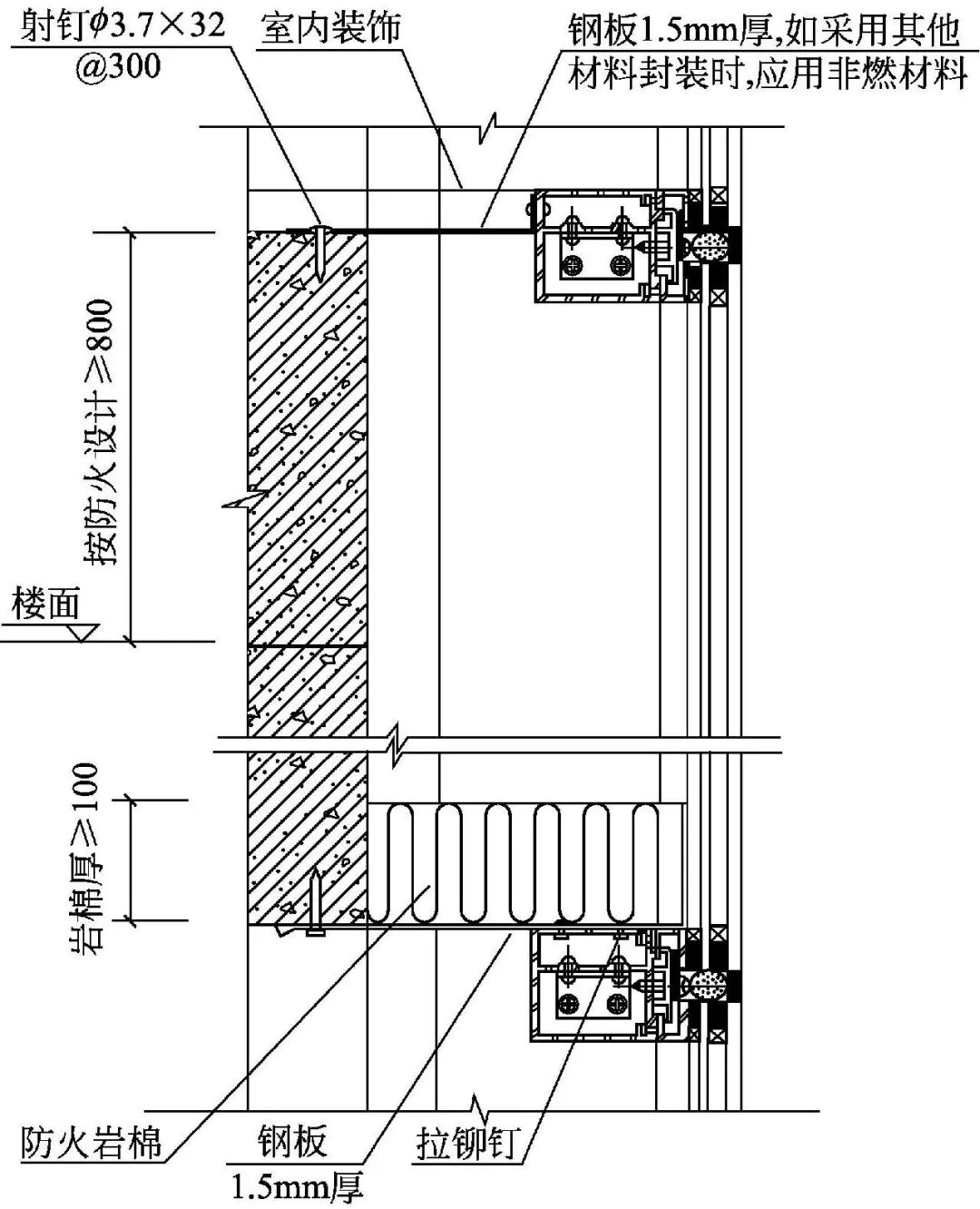
根据《建筑防火封堵应用技术标准》GB/T51410-2020第4.0.3条的规定,玻璃幕墙层间防火封堵构造应设上下两道,每道构造厚度不应小于200mm,且两道之间的间距不应小于1.20m,设自动灭火系统时不应小于0.80m。
(2)原建筑以防火玻璃墙代替层间实体墙时,应满足《建规》12513中对非隔热性镶玻璃构件的试验方法和判定标准进行测定。第6.2.5条的规定,高层建筑的防火玻璃墙的耐火完整性不应低于1.00h,多层建筑的防火玻璃墙的耐火完整性不应低于0.50h,其耐火完整性按照现行国家标准《镶玻璃构件耐火试验方法》GB/T防火玻璃墙高度不应小于1.20m,设自动灭火系统时不应小于0.80m。

2.玻璃幕墙水平方向防火要求
透明玻璃玻璃幕墙位于防火墙两侧最近边缘的水平距离2.0m范围内或位于防火墙内转角两侧最近边缘的水平距离4.0m范围内时,应满足《建规》第6.1.3、6.1.4条规定。即应设置固定或火宅时能自行关闭的乙级防火窗,要求其耐火隔热性和耐火完整性不应低于1.0h,且其耐火性能应采用国家标准《镶玻璃构件耐火实验方法》GB/T12513中对隔热性镶玻璃构件的实验方法和判定标准进行测定。
3.消防救援窗的设置要求
玻璃幕墙二次设计施工图消防救援窗的位置、尺寸与原建筑施工应一致,且消防救援窗扇的净尺寸不应小于1.0m?1.0m,应注明其玻璃应易于破碎。

二、玻璃幕墙的节能设计要求
玻璃幕墙的二次设计需要落实建筑施工图有关玻璃幕墙的传热系数、太阳得热系数、气密性、可见光透射比、可开启面积比、热桥保温构造做法等建筑节能要求。
玻璃幕墙的节能构造做法及传热系数、太阳得热系数应能达到原建筑节能设计专篇的要求。
透明玻璃幕墙的气密性不应低于《建筑幕墙》GB/T21086-2007中规定的3级。
透明玻璃幕墙玻璃的可见光透射比应满足《公共建筑节能设计标准》DB37/5155-2019第3.2.2条的规定。即当窗墙面积比小于0.4时,玻璃的可见光透射比不应小于0.6;当窗墙面积比大于等于0.4时,玻璃的可见光透射比不应小于0.4。
透明玻璃幕墙可开启扇的位置、尺寸与原建筑施工图应一致。
玻璃幕墙后非透明部分,如梁、柱、墙体等处,应按原建筑节能设计有关外墙的节能要求采取保温措施。

三、玻璃幕墙的绿建设计要求
1.玻璃幕墙的二次设计需要落实建筑施工图有关玻璃幕墙可见光反射比的绿色建筑设计要求规定,即在城市快速路、主干道、立交桥、高架桥两侧的建筑物20m以下,一般路段10m以下,18091-20151.原建筑施工图依据国标《绿色建筑评价标准》GB/T50378-2019进行绿色建筑设计时,当第8.2.7条第1款得分时,玻璃幕墙的可见光反射比应符合《玻璃幕墙光热性能》GB/T在T形路口正对直线段处设置玻璃幕墙时,应采用可见光反射比不大于0.16的玻璃;其他玻璃幕墙应采用可见光反射比不大于0.30的玻璃。
2.原建筑施工图依据旧版省标《绿色建筑评价标准》DB37/T5097-2017进行绿色建筑设计时,当第4.2.4条第1款得分时,则玻璃幕墙可见光反射比不应大于0.2。

四、玻璃幕墙的防烟排烟设计要求
玻璃幕墙的二次设计需要落实建筑施工图有关玻璃幕墙的防烟、排烟要求。
1.自然通风要求。
采用自然通风的封闭楼梯间、防烟楼梯间,应在最高部位设置面积不小于1.0m2的可开启外窗;当建筑高度大于10m时,尚应在楼梯间的外墙上每5层内设置总面积不小于2.0m2的可开启外窗,且布置间隔不大于3层;采用自然通风的独立前室、消防电梯前室可开启外窗的面积不应小于2.0m2,共用前室、合用前室不应小于3.0m2;采用自然通风的避难层(间)应设有不同朝向的可开启外窗,其有效面积不应小于该避难层(间)地面面积的2%,且每个朝向的面积不应小于2.0m2。
2.自然排烟要求
通风专业采用自然排烟的场所,储烟仓高度范围内排烟窗的有效开启面积应满足通风专业的要求,有效排烟面积应根据《建筑防烟排烟系统技术标准》GB51251-2017第4.3.5条进行计算,开启形式详(详图一)。注意外窗采用悬窗时,应在立面图注明悬窗的开启角度。

五、玻璃幕墙的临空处安全防护要求
玻璃幕墙的二次设计需要落实建筑施工图有关临空处安全防护玻璃栏板、以固定扇代替低窗台护窗栏杆的设计要求。
113-2015第7.2.5条的规定。
1.对于上人屋面、外廊、露台、开敞阳台等临空处安全防护玻璃栏板,其有效净高应满足原建筑施工图及相关规定标准的要求。栏板玻璃应满足《建筑玻璃应用技术规程》。
2.当以玻璃幕墙固定扇代替护窗栏杆时,应落实如下要求:
(1)玻璃幕墙横向龙骨距楼地面应为800mm高,应注明玻璃幕墙龙骨的尺寸、壁厚、与建筑主体之间的固定措施,提供由结构专业审查认可的计算书或提供满足荷载规范防冲撞要求的检测报告。
113-2015第7.2.5条的规定。最低要求中空玻璃的某一层玻璃应采用6.38厚的夹层玻璃(注意该固定扇的构造做法应同时满足节能要求)。(2)固定扇玻璃应满足《建筑玻璃应用技术规程》。

六、玻璃采光顶设计要求
玻璃采光顶的二次设计需要落实建筑施工图有关玻璃采光顶防火、防水、排水、排烟的要求。
1.玻璃采光顶承重构件的耐火等级按原建筑要求确定。建筑的耐火等级为一级时,其耐火极限不应小于1.50h;耐火等级为二级时,其耐火极限不应小于1.00h。
2.玻璃采光顶的防水等级按原建筑要求确定。不应低于I级或II级。
3.玻璃采光顶构造做法应满足原建筑节能要求(含传热系数、太阳得热系数)。
4.屋面玻璃必须使用夹层中空玻璃,其胶片厚度不应小于0.76mm,以满足《建筑玻璃应用设术规程》JGJ113-2015第8.2.2条的规定。
5.中庭采用机械排烟时:屋面应设具有温控功能开启的可开启扇,且不小于中庭楼地面积的5%。以满足《建筑防烟排烟系统技术标准》GB51251-2017第4.4.15条的规定。(注意根据规范要求屋面应采用夹胶玻璃,无法破拆,不能用固定窗)。
6.中庭采用自然排烟时:中庭采用自然排烟系统时,有效开窗面积应由通风专业按《建筑防烟排烟系统技术标准》GB51251-2017第4.6.5条的规定计算,核对原建筑施工图。
7.玻璃采光顶的排水坡度不应小于5%。

建筑施工图审查时,应要求立面图表达玻璃幕墙开启扇的位置、尺寸、开启方式,消防救援窗的位置及尺寸,设防火玻璃墙的部位等,这样才能保证玻璃幕墙公司二次设计时能落实到位。
关于幕墙设计还有很多知识,这里没办法一一列举,小易为大家准备了建筑幕墙设计培训班速成班
课程内容


课程目的
熟悉幕墙设计,为做好幕墙设计打好基础。
了解幕墙的发展,理解幕墙的概念及分类及未来发展。
掌握各种幕墙材料的性能,合理选用幕墙的材料品种与规格。
学会幕墙设计中的建筑设计。
掌握结构计算软件的使用方法和计算书编制。
掌握热工计算软件therm的使用方法和热工计算书编制。
掌握各种结构形式的幕墙特点、设计方法。
利用工程的实例,解释现场施工中的问题解决方案及掌握施工组织的编写。
理解门窗幕墙定料单的过程,实践各种幕墙的定料单的编制加工图的绘制。
了解幕墙设计的招,投标及合同。
0人已收藏
0人已打赏
免费1人已点赞
分享
门窗幕墙
返回版块2.45 万条内容 · 147 人订阅
阅读下一篇
GRG还能用在室外打造数字化风动山谷,3D打印脱蜡铸金工艺打造超复杂构件位于中国武汉汉街的I Do艺术家店融合了独特的空间和雕塑元素,创造了一种极具表现力、沉浸式和启发性的体验。室内柔软的流体层岩与钻石结构 洞穴内部的空间轻盈、通透,数字建造成型的流体层岩不断塑造着空间,进一步将观者包裹在其中,给与温暖的拥抱。让人联想到自然风蚀的地球表面那种自然风化的效果。 室内外具有艺术感的造型墙面主要用材就是GRG,具有可塑性强,质地轻,强度高等特点。但是一般GRG主要用在室内,该项目的创新之处在于GRG同时也用到了室外,但是用在室外的GRG能做了一定的防水、耐候处理的,安装之前在表面添加防水剂,以提高其抗湿性。
回帖成功
经验值 +10
全部回复(0 )
只看楼主 我来说两句抢沙发