随着我国经济水平的快速提高和城市化进程的蓬勃发展,以城市综合体、TOD开发项目等建筑类型为代表的城市级公共建筑层出不穷。在大型、特大型公共建筑项目中,因结构设计要求设置变形缝的情况极为普遍。变形缝作为容许建筑变形的重要系统,对性能、外观、系统一体化设计的要求也日益提高。近年来在新建公共建筑中,变形缝设计的成功与失败案例并存。为此,对以往的变形缝设计案例进行回顾梳理,总结正确的设计方法具有普遍的实践意义。
1
变形缝系统设计现状
从我国近年来建成的大型公共建筑项目来看,变形缝系统设计失败案例大致可以归纳为三大类:
1)系统综合变形性能不能或无法全部满足结构变形要求;
2)系统防水、防火、保温等物理性能不满足设计要求;
3)系统与室内外表层构造系统设计融合度低,综合设计精细化程度欠缺。
2
变形缝系统设计原则
从建筑功能角度而言,变形缝系统除需要满足结构变形的要求外,还要满足防水、防火、保温的建筑性能要求。从结构角度而言,建筑变形缝分为温度、沉降、抗震三种类型;在实际工程中,结构设计往往做“三缝合一”的综合处理。一般情况下,抗震设计所要求的变形缝两侧结构体的相对位移量往往可以同时覆盖温度伸缩及沉降的位移量要求。
按照“小震不坏、中震可修、大震不倒”的抗震基本设计原则,变形缝系统的各个组成部分、部件的详细设计也应达到两大目标:
1)在小、中震条件下,与变形缝两侧结构体位移相适应;
2)在非地震或小震条件下,不会引发防水、防火、保温等系统的普遍破坏及次生灾害的发生。
从地理分布角度来看,以珠三角、长三角、京津冀地区为代表的经济中心和正在蓬勃发展的中部经济区大多处于抗震设防区域,大型、特大型公共建筑项目在这些区域中分布广泛。
随着项目建设标准的不断提升,建造成本的构成比例也发生了很大变化,主要体现在三个方面:主体结构造价占比下降;围护结构、室内外装修造价占比大幅提高;机电系统造价占比大幅提高。因此,以往变形缝设计中只需满足结构变形要求,其他系统破坏不计或极少考虑的观念已经发生改变。同时,随着大型新技术、新产品的出现和发展,也为扩展变形缝设计内容、改善其工作性能和美学效果提供了坚实的技术条件。
从大量成功的变形缝系统设计案例中,可以归纳三大设计原则:
1)结构、构造一体化的设计原则;
2)功能、性能优先的设计原则;
3)表层构造整合的设计原则。
3
变形缝系统设计方法
结合在大型公共建筑设计实践中的多年经验,笔者总结以下变形缝系统设计步骤。
步骤1:综合考虑变形缝位置
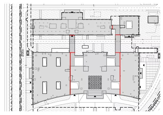
随着混凝土设计和施工技术的进步,一般情况下在大型公共建筑项目中一次建设的大型、超大型地下室已经较少设置变形缝了,而地上建筑设置变形缝也大多以抗震缝为主。地上建筑变形缝的结构设置通常分为三种方式:双柱/墙式、悬挑式、交接式(图1)。
【图 1 变形缝结构方式:双柱墙式(左)、悬挑式(中)、交接式(右)】
各种方式的适用条件、工作特性的不同,其对建筑空间的影响也不同(表 1)。应根据项目的具体条件和设计目标综合考虑,力求量体裁衣,切忌“简单化”、“概念化”的思考方式。
【表 1 变形缝结构方式的特征对比】

变形缝的设置问题应该在建筑方案设计阶段建筑主要体量基本确定后同步进行可行性研究,这也是结构方案设计的一项重要内容。但在实际项目设计中,往往由于方案设计师对技术方案重要性认知不足或专业配合问题而导致这个重要设计环节的缺失。
按照传统设计作业习惯,建筑变形缝设置与否及设置的位置基本由结构工程师单方面决定。建筑师在前期技术方案阶段的参与度较低,更多是在设计后期进行修补性的标准化构造处理,极少有机会根据具体条件进行针对性的设计。类似失败案例在现实中比比皆是。
从案例一和案例二的对比中不难看出,只要在设计早期对变形缝设置位置、方式进行全专业、全过程的密切配合,才能够得到安全、功能、美学、工艺性等诸多方面平衡的优质作品。
【图 2 某医院项目(红色为变形缝位置)】
【图 3 某医院项目局部屋面外墙变形缝构造】
【图 4 某综合体设置多处变形缝】
【图 5 某综合体裙房连廊处设变形缝】
【图 6 某综合体塔楼与裙房交界处设变形缝】
步骤2:确定设计标准、条件
如前所述,变形缝系统设计需要在小、中震条件下使变形缝两侧结构体位移相互适应。通常结构工程师仅向建筑师提出变形缝宽度的数字,而鲜有建筑师真正了解这个宽度数字背后的真正含义。在地震工况下,结构体会沿X、Y、Z轴三个向度产生位移和相互间的复杂运动(图7)。因此,建筑师必须理解每处变形缝的运动规律和工作原理才能进行针对性的设计。
【图7 抗震缝两侧结构体运动示意】
经过了断断续续近一年的施工,玉华村村委会在2017年3月正式完工并投入使用。在这个建筑里,文脉、公共性不是概念,更不是口号,而是基于村民日常生活需求在场所与空间上的真实应对,其设计在合理之中暗藏着意外,在熟悉之中透露出一点陌生。我们在乡村的在地建造以及与村民的交流过程中,不提“文化”、“文脉”的大概念,转向如何处理新、老建筑的衔接,以及如何保留场地上的大树等这些具体而细微的事情,更容易获得大家的理解与支持。在讨论、解决这些看似微小的事情过程中,建筑也获得了自身的独特性。玉华村村委会项目没有通常村委会的那种气派或强烈的标志性,与周边农居几乎完全融合在一起,从远处看分辨不出哪栋房子是村委会,但只要看到那几棵生长了数十年的大树就会轻易地找到它。这种源自村民心底的记忆与认同,或许才是将人们从自家小院吸引至此的力量吧。
在笔者参与的设计项目中,通常要求结构工程师提供小、中震工况下结构体三向度的位移量数据,例如某项目结构工程师提供的位移条件见表2。.
【表2 变形缝设计条件:相对位移参数】
上表各数据可以大致解读为:各变形缝的最大相对位移均发生在中震工况下,工程设计实际变形缝预留尺寸应在最大相对位移量数据基础上适当放大。此外,建筑师还应仔细检视、确认其他周界设计条件,如:结合防火分区的设计情况和对变形缝部位有无防火构造要求(如墙顶地等建筑构件的耐火极限要求)、防水要求(如屋面、外墙变形缝)等等,做到对设计条件完整、清晰的掌握和理解。
步骤3:变形缝系统构造设计与产品选型
从建筑构造部位角度看,变形缝系统可分为:室内变形缝系统——地面、内墙、顶棚/吊顶;外围护结构变形缝系统——地面、屋面、外墙、室外吊顶。相较而言,室内变形缝系统设计较为常规,国内目前对应的技术和产品选择较多;外围护结构变形缝本身就关联防水、防火、耐候等诸多问题,加之外装修材料因设计要求变化较多,所以需要考虑的因素复杂,设计难度也更大。
(1)室内变形缝系统
在诸多项目中,建筑师、室内设计师大多选择国标或地标图集(对应成品)作为室内变形缝系统。而在实际项目设计过程中,却经常发现设计师因不能正确理解选用方法造成错误。
以国家建筑标准设计图集04CJ01-01《变形缝建筑构造(一)》为例(图8),图集选用表中提供了3个参——数W(缝宽)、ES(盖板宽度)、伸缩量(ΔX/ΔY/ΔZ)。部分设计师误将结构工程师提供的变形缝宽度数据(以下略称为Ws)等同于图集所定义的变形缝主体结构设计宽度(W),造成选型错误。
按照变形缝系统的工作原理,变形缝的实际设计宽度应为伸缩量与缝内变形机构构件尺寸值(A)之和,即:W=(ΔX/ΔY/ΔZ)+A。所以应将伸缩量,即结构计算最大相对位移值(ΔX/ΔY/ΔZ)作为变形缝系统选用的基础参数。
【图 8 变形缝选型】
(2)外围护结构变形缝
在外围护结构变形缝类型中,地面设置变形缝的情况较少出现;非采光屋面、室外吊顶所关联的因素相对较少,设计难度相对常规。上述两类在此暂不详细讨论。而外墙、采光顶部分则较复杂,特别是在大型公共建筑中较多采用幕墙系统,且国内缺少对应的技术专家支持条件下,变形缝系统设计会愈加复杂。
图9为某项目在主体结构变形缝对应幕墙处的构造设计。虽然室内外两侧均有金属制类似可变形的盖板构造,但盖板两端采用螺钉连接方式固定于幕墙龙骨。在地震力作用下,构造体沿X向的实际运动空间受限;缝两侧结构体沿Y向发生相对位移时,会对构造体产生往复拉扯作用,构造体也很难容许这样的运动发生。因此,很难判断这样的构造设计能否起到在地震情况下真正容许两侧结构体及其连带的建筑构造物充分自由位移的变形作用。另外,变形缝构造体内部也没有设计保温隔热构造,这对围护结构整体的热工性能也是一个先天性缺陷。
【图 9 某项目幕墙处变形缝构造设计】
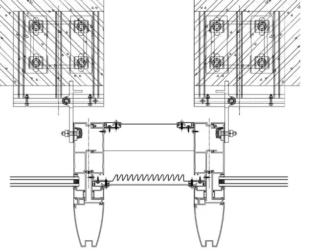
对比某国外成熟的幕墙专用变形缝产品,其盖板设计成门铰式。地震工况下,变形缝两侧结构体相互位移时,盖板沿一端枢轴自由转动,充分满足结构体的位移空间要求;地震消失结构体恢复原位后,可轻易将盖板复位;非地震情况下盖板另一端的磁吸扣件可使盖板位于关闭姿态(图10, 11)。
【图 10 某国外幕墙专用变形缝实施案例】

【图 11 某国外幕墙专用变形缝系统示意】
在某大型公共建筑项目中,塔楼与裙房之间的变形缝设计也采取了类似的处理方式:通过一体化设计,将变形缝设置在玻璃与石材幕墙交界处。变形缝盖板表面的金属材质,其视觉效果与相邻材料融为一体。变形缝盖板采用类似上述国外产品的门铰式成品,性能满足两侧结构体自由位移的要求(图12)。根据设计要求,变形缝内设置高分子材料的柔性止水带作为侧面和顶面的防水措施(图13)。
【图 12 采用优质成品的幕墙变形缝(框线位置)】
【图 13 变形缝内防水构造施工】
在笔者主持的一个综合体项目中,设计有一座连桥跨越裙房与塔楼之间四层高的位置,抗震设计要求在塔楼与连桥相接处设置变形缝。如按照常规思路在桥端塔楼外侧设计框架柱支撑桥体,不仅影响设计美学效果,而且纤长的四层高框架柱本身就无法抵抗地震工况下巨大的水平力。故与结构工程师沟通研究确定采用整层高钢桁架作为桥体结构,并通过滑动铰支座将桥端搭接在塔楼结构体上(图14)。
【图 14 某综合体连桥与塔楼采用滑铰连接 】
根据结构对连桥两端两侧的逐层位移量计算,选取四层最大位移计算值相加后乘以位移方向系数,得到在变形缝两侧的结构位移量,见表3。
【表3 结构位移计算值】
变形缝所处塔楼外墙为锯齿形单元式幕墙,锯齿单元以半个单元宽度为模数隔层错位,呈鳞状立面设计效果。由于桥体结构端部需要“穿过”建筑表皮搭接与塔楼主体结构上,造成外围护结构变形缝与室内变形缝在空间位置的错动,这一集合位置条件给设计带来了较大挑战。
通过建筑师与结构工程师的共同努力,在桥体桁架端部设计了状如“担架柄”的悬挑支撑端,使之巧妙地“嵌套”在内外表皮之间。变形缝设计相关的滑铰、室内外变形缝系统均采用国内市场的成熟产品,在保障设计意图实现的同时,也降低了非标设计可能带来的采购、安装、后期维护的成本(图15)。
【图 15 某综合体连桥滑铰变形缝构造设计】
4
结语
作为最为常见的建筑部件之一,变形缝经历了由曾经的“薄铁皮”时代向优质专业产品化一体化设计的演变历程,也从一个微小的侧面透视了行业与社会的变迁。“性能/功能优先、结构/构造整合”的变形缝一体化设计探索脱胎于高价值项目的大规模建设需求之中。由作大一统的官样文章向追求性能完善与美学个性表达的平衡统一目标的演进,也映射着建筑业由粗放野蛮增长模式向精细化可持续发展模式的嬗变。求真求精,希望这些探索能够给广大同行带来一点小小的启迪。
内容源于网络,侵删
0人已收藏
0人已打赏
免费2人已点赞
分享
公共建筑设计
返回版块51.17 万条内容 · 447 人订阅
阅读下一篇
怎么提升保温管道的保温效果?怎么提升保温管道的保温效果? 在提升保温管道的保温效果方面,可以尝试以下方法: 使用高效的保温材料:选择导热系数低、密度高、吸水率低的保温材料,如玻璃棉、岩棉、聚氨酯等。 增加保温层厚度:增加保温层的厚度可以提高保温效果,但同时也会增加管道的重量和成本。 控制管道表面温度:通过控制管道表面温度,可以减少热量的损失,提高保温效果。 减少接口数量:减少接口数量可以减少热量的损失,提高保温效果。
回帖成功
经验值 +10
全部回复(1 )
只看楼主 我来说两句 抢板凳学习了技术干货资料:公共建筑变形缝一体化设计,多谢了。
回复 举报