通过粤州某超高层综合办公楼的工程实践,简介了建筑高度大于250m的超高层建筑的防排烟的技术要点,重点分析了首层大堂、避难层进排风百叶防排烟系统设计的技术要点,为类似的超高层防排烟设计提供参考。

超高层综合办公楼容纳人员较多,如防排烟系统设计不合理,一旦发生火灾,往往造成较大的人员伤亡,因此,做好防排烟系统设计,避免火灾发生时烟气进入疏散通道,可为办公人员的快速疏散以及消防人员的扑救作业争取时间,是当前建筑工程设计工作的重点。
2018年8月1日实施的国家标准《建筑防排烟系统技术标准》GB 51251—2017以及2018年4月10日公安部消防局印发《建筑高度大于250m民用建筑防火设计加强性技术要求(试行)》的通知对建筑高度大于250m的超高层建筑的防排烟设计提出了新的设计要求。本文以广州某超高层综合办公楼的防排烟为例,对防排烟设计的技术要点进行探讨。
01、工程案例
南粤首府某超高层综合办公楼项目总建筑面积30.5 万m2,由1栋58层办公塔楼、1栋38层办公塔楼、8栋独栋多层商业建筑以及5层地下室构成,其中塔楼A、塔楼B全部为办公用房,商业楼C1~C8全部为商业和餐饮用房。地下部分共5层,其中地下1~2层为商业、餐饮和设备用房,地下3~5层为汽车库和设备用房。
本文主要研究塔楼A的防排烟设计。塔楼A为超250m的超高层建筑,共58层,建筑高度270.6m,女儿墙高度为284m,全部为办公用房。避难层位于10、20、30、38、48层。

02、防排烟系统设计
2.1 防烟系统
(1)防烟楼梯间及其前室分段设置独立的机械加压送风系统,分别为1~10F、11~20F、21~30F、31~38F、39~48F、49F~屋面层。加压风机设置于避难层的风机房或屋面层风机房。
(2)封闭避难间设置独立的机械加压系统,机械加压送风系统的室外进风口在两个方向上设置。加压风机设置于本层风机房内。
(3)防烟楼梯间、前室、合用前室加压风口的设置:
防烟楼梯间每隔2层设一个自垂式百叶送风口
前室、合用前室每层设一个常闭式送风口(电控)
风口安装高度:风口底边距离楼层标高完成面300mm
(4)首层大堂作为扩大前室,设置机械加压送风系统,加压风机放置于连廊的风机房里。
(5)10~15F、21~29F、39~47F、48~57F的办公房间及31层大堂面积均超过了500㎡,根据规范要求需要设置补风系统。补风系统直接从室外引入空气,且补风量不小于排烟量的50%。补风机放置于避难层风机房内。
(6)机械加压系送风系统的设计风量不小于设计风量的1.2倍。

2.2 排烟系统
(1)塔楼A1~58F设竖向内走道及房间机械排烟系统,共设置3套竖向机械排烟系统。31~38F由于建筑空间净高大于6m,排烟风机的排烟量按防烟量最大的一个防烟分区计算。其他层的排烟风机按照同一防火分区中任意两个相邻防烟分区的排烟量之和的最大值计算。塔楼A的排烟风机设于10、20、30、38、48F避难层的风机房或屋面层风机房。
(2)塔楼A31层大堂设置机械排烟系统,其排烟系统按中庭排烟要求设计。中庭排烟量按周围场所防烟分区中最大排烟量的2倍数值计算,且不小于107,000m?/h。
(3)排烟系统的设计风量不小于系统设计风量的1.2倍。
2.3 气体灭火后的排风系统
塔楼A的30、38层的低压电房以及变压器房,以及塔楼A核心筒内的强弱电间等均设气体灭火后的排风系统,排风量按照不小于5次/h换气次数计算。
2.4 事故排风系统
38层制冷机房设置平时排风兼事故通风系统,事故通风排风量不小于12次/h换气次数,事故排风支管设常闭电动阀,采用下排风口。
2.5 消防加强技术措施
(1)机械排烟系统竖向按避难层分段设计。沿水平方向布置的机械排烟系统,按每个防火分区独立设置。机械排烟系统不应与通风空气调节系统合用。
(2)核心筒周围的环形疏散走道设置独立的防烟分区;在排烟管道穿越环形疏散走道分隔墙体的部位,设置280 ℃时能自动关闭的排烟防火阀。
(3)水平穿越防火分区或避难区的防烟或排烟管道、未设置在管井内的加压送风管道或排烟管道、与排烟管道布置在同一管井内的加压送风管道或补风管道,其耐火极限不应低于1.50h。
(4)排烟管道严禁穿越或设置在疏散楼梯间及其前室、消防电梯前室或合用前室内。

03、专家意见
针对该项目的设计难点,南粤省消防总队组织相关部门及设计院召开了该项目的消防设计评审会,讨论并对设计中的消防设计难点提出了指导性意见。
(1)首层大堂(扩大前室)为安全区域取消其加压系统,在与大堂相连接的自动扶梯在地下室设置防火墙,并在其前室设置机械加压系统,如图1所示。

(2)避难层的进风口与出风口应分开布置,满足规范的要求。
3.1 首层大堂的防排烟问题
为了大堂的整体性和美观性,大堂作为扩大前室。根据规范的要求,前室作为人员安全疏散的通道,需要保证一定的压力差,让烟气不扩散进去。
且根据250m加强条的要求,用作扩大前室的首层大堂内不应布置可燃物,其顶棚、墙面、地面的装修材料应采用不燃材料。故首层大堂无可燃物,不会产生烟气。而地下室的烟气会通过自动扶梯跑到大堂。为了防止烟气通过自动扶梯进入大堂,专家建议地下室的自动扶梯采用防火墙分隔防止烟气进入,并在自动扶梯处的前室内设置加压送风系统,防止烟气通过自动扶梯进入大堂,保证首层大堂人员的疏散。
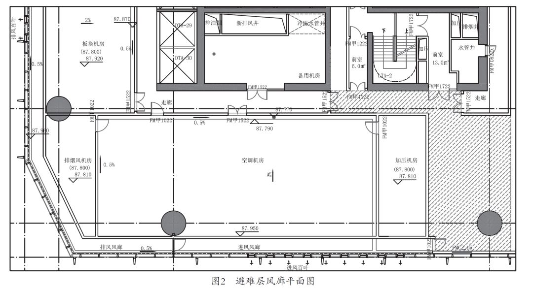
3.2 避难层进排风百叶的设置问题
根据规范的要求,进风口与出风口不应设在同一面上,应分开布置。水平布置时,两者边缘最小水平距离大于20m。
为了避让东面的消防登高面,现设备机房主要集中在西侧、和南北两侧。而防排烟机房分布在西北角和西南角,正好利用角落两个不同方向的外墙的优势,一面外墙上为进风百叶,一面外墙上为排风百叶。由于建筑造型的限制,避难层百叶不是环绕幕墙均匀分布的,而是集中分布在每侧幕墙的中间,风管需绕很远,才能接到百叶上。
为了方便接管且不影响建筑立面的前提下,建筑专业沿着幕墙外部做了一圈风廊,风廊和室外百叶直接联通,风廊相当于一个静压箱,空调专业通过风廊取风和排风。
同时为了满足规范的要求,风廊里设置隔墙分为进风风廊和排风风廊,将进风口和排风口分布在不同的方向上。为了减小进排风系统阻力,控制风廊里的风速<2m/s,经过计算,风廊的宽度为1,200mm,如图2所示。

04、结语
本文简要介绍了建筑高度大于250m的超高层建筑的防排烟的技术要点,并得出以下结论:
(1)首层大堂作为扩大前室无可燃物,故可不设置任何防排烟措施,建议与其相连的地下一层的自动扶梯采用防火墙分隔防止烟气进入,并在自动扶梯处的前室内设置加压送风系统,防止烟气通过自动扶梯进入大堂,保证首层大堂人员的疏散。
(2)避难层的进排风百叶可通过设置风廊,通过隔墙将进风风廊和出风风廊分隔在不同的方向,满足规范的要求。
0人已收藏
1人已打赏
免费2人已点赞
分享
通风排烟
返回版块13.92 万条内容 · 628 人订阅
阅读下一篇
上海市新版居住建筑节能设计标准,新增新风风口间距要求、提高设备性能参数要求2024年2月23日,上海市住房和城乡建设管理委员会批准发布上海市工程建设规范《居住建筑节能设计标准》DG/TJ08-205-2024,自2024年7月1日起实施。 上海市民用建筑与全社会总用能发展情况(2015-2020) 本标准率先引入建筑用能与碳排放限额双控的建筑节能限额设计理念,提出了上海市居住建筑能耗与碳排放绝对值限额指标节能设计评价方法,并以75%作为节能目标进行修订。
回帖成功
经验值 +10
全部回复(0 )
只看楼主 我来说两句抢沙发