土木在线论坛 \ 建筑结构 \ 地基基础 \ 条形基础识图

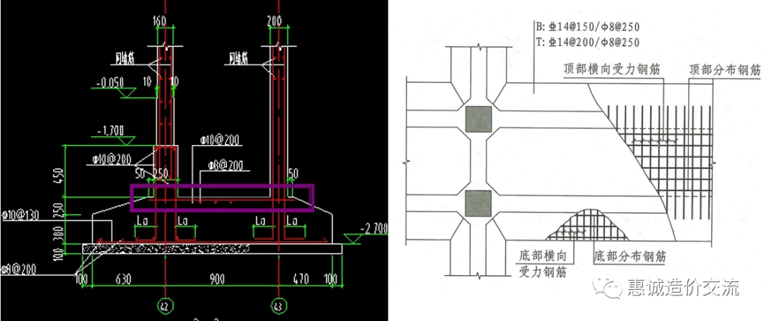
条形基础识图

发布于:2024-03-27 16:20:27 来自:建筑结构/地基基础 [复制转发]

图片

图片

图片图片图片图片图片图片图片图片图片图片图片图片图片图片

以上内容来源于网络,如有侵权请联系删除


  • 放水发电
    放水发电 沙发

    资料还不错,感谢分享,支持并鼓励上传分享附件资料

    2024-03-28 08:53:28

    回复 举报
    赞同0
这个家伙什么也没有留下。。。

地基基础

返回版块

12.11 万条内容 · 717 人订阅

猜你喜欢

阅读下一篇

条形基础相关介绍

 基础那就是房子的根,基础没做好,房子的根基就不稳,容易出现倾斜、塌陷、裂痕甚至坍塌等现象,危及住房安全。 条形基础的作用是把墙或柱的荷载传递至地基,使之满足地基承载力和变形的要求,也是农村最为常见的一种基础形式,接下来给大家介绍一下。

回帖成功

经验值 +10