土木在线论坛 \ 建筑结构 \ 混凝土结构 \ 剪力墙配筋值直接取计算值?这些情况下可能会有问题

剪力墙配筋值直接取计算值?这些情况下可能会有问题

发布于:2024-03-19 16:52:19 来自:建筑结构/混凝土结构 [复制转发]

首先我们需要知道,软件中的剪力墙是按照每一片墙肢单独计算进行配筋处理的,计算结果中既不考虑剪力墙的构造配筋,也不考虑多个剪力墙相交后的重叠。如果墙的配筋结果中输出为0,代表该墙肢配筋属于构造。

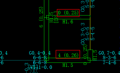
如下所示为剪力墙在配筋中输出的结果。

图片

如果考虑剪力墙的构造、同时综合考虑竖向分布筋的配筋率及多肢剪力墙的合并,对于剪力墙最终配筋要按照边缘构件进行配筋处理。

如下所示为上述墙肢在边缘构件中显示的结果。

图片

因此,这种情况下,剪力墙最终的配筋结果应该直接查看边缘构件的结果。而且在一些情况下,边缘构件中的配筋结果会比在SATWE配筋中显示的面积大。


    以下是总结的几种设计中会出现的情况,供大家参考:

(1) 对于一般的长墙,剪力墙边缘构件计算配筋面积中要考虑竖向分布筋。最终剪力墙边缘构件的配筋应该取计算值与阴影区面积对应的构造两者的大值。

(2) 对于短肢剪力墙的边缘构件,要考虑短肢剪力墙的全截面构造,扣除短肢剪力墙中间部分按照竖向分布筋配筋率计算的分布筋的面积,其余分配到两边,作为短肢剪力墙的边缘构件配筋。这种情况下边缘构件显示计算结果可能远大于构造,此时墙体的钢筋尽量要放置在边缘部位。

(3) 对于高厚比小于4的一字型墙肢,软件会按照柱设计,其边缘构件中显示的仅仅是墙肢平面内的结果,该结果偏小,因此,这种情况下的墙肢结果不应该查看边缘构件,应在柱配筋结果中查看。

(4) 对于L型墙肢边缘构件合并,要分别考虑每个墙肢的竖向分布筋配筋率,同时还要考虑阴影区重叠后的面积,构造要按照阴影区考虑,最终合并后的边缘构件为计算值与构造值取大。

(5) 对柱与剪力墙相交形成的边缘构件,柱和两个方向的墙肢合并形成一个大的边缘构件,该大的边缘构件要考虑柱的全截面构造配筋与全截面计算配筋,并考虑柱的计算配筋加两个墙肢的计算配筋和柱的构造配筋加两个墙肢的构造配筋,最终从计算配筋和构造配筋取大作为大的边缘构件配筋值。

全部回复(0 )

只看楼主 我来说两句抢沙发

混凝土结构

返回版块

140.17 万条内容 · 2216 人订阅

猜你喜欢

阅读下一篇

剪力墙配筋设计常见问题及其做法

本文转自结构微理论,如有侵权请联系删除

回帖成功

经验值 +10