
全现浇外墙,充分利用了铝模施工优势,实现外墙一次浇筑成型,杜绝了外墙裂缝渗漏等质量通病,而且减少交叉工序(砌筑、抹灰等湿作业),节约工期,提高效率,因此受到行业的广泛推崇。但是,全现浇混凝土外墙体系钢筋混凝土用量增加、成本增加;另外一个弊病是构造外墙易开裂,即是采取结构拉缝措施也存在一定的开裂和渗水隐患。

如何从结构布置方面规避一些全混外墙的质量风险是每一位结构设计师应该考虑的问题,同时如何节约全混外墙的综合建造成本,也是主流开发商重点关注的内容;针对以上问题,提供以下几点设计思路供参考。
(1)在建模计算布置剪力墙时,应充分利用外墙的刚度,有条件的外墙尽量设计为抗震墙,参与模型计算,剪力墙平面布置的总原则:金角银边草肚皮,加强周圈弱化中间,尽量减少低效墙的数量、长度、厚度,优化墙肢形状以尽量减少暗柱。举例如下:

(2)在建模计算时,应充分利用外圈连梁的刚度,尤其两侧山墙连梁可设置为高连梁或设缝双连梁,参与模型计算,提供足够的刚度,连梁超限可通过单独定义连梁刚度折减系数来调整。图示如下:

(3)全混外墙结构在建模计算时,剪力墙变厚度或收墙长应有规整、有规律,不能太零碎随意,不利于铝膜深化,增加铝膜开模成本。
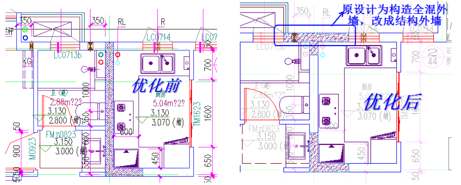
(4)铝膜深化阶段,施工单位为减少二次结构工程量,往往周圈外墙全部按照混凝土外墙深化,增加了钢筋混凝土的用量;同时,导致结构自重增加,限额指标超限,此阶段也可通过优化不必要的全混外墙部位来减少钢筋混凝土的用量,如二次砌筑不需要搭设外架的全混外墙均可改为二次砌筑,案例如下:




0人已收藏
0人已打赏
免费1人已点赞
分享
混凝土结构
返回版块140.17 万条内容 · 2216 人订阅
回帖成功
经验值 +10
全部回复(0 )
只看楼主 我来说两句抢沙发