土木在线论坛 \ 装配式建筑 \ 装配式施工 \ 装配整体式高层框架结构(五)~设计审核

装配整体式高层框架结构(五)~设计审核

发布于:2024-03-12 13:38:12 来自:装配式建筑/装配式施工 [复制转发]

审核要点

七天审定的图纸,确实给后续工作确实埋了很多雷!下半年除了工期紧张,同时也在不停的填坑,老白其实也还算是配合,不过因为合同关系有很多地方他也是左右为难,所以很多事情收拾的不是很及时,处理的不是很干净,这点想在后续项目复盘中做一一分述。

对模板影响调整

因为工期紧张,首要的节点就是完成一版图纸给到PC深化单位进行构件深化,并同步给到厂家进行模板的制作加工,所以在送审及审图通过后这有限的时间段一定要保证模板图准确无误。那段时间和老白也是每天几十个电话处理这些细节,落实图纸问题。

  1. 空心板及双T板规格统一。为便于工厂生产效能及后续安装效率,前期有标准化柱网确实给这个需求提供了良好的条件。在楼板布置方面和老白作了一些要求:双t板及空心板板长和宽度应尽可能标准化,做好区域划分;尺寸规格表应与平面示意一致,确保深化及安装无误。

以下为首层空心板及楼上双T板的平面布置,基本做到了厂房标准跨构件一种规格,功能区构件一种规格。
图片 图片

  1. 空心板保护层厚度统一  考虑到西区项目场地耐久性的要求,保护层厚度由35统一为42

图片

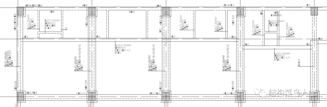
  1. 空心板板侧与中梁根据平面进行节点调整 这个主要涉及到一个标准跨内空心板的个数及标准件的宽度
  2. 首层空心板遇柱位支撑问题 刚开始设计没考虑这个遇柱端部冲突的问题,审图的时候我给老白提了一个建议,要不就把板下一直到承台面加宽120作为空心板的支撑条件,这样施工也方便。

图片

  1. 柱帽标高修正、两个方向高差应为150mm及与管井打架的可拆卸大样;一开始老白的图纸关于牛腿的标高及另一个方向上反的厚度总是没改对,这个做法会涉及到现场柱钢模的定制生产。另外一个值得关注的问题边是对于电梯洞口及设备井道柱的牛腿没法正常预留,需改用临时牛腿做法。

图片 图片 图片

  1. 层高表调整(首层层高及正负零标高) 设计阶段对楼面的做法一直没确定,到底是叠合层与金刚砂地面一体成型还是分开做?一直没有定论,还是影响柱钢模的排产。
  2. 主受力梁底筋预应力筋修改 因预制厂家产能问题改预应力筋为普通钢筋。
  1. 2~4F与其上楼层的梁板配筋应有所区别 因为四层以上荷载比下面楼层小,所以分界后的配筋应有所差异,双T板预应力筋应作区别优化。
  1. 次梁预制梁梁高按大样构造修正,并补充牛担板细致做法;主预制梁高950挑耳250,那么次梁梁高应控制在700以内简化节点处做法。
  1. 预制楼梯 外圈梁宽400,应注意靠外墙侧踏步作特殊处理,否则存在200的恶心洞口。后面首层楼梯因为规格与标准层不一样,模板需要重新定制而调整为现浇后,现场未注意对边墙踏步的处理导致现场有200的镂空。

图片

  1. 预制构件预留预埋做法及后期改造要求 预制构件生产后开洞或是预埋就很难处理或是不太好加强了,所以在加工前应对接好各专业的使用需求,尤其是需要开大洞和预留预埋的情况要落实清楚,小的洞口有条件的话后面再开也没问题。后续要求老白补充了后期开洞的要求:一是楼板开洞应避开双T板的肋,大于300mm洞口应报设计复核;二是预应力构件的预应力筋布置于梁底或是肋底以上300mm范围内,此范围内严禁采取钻孔、安装螺栓等破坏预应力筋的施工。
  1. 部分影响功能的倒T端取消;

图片

现浇主要问题

为了更好的衔接好界面,所以功能区那块的现浇结构还是让老白来处理,也就是主体院仅做了基础设计,剩下的都是老白来收拾了。

  1. 补充首层电梯底坑吊挂做法及集水井降板大样;
  2. 室外结构板做法优化,室外平台荷载应作优化,配筋和截面均可作核减。
  3. 部分配筋优化及不够(梁柱均有超配) 其实前期也给老白提了一些优化的意见,可能还是时间的问题来不及复核修改。这一条未做复核给后续预算优化埋了极大一个坑,还被领导点名批评。后面和老白一起下了狠招,足足优化了8-10kg/m2的含钢量,这过度设计的水分也难怪要被领导痛批!下次结构设计真要长教训,严谨对待过程的每一个细节,事情必须要形成闭环!
  4. 首层柱预留沉降观测点及牛腿预埋件 牛腿预埋件是给后续首层行吊安装预留的,老白套用了西区那边的节点做法,但是后续施工时复核发现锚筋不够,搞得相对被动!后续还是要认真对待每一个细节,抄作业也要负责任!
  5. 屋面结构找坡的做法 屋面结构找坡是平台提出的要求,据说可以省大几十万,但是施工图那会来不及修改,这事一直给老白记着。后面做施工图优化的时候让他做了修正,屋面结构找坡对装配式来说确实是比较麻烦,柱的标高、牛腿的标高、梁挑耳的调平必须要细致对待。后期深化PC构件的时候,又和深化单位对了一轮取消了一些预制次梁,修正了一些做法。

图片

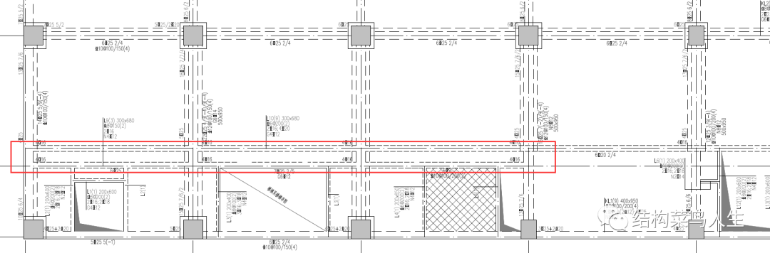
  1. 板面筋直径不小于10 这个是外地设计院做珠海项目的通病,事前交代了要求,但是往往落实不到位!
  2. 构造钢筋采用三级钢 为了减少梁纵筋的根数,梁纵筋我们采用了四级钢,但是老白在设计的时候把箍筋和腰筋这些构造筋也统一处理了,这点后续要求做了优化。
  3. 夹层做法需要补充 夹层真的需要好好吐槽一下,审图要求包络设计搞得设计很狼狈,指标和配筋都超出了经验范畴。后面主要的问题有两处:一是夹层的标高及梁高未对应好建筑的立面,导致门窗有问题;二是每层均有过度设计。
  4. 楼电梯边梁改梁格方案 原先老白那边考虑到模数问题在功能区设置了双次梁,一道是预制次梁一道是现浇次梁真的是有点坑,后面让设计做了优化。总的来说肯定是现场工作量最少为先,所以还是建议减掉一道次梁。

图片 图片

  1. 空心板板侧与中梁连接节点考虑板深入梁内 原先空心板是对齐梁板的,要求深入到梁内一定距离主要有两点考虑:一是在端跨柱边有雨水管需要在空心板面开洞,对有效截面会有所损伤,侧边能搭到梁身也算是一点安全储备吧;二是考虑到板深入到梁身可以为叠合段提供侧模作用,不用担心浇筑时漏浆的问题。

图片

  1. 首层外挑结构标高 首层较多外挑结构,要么是室外台阶要么是室外坡道要么是卸货平台,这些功能要求标高都有不同的要求,应结合建筑的需求切合好做法。
  2. 补充楼梯及平面梯梁退让修改位置 关于退让的问题在大数据项目没有中招,但是在大湾区项目中招了!
  3. 1#首层右侧机房内是否有管线要穿,如有不建议做空心板(有较多设备专业要穿管的区域后续改为现浇做法)
  4. 柱帽标高考虑两侧梁高尺寸,目前标高及尺寸不对
  5. 夹层柱属于梁上柱,该梁是否要补连接做法 这条后面在深化图沟通过程做了重点核对,就怕搞错位置搞错构造!
  6. 外墙墙身大样做法的实现问题 这条在施工图审查时一直没有定论,原设计是考虑按照西区的外挂墙板方式,一直在论证可行性(关于是否对工期有帮助、成本是否能包住及耐久性如何)。后面几个项目都没有执行,还是改为传统砖砌。

西区项目互校

  1. 平沙与大湾区厂房首层均采用地坪桩,首层梁配筋较大湾区大

图片 图片

  1. 空心板两区域配筋均较计算书偏大,已与白总沟通面筋取消两根

图片

  1. 双T板应根据楼面荷载不一样做配筋区分,目前高新已让设计优化
  2. 楼层应无法留后浇带,叠合层做后浇带有无意义?

图片

  1. 电梯底坑深度不一致

图片 图片

  1. 双T板平面编号不一致,且与信息表对不上

图片

  1. 梁板混凝土标号两区域不一致

图片 图片 图片

  1. 平沙配套侧外圈梁也采用预制方式

图片

  1. Y向主梁梁高不一致,平沙950高新800

图片

  1. Y向边跨主受力梁底筋较大是否采用预应力筋(平沙采用,高新未用)
  2. 功能区次梁及楼板做法不一样(平沙次梁采用预制,楼板采用钢筋桁架楼承板,高新采用现浇方式)
  3. 吊装口做法不一样(平沙采用钢结构平台,高新采用现浇)

内容源于网络,侵删


全部回复(0 )

只看楼主 我来说两句抢沙发
这个家伙什么也没有留下。。。

装配式施工

返回版块

9504 条内容 · 131 人订阅

猜你喜欢

阅读下一篇

装配整体式高层框架结构(三)~桩基选型

一、基础方案 桩基方案阶段,和平台以及其他区域公司一起研究过桩径选取的问题,并让设计院搞了一轮比选,结果两边结论居然不一致(西区项目结论是500桩径更优,而我们这边两个项目结论是600)。查了一下两边的汇报文件,主要的差异可能还是材料的价差问题,500和600管桩综合单价不一样,其中主要和成桩工艺也相关,比如有的地方还可以采用柴油锤,那他单价肯定就低一些了。所以,我们在做方案比选的时候,不能完全去靠“我觉得”来评判方案的优劣,应更多的搜集与之相关的控制指标综合评估。

回帖成功

经验值 +10