钢结构设计中,节点设计是重要一环,而柱脚设计更是重中之重。柱脚计算内容多、柱脚形式多样,如何正确取用至关重要。
本文以现行规范及网络资料为参考,结合实际项目经验汇总,供参考。
现行规范对柱脚形式选用的规定
结合各规范对钢结构柱脚设计的规定,对于不同类型钢结构工程可选用的柱脚见下表 。
(注:?:适宜采用 ○:可采用 ×:不应采用或可不采用)
《钢结构设计标准》(GB50017-2017)对于柱脚的新规定
1. 新钢标明确规定,插入式柱脚可用于多层钢结构框架柱,正式认可了插入式柱脚在民用建筑中的应用。插入式柱脚之前主要出现在工业建筑的相关内容。
2. 关于抗震性能化设计中对于柱脚的另外一些相关规定,详《钢结构设计标准》(GB50017-2017)第17.2.12条。
3. 新钢标关于外包式柱脚参考了日本的相关规定,受力模式跟之前规范有更新,钢柱弯矩在外包柱脚顶部钢筋位置处最大,底板处约为零,弯矩通过钢柱和混凝土之间的压力传递。以往受力模式假定是,轴力由钢柱底板传递,弯矩通过栓钉传递给混凝土短柱,受力模式的变化导致对栓钉的设计要求有所不同。新钢标条文中不再写栓钉的要求,只是在图中表示栓钉为可选项,与高钢规表示“外包部分的钢柱翼缘表面宜设置栓钉”相吻合,即栓钉为构造措施。
4.新钢标提出了4种外包式柱脚典型破坏模式,围绕破坏模式提出了相应的构造措施,外包混凝土顶部的抗剪补强钢筋,通常集中配置3道构造箍筋,防止顶部混凝土被压碎和保证水平剪力的传递;外包式柱脚箍筋按100mm的间距配置,以免出现受剪斜裂缝,并应保证钢筋的锚固长度和混凝土的外包厚度;确保外包混凝土的高度。
5.新钢标对埋入式柱脚的受力模式的假定也做了修改,按钢柱侧面和混凝土之间的受压区支承反力形成的抗力来抵抗弯矩和剪力(高钢规未变),与以往计算中假定钢柱侧面的栓钉剪力来抵抗弯矩的受力模式不同。钢柱埋入部分可不设栓钉,对于有拔力的柱,宜在柱埋入混凝土部分设置栓钉。
(1)铰接柱脚的构造方式有轴承式(图1-a),平板式(图1-b、c),底板加靴梁(图1-d)三种,工程中还有其他形式的铰接柱脚。
(2)柱脚底板厚度不宜小于20mm,且不应小于钢柱翼缘厚度。
(3)锚栓一般仅起到安装过程中固定的作用,因此锚栓的直径通常根据其与钢柱板件的厚度和底板厚度相协调的原则来确定,一般可在20~42mm的范围内选择,且不宜小于20 mm。
(4)为便于安装与调整,底板上的螺栓孔应比栓杆直径大0.2~0.5倍,锚栓锚固长度不应小于25d,待安装就位后,将垫板与底板焊死固定。由于底板开孔较大,应设置锚栓螺母垫板,并采用双螺母紧固。
(5)铰接柱脚不承受弯矩,锚栓设在翼缘内侧;刚接柱脚锚栓设在翼缘外侧,通常多于4个。
当作用在柱脚的轴心压力和弯矩比较小时候,可采用图a~e,当轴压力和弯矩较大时,可采用图f~k,其中图k为重工业厂房箱型柱脚。
实腹式刚接柱脚主要由底板、加劲肋、靴梁、隔板、锚栓及锚栓支撑托座等组成,各板件的强度和刚度及相互间的连接应起到增加柱脚整体刚度,提高柱脚承载力和变形能力的作用,且构造应符合下列要求:
(1)柱脚底板厚度不宜小于30mm,且不应小于钢柱翼缘厚度。
(2)当采用外露式柱脚时,柱脚的极限承载力不宜小于柱截面塑形屈服承载力的 1.2倍。柱脚锚栓不宜用以承受柱底水平剪力,柱底剪力应由底板与基础间的摩擦力或设置抗剪键及其它措施承担,柱脚锚栓应可靠锚固。
(3)刚性柱脚的锚栓不仅起到安装过程固
定的作用,且在柱脚弯矩下承受拉力,刚性柱脚的锚栓直径和数量应由计算确定,直径不应小于24mm。
(4)三级及以上抗震等级时,锚栓截面面积不宜小于钢柱下端截面面积的20%。
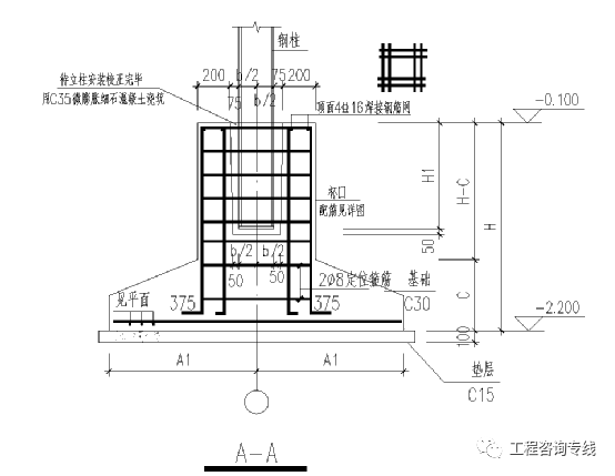
(1)外包式柱脚底板应位于基础梁或筏板的混凝土保护层内;外包混凝土的厚度,对H形截面柱不宜小于160mm,对矩形管或圆形管柱不宜小于180mm,同时不宜小于钢柱截面高度的30%;混凝土强度等级不宜低于C30;柱脚混凝土外包高度,H形柱不宜小于柱截面高度的2倍,矩形管柱或圆管柱宜为矩形管截面长边尺寸或圆管直径的2.5 倍;当没有地下室时,外包宽度和高度宜增大20%;当仅有一层地下室时,外包宽度宜增大10%。
(3)柱脚锚栓直径不宜小于16mm,锚固长度不宜小于其直径的20倍。锚栓直径选取应使基础最大压应力值不应超过混凝土局部承压强度设计值,锚栓底部应设锚板或弯钩。
(4)柱在外包混凝土的顶部箍筋处应设置水平加劲肋或横隔板。
(5)当框架柱为圆形管或矩形管时,应在管内浇灌混凝土,强度等级不应小于基础混凝土。浇灌高度应高于外包混凝土,不宜小于圆管直径或矩形管的长边。
(6)外包钢筋混凝土的受弯和受剪承载力验算及受拉钢筋和箍筋的构造要求应符合现行国家标准《混凝土结构设计规范》(2015年版)(GB50010—2010)的有关规定,主筋深入基础内的长度不应小于25倍直径,四角主筋两端应加弯钩,下弯长度不应小于15d,外包层顶部箍筋应加强加密(间距不应大于50mm),且不应小于3道直径12mm的HRB335级热轧钢筋。
(7)外包部分的钢柱翼缘表面宜按构造设置栓钉,构造参埋入式柱脚设置。
(8)外包式、埋入式柱脚,钢柱脚在与混凝土接触的范围内,不得刷油漆;柱脚安装时,应将钢柱表面的泥土、油污、铁锈和焊渣等用砂轮清刷干净。
(1)埋深:H形截面柱的埋置深度不应小于钢柱截面高度的2倍;矩形管柱和圆管柱的埋置深度不应小于截面高度和圆管外径的2.5倍;为使柱的全塑性弯矩传递给基础,对于边柱和角柱,应适当加大柱的埋入深度。
(2)钢柱柱脚底板应布置锚栓按抗弯连接设计,锚栓埋入长度不应小于其直径的25倍,锚栓底部应设锚板或弯钩,锚板厚度宜大于1.3倍锚栓直径。应保证锚栓四周及底部的混凝土有足够厚度,避免基础冲切破坏;锚栓应按混凝土基础要求设置保护层。
(3)钢柱埋入部分四周应设置竖向钢筋和箍筋,竖向钢筋直径应符合《混凝土结构设计规范》的相关规定,箍筋直径不用小于10mm,间距不应大于250mm,且顶部应加密。边柱和角柱易产生混凝土剪切破坏,应有足够的配筋,埋入部分的顶部和底部需设置U形钢筋加强,如下图所示,U形钢筋的开口应向内侧,其锚固长度应从钢柱内侧算起,不小于30倍钢筋直径。
(4)钢柱埋入部分的侧边混凝土保护层也应有足够的厚度,如下图所示,保护层厚度C1不得小于钢柱受弯方向截面高度的1/2,且不小于250mm,C2不小于钢柱受弯方向截面高度的2/3,且不小于400mm。基础梁的梁边相交的夹角应做成钝角,坡度应≤1:4。
(5)在混凝土基础的顶部,钢柱应设置水平加劲肋。当箱形柱壁板宽厚比大于30时,应在埋入部分的顶部设置隔板;也可在箱形柱的埋入部分填充混凝土,当混凝土填充至基础顶部以上 1 倍箱形截面高度时,埋入部分的顶部可不设隔板。
(6)钢柱埋入部分可不设栓钉,对于有拔力的柱,宜在柱埋入混凝土部分设置栓钉。
插入式柱脚是指钢柱直接插入已浇筑好的杯口内,经校准后用细石混凝土浇灌至基础顶面,使钢柱与基础刚性连接。柱脚的作用是将钢柱下端的内力(轴力、弯矩、剪力)通过二次浇灌的细石混凝土传给基础,其作用力的传递机理与埋入式柱脚基本相同。钢柱下部的弯矩和剪力,主要是通过二次浇灌层细石混凝土对钢柱翼缘的侧向压力所产生的弯矩来平衡,轴向力由二次浇灌层的粘结力和柱底反力承受。钢柱侧面混凝土的支承反力形成的抵抗弯矩和承压高度范围内混凝土的抗力与钢柱的弯矩和剪力平衡,便可得出保证钢柱与基础刚性连接的插入深度。
插入混凝土基础杯口的深度应符合表12.7.10的规定,实腹截面柱柱脚应根据本标准第12.7.9条的规定计算,双肢格构柱柱脚应根据下列公式计算:
式中:N——柱肢轴向拉力设计值(N);
ft——杯口内二次浇灌层细石混凝土抗拉强度设计值(N/mm2);
S——柱肢外轮廓线的周长,对圆管柱可按式(12.7.10-2)计算。
表12.7.10 钢柱插入杯口的最小深度
加层钢结构中的柱脚设计,因下部混凝土结构情况多样,可采取不同的节点处理方案,以下为加层钢结构柱脚节点类型汇总图,后面章节详细介绍:
轻钢加层柱脚节点的连接形式分为铰接和刚接两种,如下图所示。铰接柱脚只能承受轴向压力和水平剪力的作用,而不能抵抗弯矩作用。而刚接柱脚除受轴向压力和水平方向剪力外,还能承担上部加层结构传来的弯矩。
由于钢结构相比于钢筋混凝土结构的重量轻,采用钢结构加层可大大降低结构的竖向荷载,但对水平方向的荷载没有影响,即传递到柱脚上的水平剪力没有明显减小,《钢结构设计标准》(GB50017-2017)和《门式刚架轻型房屋钢结构技术规范》(GB51022-2015)都明确规定:柱脚锚栓不宜用于承受柱脚底部的水平剪力。因此可由底板与混凝土基础间的摩擦力或设置抗剪键来承受水平剪力,抗剪键的设置如下图所示。
在目前的轻钢加层工程中,当原建筑物为钢筋混凝土框架结构时,采用的柱脚刚性连接方案主要有以下几种:
(1)直接钻孔连接法:如下图所示,在原结构柱顶的合适位置钻孔并植入锚固钢筋,在柱顶铺一定厚度的细石混凝土,在过渡钢板上与植筋对应的位置钻孔,将过渡钢板与植入的锚固钢筋焊接,用结构胶固定植筋与过渡钢板,最后用螺栓将钢柱底板与过渡钢板连接。
该方法适用于原框架柱顶部钢筋分布不太密集,能够提供锚固螺栓成孔空间的结构。其优点是施工简便,缺点是由于结构胶的使用年限有限且施工质量要求高,因此对结构的耐久性和施工质量的可靠性无法保证,同时该柱脚形式的抗震性能较差。
(2)柱主筋直接连接法:如下图所示,在原框架柱的纵筋中,选择合适位置的纵筋加热调直其原锚固段,在过渡钢板的相应位置开孔塞焊,并在柱顶铺细石混凝土找平,再将钢柱底板与过渡钢板用螺栓连接以达到安装钢柱的目的。此连接方法的缺点是很多情况下很难找到满足数量要求的钢筋,并且无法保证柱脚在复杂应力作用下的受力性能,不能提高连接节点的抗震性能。
(3)U型箍连接法:如下图所示,当加层结构只有一层或加层部分的内力较小时,可采用U型螺栓连接法,即先在原柱顶铺一定厚度的混凝土,在钢柱下使用U型螺栓将钢柱与原结构混凝土梁连接,钢柱底板与U型箍之间用钻孔塞焊或螺栓连接。该柱脚连接形式施工简便,但不能提高节点的受力性能。
由于传统的三种柱脚连接形式构造简单,不利于复杂应力状态下的荷载传递,且不能有效提高节点的抗震性能,因此,在钢筋混凝土框架结构上采用轻钢加层时,为了保证加层节点的可靠性,提高加层后结构的抗震性能,并结合实际工程,归纳整理以下几种连接节点。
(1)新增柱头外露式柱脚:该柱脚节点适用于既有建筑混凝土结构顶部加层层数较少,新增钢柱截面尺寸及柱脚底板尺寸较小时,可采用如下节点连接方式:(此节点未表示原混凝土梁柱存在自身加固部分);该方法适用于原框架柱顶部钢筋分布不太密集的结构。
(2)外包式刚性连接柱脚方案一:该柱脚节点适用于既有建筑混凝土结构顶部加层改造,新增钢柱截面尺寸及柱脚底板尺寸较小且下部混凝土柱截面尺寸较大时,可采用如下节点连接方式:(此节点未表示原混凝土梁柱有自身加固部分)
(3) 外包式刚性连接柱脚方案二:该柱脚节点适用于既有建筑混凝土结构顶部加层改造,钢柱柱脚底板尺寸较大,原混凝土柱截面尺寸较小,无法为上部钢柱外包混凝土部分提供纵筋锚固空间,可采用如下节点连接方式:
(4) 外包式刚性连接柱脚方案三:该柱脚节点适用于既有建筑混凝土结构顶部加层改造,钢柱柱脚底板尺寸较大,原混凝土柱截面尺寸较小,无法为上部钢柱外包混凝土部分提供纵筋锚固空间,也可采用如下节点连接方式:
外包式刚性连接柱脚方案二和三,钢柱底板以上的现浇外包钢筋混凝土,增加了现浇混凝土柱头对钢柱的嵌固能力;使上部结构产生的轴力和弯矩通过钢柱和外包钢筋混凝土共同作用,有效地传递到原结构上;同时避免了加层钢柱与原混凝土柱之间的刚度突变。

全部回复(0 )
只看楼主 我来说两句抢沙发