为贯彻《国家乡村振兴战略规划(2018-2022年)》和落实《中共中央国务院关于全面推进乡村振兴加快农业农村现代化的意见》相关工作,于2022年在青海省海东市民和县隆治乡开展农村污水管网工程。民和县隆治乡镇区为民和县乡村振兴示范村,该区域已配备自来水给水管网,尚未建设配套污水管网及污水处理设施,为协调周边的合理发展与布局,科学合理的配置空间资源,急需建设污水处理厂配套污水管网系统。
根据地质勘查和试验数据结果表明,民和县农污项目区域为自重湿陷性类型,呈分布不连续和局部分布特征,自上而下主要为①层素填土和②层黄土,②层黄土分为②-1层湿陷性黄土和②-2层非湿陷性黄土。①层素填土层厚为0.3~0.8 m,②-1层湿陷性黄土,顶层埋深为0.50~0.60 m,层厚为4.20~4.70 m,②-2层为非湿陷性黄土,顶层埋深为6.00 m,层厚2.30~2.40 m。本工程埋设管道涉及①层素填土和为②-1层湿陷性黄土,且②-1层湿陷性黄土占比较大,场地湿陷属于Ⅱ级(中等)自重湿陷场地,需要对管道和检查井等材料施工区域采取以地基处理为主的湿陷性规避处理。
表1 工程区内湿陷性黄土性能参数
项目管道主要施工区域为农村巷道,巷道呈宽度较窄(约4 m)、高程较大(每百米相差约20 cm)、周围构筑物多无地基等特点;施工期间早晨温度较低,日出时间较晚,施工机械易受温度影响无法正常施工,使得正常施工时间较少,整体施工工期较紧;施工区域距离村民门户较近。
1
我国湿陷性黄土主要分布在陕甘宁地区。湿陷性黄土本身强度较高,遇水后会根据湿陷性级别和附加应力性质的不同发生不均匀沉降。根据湿陷性系数分为轻微湿陷性湿陷、中度湿陷性湿陷和严重湿陷性,湿陷性系数分别为0.015~0.03、0.03~0.07、大于0.07。根据附加应力的不同,分为自重性湿陷性黄土和非自重性湿陷性黄土。
依据土工试验,本工程所在属于自重性湿陷性黄土:含水量W为14.50%~17.40%,平均16.04%,稍湿,孔隙比e为0.89~1.06,平均0.98,稍密,压缩系数为0.32~0.59 MPa-1,平均0.46 MPa-1,属中等压缩性土层,压缩模量为3.40~5.90 MPa,平均4.51 MPa,总体湿陷性为Ⅱ级(中等)自重湿陷场地。工程所在地的湿陷性黄土天然具有一定强度,在垂直开挖2~4 m沟槽时短时间较稳定,但遇水后强度一定程度上降低,会出现不均匀沉降,增加施工管道和周围建筑物的失稳风险。
2
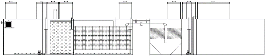
民和县隆治乡桥头村李家河滩社及前后山新村污水治理工程污水治理工程范围桥头村、前后山安置新村,以及乡政府及卫生院等行政事业办公机构。工程建设内容为在以上施工区域实施建设农村污水管网收集系统及农村污水一体化处理装置,农村污水收集后送至新建一体化处理装置进行集中处理,污水经处理达到青海省《农村生活污水处理排放标准》(DB63/T 1777-2020)处理排放二级标准后排放至就近灌溉水渠。工程规模为新建污水管网总长度约4.42 km(DN200),新建污水检查井约177座,集中式化粪池2座(50 m?),地埋式一体化污水处理设备1套(50 m?/d),具体如图1所示。

图1 工程总平面布置示意
3
3.1 排水体制设计
排水体制主要分为分流制和合流制,我国农村之前有条件的农村已建造的污水管网系统多为直排合流制,现随生活水平和环境要求的日益提高,对已有直排合流制的农污管网地区改造多以截留式合流制为主,对新建设农污地区根据现有沟渠情况以改造为完全分流制和不完全分流制为主。
本工程所在地区属高原大陆性干旱气候,降水多集中在每年6—8月,短期降水量集中,实现雨污分流制存在很大困难,所以本工程需要因地制宜以不完全分流制为主,在已有排水沟渠的地方施行完全分流制,将雨水排放至附近灌溉沟渠,污水通过管网进行农污一体化处理设备进行处理,达排放标准后再就近资源化利用。在无排水沟渠的地方采用不完全分流制,将部分雨水及初期雨水,部分雨水直接进入周边灌溉沟渠,部分雨水和污水共同通过收集管网进入污水处理设施进行处理,达排放标准后再就近资源化利用。

图2 工程区完全分流制示意

图3 工程区不完全分流制示意
3.2 污水量及进水水质预测
3.2.1 污水量预测
农村地区污水排放均呈排放水波动大量和水质变化大等特征,排放水量和水质的较大变化基本出现在早、中、晚餐前后、洗涤等时间段。目前,本工程所在地区的农村生活污水主要来源于厨房污水和洗涤污水两个途径,后期经过卫厕改革后会增加厕所污水途径,为长远考虑,设计阶段考虑上述三个途径的综合生活污水量。设计镇区所在综合生活污水量应根据实地调查数据确定,但依据目前镇区的排水现状无法收集相关的统计资料。由于本地已建有完善统一的给水管网,能够实现水龙头入户和基本全日供水,所以设计污水量可以通过当地采用的用水定额、设计范围内的人口规模、镇区内部给排水设施水平进行计算。根据青海省《用水定额》(DB63/T 1429-2021)确定海东市农村居民生活用水定额为60 L/(人·d),依据《镇(乡)村排水工程技术规程》(CJJ 124-2008)和现有的洗涤和卫生设施现状,确定农村综合污水排放定额按照当地用水定额的80%计算,即48 L/(人·d),根据现场调查和政府相关资料,设计范围区域人口规模约为656人,同时考虑安全系数取1.1,则根据上述数据现状污水排放量为34.6 m?/d,工程拟对污水全部收集,则收集处理量为34.6 m?/d,从而确定污水处理站设计规模为50 m?/d。
3.2.2 进水水质预测
本工程进水水质预测采用两步走进行预测,首先结合《分地区农村生活污水处理技术指南的通知》(建村[2010]149号)中的西北区域农村生活污水水质参考范围,然后对现有农污汇集的明渠以主要排放时间段和不同地点进行调查采样进一步细化实测,两者充分结合最终得出本项目进水水质标准,能够保证进水水质的准确性。
实际检测过程中选取工程区域内现存一条主要排水明渠进行检测,设置1个采样点,采样点设置在具有代表性的明渠汇流处,每个采样点早、中、晚各检测一次,连续测7天,COD、NH+4-N、TN、TP测量数据结果如图4所示。
表2 西北地区农村居民生活污水水质参考取值(单位:mg/L)



图4 排水明渠汇流点连续7 d水质检测结果
明渠汇流点的水主要为厨房用水、洗衣服用水等生活用水,可看出COD、NH3-N、TN、TP大多呈现晚上和中午均比早晨高和波动性较大等特点,COD波动区间为268.53~513.8 mg/L,NH3-N波动区间为4.24~8.57 mg/L,TN波动区间为12.36~33.18mg/L,TP波动区间为2.66~7.94 mg/L。
根据西北区域农村生活污水水质参考范围和以上检测结果,民和县隆治乡桥头村进水指标按照表3标准取值。
表3 民和县隆治乡桥头村进水指标取值范围(单位:mg/L)

污水处理排放标准设计本项目属于典型农村生活污水收集处置工程,排水并非直接排入自然水体,而是就近排入灌溉水渠,所以根据当地排水要求执行青海省《农村生活污水处理排放标准》(DB63/T 1777-2020)二级排放标准,同时也满足《农田灌溉水质标准》(GB 5084-92)。其具体出水水质指标表4所示。
表4 民和县隆治乡桥头村出水水质指标(单位:mg/L)

3.4 管道布局及安装设计
3.4.1 布局分析
工程所在区域内地势由西北向东南逐渐倾斜,乡内主路和村内街道每100 m平均均有20 cm高差,整体以重力流进行布置。以川总公路为界,北侧主要分布有乡政府、乡卫生院、兽医站以及银行、加油站等企事业办公场所,以及少量农户。多数村民位于公路南侧,分为桥头村和前后山安置新村两个集中片区。沿着川总公路看,以隆治乡政府至乡卫生院处为高点,向西南及东北两个方向高程都呈下降趋势。该拟建区域最南侧一线高程变化趋势与川总公路高程变化趋势类似,西侧自西向东高程逐步降低,东侧自东向西高程逐步降低,以新村村委会处为最低点。
根据居民分布特点及地形地势特征,区域内污水收集方案如下:
川总公路以北区域自隆治乡政府向西沿公路北侧布置收水主管,在最西侧砂石料场处汇总穿越公路汇入南侧桥头村居民区生活污水管网;自乡卫生院向东沿公路北侧布置收水主管,在该施工区域最东端穿越公路汇入南侧新村居民区生活污水管网。川总公路以南区域,地势北高南低,生活污水支管沿社区道路向南收集,汇入最南端污水干管,最南端污水干管自东西两向分别向村委会处汇集。本工程检查井平均间距按15~40 m考虑。
3.4.2 管材分析
工程布置区域多分布村镇巷道,多以行人和非机动车为主,对于地下埋管的抗压能力要求不高,且考虑到工程总造价,本次工程管材主要选择以塑料管为主,如HDPE双壁波纹管、UPVC管,根据类似工程经验,在管径DN200及以上选用HDPE双壁波纹管,管径DN200以下选用UPVC管。对于需要穿越道路的管道部分区域做拉管和顶管处理,为保证穿越过程中和过程后的道路稳定性,拉管和顶管均采用碳钢管。
3.4.3 管径分析
根据常住人口数量和人均用水量计算污水排放量,总变化系数按《室外排水设计规范》(GB 50014-2006)取值。
依据上述规范,排水管渠流量依据式(1)计算:

式中 Q——设计流量,m?/s;
V——流速,m/s;
A——水流有效断面面积,m?。
依据上述污水量计算得出平均日流量为0.4L/s,由于数值太小,所以取规范给出的最小平均日流量5L/s作为设计值,则总变化系数为2.3,最大充满度设计值取0.6,最小流速值1取0.6 m/s,根据上述公式算出污水管最大直径为35.1 mm,但根据《镇(乡)村排水工程设计规范》(CJJ 124-2008),污水管最小管径为200 mm,所以本工程管道管径设计为200 mm。
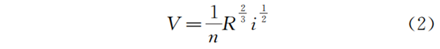
对排水能力复核:

式中 n——管壁粗糙系数;
i——水力坡度;
R——水力半径(过水断面面积与湿周的比值)。
依据湿陷性黄土特性和类似项目经验统一选取DN200的HDPE双壁螺纹管作为主管和支管,且根据《镇(乡)村排水工程技术规程》塑料管壁粗糙系数取值为0.01,最小水力坡度为4‰,经过计算得出流速为0.85 m/s,流量为97 m?/h,满足相应规范和设计要求。
3.4.4 埋深分析
根据《建筑地基基础设计规范》(GB 50007-2011)附录F中国季节性冻土标准深线土,并结合实际工程经验得出民和回族土族自治县工程所在地标准冻深0.85 m,最大冻深为1.16 m。并根据《室外排水设计规范》规定管道埋在人行道下面时不宜小于0.6 m,埋在机动车道下面时不宜小于0.7 m。管线在车行道上,且管顶覆土小于0.7 m时采用素混凝土包方或钢管套管保护。所以本工程选取排水支管起端管顶最小覆土深度为1.16 m。
3.4.5 基础垫层
分析考虑到施工区域周围多住户,无法采用大型机械,本工程采用灰土垫层法+预浸法来去除黄土的湿陷性。基础垫层根据工程区域分为管道基础垫层和设备基础垫层两部分,设备基础垫层从下至上为原土、200 mm厚压实系数0.95的三七灰土垫层、200 mm厚C30混凝土、400 mm厚细砂三层垫层保证设备的稳定性;管道基础垫层从下至上为原土、200 mm厚的压实系数0.95三七灰土、200 mm厚净砂。

图5 一体化污水处理设备侧视
3.5 污水处理工艺设计
由于本工程区域多山地,地形平缓地区多已种植一年一季的玉米,存在村镇用地紧张和征地困难等问题,且本地气候相对内陆气温较低,为减少征地和保证菌种的适宜生存温度,首先确定以地埋式为主。根据当地人口统计情况,预测在当地排水系统建成后存在排水量较小,排水时间段集中、排水总变化系数大等特点,为保证本工程出水水质要求达到青海省《农村生活污水排放标准》(DB 63/T 1777-2020)中的二级标准和考虑到管理方便和总投资,本工程采用处理能力为50 m?/d的地埋式一体化农污处理设备,设备采用多级氧化技术(MBBR)。
本工程采用的地埋式一体化污水处理设备共分为两个箱体,两个箱体通过管道串联构成整套处理系统,#1箱体包括调节池、A池和O池三部分,#2箱体包括沉淀池、污泥池、清水池、沉淀池和设备房四部分,整体共7部分,每部分上方设置一个人孔,方便专业维修,见图10。调节池中设置两台提升潜污泵,待调节池的水位达到感应水位后调节池中的水提升至A池进行缺氧反硝化反应,其中配备100多面孔空心球填料,填料填充比为40%,底部设置空气搅拌系统,搅拌空气由O级池曝气风机提供,进气管路上安装电动阀和时间继电器,通过间歇供气保障池内泥水混合均匀,同时防止溶解氧过高抑制反硝化菌的活性,控制0.5 mg/L左右。A池处理后的水自流至O池,O池中采用配套悬挂装置固定悬挂填料进行硝化反应,控制溶解氧浓度在2 mg/L左右,AO生化池出水进入斜板沉淀池进行重力分离,分离后的出水进入清水池,絮凝剂投加在斜板沉淀池与清水池的连通管内,强化TP去除。清水池废水经消毒后通过清水池提升泵排放至就近灌溉水渠。沉淀池底部污泥可通过污泥回流泵提升至A池和化粪池,用于补充对应池中污泥活性,最后污泥池内的剩下污泥经浓缩后定期抽吸外运处理。
4
在湿陷性黄土地区农村污水管网建设工程由于湿陷性黄土的不良性和农村污水排放的水量/质多变性决定了需要在排水体制选择上灵活选用、污水量及进水水质预测上另辟蹊径、污水处理排放标准制定上符合当地环境、管道布局及安装设计上因地制宜和污水处理工艺上细化设计。在上述工序详细推进分析的基础上,能够较大程度保证工程的安全、质量以及其实用性,且其设计思路和实施方法对排水管道工程的建设具有一定的的推广意义和借鉴意义。
文章来源于给水排水,侵权请联系删除
0人已收藏
0人已打赏
免费4人已点赞
分享
市政给排水
返回版块23.68 万条内容 · 858 人订阅
阅读下一篇
市政排水管道闭水试验引 言 市政排水管道工程质量的好坏直接影响城市居民生活质量,这就要求在市政排水管道工程施工管理过程中不仅要加强工作力度,同时加大工作的细度和严度,做到及时发现问题、及时解决问题,将工程质量隐患和缺陷消灭于萌芽阶段。
回帖成功
经验值 +10
全部回复(2 )
只看楼主 我来说两句抢地板资料实用性比较强,点赞收藏啦,谢谢楼主分享
回复 举报
这份资料不错,支持与鼓励多上传分享给大家
回复 举报